賃貸マンション
ワイズ柳橋の賃貸物件情報(1DK/6階)
| 家賃 | 管理費等 | 敷金 | 礼金 | 間取り | 専有面積 |
|---|---|---|---|---|---|
| 13.6万円 | 7,000円 | 13.6万円 | 13.6万円 | 1DK | 30.54m2 |
入居決定でお祝い金最大100,000円
Point
初期費用分割払い可能☆最大24ヶ月払い☆カード決済も対応しております!!遠方の方や忙しい方向けオンライン内見実施中☆
提供:(株)REVE飯田橋店(SUUMO経由)

詳細情報 ワイズ柳橋
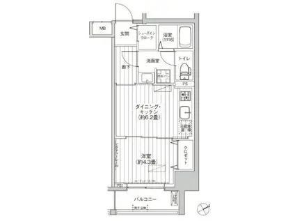
物件紹介
ワイズ柳橋はJR総武線浅草橋駅から徒歩3分にあり、駅近で通勤通学に便利なマンションです。
このお部屋は2階以上に位置しているので、通行人や周囲の住人からの視線が気になりにくく、防犯面でも安心。建物のエントランスはオートロックがついており、インターホンにはTVモニタもついているため、相手の顔を確認してから来客対応することができます。
人気の南向き・フローリングのお部屋。角部屋でもあるため、周囲の居住者の生活音も気になりにくい場所です。キッチンはシステムキッチン仕様になっていますので、お料理好きの方にもぴったり。バス・トイレは別なので、のんびりお風呂タイムも楽しめるでしょう。また、雨の日でも浴室乾燥機を使えば、お洗濯も問題ありません。
通信設備面では、インターネット接続が可能です。また、BSアンテナ・CSアンテナがありCATVにも対応しているので、おうち時間も充実するでしょう(別途工事、契約料が必要な場合あり)。
建物にはエレベーターがついているので、重い荷物があっても安心。共用部には宅配ボックスが設定されているので、不在の時にも荷物を受け取ることができます。
このお部屋は2階以上に位置しているので、通行人や周囲の住人からの視線が気になりにくく、防犯面でも安心。建物のエントランスはオートロックがついており、インターホンにはTVモニタもついているため、相手の顔を確認してから来客対応することができます。
人気の南向き・フローリングのお部屋。角部屋でもあるため、周囲の居住者の生活音も気になりにくい場所です。キッチンはシステムキッチン仕様になっていますので、お料理好きの方にもぴったり。バス・トイレは別なので、のんびりお風呂タイムも楽しめるでしょう。また、雨の日でも浴室乾燥機を使えば、お洗濯も問題ありません。
通信設備面では、インターネット接続が可能です。また、BSアンテナ・CSアンテナがありCATVにも対応しているので、おうち時間も充実するでしょう(別途工事、契約料が必要な場合あり)。
建物にはエレベーターがついているので、重い荷物があっても安心。共用部には宅配ボックスが設定されているので、不在の時にも荷物を受け取ることができます。
お金・契約の情報
※「-」と表示されているものは、実際は料金が発生するものもございます。詳細はお問い合わせください。
| 家賃 | 13.6万円 | 管理費・共益費 | 7,000円 |
|---|---|---|---|
| 敷金 | 13.6万円 | 礼金 | 13.6万円 |
| 入居決定でお祝い金最大100,000円 | |||
| 保証金 | - | 償却・敷引 | - |
| 住宅保険料 | - | 更新料 | - |
| 保証会社利用 | 必須 | 保証会社名 | - |
| 保証会社費用 | - | 保証会社備考 | 保証会社利用必 初回保証委託料:月額賃料等の50%、2年目以降:10000円/年 詳細はお問い合わせください。 |
| 契約形態 | - | 契約期間 | - |
| 入居・引渡期間 | 即時 | 現況 | - |
| 契約備考 | 通勤管理 合計2.75万円(内訳:鍵交換代2.75万円) 更新料 新賃料1.00ヶ月分 1DK 普通借家2年 損保【1.8万円2年】 バストイレ別、バルコニー、エアコン、ガスコンロ対応、クロゼット、TVインターホン、オートロック、室内洗濯置、陽当り良好、シューズボックス、システムキッチン、南向き、温水洗浄便座、エレベーター、洗面所独立、2口コンロ、駐輪場、宅配ボックス、即入居可、閑静な住宅地、BS・CS、防犯カメラ、保証人不要、全居室フローリング、ディンプルキー、ネット専用回線、眺望良好、24時間換気システム、南面リビング、耐火構造、耐震構造、防犯ガラス、高気密住宅、2駅利用可、3駅以上利用可、駅前、防犯強化地域、駅徒歩5分以内、駅徒歩10分以内、耐風構造、24時間ゴミ出し可、敷地内ごみ置き場、東南向き、南西向き、日勤管理、備付食器棚、都市ガス、南面バルコニー、通風良好 | ||
部屋の情報
| 間取り | 1DK | 専有面積 | 30.54m2 |
|---|---|---|---|
| 所在階 / 向き | 6階 / 南東 | バルコニー面積 | - |
| 水道 / ガス | - | ||
| 設備 | バス・トイレ別、2階以上、オートロック、テレビドアホン、宅配ボックス、インターネット対応、システムキッチン、エアコン、エレベーター、温水洗浄便座、南向き、バルコニー、フローリング、洗髪洗面化粧台、2口コンロ、コンロ:ガス、CSアンテナ、BSアンテナ、洗濯機:室内 | ||
| 当社物件ID | 24479583 | ||
建物の情報
| 建物名 | ワイズ柳橋 | ||
|---|---|---|---|
| 所在地 | 東京都台東区柳橋 | ||
| 交通 | 都営浅草線 浅草橋駅 徒歩3分 都営大江戸線 蔵前駅 徒歩11分 JR総武線 両国駅 徒歩17分 | ||
| 階数 | 12階建 | 総戸数 | - |
| 築年月 | 2017年07月 / 築9年 | エレベーター | あり |
| 駐車場 | なし | バイク置き場 | - |
| 駐輪場 | あり | 管理人/管理会社 | - |
| 周辺環境 | その他 スーパーマーケット リコス 蔵前2丁目店(スーパー)まで438m その他 ファミリーマート 都営浅草橋駅前店(コンビニ)まで250m その他 セブンイレブン 台東浅草橋1丁目店(コンビニ)まで285m その他 セブンイレブン 台東蔵前2丁目店(コンビニ)まで309m | ||
| 建物種別 | マンション | 建物構造 | RC(鉄筋コンクリート) |
この部屋の取扱い不動産会社
| 会社名 | PRA(株)青山店(SUUMO経由) | ||
|---|---|---|---|
| 所在地 | 東京都港区北青山1-3-3 三橋ビル8階 | 交通 | - |
| 営業時間 | 9:00~20:00 | 定休日 | 無し |
| 免許番号 | 東京都知事109775 | 取引態様 | 仲介 |
| 不動産会社管理番号 | 100445298443 | 当社管理番号 | 89 |
| 所属団体 | (公社)東京都宅地建物取引業協会会員 | ||
| 公正取引協議会 | (公社)首都圏不動産公正取引協議会加盟 | ||
| 取扱い物件情報 | 物件詳細へ | ||
※各種情報と現状に差異がある場合は、現状優先となります。問い合わせをすることで、より詳しい条件、情報を確認する事ができます。
提供:PRA(株)青山店(SUUMO経由)
この物件が気になったら掲載期限まであと10日
ワイズ柳橋に条件(家賃・エリア)が近い物件一覧
| 写真 | 家賃 管理費等 | 敷金 礼金 | 間取り 専有面積 | 築年数 | 最寄り駅 所在地 | キープ | 詳細 |
|---|---|---|---|---|---|---|---|
マンション レジディア浅草吾妻橋(1K/3階) | |||||||
![]() | 10.3万円 1万円 | なし なし | 1K 21.48m2 | 築19年 | 東京都浅草線 本所吾妻橋駅 徒歩3分 東京地下鉄銀座線 浅草駅(東武・都営・メトロ) 徒歩5分 東京都墨田区吾妻橋1丁目 | 詳細を見る | |
マンション チェスターコート御茶ノ水(1K/2階) | |||||||
![]() | 13.9万円 1万円 | なし なし | 1K 27.09m2 | 築19年 | 東京都新宿線 小川町駅(東京) 徒歩3分 東京地下鉄千代田線 新御茶ノ水駅 徒歩5分 東京地下鉄丸ノ内線 淡路町駅 徒歩6分 東京都千代田区神田小川町3丁目 | 詳細を見る | |
マンション LUMINOUS浅草橋駅前(1K/4階) | |||||||
![]() | 12.4万円 1万円 | なし なし | 1K 25.92m2 | 築22年 | 東京都浅草線 浅草橋駅 徒歩3分 東京都台東区柳橋1丁目 | 詳細を見る | |
マンション ラティエラ上野入谷(1DK/6階) | |||||||
![]() | 11.5万円 1万円 | 11.5万円 なし | 1DK 25.11m2 | 築3年 | 東京地下鉄日比谷線 入谷駅(東京) 徒歩4分 山手線 上野駅 徒歩16分 東京都台東区下谷2丁目 | 詳細を見る | |
マンション ZOOM飯田橋(ワンルーム/4階) | |||||||
![]() | 14.9万円 9,000円 | 14.9万円 なし | ワンルーム 25.44m2 | 築13年 | 東京都大江戸線 飯田橋駅 徒歩9分 総武・中央緩行線 飯田橋駅 徒歩10分 東京地下鉄丸ノ内線 後楽園駅 徒歩10分 東京都文京区水道1丁目 | 詳細を見る | |
マンション アジールコート後楽園(1DK/2階) | |||||||
![]() | 15.1万円 1万円 | 15.1万円 なし | 1DK 27.6m2 | 築1年 | 東京都三田線 春日駅(東京) 徒歩7分 東京地下鉄丸ノ内線 後楽園駅 徒歩10分 東京都文京区白山1丁目 | 詳細を見る | |
マンション レジーナ浅草橋(1LDK/7階) | |||||||
![]() | 13.5万円 1.2万円 | なし 13.5万円 | 1LDK 35.33m2 | 築20年 | JR総武線 浅草橋駅 徒歩6分 都営浅草線 蔵前駅 徒歩8分 都営大江戸線 新御徒町駅 徒歩10分 東京都台東区浅草橋 | 詳細を見る | |
マンション AZEST浅草(1LDK/7階) | |||||||
![]() | 17.5万円 1.5万円 | なし なし | 1LDK 40.7m2 | 築4年 | 東武伊勢崎・大師線 浅草駅(東武・都営・メトロ) 徒歩10分 東京都台東区浅草6丁目 | 詳細を見る | |








