賃貸マンション
ファーストフィオーレ東灘の賃貸物件情報(1K/8階)
| 家賃 | 管理費等 | 敷金 | 礼金 | 間取り | 専有面積 |
|---|---|---|---|---|---|
| 6.74万円 | 1万円 | なし | なし | 1K | 25.52m2 |
入居決定でお祝い金最大100,000円
- 保証金
- -
- 償却・敷引
- -
- 築年数
- 新築(築1年)
- 所在階
- 8階
- 向き
- -
Point
「ファーストフィオーレ東灘」のここがイチオシ。宅配ボックスがあればいつでも荷物を受け取ることができるので、配達時間に拘束されることなく生活することができます。駅から徒歩6分の物件なら、駅前のお買い物も便利です。神戸市東灘区エリアで生活を始める予定なら、阪神本線青木近くのお住まいを探してみませんか。そ
提供:センチュリー21 (株)リライフ神戸三宮店(SUUMO経由)

詳細情報 ファーストフィオーレ東灘
物件紹介
ファーストフィオーレ東灘は阪神本線青木駅から徒歩5分にあり、駅近で通勤通学に便利なマンションです。
このお部屋は2階以上に位置しているので、通行人や周囲の住人からの視線が気になりにくく、防犯面でも安心。建物のエントランスはオートロックがついており、インターホンにはTVモニタもついているため、相手の顔を確認してから来客対応することができます。
おしゃれなデザイナーズ物件!また、楽器相談が可能な物件となっているので、楽器演奏をお考えの方はぜひ相談してみてください。人気の南向き・フローリングのお部屋。角部屋でもあるため、周囲の居住者の生活音も気になりにくい場所です。キッチンはシステムキッチン仕様になっていますので、お料理好きの方にもぴったり。バス・トイレは別なので、のんびりお風呂タイムも楽しめるでしょう。また、雨の日でも浴室乾燥機を使えば、お洗濯も問題ありません。
通信設備面では、インターネットが無料で使えるので、月々の出費を抑えられるのも魅力です。また、BSアンテナ・CSアンテナがありCATVにも対応しているので、おうち時間も充実するでしょう(別途工事、BS・CS・CATVの契約料等が必要な場合あり)。
建物にはエレベーターがついているので、重い荷物があっても安心。共用部には宅配ボックスが設定されているので、不在の時にも荷物を受け取ることができます。また、ペット飼育の相談ができますので、あなたの大切な家族の一員も快適に暮らせるか、ぜひ確認してみてください。
このお部屋は2階以上に位置しているので、通行人や周囲の住人からの視線が気になりにくく、防犯面でも安心。建物のエントランスはオートロックがついており、インターホンにはTVモニタもついているため、相手の顔を確認してから来客対応することができます。
おしゃれなデザイナーズ物件!また、楽器相談が可能な物件となっているので、楽器演奏をお考えの方はぜひ相談してみてください。人気の南向き・フローリングのお部屋。角部屋でもあるため、周囲の居住者の生活音も気になりにくい場所です。キッチンはシステムキッチン仕様になっていますので、お料理好きの方にもぴったり。バス・トイレは別なので、のんびりお風呂タイムも楽しめるでしょう。また、雨の日でも浴室乾燥機を使えば、お洗濯も問題ありません。
通信設備面では、インターネットが無料で使えるので、月々の出費を抑えられるのも魅力です。また、BSアンテナ・CSアンテナがありCATVにも対応しているので、おうち時間も充実するでしょう(別途工事、BS・CS・CATVの契約料等が必要な場合あり)。
建物にはエレベーターがついているので、重い荷物があっても安心。共用部には宅配ボックスが設定されているので、不在の時にも荷物を受け取ることができます。また、ペット飼育の相談ができますので、あなたの大切な家族の一員も快適に暮らせるか、ぜひ確認してみてください。
お金・契約の情報
※「-」と表示されているものは、実際は料金が発生するものもございます。詳細はお問い合わせください。
| 家賃 | 6.74万円 | 管理費・共益費 | 1万円 |
|---|---|---|---|
| 敷金 | なし | 礼金 | なし |
| 入居決定でお祝い金最大100,000円 | |||
| 保証金 | - | 償却・敷引 | - |
| 住宅保険料 | 住宅保険料あり(2年) | 更新料 | - |
| その他費用 | クラブ入会金:5,500円 | ||
| 保証会社利用 | 必須 | 保証会社名 | - |
| 保証会社費用 | - | 保証会社備考 | 初回50%、1%/月、20,000円/年 |
| 契約形態 | - | 契約期間 | 1年 |
| 入居・引渡期間 | 即時 | 現況 | 空室 |
| 入居可能条件 | 学生可、ペット相談 | ||
| 契約備考 | 新生活を失敗せず、スタートさせたいならこちらの「ファーストフィオーレ東灘」はいかがでしょうか。収納はクロゼット・シューズボックスなどが備え付けられているので、衣類や日用品の収納に重宝します。住み替えにもおすすめ、憧れの新築物件です。快適な暮らしには、キッチンは欠かせませんよね。阪神本線青木周辺で住まい探しをするのであれば、CHINTAI ROOM 六甲本店 キュリアにご依頼ください。 | ||
部屋の情報
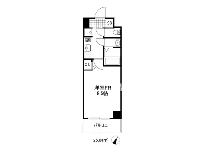
| 間取り | 1K | 専有面積 | 25.52m2 |
|---|---|---|---|
| 所在階 / 向き | 8階 / - | バルコニー面積 | - |
| 水道 / ガス | 水道【公営】、ガス【都市】 | ||
| 設備 | バス・トイレ別、オートロック、テレビドアホン、宅配ボックス、浴室乾燥機、光ファイバー対応、システムキッチン、エアコン、エレベーター、温水洗浄便座、バルコニー、フローリング、洗髪洗面化粧台、2口コンロ、コンロ:ガス、CATV、CSアンテナ、BSアンテナ、シャワー、給湯、洗濯機:室内 | ||
| 当社物件ID | 159488720 | ||
建物の情報
| 建物名 | ファーストフィオーレ東灘 | ||
|---|---|---|---|
| 所在地 | 兵庫県神戸市東灘区青木2丁目 14-20 | ||
| 交通 | 阪神電鉄本線 青木駅 徒歩6分 阪神電鉄本線 深江駅(兵庫) 徒歩15分 | ||
| 階数 | 10階建 | 総戸数 | 54戸 |
| 築年月 | 2025年09月 / 新築(築1年) | エレベーター | あり |
| 駐車場 | - | バイク置き場 | あり |
| 駐輪場 | あり | 管理人/管理会社 | - |
| 建物種別 | マンション | 建物構造 | RC(鉄筋コンクリート) |
この部屋の取扱い不動産会社
| 会社名 | CHINTAI ROOM 六甲本店 | ||
|---|---|---|---|
| 所在地 | 兵庫県 神戸市灘区森後町1丁目4番10号 フレグランス六甲1F | 交通 | JR東海道本線「六甲道駅」徒歩1分 |
| 営業時間 | 10:00-19:30 | 定休日 | なし |
| 免許番号 | 兵庫県知事(2)第11891号 | 取引態様 | 仲介 |
| 不動産会社管理番号 | 1857734 | 当社管理番号 | 377 |
| 取扱い物件情報 | 物件詳細へ | ||
※各種情報と現状に差異がある場合は、現状優先となります。問い合わせをすることで、より詳しい条件、情報を確認する事ができます。
提供:CHINTAI ROOM 六甲本店
この物件が気になったら掲載期限まであと5日
ファーストフィオーレ東灘の空き部屋一覧
全部で24の空き部屋があります。
ファーストフィオーレ東灘に条件(家賃・エリア)が近い物件一覧
| 写真 | 家賃 管理費等 | 敷金 礼金 | 間取り 専有面積 | 築年数 | 最寄り駅 所在地 | キープ | 詳細 |
|---|---|---|---|---|---|---|---|
アパート フルール恵比須(ワンルーム/3階) | |||||||
![]() | 5.9万円 6,000円 | 2万円 10万円 | ワンルーム 26.52m2 | 築6年 | 神戸電鉄粟生線 恵比須駅 徒歩9分 神戸電鉄粟生線 三木上の丸駅 徒歩13分 神戸電鉄粟生線 三木駅(神戸電鉄) 徒歩22分 兵庫県三木市大塚 | 詳細を見る | |
アパート シャイン・アシューレ(1LDK/2階) | |||||||
![]() | 5.7万円 5,500円 | 6万円 10万円 | 1LDK 36m2 | 築20年 | JR山陽本線 大久保駅(兵庫) 徒歩12分 山陽電鉄本線 中八木駅 徒歩22分 兵庫県明石市大久保町大久保町 | 詳細を見る | |
アパート サンロード・Ⅳ(1K/1階) | |||||||
![]() | 4.75万円 4,000円 | なし 4.75万円 | 1K 33.15m2 | 築23年 | 山陽本線 魚住駅 徒歩15分 山陽電気鉄道本線 山陽魚住駅 徒歩28分 兵庫県明石市魚住町清水 | 詳細を見る | |
アパート 山陽本線 朝霧駅 徒歩8分 築3年(2LDK/1階) | |||||||
![]() | 10.7万円 5,000円 | なし 21.4万円 | 2LDK 52.23m2 | 築3年 | 山陽本線 朝霧駅 徒歩8分 山陽電気鉄道本線 大蔵谷駅 徒歩10分 山陽電気鉄道本線 人丸前駅 徒歩16分 兵庫県明石市朝霧南町3丁目 | 詳細を見る | |
アパート ヒカルサ稲美天満Ⅰ(2LDK/2階) | |||||||
![]() | 8.05万円 3,900円 | なし 8.05万円 | 2LDK 56.48m2 | 新築 | 兵庫県加古郡稲美町六分一 | 詳細を見る | |
アパート グランシード住吉(2LDK/1階) | |||||||
![]() | 8.9万円 なし | 2万円 なし | 2LDK 50m2 | 築27年 | 山陽電気鉄道本線 山陽魚住駅 徒歩3分 山陽電気鉄道本線 西江井ケ島駅 徒歩12分 山陽本線 魚住駅 徒歩15分 兵庫県明石市魚住町住吉2丁目 | 詳細を見る | |
マンション ビレッジハウス志染(3DK/3階) | |||||||
![]() | 6万円 なし | なし なし | 3DK 56.5m2 | 築46年 | 神戸電鉄粟生線 志染駅 徒歩19分 神戸電鉄粟生線 恵比須駅 徒歩29分 神戸電鉄粟生線 広野ゴルフ場前駅 徒歩29分 兵庫県三木市志染町西自由が丘 | 詳細を見る | |
アパート グランドールⅡ(1LDK/1階) | |||||||
![]() | 7.7万円 3,000円 | なし 7.7万円 | 1LDK 44.17m2 | 新築 | 神戸電鉄粟生線 広野ゴルフ場前駅 徒歩10分 神戸電鉄粟生線 志染駅 徒歩19分 兵庫県三木市志染町東自由が丘1丁目 | 詳細を見る | |







