賃貸マンション
プレール・ドゥーク東中野の賃貸物件情報(1K/4階)
| 家賃 | 管理費等 | 敷金 | 礼金 | 間取り | 専有面積 |
|---|---|---|---|---|---|
| 12万円 | 1万円 | 12万円 | 12万円 | 1K | 25.36m2 |
入居決定でお祝い金最大100,000円
- 保証金
- -
- 償却・敷引
- -
- 築年数
- 築10年
- 所在階
- 4階
- 向き
- 南
Point
個人事業主の方や自営業の方でもお気軽にご相談ください。どの検索サイトに載っているお部屋もご紹介可能!
提供:(株)アトリエハウス(SUUMO経由)

詳細情報 プレール・ドゥーク東中野
物件紹介
プレール・ドゥーク東中野はJR中央線東中野駅から徒歩5分にあり、駅近で通勤通学に便利なマンションです。
このお部屋は2階以上に位置しているので、通行人や周囲の住人からの視線が気になりにくく、防犯面でも安心。建物のエントランスはオートロックがついており、インターホンにはTVモニタもついているため、相手の顔を確認してから来客対応することができます。
人気の南向きのお部屋。また、フローリングなのでお掃除もラクラク。キッチンはシステムキッチン仕様になっていますので、お料理好きの方にもぴったり。バス・トイレは別なので、のんびりお風呂タイムも楽しめるでしょう。また、雨の日でも浴室乾燥機を使えば、お洗濯も問題ありません。
通信設備面では、インターネット接続が可能です。また、CATVにも対応しているので、おうち時間も充実するでしょう(別途工事、契約料が必要な場合あり)。
建物にはエレベーターがついているので、重い荷物があっても安心。共用部には宅配ボックスが設定されているので、不在の時にも荷物を受け取ることができます。また、ペット飼育の相談ができますので、あなたの大切な家族の一員も快適に暮らせるか、ぜひ確認してみてください。
このお部屋は2階以上に位置しているので、通行人や周囲の住人からの視線が気になりにくく、防犯面でも安心。建物のエントランスはオートロックがついており、インターホンにはTVモニタもついているため、相手の顔を確認してから来客対応することができます。
人気の南向きのお部屋。また、フローリングなのでお掃除もラクラク。キッチンはシステムキッチン仕様になっていますので、お料理好きの方にもぴったり。バス・トイレは別なので、のんびりお風呂タイムも楽しめるでしょう。また、雨の日でも浴室乾燥機を使えば、お洗濯も問題ありません。
通信設備面では、インターネット接続が可能です。また、CATVにも対応しているので、おうち時間も充実するでしょう(別途工事、契約料が必要な場合あり)。
建物にはエレベーターがついているので、重い荷物があっても安心。共用部には宅配ボックスが設定されているので、不在の時にも荷物を受け取ることができます。また、ペット飼育の相談ができますので、あなたの大切な家族の一員も快適に暮らせるか、ぜひ確認してみてください。
お金・契約の情報
※「-」と表示されているものは、実際は料金が発生するものもございます。詳細はお問い合わせください。
| 家賃 | 12万円 | 管理費・共益費 | 1万円 |
|---|---|---|---|
| 敷金 | 12万円 | 礼金 | 12万円 |
| 入居決定でお祝い金最大100,000円 | |||
| 保証金 | - | 償却・敷引 | - |
| 住宅保険料 | - | 更新料 | - |
| 保証会社利用 | 必須 | 保証会社名 | - |
| 保証会社費用 | - | 保証会社備考 | 保証会社利用必 保証会社利用必須。 |
| 契約形態 | - | 契約期間 | - |
| 入居・引渡期間 | 即時 | 現況 | - |
| 入居可能条件 | ペット相談 | ||
| 契約備考 | 巡回管理/★ペット飼育可、初めてのひとり暮らし、ご家族でお引越しの方もご安心ください!専門スタッフが数多くの物件を丁寧なご対応で提供致します。ご内覧はお車にてご案内いたします!クレジットカード決済可能です!★ 合計4.5万円(内訳:カギ交換費用30000円/24時間サポート15000円) 1K ペット相談 普通借家2年 バストイレ別、バルコニー、エアコン、ガスコンロ対応、クロゼット、フローリング、TVインターホン、浴室乾燥機、オートロック、室内洗濯置、陽当り良好、シューズボックス、システムキッチン、南向き、温水洗浄便座、脱衣所、エレベーター、洗面所独立、洗面化粧台、2口コンロ、宅配ボックス、CATV、光ファイバー、即入居可、閑静な住宅地、最上階、防犯カメラ、ペット相談、分譲賃貸、敷金1ヶ月、仲手0.55ヶ月、ディンプルキー、駅まで平坦、眺望良好、ダブルロックキー、保証金不要、24時間換気システム、平坦地、3駅以上利用可、3沿線以上利用可、駅徒歩5分以内、駅徒歩10分以内、24時間ゴミ出し可、敷地内ごみ置き場、都市ガス、高速ネット対応、礼金1ヶ月、IT重説対応物件、初期費用カード決済可 | ||
部屋の情報
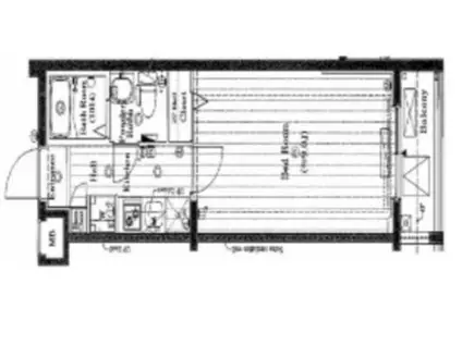
| 間取り | 1K | 専有面積 | 25.36m2 |
|---|---|---|---|
| 所在階 / 向き | 4階 / 南 | バルコニー面積 | - |
| 水道 / ガス | - | ||
| 設備 | バス・トイレ別、2階以上、オートロック、テレビドアホン、宅配ボックス、浴室乾燥機、インターネット対応、システムキッチン、エアコン、エレベーター、温水洗浄便座、南向き、バルコニー、フローリング、洗髪洗面化粧台、2口コンロ、コンロ:ガス、CATV、洗濯機:室内 | ||
| 当社物件ID | 21137998 | ||
建物の情報
| 建物名 | プレール・ドゥーク東中野 | ||
|---|---|---|---|
| 所在地 | 東京都中野区東中野 | ||
| 交通 | JR中央線 東中野駅 徒歩5分 都営大江戸線 東中野駅 徒歩8分 東京メトロ丸ノ内線 中野坂上駅 徒歩13分 | ||
| 階数 | 4階建 | 総戸数 | - |
| 築年月 | 2016年04月 / 築10年 | エレベーター | あり |
| 駐車場 | なし | バイク置き場 | - |
| 駐輪場 | - | 管理人/管理会社 | - |
| 周辺環境 | その他 マルエツ中野中央店(スーパー)まで407m その他 セブンイレブン東中野1丁目店(コンビニ)まで212m その他 ミネドラッグユニゾンモール東中野店(ドラッグストア)まで449m | ||
| 建物種別 | マンション | 建物構造 | RC(鉄筋コンクリート) |
この部屋の取扱い不動産会社
| 会社名 | (株)アトリエハウス(SUUMO経由) | ||
|---|---|---|---|
| 所在地 | 東京都新宿区西新宿7-9-10プルミエ西新宿1階 | 交通 | - |
| 営業時間 | 10:00~19:00(18:45 最終受付) | 定休日 | 毎週 水曜日 |
| 免許番号 | 東京都知事104970 | 取引態様 | 仲介 |
| 不動産会社管理番号 | 100477238415 | 当社管理番号 | 89 |
| 所属団体 | (公社)全日本不動産協会東京都本部会員 | ||
| 公正取引協議会 | (公社)首都圏不動産公正取引協議会加盟 | ||
| 取扱い物件情報 | 物件詳細へ | ||
※各種情報と現状に差異がある場合は、現状優先となります。問い合わせをすることで、より詳しい条件、情報を確認する事ができます。
提供:(株)アトリエハウス(SUUMO経由)
この物件が気になったら掲載期限まであと10日
プレール・ドゥーク東中野に条件(家賃・エリア)が近い物件一覧
| 写真 | 家賃 管理費等 | 敷金 礼金 | 間取り 専有面積 | 築年数 | 最寄り駅 所在地 | キープ | 詳細 |
|---|---|---|---|---|---|---|---|
アパート シエル・クラルテ(1LDK/2階) | |||||||
![]() | 13.8万円 3,000円 | 13.8万円 なし | 1LDK 33.06m2 | 新築 | 都電荒川線 新庚申塚駅 徒歩5分 都営三田線 西巣鴨駅 徒歩10分 JR山手線 大塚駅(東京) 徒歩11分 東京都豊島区巣鴨 | 詳細を見る | |
マンション コンフォート荻窪(1K/2階) | |||||||
![]() | 9.3万円 1万円 | 9.3万円 9.3万円 | 1K 30m2 | 築32年 | JR中央線 荻窪駅 徒歩9分 JR中央線 西荻窪駅 徒歩22分 西武新宿線 井荻駅 徒歩30分 東京都杉並区上荻 | 詳細を見る | |
アパート ARTE アルテ(1LDK/1階) | |||||||
![]() | 13.5万円 5,000円 | 13.5万円 27万円 | 1LDK 36.27m2 | 築11年 | 西武池袋線 江古田駅 徒歩7分 東京メトロ有楽町線 小竹向原駅 徒歩8分 都営大江戸線 新江古田駅 徒歩15分 東京都練馬区小竹町 | 詳細を見る | |
マンション ル・ボワ平和台(1K/2階) | |||||||
![]() | 10.3万円 5,000円 | 10.3万円 12.36万円 | 1K 25.52m2 | 築17年 | 東京メトロ有楽町線 平和台駅(東京) 徒歩3分 都営大江戸線 練馬春日町駅 徒歩18分 東京メトロ副都心線 地下鉄赤塚駅 徒歩19分 東京都練馬区北町 | 詳細を見る | |
マンション プラウドフラット神楽坂(1K/6階) | |||||||
![]() | 11.9万円 8,000円 | 11.9万円 なし | 1K 21.6m2 | 築20年 | 東京メトロ東西線 神楽坂駅 徒歩5分 都営大江戸線 牛込神楽坂駅 徒歩7分 東京メトロ有楽町線 江戸川橋駅 徒歩11分 東京都新宿区東五軒町 | 詳細を見る | |
マンション ABE BUILDING(ワンルーム/5階) | |||||||
![]() | 12.3万円 1万円 | 12.3万円 12.3万円 | ワンルーム 27.09m2 | 築19年 | JR山手線 恵比寿駅 徒歩4分 東京メトロ日比谷線 広尾駅 徒歩15分 東急東横線 代官山駅 徒歩15分 東京都渋谷区恵比寿 | 詳細を見る | |
マンション プルミエ荻窪(1K/1階) | |||||||
![]() | 9.8万円 5,000円 | 9.8万円 9.8万円 | 1K 28.5m2 | 築36年 | 京王電鉄井の頭線 高井戸駅 徒歩14分 東京都杉並区荻窪1丁目 | 詳細を見る | |








/105x80-f1-q70-wp1)