賃貸マンション
ベラジオ雅び京都西院Ⅱの賃貸物件情報(1K/4階)
| 家賃 | 管理費等 | 敷金 | 礼金 | 間取り | 専有面積 |
|---|---|---|---|---|---|
| 7.18万円 | 7,440円 | なし | 7.924万円 | 1K | 24.38m2 |
入居決定でお祝い金最大100,000円
Point
セキュリティ面は、TVインターホン・オートロックなどを設置しているので安全面でも優れております。
提供:ハウスコム株式会社 桂店

詳細情報 ベラジオ雅び京都西院Ⅱ
物件紹介
ベラジオ雅び京都西院Ⅱは阪急電鉄京都線西院駅から徒歩14分にあるマンションです。
このお部屋は2階以上に位置しているので、通行人や周囲の住人からの視線が気になりにくく、防犯面でも安心。建物のエントランスはオートロックがついており、インターホンにはTVモニタもついているため、相手の顔を確認してから来客対応することができます。
フローリングのお部屋なのでお掃除もラクラク。キッチンはシステムキッチン仕様になっていますので、お料理好きの方にもぴったり。バス・トイレは別なので、のんびりお風呂タイムも楽しめるでしょう。また、雨の日でも浴室乾燥機を使えば、お洗濯も問題ありません。
通信設備面では、インターネットが無料で使えるので、月々の出費を抑えられるのも魅力です。また、CATVにも対応しているので、おうち時間も充実するでしょう(別途工事、CATVの契約料等が必要な場合あり)。
建物にはエレベーターがついているので、重い荷物があっても安心。共用部には宅配ボックスが設定されているので、不在の時にも荷物を受け取ることができます。また、ペット飼育の相談ができますので、あなたの大切な家族の一員も快適に暮らせるか、ぜひ確認してみてください。
コンビニまで徒歩4分の場所にあり、日用品や食料品のお買い物にも便利です。
このお部屋は2階以上に位置しているので、通行人や周囲の住人からの視線が気になりにくく、防犯面でも安心。建物のエントランスはオートロックがついており、インターホンにはTVモニタもついているため、相手の顔を確認してから来客対応することができます。
フローリングのお部屋なのでお掃除もラクラク。キッチンはシステムキッチン仕様になっていますので、お料理好きの方にもぴったり。バス・トイレは別なので、のんびりお風呂タイムも楽しめるでしょう。また、雨の日でも浴室乾燥機を使えば、お洗濯も問題ありません。
通信設備面では、インターネットが無料で使えるので、月々の出費を抑えられるのも魅力です。また、CATVにも対応しているので、おうち時間も充実するでしょう(別途工事、CATVの契約料等が必要な場合あり)。
建物にはエレベーターがついているので、重い荷物があっても安心。共用部には宅配ボックスが設定されているので、不在の時にも荷物を受け取ることができます。また、ペット飼育の相談ができますので、あなたの大切な家族の一員も快適に暮らせるか、ぜひ確認してみてください。
コンビニまで徒歩4分の場所にあり、日用品や食料品のお買い物にも便利です。
お金・契約の情報
※「-」と表示されているものは、実際は料金が発生するものもございます。詳細はお問い合わせください。
| 家賃 | 7.18万円 | 管理費・共益費 | 7,440円 |
|---|---|---|---|
| 敷金 | なし | 礼金 | 7.924万円 |
| 入居決定でお祝い金最大100,000円 | |||
| 保証金 | - | 償却・敷引 | - |
| 住宅保険料 | 1円 | 更新料 | - |
| その他費用 | 24時間サポート:1.65万円 | ||
| 保証会社利用 | 必須 | 保証会社名 | - |
| 保証会社費用 | - | 保証会社備考 | 加入要 |
| 契約形態 | - | 契約期間 | 2年 |
| 入居・引渡期間 | 2026年03月 | 現況 | 未完成 |
| 入居可能条件 | ペット相談 | ||
| 契約備考 | ペット飼育時敷金積み増し料金(償却)有り その他設備/条件:室内洗濯機置き場、独立洗面台、防犯カメラ、クローゼット、シューズボックス、分譲賃貸 | ||
部屋の情報
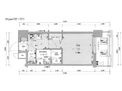
| 間取り | 1K | 専有面積 | 24.38m2 |
|---|---|---|---|
| 間取り詳細 | 洋室(7.5帖) | ||
| 所在階 / 向き | 4階 / 東 | バルコニー面積 | - |
| 水道 / ガス | - | ||
| 設備 | バス・トイレ別、オートロック、テレビドアホン、宅配ボックス、浴室乾燥機、システムキッチン、エアコン、エレベーター、温水洗浄便座、バルコニー、フローリング、洗髪洗面化粧台、2口コンロ、コンロ:ガス、CATV、インターネット使用料無料、シャワー、給湯 | ||
| 当社物件ID | 160009857 | ||
建物の情報
| 建物名 | ベラジオ雅び京都西院Ⅱ | ||
|---|---|---|---|
| 所在地 | 京都府京都市右京区西院月双町 | ||
| 交通 | 阪急電鉄京都線 西院駅(阪急) 徒歩14分 阪急電鉄京都線 西京極駅 徒歩14分 | ||
| 階数 | 7階建 | 総戸数 | 56戸 |
| 築年月 | 2026年03月 / 新築 | エレベーター | あり |
| 駐車場 | 空有 1.5万円/月 | バイク置き場 | あり |
| 駐輪場 | あり | 管理人/管理会社 | - |
| 周辺環境 | コンビニ 徒歩4分(291m) 販売店 徒歩4分(286m) その他 ドラッグストア その他 公園 その他 銀行 その他 * | ||
| 建物種別 | マンション | 建物構造 | RC(鉄筋コンクリート) |
この部屋の取扱い不動産会社
| 会社名 | ハウスコム株式会社 西院店 | ||
|---|---|---|---|
| 所在地 | 京都府京都市右京区13番地西院阪急プラザ1階 | 交通 | - |
| 営業時間 | 10:00~18:00 | 定休日 | 水曜定休 |
| 免許番号 | 国土交通大臣(5)第6094号 | 取引態様 | 仲介 |
| 不動産会社管理番号 | HC2-5275601-406-0256 | 当社管理番号 | 468 |
| 所属団体 | 、 | ||
| 取扱い物件情報 | 物件詳細へ | ||
※各種情報と現状に差異がある場合は、現状優先となります。問い合わせをすることで、より詳しい条件、情報を確認する事ができます。
提供:ハウスコム株式会社 西院店
この物件が気になったら掲載期限まであと4日
ベラジオ雅び京都西院Ⅱの空き部屋一覧
全部で48の空き部屋があります。
ベラジオ雅び京都西院Ⅱに条件(家賃・エリア)が近い物件一覧
| 写真 | 家賃 管理費等 | 敷金 礼金 | 間取り 専有面積 | 築年数 | 最寄り駅 所在地 | キープ | 詳細 |
|---|---|---|---|---|---|---|---|
マンション 阪急電鉄京都線 西京極駅 徒歩15分 築34年(ワンルーム/3階) | |||||||
![]() | 4.9万円 なし | なし なし | ワンルーム 38m2 | 築34年 | 阪急電鉄京都線 西京極駅 徒歩15分 京都市東西線 太秦天神川駅 徒歩20分 京都府京都市右京区西京極東衣手町 | 詳細を見る | |
マンション 阪急電鉄京都線 西院駅(阪急) 徒歩5分 築33年(1K/3階) | |||||||
![]() | 6.3万円 5,000円 | なし なし | 1K 28m2 | 築33年 | 阪急電鉄京都線 西院駅(阪急) 徒歩5分 京都市東西線 西大路御池駅 徒歩14分 京都府京都市右京区西院矢掛町 | 詳細を見る | |
マンション 阪急電鉄京都線 西院駅(阪急) 徒歩7分 築16年(1K/5階) | |||||||
![]() | 7万円 6,000円 | なし 7万円 | 1K 36.55m2 | 築16年 | 阪急電鉄京都線 西院駅(阪急) 徒歩7分 阪急電鉄京都線 大宮駅(京都) 徒歩25分 京都府京都市右京区西院乾町 | 詳細を見る | |
マンション ゼフィランサス西大路(1LDK/6階) | |||||||
![]() | 9.7万円 5,000円 | なし 9.7万円 | 1LDK 35.26m2 | 築1年 | JR東海道本線 西大路駅 徒歩13分 JR山陰本線 梅小路京都西駅 徒歩17分 阪急京都線 西京極駅 徒歩20分 京都府京都市下京区西七条南衣田町 | 詳細を見る | |
マンション 阪急電鉄京都線 西京極駅 徒歩10分 築35年(1K/4階) | |||||||
![]() | 5.1万円 6,000円 | なし なし | 1K 24.18m2 | 築35年 | 阪急電鉄京都線 西京極駅 徒歩10分 京都市東西線 太秦天神川駅 徒歩20分 京都府京都市右京区西京極郡町 | 詳細を見る | |
マンション 山陰本線 太秦駅(JR) 徒歩7分 築15年(1LDK/3階) | |||||||
![]() | 7.6万円 7,000円 | 7.6万円 7.6万円 | 1LDK 46.94m2 | 築15年 | 山陰本線 太秦駅(JR) 徒歩7分 京福嵐山本線 有栖川駅 徒歩8分 京都府京都市右京区太秦開日町 | 詳細を見る | |
マンション 京福北野線 鳴滝駅 徒歩24分 築40年(ワンルーム/1階) | |||||||
![]() | 5万円 なし | なし 5万円 | ワンルーム 31.44m2 | 築40年 | 京福北野線 鳴滝駅 徒歩24分 山陰本線 太秦駅(JR) 徒歩27分 京都府京都市右京区梅ケ畑向ノ地町 | 詳細を見る | |
アパート 山陰本線 花園駅(京都) 徒歩3分 築1年(1LDK/1階) | |||||||
![]() | 7.5万円 4,000円 | なし 7.5万円 | 1LDK 30m2 | 築1年 | 山陰本線 花園駅(京都) 徒歩3分 山陰本線 円町駅 徒歩14分 京都府京都市右京区花園伊町 | 詳細を見る | |









