賃貸アパート
KLEIS西八王子Ⅱの賃貸物件情報(1LDK/3階)
| 家賃 | 管理費等 | 敷金 | 礼金 | 間取り | 専有面積 |
|---|---|---|---|---|---|
| 8.1万円 | 3,500円 | なし | 8.1万円 | 1LDK | 30.01m2 |
入居決定でお祝い金最大100,000円
Point
建物のエントランスには防犯対策として優れているオートロック機能が付いております。
提供:ハウスコム西東京株式会社 八王子駅前店

詳細情報 KLEIS西八王子Ⅱ
物件紹介
KLEIS西八王子Ⅱは中央本線西八王子駅から徒歩7分にあり、駅近で通勤通学に便利なアパートです。
このお部屋は2階以上に位置しているので、通行人や周囲の住人からの視線が気になりにくく、防犯面でも安心。建物のエントランスはオートロックがついており、インターホンにはTVモニタもついているため、相手の顔を確認してから来客対応することができます。
おしゃれなデザイナーズ物件!人気の角部屋で周囲の居住者の生活音も気になりにくく、また、フローリングのお部屋なのでお掃除もラクラク。室内にはウォークインクローゼットがありますので、たくさんの荷物も効率的に収納ができます。キッチンはシステムキッチン仕様になっていますので、お料理好きの方にもぴったり。バス・トイレは別なので、のんびりお風呂タイムも楽しめるでしょう。また、雨の日でも浴室乾燥機を使えば、お洗濯も問題ありません。
通信設備面では、インターネット接続が可能です。また、CATVにも対応しているので、おうち時間も充実するでしょう(別途工事、契約料が必要な場合あり)。
共用部には宅配ボックスが設定されているので、不在の時にも荷物を受け取ることができます。
コンビニまで徒歩2分の場所にあり、日用品や食料品のお買い物にも便利です。
このお部屋は2階以上に位置しているので、通行人や周囲の住人からの視線が気になりにくく、防犯面でも安心。建物のエントランスはオートロックがついており、インターホンにはTVモニタもついているため、相手の顔を確認してから来客対応することができます。
おしゃれなデザイナーズ物件!人気の角部屋で周囲の居住者の生活音も気になりにくく、また、フローリングのお部屋なのでお掃除もラクラク。室内にはウォークインクローゼットがありますので、たくさんの荷物も効率的に収納ができます。キッチンはシステムキッチン仕様になっていますので、お料理好きの方にもぴったり。バス・トイレは別なので、のんびりお風呂タイムも楽しめるでしょう。また、雨の日でも浴室乾燥機を使えば、お洗濯も問題ありません。
通信設備面では、インターネット接続が可能です。また、CATVにも対応しているので、おうち時間も充実するでしょう(別途工事、契約料が必要な場合あり)。
共用部には宅配ボックスが設定されているので、不在の時にも荷物を受け取ることができます。
コンビニまで徒歩2分の場所にあり、日用品や食料品のお買い物にも便利です。
お金・契約の情報
※「-」と表示されているものは、実際は料金が発生するものもございます。詳細はお問い合わせください。
| 家賃 | 8.1万円 | 管理費・共益費 | 3,500円 |
|---|---|---|---|
| 敷金 | なし | 礼金 | 8.1万円 |
| 入居決定でお祝い金最大100,000円 | |||
| 保証金 | - | 償却・敷引 | - |
| 住宅保険料 | 1円 | 更新料 | - |
| 保証会社利用 | 必須 | 保証会社名 | - |
| 保証会社費用 | - | 保証会社備考 | 初回50% 月1440円 |
| 契約形態 | - | 契約期間 | 2年 |
| 入居・引渡期間 | 2026年05月上旬 | 現況 | - |
| 入居可能条件 | 事務所不可、2人入居可、学生可、楽器不可、ペット不可 | ||
| 契約備考 | KEIAICLUB月額2750円 カギ交換22000円 退去時清掃代60500円 町会費月額200円 室内写真は同ハウスメーカーの参考写真となります。 1年以内違約金家賃等2か月 2年以内家賃等1か月分 その他設備/条件:室内洗濯機置き場、独立洗面台、防犯カメラ、全居室収納、クローゼット、シューズボックス、照明器具付き、オートバス | ||
部屋の情報
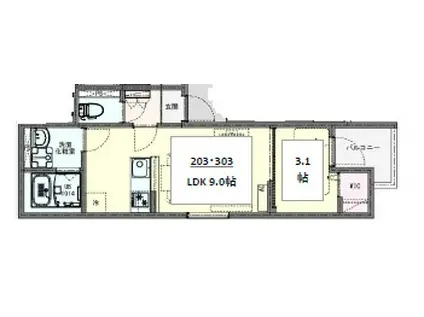
| 間取り | 1LDK | 専有面積 | 30.01m2 |
|---|---|---|---|
| 間取り詳細 | 洋室(3.1帖)、LDK(9帖) | ||
| 所在階 / 向き | 3階 / 北西 | バルコニー面積 | - |
| 水道 / ガス | 水道【公営】、ガス【プロパン】 | ||
| 設備 | バス・トイレ別、オートロック、宅配ボックス、浴室乾燥機、ウォークインクローゼット、追い焚き、インターネット対応、システムキッチン、カウンターキッチン、エアコン、温水洗浄便座、角部屋、バルコニー、フローリング、洗髪洗面化粧台、2口コンロ、コンロ:ガス、シャワー、給湯 | ||
| 当社物件ID | 157119210 | ||
建物の情報
| 建物名 | KLEIS西八王子Ⅱ | ||
|---|---|---|---|
| 所在地 | 東京都八王子市千人町2丁目 | ||
| 交通 | 中央本線 西八王子駅 徒歩7分 | ||
| 階数 | 3階建 | 総戸数 | 9戸 |
| 築年月 | 2024年06月 / 築2年 | エレベーター | - |
| 駐車場 | 近隣 1.65万円/月 徒歩4分(300m) | バイク置き場 | - |
| 駐輪場 | あり | 管理人/管理会社 | - |
| 周辺環境 | コンビニ 徒歩2分(157m) 販売店 徒歩8分(624m) その他 ドラッグストア その他 公園 その他 銀行 その他 * | ||
| 建物種別 | アパート | 建物構造 | 木造 |
この部屋の取扱い不動産会社
| 会社名 | ハウスコム西東京株式会社 八王子店 | ||
|---|---|---|---|
| 所在地 | 東京都八王子市1-12Def・Aビル1階 | 交通 | - |
| 営業時間 | 10:00~18:00 | 定休日 | 水曜定休 |
| 免許番号 | 東京都知事(1)第108225号 | 取引態様 | 仲介 |
| 不動産会社管理番号 | HC2-4392980-303-0023 | 当社管理番号 | 468 |
| 所属団体 | 、 | ||
| 取扱い物件情報 | 物件詳細へ | ||
※各種情報と現状に差異がある場合は、現状優先となります。問い合わせをすることで、より詳しい条件、情報を確認する事ができます。
提供:ハウスコム西東京株式会社 八王子店
この物件が気になったら掲載期限まであと5日
KLEIS西八王子Ⅱに条件(家賃・エリア)が近い物件一覧
| 写真 | 家賃 管理費等 | 敷金 礼金 | 間取り 専有面積 | 築年数 | 最寄り駅 所在地 | キープ | 詳細 |
|---|---|---|---|---|---|---|---|
アパート コーポニュー旭(2K/1階) | |||||||
![]() | 4.9万円 2,000円 | 4.9万円 なし | 2K 30.22m2 | 築45年 | JR中央線 豊田駅 徒歩9分 東京都日野市旭が丘 | 詳細を見る | |
アパート クレールミヤガワ(1LDK/1階) | |||||||
![]() | 8万円 2,500円 | なし 8万円 | 1LDK 43.03m2 | 築6年 | JR青梅線 昭島駅 徒歩22分 東京都昭島市田中町 | 詳細を見る | |
アパート アザーレ・パッシオ橋本(1K/2階) | |||||||
![]() | 6.4万円 3,000円 | 6.4万円 6.4万円 | 1K 18.83m2 | 築1年 | JR横浜線 橋本駅(神奈川) 徒歩10分 JR相模線 南橋本駅 徒歩26分 JR横浜線 相原駅 徒歩28分 神奈川県相模原市緑区西橋本 | 詳細を見る | |
アパート カーサ・プラシード(1LDK/2階) | |||||||
![]() | 7.9万円 3,500円 | なし 9.9万円 | 1LDK 46.09m2 | 築15年 | 小田急線 玉川学園前駅 徒歩17分 小田急線 町田駅 徒歩23分 JR横浜線 成瀬駅 徒歩37分 東京都町田市南大谷 | 詳細を見る | |
アパート 富士見コーポ(1K/2階) | |||||||
![]() | 6万円 2,500円 | なし 6万円 | 1K 23.14m2 | 築45年 | 小田急電鉄小田原線 町田駅 徒歩6分 東京都町田市原町田5丁目 | 詳細を見る | |
アパート ピュアストリーム(2K/1階) | |||||||
![]() | 5.3万円 なし | 5.3万円 なし | 2K 33m2 | 築35年 | 京王電鉄高尾線 山田駅(東京) 徒歩14分 京王電鉄高尾線 京王片倉駅 徒歩18分 東京都八王子市小比企町 | 詳細を見る | |
アパート アングロワール(1K/2階) | |||||||
![]() | 6.2万円 6,000円 | なし 6.2万円 | 1K 24.5m2 | 築24年 | 京王相模原線 京王永山駅 徒歩7分 小田急多摩線 小田急永山駅 徒歩7分 京王線 聖蹟桜ケ丘駅 徒歩30分 東京都多摩市永山 | 詳細を見る | |
アパート サバーブス根来(2LDK/1階) | |||||||
![]() | 7万円 なし | 7万円 なし | 2LDK 51.6m2 | 築40年 | 東京都八王子市長沼町 | 詳細を見る | |









/105x80-f1-q70-wp1)