賃貸マンション
住吉川東パークホームズの賃貸物件情報(3LDK/9階)
| 家賃 | 管理費等 | 敷金 | 礼金 | 間取り | 専有面積 |
|---|---|---|---|---|---|
| 12.5万円 | なし | 12.5万円 | 37.5万円 | 3LDK | 74.34m2 |
入居決定でお祝い金最大100,000円
- 保証金
- -
- 償却・敷引
- -
- 築年数
- 築31年
- 所在階
- 9階
- 向き
- 東
Point
収納はシューズボックス・クロゼットなど豊富なので、衣類や履き物の整理がしやすく便利です。セキュリティ面は、オートロック・TVインターホンなどを設置しているので安全面でも優れております。
提供:KURAS岡本店(株)StarLifes(SUUMO経由)

詳細情報 住吉川東パークホームズ
物件紹介
住吉川東パークホームズは阪神本線魚崎駅から徒歩5分にあり、駅近で通勤通学に便利なマンションです。
このお部屋は2階以上に位置しているので、通行人や周囲の住人からの視線が気になりにくく、防犯面でも安心。建物のエントランスはオートロックがついており、インターホンにはTVモニタもついているため、相手の顔を確認してから来客対応することができます。
キッチンはシステムキッチン仕様になっていますので、お料理好きの方にもぴったり。また、バス・トイレは別で、のんびりお風呂タイムも楽しめるでしょう。
通信設備面では、インターネット接続が可能です。また、CATVにも対応しているので、おうち時間も充実するでしょう(別途工事、契約料が必要な場合あり)。
建物にはエレベーターがついているので、重い荷物があっても安心。共用部には宅配ボックスが設定されているので、不在の時にも荷物を受け取ることができます。
このお部屋は2階以上に位置しているので、通行人や周囲の住人からの視線が気になりにくく、防犯面でも安心。建物のエントランスはオートロックがついており、インターホンにはTVモニタもついているため、相手の顔を確認してから来客対応することができます。
キッチンはシステムキッチン仕様になっていますので、お料理好きの方にもぴったり。また、バス・トイレは別で、のんびりお風呂タイムも楽しめるでしょう。
通信設備面では、インターネット接続が可能です。また、CATVにも対応しているので、おうち時間も充実するでしょう(別途工事、契約料が必要な場合あり)。
建物にはエレベーターがついているので、重い荷物があっても安心。共用部には宅配ボックスが設定されているので、不在の時にも荷物を受け取ることができます。
お金・契約の情報
※「-」と表示されているものは、実際は料金が発生するものもございます。詳細はお問い合わせください。
| 家賃 | 12.5万円 | 管理費・共益費 | なし |
|---|---|---|---|
| 敷金 | 12.5万円 | 礼金 | 37.5万円 |
| 入居決定でお祝い金最大100,000円 | |||
| 保証金 | - | 償却・敷引 | - |
| 住宅保険料 | - | 更新料 | - |
| 保証会社利用 | 必須 | 保証会社名 | オリコ |
| 保証会社費用 | - | 保証会社備考 | オリコ利用必 初回総賃料50%月額総賃料1% |
| 契約形態 | - | 契約期間 | - |
| 入居・引渡期間 | - | 現況 | - |
| 契約備考 | 3LDK 二人入居可 普通借家2年 損保【2.4万円2年】 バストイレ別、バルコニー、ガスコンロ対応、クロゼット、TVインターホン、オートロック、室内洗濯置、陽当り良好、シューズボックス、システムキッチン、追焚機能浴室、温水洗浄便座、脱衣所、エレベーター、洗面所独立、駐輪場、宅配ボックス、CATV、光ファイバー、閑静な住宅地、3口以上コンロ、対面式キッチン、防犯カメラ、分譲賃貸、二人入居相談、バイク置場、駅まで平坦、緑豊かな住宅地、平坦地、2駅利用可、3駅以上利用可、駅徒歩5分以内、駅徒歩10分以内、都市ガス、保証会社利用可、IT重説対応物件、初期費用カード決済可 入居日:'26年4月下旬 | ||
部屋の情報
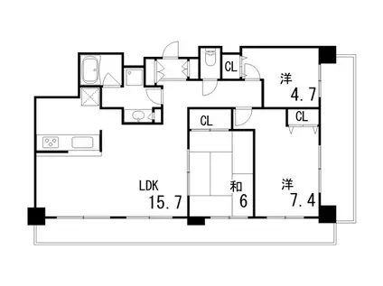
| 間取り | 3LDK | 専有面積 | 74.34m2 |
|---|---|---|---|
| 所在階 / 向き | 9階 / 東 | バルコニー面積 | - |
| 水道 / ガス | - | ||
| 設備 | バス・トイレ別、2階以上、オートロック、テレビドアホン、宅配ボックス、追い焚き、インターネット対応、システムキッチン、エレベーター、温水洗浄便座、バルコニー、洗髪洗面化粧台、2口コンロ、コンロ:ガス、CATV、洗濯機:室内 | ||
| 当社物件ID | 12829688 | ||
建物の情報
| 建物名 | 住吉川東パークホームズ | ||
|---|---|---|---|
| 所在地 | 兵庫県神戸市東灘区魚崎南町 | ||
| 交通 | 阪神本線 魚崎駅 徒歩5分 阪神本線 住吉駅(阪神) 徒歩13分 阪神本線 青木駅 徒歩20分 | ||
| 階数 | 9階建 | 総戸数 | - |
| 築年月 | 1996年03月 / 築31年 | エレベーター | あり |
| 駐車場 | 空有 15000円 | バイク置き場 | あり |
| 駐輪場 | あり | 管理人/管理会社 | - |
| 周辺環境 | その他 神戸市立魚崎小学校(小学校)まで865m その他 個別教育Myチャレンジ 魚崎校(その他)まで1421m その他 幼保連携型認定こども園甲南すこやかこども園(その他)まで1363m その他 株式会社六五寿司 魚崎店(飲食店)まで1237m その他 cafe(カフェ) 豆香(飲食店)まで1178m その他 なな亭(飲食店)まで1328m | ||
| 建物種別 | マンション | 建物構造 | RC(鉄筋コンクリート) |
この部屋の取扱い不動産会社
| 会社名 | KURAS岡本店(株)StarLifes(SUUMO経由) | ||
|---|---|---|---|
| 所在地 | 兵庫県神戸市東灘区岡本1-4-27 第二オギタビル3階 | 交通 | - |
| 営業時間 | 9:30~19:00 | 定休日 | 水曜日 |
| 免許番号 | 兵庫県知事12247 | 取引態様 | 仲介 |
| 不動産会社管理番号 | 100492938343 | 当社管理番号 | 89 |
| 所属団体 | (公社)全日本不動産協会兵庫県本部会員 | ||
| 公正取引協議会 | (公社)近畿地区不動産公正取引協議会加盟 | ||
| 取扱い物件情報 | 物件詳細へ | ||
※各種情報と現状に差異がある場合は、現状優先となります。問い合わせをすることで、より詳しい条件、情報を確認する事ができます。
提供:KURAS岡本店(株)StarLifes(SUUMO経由)
この物件が気になったら掲載期限まであと11日
住吉川東パークホームズに条件(家賃・エリア)が近い物件一覧
| 写真 | 家賃 管理費等 | 敷金 礼金 | 間取り 専有面積 | 築年数 | 最寄り駅 所在地 | キープ | 詳細 |
|---|---|---|---|---|---|---|---|
マンション SHAMAISON MIMOSA OKUBO(2LDK/1階) | |||||||
![]() | 13.6万円 9,500円 | 5万円 なし | 2LDK 64.75m2 | 築1年 | JR山陽本線 大久保駅(兵庫) 徒歩17分 山陽電鉄本線 中八木駅 徒歩35分 山陽電鉄本線 江井ケ島駅 徒歩41分 兵庫県明石市大久保町大窪 | 詳細を見る | |
アパート エスペランサ二見 A棟(1LDK/2階) | |||||||
![]() | 7.8万円 5,000円 | 3万円 15万円 | 1LDK 41.67m2 | 築20年 | 山陽電気鉄道本線 西二見駅 徒歩10分 山陽電気鉄道本線 東二見駅 徒歩16分 山陽電気鉄道本線 播磨町駅 徒歩26分 兵庫県明石市二見町西二見駅前2丁目 | 詳細を見る | |
アパート グランドールⅠ(1LDK/1階) | |||||||
![]() | 7.9万円 3,000円 | なし 7.9万円 | 1LDK 44.7m2 | 築1年 | 神戸電鉄粟生線 広野ゴルフ場前駅 徒歩10分 兵庫県三木市志染町東自由が丘1丁目 | 詳細を見る | |
アパート LA MAISON林崎(2LDK/2階) | |||||||
![]() | 12.5万円 7,000円 | 3万円 25万円 | 2LDK 58.68m2 | 築1年 | 山陽電気鉄道本線 林崎松江海岸駅 徒歩9分 山陽電気鉄道本線 西新町駅 徒歩12分 兵庫県明石市林崎1 | 詳細を見る | |
アパート ヒカルサ稲美天満Ⅱ(1LDK/1階) | |||||||
![]() | 7.65万円 3,900円 | なし 7.65万円 | 1LDK 44.7m2 | 築1年 | 兵庫県加古郡稲美町六分一 | 詳細を見る | |
マンション シーサイドパストラル林崎II(2LDK/1階) | |||||||
![]() | 8.6万円 6,000円 | なし 20万円 | 2LDK 67.12m2 | 築29年 | 山陽電気鉄道本線 林崎松江海岸駅 徒歩3分 山陽電気鉄道本線 西新町駅 徒歩23分 山陽本線 西明石駅 徒歩30分 兵庫県明石市林崎町3丁目 | 詳細を見る | |
アパート D-ROOM明石オーシャンビューハイツA(1LDK/1階) | |||||||
![]() | 8.9万円 6,500円 | 2万円 18万円 | 1LDK 40.9m2 | 築4年 | 山陽電気鉄道本線 藤江駅 徒歩12分 兵庫県明石市東藤江2丁目 | 詳細を見る | |








