賃貸マンション
エスティメゾン押上の賃貸物件情報(1K/4階)
| 家賃 | 管理費等 | 敷金 | 礼金 | 間取り | 専有面積 |
|---|---|---|---|---|---|
| 11.2万円 | 8,000円 | 11.2万円 | 11.2万円 | 1K | 26.28m2 |
入居決定でお祝い金最大100,000円
- 保証金
- -
- 償却・敷引
- -
- 築年数
- 築16年
- 所在階
- 4階
- 向き
- 南
- 交通
- 東京メトロ半蔵門線 押上駅 徒歩4分
都営浅草線 押上駅 徒歩5分
東武伊勢崎線 とうきょうスカイツリー駅 徒歩11分
- 所在地
- 東京都墨田区業平
エスティメゾン押上
[地図を表示]
Point
ご覧頂きありがとうございます。見学希望や入居時期のご相談、その他どんなことでも構いませんのでご遠慮なくご相談下さい。お問合せは【0120-956-776】北千住営業所へご連絡下さい
提供:ポラスの賃貸 Room'Spot北千住営業所(株)中央ビル管理(SUUMO経由)

詳細情報 エスティメゾン押上
物件紹介
エスティメゾン押上は東京メトロ半蔵門線押上駅から徒歩4分にあり、駅近で通勤通学に便利なマンションです。
このお部屋は2階以上に位置しているので、通行人や周囲の住人からの視線が気になりにくく、防犯面でも安心。建物のエントランスはオートロックがついており、インターホンにはTVモニタもついているため、相手の顔を確認してから来客対応することができます。
人気の南向きのお部屋。また、フローリングなのでお掃除もラクラク。キッチンはシステムキッチン仕様になっていますので、お料理好きの方にもぴったり。バス・トイレは別なので、のんびりお風呂タイムも楽しめるでしょう。また、雨の日でも浴室乾燥機を使えば、お洗濯も問題ありません。
通信設備面では、インターネット接続が可能です(別途工事、契約料が必要な場合あり)。
建物にはエレベーターがついているので、重い荷物があっても安心。共用部には宅配ボックスが設定されているので、不在の時にも荷物を受け取ることができます。また、ペット飼育の相談ができますので、あなたの大切な家族の一員も快適に暮らせるか、ぜひ確認してみてください。
このお部屋は2階以上に位置しているので、通行人や周囲の住人からの視線が気になりにくく、防犯面でも安心。建物のエントランスはオートロックがついており、インターホンにはTVモニタもついているため、相手の顔を確認してから来客対応することができます。
人気の南向きのお部屋。また、フローリングなのでお掃除もラクラク。キッチンはシステムキッチン仕様になっていますので、お料理好きの方にもぴったり。バス・トイレは別なので、のんびりお風呂タイムも楽しめるでしょう。また、雨の日でも浴室乾燥機を使えば、お洗濯も問題ありません。
通信設備面では、インターネット接続が可能です(別途工事、契約料が必要な場合あり)。
建物にはエレベーターがついているので、重い荷物があっても安心。共用部には宅配ボックスが設定されているので、不在の時にも荷物を受け取ることができます。また、ペット飼育の相談ができますので、あなたの大切な家族の一員も快適に暮らせるか、ぜひ確認してみてください。
お金・契約の情報
※「-」と表示されているものは、実際は料金が発生するものもございます。詳細はお問い合わせください。
| 家賃 | 11.2万円 | 管理費・共益費 | 8,000円 |
|---|---|---|---|
| 敷金 | 11.2万円 | 礼金 | 11.2万円 |
| 入居決定でお祝い金最大100,000円 | |||
| 保証金 | - | 償却・敷引 | - |
| 住宅保険料 | - | 更新料 | - |
| 保証会社利用 | 必須 | 保証会社名 | - |
| 保証会社費用 | - | 保証会社備考 | 保証会社利用必 初回保証料:賃料+管理費の20%~、月々1% |
| 契約形態 | - | 契約期間 | - |
| 入居・引渡期間 | - | 現況 | - |
| 入居可能条件 | ペット相談 | ||
| 契約備考 | 合計4.95万円(内訳:くらしのサポートサービス16500円/鍵交換費用33000円) 1K 単身者可/ペット相談/事務所利用不可 普通借家2年 損保【1.9万円2年】 バストイレ別、エアコン、ガスコンロ対応、クロゼット、フローリング、浴室乾燥機、オートロック、室内洗濯置、システムキッチン、南向き、温水洗浄便座、脱衣所、2口コンロ、駐輪場、宅配ボックス、光ファイバー、外壁タイル張り、防犯カメラ、ペット相談、グリル付、敷金1ヶ月、バイク置場、全居室フローリング、ガスレンジ付、ディンプルキー、カーポート、24時間換気システム、フラットフロア、エレベーター2基、2駅利用可、3沿線以上利用可、駅徒歩5分以内、敷地内ごみ置き場、都市ガス、礼金1ヶ月 敷金積み増し【ペット飼育の場合敷金2ヶ月(総額)】 入居日:'26年2月上旬 | ||
部屋の情報
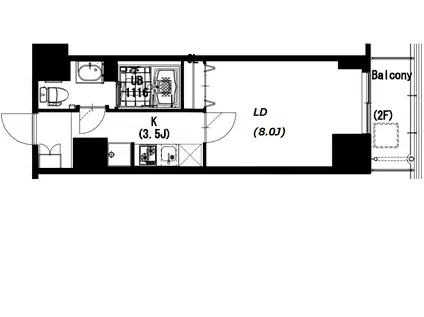
| 間取り | 1K | 専有面積 | 26.28m2 |
|---|---|---|---|
| 所在階 / 向き | 4階 / 南 | バルコニー面積 | - |
| 水道 / ガス | - | ||
| 設備 | バス・トイレ別、2階以上、オートロック、宅配ボックス、浴室乾燥機、インターネット対応、システムキッチン、エアコン、エレベーター、温水洗浄便座、南向き、フローリング、2口コンロ、コンロ:ガス、洗濯機:室内 | ||
| 当社物件ID | 11156031 | ||
建物の情報
| 建物名 | エスティメゾン押上 | ||
|---|---|---|---|
| 所在地 | 東京都墨田区業平 | ||
| 交通 | 東京メトロ半蔵門線 押上駅 徒歩4分 都営浅草線 押上駅 徒歩5分 東武伊勢崎線 とうきょうスカイツリー駅 徒歩11分 | ||
| 階数 | 7階建 | 総戸数 | 102戸 |
| 築年月 | 2010年07月 / 築16年 | エレベーター | あり |
| 駐車場 | 空有 27500円/機械式駐 | バイク置き場 | あり |
| 駐輪場 | あり | 管理人/管理会社 | - |
| 建物種別 | マンション | 建物構造 | RC(鉄筋コンクリート) |
この部屋の取扱い不動産会社
| 会社名 | ポラスの賃貸 Room'Spot北千住営業所(株)中央ビル管理(SUUMO経由) | ||
|---|---|---|---|
| 所在地 | 東京都足立区千住2-22 マスミビル1F | 交通 | - |
| 営業時間 | 9:30~18:00 | 定休日 | 火曜日 水曜日 |
| 免許番号 | 国土交通大臣3918 | 取引態様 | 仲介 |
| 不動産会社管理番号 | 100480111377 | 当社管理番号 | 89 |
| 所属団体 | (公社)東京都宅地建物取引業協会会員 | ||
| 公正取引協議会 | (公社)首都圏不動産公正取引協議会加盟 | ||
| 取扱い物件情報 | 物件詳細へ | ||
※各種情報と現状に差異がある場合は、現状優先となります。問い合わせをすることで、より詳しい条件、情報を確認する事ができます。
提供:ポラスの賃貸 Room'Spot北千住営業所(株)中央ビル管理(SUUMO経由)
この物件が気になったら掲載期限まであと11日
エスティメゾン押上に条件(家賃・エリア)が近い物件一覧
| 写真 | 家賃 管理費等 | 敷金 礼金 | 間取り 専有面積 | 築年数 | 最寄り駅 所在地 | キープ | 詳細 |
|---|---|---|---|---|---|---|---|
マンション クレヴィアリグゼ錦糸町(1LDK/5階) | |||||||
![]() | 13.4万円 1.2万円 | 13.4万円 13.4万円 | 1LDK 25.33m2 | 築3年 | 総武本線 錦糸町駅 徒歩6分 総武・中央緩行線 錦糸町駅 徒歩6分 東京地下鉄半蔵門線 錦糸町駅 徒歩6分 東京都墨田区江東橋1丁目 | 詳細を見る | |
マンション ヴェルステージ茅場町(1K/5階) | |||||||
![]() | 11.5万円 1.1万円 | なし 11.5万円 | 1K 24.55m2 | 築27年 | 東京地下鉄日比谷線 茅場町駅 徒歩3分 東京地下鉄日比谷線 八丁堀駅(東京) 徒歩5分 東京地下鉄半蔵門線 水天宮前駅 徒歩13分 東京都中央区新川1丁目 | 詳細を見る | |
マンション グラントゥルース田端(1K/3階) | |||||||
![]() | 9.4万円 1.2万円 | なし なし | 1K 25.5m2 | 築17年 | 高崎線 尾久駅 徒歩5分 東京都荒川線 荒川遊園地前駅 徒歩9分 山手線 田端駅 徒歩14分 東京都荒川区西尾久4丁目 | 詳細を見る | |
マンション ハーモニーレジデンス東京イースト002(1LDK/6階) | |||||||
![]() | 16.5万円 1.5万円 | 16.5万円 16.5万円 | 1LDK 41.31m2 | 築14年 | 東京都新宿線 森下駅(東京) 徒歩5分 東京都新宿線 菊川駅(東京) 徒歩5分 東京地下鉄半蔵門線 清澄白河駅 徒歩14分 東京都墨田区菊川1丁目 | 詳細を見る | |
マンション レアライズ押上(1K/3階) | |||||||
![]() | 9.2万円 1万円 | なし 9.2万円 | 1K 26.04m2 | 築9年 | 東京地下鉄半蔵門線 押上駅 徒歩9分 東武伊勢崎・大師線 とうきょうスカイツリー駅 徒歩10分 東京都墨田区向島5丁目 | 詳細を見る | |
マンション エスティメゾン錦糸町2(1LDK/6階) | |||||||
![]() | 17.5万円 1.2万円 | 17.5万円 なし | 1LDK 40m2 | 築18年 | 総武・中央緩行線 錦糸町駅 徒歩5分 東京地下鉄半蔵門線 錦糸町駅 徒歩5分 東京都墨田区江東橋3丁目 | 詳細を見る | |
マンション ガーラプレイス錦糸町(1K/8階) | |||||||
![]() | 11万円 2万円 | 11万円 なし | 1K 24.44m2 | 築19年 | 総武・中央緩行線 錦糸町駅 徒歩6分 東京地下鉄半蔵門線 錦糸町駅 徒歩7分 東京都大江戸線 両国駅 徒歩15分 東京都墨田区錦糸1丁目 | 詳細を見る | |
マンション エスポワール(1K/4階) | |||||||
![]() | 9.5万円 5,000円 | なし 9.5万円 | 1K 30.24m2 | 築24年 | 東京地下鉄日比谷線 入谷駅(東京) 徒歩5分 山手線 上野駅 徒歩10分 東京地下鉄銀座線 稲荷町駅(東京) 徒歩10分 東京都台東区北上野2丁目 | 詳細を見る | |









