賃貸マンション
菱和パレス上馬の賃貸物件情報(1K/4階)
| 家賃 | 管理費等 | 敷金 | 礼金 | 間取り | 専有面積 |
|---|---|---|---|---|---|
| 7.8万円 | 1万円 | なし | 7.8万円 | 1K | 19.3m2 |
入居決定でお祝い金最大100,000円
Point
収納はクロゼット・シューズボックスなど豊富なので、衣類や履き物の整理がしやすく便利です。
提供:センチュリー21(株)LIFE HOME城南店(SUUMO経由)

詳細情報 菱和パレス上馬
物件紹介
菱和パレス上馬は東急田園都市線駒沢大学駅から徒歩5分にあり、駅近で通勤通学に便利なマンションです。
このお部屋は2階以上に位置しているので、通行人や周囲の住人からの視線が気になりにくく、防犯面でも安心。建物のエントランスはオートロックがついており、インターホンにはTVモニタもついているため、相手の顔を確認してから来客対応することができます。
人気の南向きのお部屋。また、フローリングなのでお掃除もラクラク。キッチンはシステムキッチン仕様になっていますので、お料理好きの方にもぴったり。また、バス・トイレは別で、のんびりお風呂タイムも楽しめるでしょう。
通信設備面では、インターネット接続が可能です。また、BSアンテナ・CSアンテナもありますので、おうち時間も充実するでしょう(別途工事、契約料が必要な場合あり)。
建物にはエレベーターがついているので、重い荷物があっても安心。共用部には宅配ボックスが設定されているので、不在の時にも荷物を受け取ることができます。
コンビニまで徒歩6分の場所にあり、日用品や食料品のお買い物にも便利です。
このお部屋は2階以上に位置しているので、通行人や周囲の住人からの視線が気になりにくく、防犯面でも安心。建物のエントランスはオートロックがついており、インターホンにはTVモニタもついているため、相手の顔を確認してから来客対応することができます。
人気の南向きのお部屋。また、フローリングなのでお掃除もラクラク。キッチンはシステムキッチン仕様になっていますので、お料理好きの方にもぴったり。また、バス・トイレは別で、のんびりお風呂タイムも楽しめるでしょう。
通信設備面では、インターネット接続が可能です。また、BSアンテナ・CSアンテナもありますので、おうち時間も充実するでしょう(別途工事、契約料が必要な場合あり)。
建物にはエレベーターがついているので、重い荷物があっても安心。共用部には宅配ボックスが設定されているので、不在の時にも荷物を受け取ることができます。
コンビニまで徒歩6分の場所にあり、日用品や食料品のお買い物にも便利です。
お金・契約の情報
※「-」と表示されているものは、実際は料金が発生するものもございます。詳細はお問い合わせください。
| 家賃 | 7.8万円 | 管理費・共益費 | 1万円 |
|---|---|---|---|
| 敷金 | なし | 礼金 | 7.8万円 |
| 入居決定でお祝い金最大100,000円 | |||
| 保証金 | - | 償却・敷引 | 7.8万円 |
| 住宅保険料 | 1円 | 更新料 | - |
| その他費用 | 契約事務手数料:1.1万円、11000円: | ||
| 保証会社利用 | 必須 | 保証会社名 | - |
| 保証会社費用 | - | 保証会社備考 | 初回保証料:総賃料の50% 1年毎10000円(その他保証会社条件有) |
| 契約形態 | - | 契約期間 | 2年 |
| 入居・引渡期間 | 2026年02月中旬 | 現況 | - |
| 入居可能条件 | 2人入居可 | ||
| 契約備考 | 短期解約違約金有:1年未満の解約で賃料管理費の総額2ヶ月分、1年以上2年未満の解約で賃料管理費の総額1ヶ月分 法人契約の場合、短期解約違約金応相談 喫煙不可/損耗修繕は借主実費負担 退去時エアコン清掃費11000円 駐輪場:有料 解約予告2ヶ月前 月額(24hサポート 1000円) 鍵交換費用:33000 室内清掃費用:38500 その他設備/条件:室内洗濯機置き場、防犯カメラ、クローゼット、シューズボックス、分譲賃貸 | ||
部屋の情報
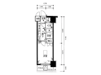
| 間取り | 1K | 専有面積 | 19.3m2 |
|---|---|---|---|
| 間取り詳細 | 洋室(5.8帖)、K(2帖) | ||
| 所在階 / 向き | 4階 / 南東 | バルコニー面積 | - |
| 水道 / ガス | 水道【公営】、ガス【都市】 | ||
| 設備 | バス・トイレ別、オートロック、テレビドアホン、宅配ボックス、インターネット対応、システムキッチン、エアコン、エレベーター、バルコニー、フローリング、コンロ:電気、シャワー、給湯、1口コンロ、タイル張り | ||
| 当社物件ID | 8178237 | ||
建物の情報
| 建物名 | 菱和パレス上馬 | ||
|---|---|---|---|
| 所在地 | 東京都世田谷区上馬2丁目 | ||
| 交通 | 東急田園都市線 駒沢大学駅 徒歩7分 東急田園都市線 三軒茶屋駅 徒歩13分 | ||
| 階数 | 14階建 | 総戸数 | 78戸 |
| 築年月 | 1997年09月 / 築29年 | エレベーター | あり |
| 駐車場 | - | バイク置き場 | - |
| 駐輪場 | あり | 管理人/管理会社 | - |
| 周辺環境 | コンビニ 徒歩6分(442m) 販売店 徒歩4分(247m) その他 ドラッグストア その他 公園 その他 銀行 その他 * | ||
| 建物種別 | マンション | 建物構造 | その他 |
この部屋の取扱い不動産会社
| 会社名 | ハウスコム東神奈川株式会社 溝の口店 | ||
|---|---|---|---|
| 所在地 | 神奈川県川崎市高津区8-1溝ノ口丸広ビル1階 | 交通 | - |
| 営業時間 | 10:00~18:00 | 定休日 | - |
| 免許番号 | 神奈川県知事(1)第31769号 | 取引態様 | 仲介 |
| 不動産会社管理番号 | HC2-10357-403-0073 | 当社管理番号 | 468 |
| 所属団体 | 、 | ||
| 取扱い物件情報 | 物件詳細へ | ||
※各種情報と現状に差異がある場合は、現状優先となります。問い合わせをすることで、より詳しい条件、情報を確認する事ができます。
提供:ハウスコム東神奈川株式会社 溝の口店
この物件が気になったら掲載期限まであと4日
菱和パレス上馬に条件(家賃・エリア)が近い物件一覧
| 写真 | 家賃 管理費等 | 敷金 礼金 | 間取り 専有面積 | 築年数 | 最寄り駅 所在地 | キープ | 詳細 |
|---|---|---|---|---|---|---|---|
アパート スズキコーポ(ワンルーム/1階) | |||||||
![]() | 5.6万円 3,000円 | 5.6万円 5.6万円 | ワンルーム 17.3m2 | 築53年 | 東急多摩川線 鵜の木駅 徒歩5分 東急多摩川線 下丸子駅 徒歩7分 東急池上線 千鳥町駅 徒歩12分 東京都大田区鵜の木 | 詳細を見る | |
アパート ル・トレフル(ワンルーム/2階) | |||||||
![]() | 8.9万円 2,000円 | 8.9万円 17.8万円 | ワンルーム 28.63m2 | 築13年 | 京浜急行電鉄本線 大森町駅 徒歩12分 京浜急行電鉄本線 平和島駅 徒歩16分 東京都大田区大森東3丁目 | 詳細を見る | |
マンション ライオンズマンション下丸子(1LDK/1階) | |||||||
![]() | 11.3万円 7,000円 | 11.3万円 11.3万円 | 1LDK 39.6m2 | 築56年 | 東急多摩川線 下丸子駅 徒歩1分 東急多摩川線 鵜の木駅 徒歩9分 東京都大田区下丸子3丁目 | 詳細を見る | |
マンション メゾンドボナール(1DK/4階) | |||||||
![]() | 12万円 3,000円 | 12万円 なし | 1DK 32.48m2 | 築29年 | 京浜東北・根岸線 蒲田駅 徒歩10分 京浜急行電鉄本線 京急蒲田駅 徒歩10分 東京都大田区蒲田3丁目 | 詳細を見る | |
マンション SEED JUST B-BASE Ⅱ(1LDK/4階) | |||||||
![]() | 9.9万円 1.5万円 | 9.9万円 9.9万円 | 1LDK 25.41m2 | 築1年 | 東京モノレール羽田 昭和島駅 徒歩11分 京浜急行電鉄本線 梅屋敷駅(東京) 徒歩19分 東京都大田区大森南4丁目 | 詳細を見る | |
マンション TSK蒲田フラワーマンション(1LDK/8階) | |||||||
![]() | 11.2万円 8,000円 | 11.2万円 11.2万円 | 1LDK 41m2 | 築47年 | 京浜東北・根岸線 蒲田駅 徒歩12分 京浜急行電鉄本線 梅屋敷駅(東京) 徒歩12分 東京都大田区蒲田1丁目 | 詳細を見る | |
アパート タカマルハイム(1LDK/1階) | |||||||
![]() | 11.5万円 3,000円 | 11.5万円 11.5万円 | 1LDK 34m2 | 築11年 | 東急多摩川線 武蔵新田駅 徒歩8分 東急多摩川線 下丸子駅 徒歩9分 東京都大田区下丸子2丁目 | 詳細を見る | |
アパート SEED SAVE PETIRASU Ⅲ(1LDK/2階) | |||||||
![]() | 10.6万円 1万円 | 21.2万円 10.6万円 | 1LDK 30.55m2 | 築1年 | 東京モノレール羽田 昭和島駅 徒歩12分 京浜急行電鉄本線 大森町駅 徒歩18分 東京都大田区大森東5丁目 | 詳細を見る | |








