賃貸マンション
ザ・パークハビオ上野御徒町の賃貸物件情報(ワンルーム/2階)
| 家賃 | 管理費等 | 敷金 | 礼金 | 間取り | 専有面積 |
|---|---|---|---|---|---|
| 13.2万円 | 1.3万円 | 13.2万円 | 13.2万円 | ワンルーム | 25.7m2 |
入居決定でお祝い金最大100,000円
- 保証金
- -
- 償却・敷引
- -
- 築年数
- 築10年
- 所在階
- 2階
- 向き
- 西
Point
お一人お一人様に合ったお部屋をお探し致します。分からない事は何でもご相談下さいませ!
提供:フォーディールーム 秋葉原店(株)Four D(SUUMO経由)

詳細情報 ザ・パークハビオ上野御徒町
物件紹介
ザ・パークハビオ上野御徒町は東京メトロ日比谷線仲御徒町駅から徒歩3分にあり、駅近で通勤通学に便利なマンションです。
このお部屋は2階以上に位置しているので、通行人や周囲の住人からの視線が気になりにくく、防犯面でも安心。建物のエントランスはオートロックがついており、インターホンにはTVモニタもついているため、相手の顔を確認してから来客対応することができます。
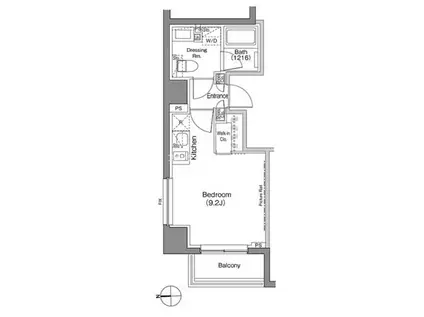
おしゃれなデザイナーズ物件!また、楽器相談が可能な物件となっているので、楽器演奏をお考えの方はぜひ相談してみてください。人気の南向き・フローリングのお部屋。角部屋でもあるため、周囲の居住者の生活音も気になりにくい場所です。室内にはウォークインクローゼットがありますので、たくさんの荷物も効率的に収納ができます。キッチンはシステムキッチン仕様になっていますので、お料理好きの方にもぴったり。バス・トイレは別なので、のんびりお風呂タイムも楽しめるでしょう。また、雨の日でも浴室乾燥機を使えば、お洗濯も問題ありません。
通信設備面では、インターネット接続が可能です。また、BSアンテナ・CSアンテナがありCATVにも対応しているので、おうち時間も充実するでしょう(別途工事、契約料が必要な場合あり)。
建物にはエレベーターがついているので、重い荷物があっても安心。共用部には宅配ボックスが設定されているので、不在の時にも荷物を受け取ることができます。また、ペット飼育の相談ができますので、あなたの大切な家族の一員も快適に暮らせるか、ぜひ確認してみてください。
このお部屋は2階以上に位置しているので、通行人や周囲の住人からの視線が気になりにくく、防犯面でも安心。建物のエントランスはオートロックがついており、インターホンにはTVモニタもついているため、相手の顔を確認してから来客対応することができます。
おしゃれなデザイナーズ物件!また、楽器相談が可能な物件となっているので、楽器演奏をお考えの方はぜひ相談してみてください。人気の南向き・フローリングのお部屋。角部屋でもあるため、周囲の居住者の生活音も気になりにくい場所です。室内にはウォークインクローゼットがありますので、たくさんの荷物も効率的に収納ができます。キッチンはシステムキッチン仕様になっていますので、お料理好きの方にもぴったり。バス・トイレは別なので、のんびりお風呂タイムも楽しめるでしょう。また、雨の日でも浴室乾燥機を使えば、お洗濯も問題ありません。
通信設備面では、インターネット接続が可能です。また、BSアンテナ・CSアンテナがありCATVにも対応しているので、おうち時間も充実するでしょう(別途工事、契約料が必要な場合あり)。
建物にはエレベーターがついているので、重い荷物があっても安心。共用部には宅配ボックスが設定されているので、不在の時にも荷物を受け取ることができます。また、ペット飼育の相談ができますので、あなたの大切な家族の一員も快適に暮らせるか、ぜひ確認してみてください。
お金・契約の情報
※「-」と表示されているものは、実際は料金が発生するものもございます。詳細はお問い合わせください。
| 家賃 | 13.2万円 | 管理費・共益費 | 1.3万円 |
|---|---|---|---|
| 敷金 | 13.2万円 | 礼金 | 13.2万円 |
| 入居決定でお祝い金最大100,000円 | |||
| 保証金 | - | 償却・敷引 | - |
| 住宅保険料 | - | 更新料 | - |
| 保証会社利用 | 必須 | 保証会社名 | - |
| 保証会社費用 | - | 保証会社備考 | 保証会社利用必 賃貸保証料:0.50ヶ月 初回:50%、年間:1万円 |
| 契約形態 | - | 契約期間 | - |
| 入居・引渡期間 | 即時 | 現況 | - |
| 入居可能条件 | 楽器相談、ペット相談 | ||
| 契約備考 | 東京メトロ銀座線上野広小路駅徒歩8分/周辺環境も詳しくご案内いたします!豊富な物件情報で楽しいお部屋探しをするならタウンハウジング秋葉原店へ! 合計4.95万円(内訳:鍵交換代:33000円/駆けつけサポート24(2年間):16500円) 更新料新賃料(ヶ月):1.00ヶ月 ワンルーム 単身者可/ペット相談/楽器相談 普通借家2年 損保【要】 バストイレ別、バルコニー、エアコン、ガスコンロ対応、クロゼット、フローリング、TVインターホン、浴室乾燥機、オートロック、室内洗濯置、シューズボックス、システムキッチン、追焚機能浴室、角住戸、温水洗浄便座、脱衣所、エレベーター、洗面所独立、洗面化粧台、2口コンロ、駐輪場、宅配ボックス、CATV、光ファイバー、外壁タイル張り、即入居可、BS・CS、防犯カメラ、ペット相談、照明付、全居室収納、オートバス、全居室洋室、ウォークインクロゼット、保証人不要、単身者相談、敷金1ヶ月、バイク置場、全居室フローリング、玄関ホール、2沿線利用可、エアコン全室、保証金不要、24時間換気システム、高温差湯式、楽器相談、人感照明センサー、全室2面採光、2駅利用可、24時間ゴミ出し可、敷地内ごみ置き場、専有面積25坪以上、日勤管理、都市ガス、洗面所にドア、玄関収納、高速ネット対応、礼金1ヶ月、IT重説対応物件、初期費用カード決済可 敷金積み増し【ペット飼育の場合敷金2ヶ月(総額)】 | ||
部屋の情報
| 間取り | ワンルーム | 専有面積 | 25.7m2 |
|---|---|---|---|
| 所在階 / 向き | 2階 / 西 | バルコニー面積 | - |
| 水道 / ガス | - | ||
| 設備 | バス・トイレ別、2階以上、オートロック、テレビドアホン、宅配ボックス、浴室乾燥機、ウォークインクローゼット、追い焚き、インターネット対応、システムキッチン、エアコン、エレベーター、温水洗浄便座、角部屋、バルコニー、フローリング、洗髪洗面化粧台、2口コンロ、コンロ:ガス、CATV、CSアンテナ、BSアンテナ、洗濯機:室内 | ||
| 当社物件ID | 94972046 | ||
建物の情報
| 建物名 | ザ・パークハビオ上野御徒町 | ||
|---|---|---|---|
| 所在地 | 東京都台東区台東 | ||
| 交通 | 東京メトロ日比谷線 仲御徒町駅 徒歩3分 都営大江戸線 上野御徒町駅 徒歩4分 JR山手線 御徒町駅 徒歩5分 | ||
| 階数 | 10階建 | 総戸数 | - |
| 築年月 | 2016年08月 / 築10年 | エレベーター | あり |
| 駐車場 | なし | バイク置き場 | あり |
| 駐輪場 | あり | 管理人/管理会社 | - |
| 周辺環境 | その他 まいばすけっと仲御徒町店(スーパー)まで255m その他 ローソン(コンビニ)まで296m その他 ミニストップ台東3丁目店(コンビニ)まで150m その他 ドトールコーヒーショップ仲御徒町店(飲食店)まで259m その他 東上野保育園(幼稚園・保育園)まで744m その他 元浅草郵便局(郵便局)まで698m | ||
| 建物種別 | マンション | 建物構造 | RC(鉄筋コンクリート) |
この部屋の取扱い不動産会社
| 会社名 | (株)タウンハウジング東京 秋葉原店(SUUMO経由) | ||
|---|---|---|---|
| 所在地 | 東京都千代田区神田岩本町 1-13 | 交通 | - |
| 営業時間 | AM10:00~PM7:00 | 定休日 | 水曜日 |
| 免許番号 | 国土交通大臣9926 | 取引態様 | 仲介 |
| 不動産会社管理番号 | 100472720180 | 当社管理番号 | 89 |
| 所属団体 | (公社)東京都宅地建物取引業協会会員 | ||
| 公正取引協議会 | (公社)首都圏不動産公正取引協議会加盟 | ||
| 取扱い物件情報 | 物件詳細へ | ||
※各種情報と現状に差異がある場合は、現状優先となります。問い合わせをすることで、より詳しい条件、情報を確認する事ができます。
提供:(株)タウンハウジング東京 秋葉原店(SUUMO経由)
