賃貸マンション
KDXレジデンス学芸大学の賃貸物件情報(ワンルーム/3階)
| 家賃 | 管理費等 | 敷金 | 礼金 | 間取り | 専有面積 |
|---|---|---|---|---|---|
| 15.3万円 | 1.2万円 | 15.3万円 | 15.3万円 | ワンルーム | 36.39m2 |
入居決定でお祝い金最大100,000円
Point
まずはお問い合わせ!
不動産会社は街のプロ、あなたに合った物件がきっと見つかります。
提供:Balleggs (株)バレッグス本店(学芸大学店)(SUUMO経由)

詳細情報 KDXレジデンス学芸大学
物件紹介
KDXレジデンス学芸大学は東急東横線学芸大学駅から徒歩5分にあり、駅近で通勤通学に便利なマンションです。
このお部屋は2階以上に位置しているので、通行人や周囲の住人からの視線が気になりにくく、防犯面でも安心。建物のエントランスはオートロックがついており、インターホンにはTVモニタもついているため、相手の顔を確認してから来客対応することができます。
おしゃれなデザイナーズ物件!人気の角部屋で周囲の居住者の生活音も気になりにくく、また、フローリングのお部屋なのでお掃除もラクラク。キッチンはシステムキッチン仕様になっていますので、お料理好きの方にもぴったり。バス・トイレは別なので、のんびりお風呂タイムも楽しめるでしょう。また、雨の日でも浴室乾燥機を使えば、お洗濯も問題ありません。
通信設備面では、インターネット接続が可能です。また、CATVにも対応しているので、おうち時間も充実するでしょう(別途工事、契約料が必要な場合あり)。
建物にはエレベーターがついているので、重い荷物があっても安心。共用部には宅配ボックスが設定されているので、不在の時にも荷物を受け取ることができます。
コンビニまで徒歩6分の場所にあり、日用品や食料品のお買い物にも便利です。
このお部屋は2階以上に位置しているので、通行人や周囲の住人からの視線が気になりにくく、防犯面でも安心。建物のエントランスはオートロックがついており、インターホンにはTVモニタもついているため、相手の顔を確認してから来客対応することができます。
おしゃれなデザイナーズ物件!人気の角部屋で周囲の居住者の生活音も気になりにくく、また、フローリングのお部屋なのでお掃除もラクラク。キッチンはシステムキッチン仕様になっていますので、お料理好きの方にもぴったり。バス・トイレは別なので、のんびりお風呂タイムも楽しめるでしょう。また、雨の日でも浴室乾燥機を使えば、お洗濯も問題ありません。
通信設備面では、インターネット接続が可能です。また、CATVにも対応しているので、おうち時間も充実するでしょう(別途工事、契約料が必要な場合あり)。
建物にはエレベーターがついているので、重い荷物があっても安心。共用部には宅配ボックスが設定されているので、不在の時にも荷物を受け取ることができます。
コンビニまで徒歩6分の場所にあり、日用品や食料品のお買い物にも便利です。
お金・契約の情報
※「-」と表示されているものは、実際は料金が発生するものもございます。詳細はお問い合わせください。
| 家賃 | 15.3万円 | 管理費・共益費 | 1.2万円 |
|---|---|---|---|
| 敷金 | 15.3万円 | 礼金 | 15.3万円 |
| 入居決定でお祝い金最大100,000円 | |||
| 保証金 | - | 償却・敷引 | - |
| 住宅保険料 | 1円 | 更新料 | - |
| その他費用 | 鍵交換代:3.3万円 | ||
| 保証会社利用 | 必須 | 保証会社名 | エポスカード |
| 保証会社費用 | - | 保証会社備考 | 保証料:賃料等の50%(最低2万)、月額保証料:賃料等の1%(更新料無) |
| 契約形態 | - | 契約期間 | 2年 |
| 入居・引渡期間 | 2026年02月中旬 | 現況 | - |
| 契約備考 | 清掃費:44000円(退去時請求).エアコン清掃費:11000円(退去時請求) その他設備/条件:防犯カメラ | ||
部屋の情報
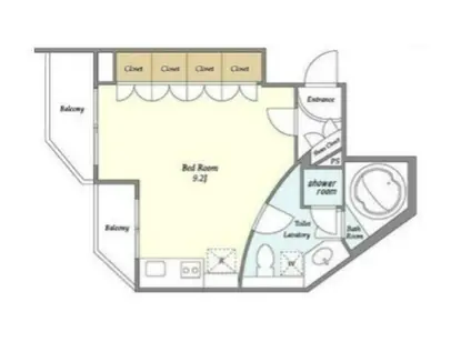
| 間取り | ワンルーム | 専有面積 | 36.39m2 |
|---|---|---|---|
| 間取り詳細 | 洋室(9.2帖) | ||
| 所在階 / 向き | 3階 / 北西 | バルコニー面積 | - |
| 水道 / ガス | - | ||
| 設備 | オートロック、テレビドアホン、宅配ボックス、エアコン、エレベーター、CATV | ||
| 当社物件ID | 160330556 | ||
建物の情報
| 建物名 | KDXレジデンス学芸大学 | ||
|---|---|---|---|
| 所在地 | 東京都目黒区鷹番2丁目 | ||
| 交通 | 東急東横線 学芸大学駅 徒歩5分 | ||
| 階数 | 5階建 | 総戸数 | 23戸 |
| 築年月 | 2003年04月 / 築23年 | エレベーター | あり |
| 駐車場 | なし | バイク置き場 | - |
| 駐輪場 | あり | 管理人/管理会社 | - |
| 周辺環境 | コンビニ 徒歩6分(478m) 販売店 徒歩5分(337m) その他 ドラッグストア その他 公園 その他 銀行 その他 * | ||
| 建物種別 | マンション | 建物構造 | RC(鉄筋コンクリート) |
この部屋の取扱い不動産会社
| 会社名 | ハウスコム西東京株式会社 自由が丘店 | ||
|---|---|---|---|
| 所在地 | 東京都目黒区14-14原田ビル1階 | 交通 | - |
| 営業時間 | 10:00~18:00 | 定休日 | - |
| 免許番号 | 東京都知事(1)第108225号 | 取引態様 | 仲介 |
| 不動産会社管理番号 | HC5-149979-301-0096 | 当社管理番号 | 468 |
| 所属団体 | 、 | ||
| 取扱い物件情報 | 物件詳細へ | ||
※各種情報と現状に差異がある場合は、現状優先となります。問い合わせをすることで、より詳しい条件、情報を確認する事ができます。
提供:ハウスコム西東京株式会社 自由が丘店
この物件が気になったら掲載期限まであと4日
KDXレジデンス学芸大学に条件(家賃・エリア)が近い物件一覧
| 写真 | 家賃 管理費等 | 敷金 礼金 | 間取り 専有面積 | 築年数 | 最寄り駅 所在地 | キープ | 詳細 |
|---|---|---|---|---|---|---|---|
マンション カマラード田園調布(ワンルーム/2階) | |||||||
![]() | 10万円 5,000円 | 10万円 なし | ワンルーム 38m2 | 築33年 | 東急目黒線 多摩川駅 徒歩9分 東急池上線 雪が谷大塚駅 徒歩12分 東京都大田区田園調布1丁目 | 詳細を見る | |
マンション SEED JUST B-BASE Ⅱ(1LDK/2階) | |||||||
![]() | 9.9万円 1.5万円 | 9.9万円 9.9万円 | 1LDK 25.41m2 | 築1年 | 東京モノレール羽田 昭和島駅 徒歩11分 京浜急行電鉄本線 梅屋敷駅(東京) 徒歩19分 東京都大田区大森南4丁目 | 詳細を見る | |
マンション MODULOR久が原(ワンルーム/1階) | |||||||
![]() | 10万円 1万円 | なし なし | ワンルーム 22.41m2 | 築22年 | 東急池上線 千鳥町駅 徒歩6分 東急池上線 池上駅 徒歩10分 東京都大田区千鳥1丁目 | 詳細を見る | |
マンション RJRプレシア大森北(1DK/2階) | |||||||
![]() | 14.1万円 1万円 | 14.1万円 なし | 1DK 29.62m2 | 築2年 | 京浜東北・根岸線 大森駅(東京) 徒歩11分 東京都大田区大森北5丁目 | 詳細を見る | |
アパート セレスティア下丸子(2LDK/3階) | |||||||
![]() | 19万円 6,000円 | なし 38万円 | 2LDK 48.93m2 | 新築 | 東急多摩川線 武蔵新田駅 徒歩7分 東急多摩川線 下丸子駅 徒歩8分 東急池上線 千鳥町駅 徒歩15分 東京都大田区下丸子 | 詳細を見る | |
マンション ダイアローグステージ(1K/5階) | |||||||
![]() | 9.6万円 5,000円 | 9.6万円 19.2万円 | 1K 35.65m2 | 築19年 | 東急多摩川線 矢口渡駅 徒歩4分 東急多摩川線 武蔵新田駅 徒歩12分 東京都大田区多摩川1丁目 | 詳細を見る | |
マンション メゾンドボナール(1DK/4階) | |||||||
![]() | 12万円 3,000円 | 12万円 なし | 1DK 32.48m2 | 築29年 | 京浜東北・根岸線 蒲田駅 徒歩10分 京浜急行電鉄本線 京急蒲田駅 徒歩10分 東京都大田区蒲田3丁目 | 詳細を見る | |
マンション アジュール目黒不動前(1DK/1階) | |||||||
![]() | 14.5万円 5,000円 | 14.5万円 29万円 | 1DK 38.14m2 | 築12年 | 東急目黒線 不動前駅 徒歩9分 東急池上線 戸越銀座駅 徒歩11分 東急池上線 大崎広小路駅 徒歩12分 東京都品川区西五反田 | 詳細を見る | |








