賃貸マンション
クレアシオン中野北の賃貸物件情報(1K/5階)
| 家賃 | 管理費等 | 敷金 | 礼金 | 間取り | 専有面積 |
|---|---|---|---|---|---|
| 8.5万円 | 1万円 | 8.5万円 | 8.5万円 | 1K | 21.6m2 |
入居決定でお祝い金最大100,000円
- 保証金
- -
- 償却・敷引
- -
- 築年数
- 築25年
- 所在階
- 5階
- 向き
- 南東
Point
東京・神奈川・埼玉・千葉と幅広く物件の取り扱いを行っております。こちらの物件以外にも気になる物件がございましたらお気軽にお問い合わせください。
提供:(株)sagasumu(SUUMO経由)

詳細情報 クレアシオン中野北
物件紹介
クレアシオン中野北は西武新宿線沼袋駅から徒歩9分にあり、駅近で通勤通学に便利なマンションです。
このお部屋は2階以上に位置しているので、通行人や周囲の住人からの視線が気になりにくく、防犯面でも安心。建物のエントランスはオートロックがついており、インターホンにはTVモニタもついているため、相手の顔を確認してから来客対応することができます。
人気の南向き・フローリングのお部屋。角部屋でもあるため、周囲の居住者の生活音も気になりにくい場所です。キッチンはシステムキッチン仕様になっていますので、お料理好きの方にもぴったり。また、バス・トイレは別で、のんびりお風呂タイムも楽しめるでしょう。
通信設備面では、インターネット接続が可能です。また、CATVにも対応しているので、おうち時間も充実するでしょう(別途工事、契約料が必要な場合あり)。
建物にはエレベーターがついているので、重い荷物があっても安心。共用部には宅配ボックスが設定されているので、不在の時にも荷物を受け取ることができます。
このお部屋は2階以上に位置しているので、通行人や周囲の住人からの視線が気になりにくく、防犯面でも安心。建物のエントランスはオートロックがついており、インターホンにはTVモニタもついているため、相手の顔を確認してから来客対応することができます。
人気の南向き・フローリングのお部屋。角部屋でもあるため、周囲の居住者の生活音も気になりにくい場所です。キッチンはシステムキッチン仕様になっていますので、お料理好きの方にもぴったり。また、バス・トイレは別で、のんびりお風呂タイムも楽しめるでしょう。
通信設備面では、インターネット接続が可能です。また、CATVにも対応しているので、おうち時間も充実するでしょう(別途工事、契約料が必要な場合あり)。
建物にはエレベーターがついているので、重い荷物があっても安心。共用部には宅配ボックスが設定されているので、不在の時にも荷物を受け取ることができます。
お金・契約の情報
※「-」と表示されているものは、実際は料金が発生するものもございます。詳細はお問い合わせください。
| 家賃 | 8.5万円 | 管理費・共益費 | 1万円 |
|---|---|---|---|
| 敷金 | 8.5万円 | 礼金 | 8.5万円 |
| 入居決定でお祝い金最大100,000円 | |||
| 保証金 | - | 償却・敷引 | - |
| 住宅保険料 | - | 更新料 | - |
| 保証会社利用 | 必須 | 保証会社名 | 全保連 |
| 保証会社費用 | - | 保証会社備考 | 全保連利用必 Casa。初回保証料50% |
| 契約形態 | - | 契約期間 | - |
| 入居・引渡期間 | 相談 | 現況 | - |
| 契約備考 | 合計3.3万円(内訳:鍵交換費 33000円) Eリリーブ:27500円 1K 普通借家2年 損保【2.3万円2年】 バストイレ別、バルコニー、エアコン、ガスコンロ対応、クロゼット、オートロック、室内洗濯置、シューズボックス、温水洗浄便座、エレベーター、宅配ボックス、敷金1ヶ月、2沿線利用可、保証金不要、3駅以上利用可、駅徒歩10分以内、東南向き、都市ガス、礼金1ヶ月 | ||
部屋の情報
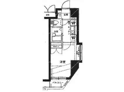
| 間取り | 1K | 専有面積 | 21.6m2 |
|---|---|---|---|
| 所在階 / 向き | 5階 / 南東 | バルコニー面積 | - |
| 水道 / ガス | - | ||
| 設備 | バス・トイレ別、2階以上、オートロック、宅配ボックス、エアコン、エレベーター、温水洗浄便座、南向き、バルコニー、コンロ:ガス、洗濯機:室内 | ||
| 当社物件ID | 28323886 | ||
建物の情報
| 建物名 | クレアシオン中野北 | ||
|---|---|---|---|
| 所在地 | 東京都中野区江古田 | ||
| 交通 | 西武新宿線 沼袋駅 徒歩9分 西武新宿線 野方駅 徒歩14分 都営大江戸線 新江古田駅 徒歩22分 | ||
| 階数 | 9階建 | 総戸数 | 32戸 |
| 築年月 | 2001年05月 / 築25年 | エレベーター | あり |
| 駐車場 | なし | バイク置き場 | - |
| 駐輪場 | - | 管理人/管理会社 | - |
| 周辺環境 | その他 まいばすけっと沼袋駅北店(スーパー)まで577m その他 ファミリーマート中野沼袋四丁目店(コンビニ)まで339m その他 どらっぐぱぱす江古田店(ドラッグストア)まで181m その他 コジマ×ビックカメラ豊玉店(ホームセンター)まで1033m その他 松のや沼袋店(マイカリー食堂併設)(飲食店)まで619m その他 社会福祉法人浄風園中野江古田病院(病院)まで619m | ||
| 建物種別 | マンション | 建物構造 | RC(鉄筋コンクリート) |
この部屋の取扱い不動産会社
| 会社名 | (株)approom(SUUMO経由) | ||
|---|---|---|---|
| 所在地 | 東京都渋谷区円山町 28-3 | 交通 | - |
| 営業時間 | 10:00~18:00 | 定休日 | 不定期 |
| 免許番号 | 東京都知事103293 | 取引態様 | 仲介 |
| 不動産会社管理番号 | 100478935713 | 当社管理番号 | 89 |
| 所属団体 | (公社)全日本不動産協会東京都本部会員 | ||
| 公正取引協議会 | (公社)首都圏不動産公正取引協議会加盟 | ||
| 取扱い物件情報 | 物件詳細へ | ||
※各種情報と現状に差異がある場合は、現状優先となります。問い合わせをすることで、より詳しい条件、情報を確認する事ができます。
提供:(株)approom(SUUMO経由)
この物件が気になったら掲載期限まであと8日
クレアシオン中野北に条件(家賃・エリア)が近い物件一覧
| 写真 | 家賃 管理費等 | 敷金 礼金 | 間取り 専有面積 | 築年数 | 最寄り駅 所在地 | キープ | 詳細 |
|---|---|---|---|---|---|---|---|
マンション ジェノヴィア桜上水II(1K/3階) | |||||||
![]() | 9.4万円 1.5万円 | 9.4万円 9.4万円 | 1K 20.74m2 | 築2年 | 京王線 桜上水駅 徒歩9分 京王線 上北沢駅 徒歩9分 東急世田谷線 下高井戸駅 徒歩19分 東京都杉並区下高井戸 | 詳細を見る | |
アパート 東大泉3丁目NEOAVAND(ワンルーム/2階) | |||||||
![]() | 5.9万円 4,000円 | なし 5.9万円 | ワンルーム 11.61m2 | 新築 | 西武池袋線 大泉学園駅 徒歩7分 西武池袋線 石神井公園駅 徒歩23分 西武池袋線 保谷駅 徒歩30分 東京都練馬区東大泉 | 詳細を見る | |
マンション ティアラ目白アベニュー(1K/4階) | |||||||
![]() | 9.5万円 1万円 | 9.5万円 9.5万円 | 1K 24.95m2 | 築25年 | 都営大江戸線 落合南長崎駅 徒歩5分 西武池袋線 椎名町駅 徒歩11分 JR山手線 目白駅 徒歩23分 東京都豊島区南長崎 | 詳細を見る | |
マンション スパシエ幡ヶ谷(1DK/1階) | |||||||
![]() | 11.85万円 1.5万円 | 11.85万円 11.85万円 | 1DK 25.65m2 | 築1年 | 京王新線 幡ケ谷駅 徒歩13分 東京メトロ丸ノ内線 中野新橋駅 徒歩13分 東京メトロ丸ノ内線 中野富士見町駅 徒歩15分 東京都中野区南台 | 詳細を見る | |
アパート ヴァウハウス(1K/1階) | |||||||
![]() | 8.7万円 2,000円 | なし 8.7万円 | 1K 23.46m2 | 築8年 | 東京メトロ丸ノ内線 新大塚駅 徒歩6分 JR山手線 大塚駅(東京) 徒歩8分 JR山手線 巣鴨駅 徒歩10分 東京都豊島区南大塚 | 詳細を見る | |
マンション HARU TERRACE(1LDK/2階) | |||||||
![]() | 13.1万円 1万円 | 13.1万円 6.55万円 | 1LDK 48.32m2 | 築2年 | 西武池袋線 石神井公園駅 徒歩23分 都営大江戸線 光が丘駅 徒歩28分 西武池袋線 練馬高野台駅 徒歩32分 東京都練馬区谷原 | 詳細を見る | |
マンション 第13安藤マンション(1K/2階) | |||||||
![]() | 8.9万円 2,000円 | 8.9万円 8.9万円 | 1K 26.08m2 | 築41年 | 京王線 芦花公園駅 徒歩4分 京王線 八幡山駅 徒歩7分 京王線 千歳烏山駅 徒歩14分 東京都杉並区上高井戸 | 詳細を見る | |
マンション BRICKS四谷(1K/1階) | |||||||
![]() | 11.8万円 9,000円 | 11.8万円 11.8万円 | 1K 19.59m2 | 築1年 | 東京都新宿線 曙橋駅 徒歩4分 東京都新宿区愛住町 | 詳細を見る | |








/105x80-f1-q70-wp1)