賃貸マンション
ディアレイシャス名古屋浄心の賃貸物件情報(1K/9階)
| 家賃 | 管理費等 | 敷金 | 礼金 | 間取り | 専有面積 |
|---|---|---|---|---|---|
| 5.9万円 | 8,000円 | なし | なし | 1K | 21.46m2 |
入居決定でお祝い金最大100,000円
- 保証金
- -
- 償却・敷引
- -
- 築年数
- 築1年
- 所在階
- 9階
- 向き
- 南
Point
備が充実した日当たり良好なお部屋です♪、鶴舞線「浄心」徒歩8分。オートロック、宅配BOXなど完備!スーパー、ドラックストア、コンビニが徒歩圏内!
提供:ホームメイトFC名駅三丁目店(株)グローバルエステート(SUUMO経由)

詳細情報 ディアレイシャス名古屋浄心
物件紹介
ディアレイシャス名古屋浄心は地下鉄鶴舞線浄心駅から徒歩5分にあり、駅近で通勤通学に便利なマンションです。
このお部屋は2階以上に位置しているので、通行人や周囲の住人からの視線が気になりにくく、防犯面でも安心。建物のエントランスはオートロックがついており、インターホンにはTVモニタもついているため、相手の顔を確認してから来客対応することができます。
おしゃれなデザイナーズ物件!人気の南向きのお部屋。また、フローリングなのでお掃除もラクラク。キッチンはシステムキッチン仕様になっていますので、お料理好きの方にもぴったり。バス・トイレは別なので、のんびりお風呂タイムも楽しめるでしょう。また、雨の日でも浴室乾燥機を使えば、お洗濯も問題ありません。
通信設備面では、インターネットが無料で使えるので、月々の出費を抑えられるのも魅力です。また、BSアンテナ・CSアンテナもありますので、おうち時間も充実するでしょう(別途工事、BS・CSの契約料等が必要な場合あり)。
建物にはエレベーターがついているので、重い荷物があっても安心。共用部には宅配ボックスが設定されているので、不在の時にも荷物を受け取ることができます。
このお部屋は2階以上に位置しているので、通行人や周囲の住人からの視線が気になりにくく、防犯面でも安心。建物のエントランスはオートロックがついており、インターホンにはTVモニタもついているため、相手の顔を確認してから来客対応することができます。
おしゃれなデザイナーズ物件!人気の南向きのお部屋。また、フローリングなのでお掃除もラクラク。キッチンはシステムキッチン仕様になっていますので、お料理好きの方にもぴったり。バス・トイレは別なので、のんびりお風呂タイムも楽しめるでしょう。また、雨の日でも浴室乾燥機を使えば、お洗濯も問題ありません。
通信設備面では、インターネットが無料で使えるので、月々の出費を抑えられるのも魅力です。また、BSアンテナ・CSアンテナもありますので、おうち時間も充実するでしょう(別途工事、BS・CSの契約料等が必要な場合あり)。
建物にはエレベーターがついているので、重い荷物があっても安心。共用部には宅配ボックスが設定されているので、不在の時にも荷物を受け取ることができます。
お金・契約の情報
※「-」と表示されているものは、実際は料金が発生するものもございます。詳細はお問い合わせください。
| 家賃 | 5.9万円 | 管理費・共益費 | 8,000円 |
|---|---|---|---|
| 敷金 | なし | 礼金 | なし |
| 入居決定でお祝い金最大100,000円 | |||
| 保証金 | - | 償却・敷引 | - |
| 住宅保険料 | - | 更新料 | - |
| 保証会社利用 | 利用可 | 保証会社名 | - |
| 保証会社費用 | - | 保証会社備考 | 保証会社利用可 利用可(相談) |
| 契約形態 | - | 契約期間 | - |
| 入居・引渡期間 | 即時 | 現況 | - |
| 契約備考 | 巡回管理 合計4.4万円(内訳:クリーニング費用(税込):44000円) 24時間緊急対応(税込):1100円/1ヵ月 1K 損保【1.8万円2年】 バストイレ別、バルコニー、エアコン、クロゼット、フローリング、TVインターホン、浴室乾燥機、オートロック、室内洗濯置、システムキッチン、南向き、エレベーター、洗面所独立、2口コンロ、駐輪場、宅配ボックス、光ファイバー、即入居可、BS・CS、防犯カメラ、全居室洋室、保証人不要、ネット使用料不要、保証金不要、築2年以内、未入居、3駅以上利用可、駅徒歩10分以内、敷地内ごみ置き場、全居室6畳以上、都市ガス、敷金・礼金不要 | ||
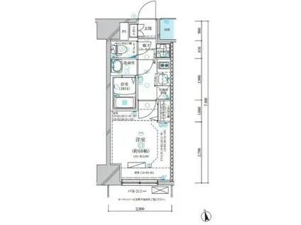
部屋の情報
| 間取り | 1K | 専有面積 | 21.46m2 |
|---|---|---|---|
| 所在階 / 向き | 9階 / 南 | バルコニー面積 | - |
| 水道 / ガス | - | ||
| 設備 | バス・トイレ別、2階以上、オートロック、テレビドアホン、宅配ボックス、浴室乾燥機、インターネット対応、システムキッチン、エアコン、エレベーター、南向き、バルコニー、フローリング、洗髪洗面化粧台、2口コンロ、CSアンテナ、BSアンテナ、インターネット使用料無料、洗濯機:室内 | ||
| 当社物件ID | 159324937 | ||
建物の情報
| 建物名 | ディアレイシャス名古屋浄心 | ||
|---|---|---|---|
| 所在地 | 愛知県名古屋市西区花の木 | ||
| 交通 | 地下鉄鶴舞線 浄心駅 徒歩8分 地下鉄鶴舞線 浅間町駅 徒歩11分 地下鉄鶴舞線 庄内通駅 徒歩23分 | ||
| 階数 | 15階建 | 総戸数 | 56戸 |
| 築年月 | 2025年07月 / 築1年 | エレベーター | あり |
| 駐車場 | 空有 17000円 | バイク置き場 | - |
| 駐輪場 | あり | 管理人/管理会社 | - |
| 周辺環境 | その他 フィール花の木店(その他)まで384m その他 セブンイレブン名古屋浄心店(その他)まで569m その他 ドラッグスギヤマ城西店(その他)まで564m その他 いちい信用金庫浄心支店(その他)まで414m その他 名古屋天神山郵便局(その他)まで408m | ||
| 建物種別 | マンション | 建物構造 | RC(鉄筋コンクリート) |
この部屋の取扱い不動産会社
| 会社名 | ホームメイトFC栄駅前店(有)アクアネット(SUUMO経由) | ||
|---|---|---|---|
| 所在地 | 愛知県名古屋市中区錦3-14-14 | 交通 | - |
| 営業時間 | 10:00~18:00 | 定休日 | 無し |
| 免許番号 | 愛知県知事19790 | 取引態様 | 仲介 |
| 不動産会社管理番号 | 100476416107 | 当社管理番号 | 89 |
| 所属団体 | (公社)全日本不動産協会愛知県本部会員 | ||
| 公正取引協議会 | 東海不動産公正取引協議会加盟 | ||
| 取扱い物件情報 | 物件詳細へ | ||
※各種情報と現状に差異がある場合は、現状優先となります。問い合わせをすることで、より詳しい条件、情報を確認する事ができます。
提供:ホームメイトFC栄駅前店(有)アクアネット(SUUMO経由)
この物件が気になったら掲載期限まであと10日
ディアレイシャス名古屋浄心の空き部屋一覧
全部で31の空き部屋があります。
ディアレイシャス名古屋浄心に条件(家賃・エリア)が近い物件一覧
| 写真 | 家賃 管理費等 | 敷金 礼金 | 間取り 専有面積 | 築年数 | 最寄り駅 所在地 | キープ | 詳細 |
|---|---|---|---|---|---|---|---|
マンション S-RESIDENCE庄内通駅前CURERE(1K/12階) | |||||||
![]() | 6.65万円 8,000円 | なし 6.65万円 | 1K 25.23m2 | 築1年 | 名古屋市鶴舞線 庄内通駅 徒歩3分 名古屋市鶴舞線 庄内緑地公園駅 徒歩16分 名古屋市鶴舞線 浄心駅 徒歩21分 愛知県名古屋市西区庄内通4丁目 | 詳細を見る | |
マンション ディアレイシャス浅間町ステーションフロント(1K/13階) | |||||||
![]() | 6.3万円 8,000円 | なし なし | 1K 21.1m2 | 築5年 | 名古屋市鶴舞線 浅間町駅 徒歩1分 名古屋市鶴舞線 浄心駅 徒歩12分 名古屋市鶴舞線 丸の内駅(愛知) 徒歩19分 愛知県名古屋市西区浅間1丁目 | 詳細を見る | |
アパート PATINA東枇杷島(1LDK/3階) | |||||||
![]() | 6.3万円 4,000円 | なし 6.3万円 | 1LDK 30.29m2 | 築3年 | 名鉄名古屋本線 東枇杷島駅 徒歩9分 名鉄名古屋本線 西枇杷島駅 徒歩15分 名鉄名古屋本線 栄生駅 徒歩19分 愛知県名古屋市西区枇杷島4丁目 | 詳細を見る | |
マンション ディアレイシャス浅間町Ⅲ(1K/8階) | |||||||
![]() | 6万円 8,000円 | なし なし | 1K 22.8m2 | 築4年 | 名古屋市鶴舞線 浅間町駅 徒歩5分 名古屋市鶴舞線 浄心駅 徒歩7分 愛知県名古屋市西区花の木1丁目 | 詳細を見る | |
マンション メイクスWアート浅間町(1K/8階) | |||||||
![]() | 5.87万円 8,000円 | なし なし | 1K 22.93m2 | 築2年 | 名古屋市鶴舞線 浅間町駅 徒歩8分 名古屋市鶴舞線 浄心駅 徒歩12分 名鉄名古屋本線 栄生駅 徒歩20分 愛知県名古屋市西区押切2丁目 | 詳細を見る | |
マンション S-RESIDENCE浅間町駅前AXIAL(1K/9階) | |||||||
![]() | 6.65万円 8,000円 | なし なし | 1K 25.33m2 | 築1年 | 地下鉄鶴舞線 浅間町駅 徒歩2分 地下鉄鶴舞線 浄心駅 徒歩15分 地下鉄桜通線 国際センター駅(愛知) 徒歩18分 愛知県名古屋市西区新道 | 詳細を見る | |
マンション プレサンス名古屋ルクソリア(1K/8階) | |||||||
![]() | 5.96万円 6,750円 | なし なし | 1K 21.09m2 | 築1年 | 名古屋市東山線 名古屋駅 徒歩9分 愛知県名古屋市西区菊井2丁目 | 詳細を見る | |
アパート フォンテンブロー笠取町(1K/3階) | |||||||
![]() | 4.7万円 4,000円 | なし 9.4万円 | 1K 24.18m2 | 築8年 | 地下鉄鶴舞線 庄内通駅 徒歩7分 地下鉄鶴舞線 浄心駅 徒歩10分 地下鉄鶴舞線 浅間町駅 徒歩23分 愛知県名古屋市西区笠取町 | 詳細を見る | |






/105x80-f1-q70-wp1)
