賃貸マンション
栖-すみか-浅草蔵前の賃貸物件情報(1LDK/10階)
| 家賃 | 管理費等 | 敷金 | 礼金 | 間取り | 専有面積 |
|---|---|---|---|---|---|
| 20.8万円 | 1万円 | 20.8万円 | なし | 1LDK | 43.37m2 |
入居決定でお祝い金最大100,000円
- 保証金
- -
- 償却・敷引
- -
- 築年数
- 築3年
- 所在階
- 10階
- 向き
- 南東
- 交通
- 都営大江戸線 蔵前駅 徒歩3分
東京メトロ銀座線 浅草駅(東武・都営・メトロ) 徒歩7分
つくばエクスプレス 浅草駅(つくばEXP) 徒歩12分
- 所在地
- 東京都台東区駒形
栖-すみか-浅草蔵前
[地図を表示]
Point
室内見学承ります・お客様のご都合に合わせてオンラインまたはお近くの店舗でご提案可・初期費用分割払い可・クレジットカード利用可・引越業者割引・初期費用のお見積や入居日のご相談もお気軽にお問合せください
提供:SEG(株)PeerHome広尾駅前店アネックス(SUUMO経由)

詳細情報 栖-すみか-浅草蔵前
物件紹介
栖-すみか-浅草蔵前は都営大江戸線蔵前駅から徒歩3分にあり、駅近で通勤通学に便利なマンションです。
このお部屋は2階以上に位置しているので、通行人や周囲の住人からの視線が気になりにくく、防犯面でも安心。建物のエントランスはオートロックがついており、インターホンにはTVモニタもついているため、相手の顔を確認してから来客対応することができます。
こちらは楽器相談が可能な物件。楽器演奏をお考えの方はぜひ相談してみてください。人気の南向き・フローリングのお部屋。室内にはウォークインクローゼットがありますので、たくさんの荷物も効率的に収納ができます。キッチンはシステムキッチン仕様になっていますので、お料理好きの方にもぴったり。バス・トイレは別なので、のんびりお風呂タイムも楽しめるでしょう。また、雨の日でも浴室乾燥機を使えば、お洗濯も問題ありません。
通信設備面では、インターネット接続が可能です。また、BSアンテナ・CSアンテナがありCATVにも対応しているので、おうち時間も充実するでしょう(別途工事、契約料が必要な場合あり)。
建物にはエレベーターがついているので、重い荷物があっても安心。共用部には宅配ボックスが設定されているので、不在の時にも荷物を受け取ることができます。
このお部屋は2階以上に位置しているので、通行人や周囲の住人からの視線が気になりにくく、防犯面でも安心。建物のエントランスはオートロックがついており、インターホンにはTVモニタもついているため、相手の顔を確認してから来客対応することができます。
こちらは楽器相談が可能な物件。楽器演奏をお考えの方はぜひ相談してみてください。人気の南向き・フローリングのお部屋。室内にはウォークインクローゼットがありますので、たくさんの荷物も効率的に収納ができます。キッチンはシステムキッチン仕様になっていますので、お料理好きの方にもぴったり。バス・トイレは別なので、のんびりお風呂タイムも楽しめるでしょう。また、雨の日でも浴室乾燥機を使えば、お洗濯も問題ありません。
通信設備面では、インターネット接続が可能です。また、BSアンテナ・CSアンテナがありCATVにも対応しているので、おうち時間も充実するでしょう(別途工事、契約料が必要な場合あり)。
建物にはエレベーターがついているので、重い荷物があっても安心。共用部には宅配ボックスが設定されているので、不在の時にも荷物を受け取ることができます。
お金・契約の情報
※「-」と表示されているものは、実際は料金が発生するものもございます。詳細はお問い合わせください。
| 家賃 | 20.8万円 | 管理費・共益費 | 1万円 |
|---|---|---|---|
| 敷金 | 20.8万円 | 礼金 | なし |
| 入居決定でお祝い金最大100,000円 | |||
| 保証金 | - | 償却・敷引 | - |
| 住宅保険料 | - | 更新料 | - |
| 保証会社利用 | 必須 | 保証会社名 | - |
| 保証会社費用 | - | 保証会社備考 | 保証会社利用必 初回:月額総家賃の40%~ |
| 契約形態 | - | 契約期間 | - |
| 入居・引渡期間 | 相談 | 現況 | - |
| 入居可能条件 | 楽器相談 | ||
| 契約備考 | 当物件はオンラインまたはお近くの店舗でご相談お申込を承ります。リライフは首都圏23店舗のネットワークで豊富な物件情報をご提供いたします。当物件に類似した未公開物件のご提案も可能です。お気軽にお問い合わせください。 合計2.2万円(内訳:鍵交換代金2.2万円) セキュリティ利用料(月額)0.18万円 1LDK 二人入居可/楽器相談 損保【1.9万円2年】 バストイレ別、バルコニー、エアコン、ガスコンロ対応、クロゼット、フローリング、TVインターホン、浴室乾燥機、オートロック、室内洗濯置、陽当り良好、シューズボックス、システムキッチン、追焚機能浴室、温水洗浄便座、脱衣所、エレベーター、洗面所独立、2口コンロ、駐輪場、宅配ボックス、光ファイバー、BS・CS、防犯カメラ、オートバス、ウォークインクロゼット、保証人不要、二人入居相談、バイク置場、全居室フローリング、ディンプルキー、浄水器、全室南向き、ダブルロックキー、24時間換気システム、楽器相談、エレベーター2基、始発駅、3駅以上利用可、3沿線以上利用可、24時間ゴミ出し可、敷地内ごみ置き場、東南向き、セキュリティ会社加入済、都市ガス、南面バルコニー、玄関収納、保証会社利用可、初期費用カード決済可 | ||
部屋の情報
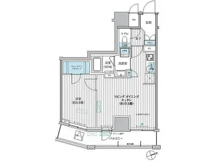
| 間取り | 1LDK | 専有面積 | 43.37m2 |
|---|---|---|---|
| 所在階 / 向き | 10階 / 南東 | バルコニー面積 | - |
| 水道 / ガス | - | ||
| 設備 | バス・トイレ別、2階以上、オートロック、テレビドアホン、宅配ボックス、浴室乾燥機、ウォークインクローゼット、追い焚き、インターネット対応、システムキッチン、エアコン、エレベーター、温水洗浄便座、南向き、バルコニー、フローリング、洗髪洗面化粧台、2口コンロ、コンロ:ガス、CSアンテナ、BSアンテナ、洗濯機:室内 | ||
| 当社物件ID | 152987526 | ||
建物の情報
| 建物名 | 栖-すみか-浅草蔵前 | ||
|---|---|---|---|
| 所在地 | 東京都台東区駒形 | ||
| 交通 | 都営大江戸線 蔵前駅 徒歩3分 東京メトロ銀座線 浅草駅(東武・都営・メトロ) 徒歩7分 つくばエクスプレス 浅草駅(つくばEXP) 徒歩12分 | ||
| 階数 | 14階建 | 総戸数 | 55戸 |
| 築年月 | 2024年04月 / 築3年 | エレベーター | あり |
| 駐車場 | 空有 38500円/機械式駐 | バイク置き場 | あり |
| 駐輪場 | あり | 管理人/管理会社 | - |
| 周辺環境 | その他 まいばすけっと 蔵前駅前店(スーパー)まで319m その他 まいばすけっと 雷門2丁目店(スーパー)まで460m その他 セブンイレブン台東駒形1丁目店(コンビニ)まで97m その他 ファミリーマート 台東駒形一丁目店(コンビニ)まで162m その他 どらっぐぱぱす浅草雷門店(ドラッグストア)まで590m その他 喜久屋クリーニング 寿店(その他)まで283m | ||
| 建物種別 | マンション | 建物構造 | RC(鉄筋コンクリート) |
この部屋の取扱い不動産会社
| 会社名 | (株)リライフ錦糸町店(SUUMO経由) | ||
|---|---|---|---|
| 所在地 | 東京都墨田区錦糸3-3-1 第一ハセガワビル5階 | 交通 | - |
| 営業時間 | 10:00~18:30 | 定休日 | 毎週火・水曜日 |
| 免許番号 | 国土交通大臣10792 | 取引態様 | 仲介 |
| 不動産会社管理番号 | 100494848055 | 当社管理番号 | 89 |
| 所属団体 | (公社)東京都宅地建物取引業協会会員 | ||
| 公正取引協議会 | (公社)首都圏不動産公正取引協議会加盟 | ||
| 取扱い物件情報 | 物件詳細へ | ||
※各種情報と現状に差異がある場合は、現状優先となります。問い合わせをすることで、より詳しい条件、情報を確認する事ができます。
提供:(株)リライフ錦糸町店(SUUMO経由)
この物件が気になったら掲載期限まであと11日
栖-すみか-浅草蔵前に条件(家賃・エリア)が近い物件一覧
| 写真 | 家賃 管理費等 | 敷金 礼金 | 間取り 専有面積 | 築年数 | 最寄り駅 所在地 | キープ | 詳細 |
|---|---|---|---|---|---|---|---|
マンション パークアクシス御茶ノ水(1LDK/12階) | |||||||
![]() | 24.3万円 1.2万円 | 24.3万円 なし | 1LDK 44.75m2 | 築10年 | 山手線 秋葉原駅 徒歩7分 中央本線 御茶ノ水駅 徒歩8分 東京都文京区湯島1丁目 | 詳細を見る | |
マンション ヴェルトウォーターフロント(1K/3階) | |||||||
![]() | 12.9万円 1.1万円 | なし 12.9万円 | 1K 22.2m2 | 築25年 | 東京都大江戸線 勝どき駅 徒歩5分 東京地下鉄有楽町線 月島駅 徒歩12分 東京都大江戸線 月島駅 徒歩12分 東京都中央区勝どき3丁目 | 詳細を見る | |
マンション クレストコート本所吾妻橋ノース 本所吾妻橋ノース(1DK/8階) | |||||||
![]() | 15.7万円 1.2万円 | 15.7万円 なし | 1DK 25.42m2 | 築1年 | 東京都浅草線 本所吾妻橋駅 徒歩2分 東京地下鉄銀座線 浅草駅(東武・都営・メトロ) 徒歩9分 東武伊勢崎・大師線 とうきょうスカイツリー駅 徒歩10分 東京都墨田区吾妻橋2丁目 | 詳細を見る | |
マンション MODIER GINZA イースト(2LDK/2階) | |||||||
![]() | 30万円 1.5万円 | 30万円 なし | 2LDK 50.04m2 | 築1年 | 東京メトロ有楽町線 新富町駅(東京) 徒歩3分 東京メトロ日比谷線 八丁堀駅(東京) 徒歩5分 東京メトロ日比谷線 築地駅 徒歩7分 東京都中央区新富 | 詳細を見る | |
マンション RJRプレシア菊川駅前(1K/9階) | |||||||
![]() | 12.7万円 1万円 | 12.7万円 12.7万円 | 1K 26.34m2 | 築5年 | 東京都新宿線 菊川駅(東京) 徒歩3分 東京地下鉄半蔵門線 住吉駅(東京) 徒歩9分 東京都墨田区菊川3丁目 | 詳細を見る | |
マンション フロリス オーランティウム3(1LDK/2階) | |||||||
![]() | 19.4万円 1.1万円 | なし 19.4万円 | 1LDK 46.5m2 | 築55年 | 都営大江戸線 月島駅 徒歩2分 都営大江戸線 勝どき駅 徒歩7分 東京メトロ日比谷線 築地駅 徒歩21分 東京都中央区月島 | 詳細を見る | |
マンション キャッスルマンション両国B号館(2LDK/7階) | |||||||
![]() | 21.7万円 2万円 | 21.7万円 なし | 2LDK 50.22m2 | 築41年 | JR総武線 両国駅 徒歩5分 都営大江戸線 森下駅(東京) 徒歩9分 東京都墨田区両国 | 詳細を見る | |
マンション EST FELICITA 押上(1SLDK/1階) | |||||||
![]() | 20万円 8,000円 | なし なし | 1SLDK 46.43m2 | 築1年 | 東京地下鉄半蔵門線 押上駅 徒歩5分 東武伊勢崎・大師線 押上駅 徒歩12分 東京都墨田区押上3丁目 | 詳細を見る | |








