賃貸マンション
ミオパラッツオ・Tの賃貸物件情報(ワンルーム/3階)
| 家賃 | 管理費等 | 敷金 | 礼金 | 間取り | 専有面積 |
|---|---|---|---|---|---|
| 3.45万円 | なし | 4万円 | 4万円 | ワンルーム | 25m2 |
入居決定でお祝い金最大100,000円
Point
合格前予約・内見予約・契約申込は弊社HPよりお願いいたします。
提供:(株)REM(SUUMO経由)

詳細情報 ミオパラッツオ・T
物件紹介
ミオパラッツオ・TはJR山陰本線鳥取大学前駅から徒歩1分にあり、駅近で通勤通学に便利なマンションです。
このお部屋は2階以上に位置しているので通行人や周囲の住人からの視線が気になりにくく、建物のエントランスはオートロックがついているので防犯性が高くなっています。
人気の角部屋で周囲の居住者の生活音も気になりにくく、また、フローリングのお部屋なのでお掃除もラクラク。バス・トイレ別の仕様で、のんびりお風呂タイムも楽しめます。
通信設備面では、インターネットが無料で使えるので、月々の出費を抑えられるのも魅力です。また、BSアンテナ・CSアンテナもありますので、おうち時間も充実するでしょう(別途工事、BS・CSの契約料等が必要な場合あり)。
このお部屋は2階以上に位置しているので通行人や周囲の住人からの視線が気になりにくく、建物のエントランスはオートロックがついているので防犯性が高くなっています。
人気の角部屋で周囲の居住者の生活音も気になりにくく、また、フローリングのお部屋なのでお掃除もラクラク。バス・トイレ別の仕様で、のんびりお風呂タイムも楽しめます。
通信設備面では、インターネットが無料で使えるので、月々の出費を抑えられるのも魅力です。また、BSアンテナ・CSアンテナもありますので、おうち時間も充実するでしょう(別途工事、BS・CSの契約料等が必要な場合あり)。
お金・契約の情報
※「-」と表示されているものは、実際は料金が発生するものもございます。詳細はお問い合わせください。
| 家賃 | 3.45万円 | 管理費・共益費 | なし |
|---|---|---|---|
| 敷金 | 4万円 | 礼金 | 4万円 |
| フリーレント | あり | ||
| 入居決定でお祝い金最大100,000円 | |||
| 保証金 | - | 償却・敷引 | - |
| 住宅保険料 | - | 更新料 | - |
| 契約形態 | 定期借家 | 契約期間 | 1年 |
| 入居・引渡期間 | 即時 | 現況 | - |
| 契約備考 | 巡回管理/※PLAZA LABの会員になると、防災用品の利用が可能です。※写真は別のお部屋のものの場合があります ワンルーム 学生限定/子供不可/事務所利用不可/ルームシェア不可 定期借家1年 損保【0.75万円1年】 バストイレ別、バルコニー、エアコン、フローリング、オートロック、室内洗濯置、陽当り良好、シューズボックス、角住戸、温水洗浄便座、駐輪場、光ファイバー、即入居可、閑静な住宅地、最上階、BS・CS、IHクッキングヒーター、全居室収納、内外装リフォーム済、保証人不要、冷蔵庫、バイク置場、オール電化、全居室フローリング、仲手0.55ヶ月、ネット専用回線、洗濯機、ネット使用料不要、フリーレント、緑豊かな住宅地、眺望良好、エアコン全室、保証金不要、文教地区、家電付、家具付、耐震構造、学生敷金1ヶ月、駅徒歩5分以内、バス停徒歩3分以内、敷地内ごみ置き場、平面駐車場、日勤管理、当社管理物件、高速ネット対応、LAN、リノベーション、年度内入居可、礼金1ヶ月、初期費用30万円以下、IT重説対応物件、通風良好 | ||
部屋の情報
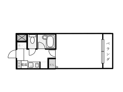
| 間取り | ワンルーム | 専有面積 | 25m2 |
|---|---|---|---|
| 所在階 / 向き | 3階 / 北 | バルコニー面積 | - |
| 水道 / ガス | - | ||
| 設備 | バス・トイレ別、2階以上、オートロック、インターネット対応、エアコン、温水洗浄便座、角部屋、バルコニー、フローリング、オール電化、コンロ:IH、CSアンテナ、BSアンテナ、インターネット使用料無料、洗濯機:室内 | ||
| 当社物件ID | 160158370 | ||
建物の情報
| 建物名 | ミオパラッツオ・T | ||
|---|---|---|---|
| 所在地 | 鳥取県鳥取市湖山町北 | ||
| 交通 | JR山陰本線 鳥取大学前駅 徒歩1分 | ||
| 階数 | 3階建 | 総戸数 | 14戸 |
| 築年月 | 1997年03月 / 築29年 | エレベーター | - |
| 駐車場 | 近隣 200m4400円 | バイク置き場 | あり |
| 駐輪場 | あり | 管理人/管理会社 | - |
| 周辺環境 | その他 エスマート湖山店(スーパー)まで653m その他 マルイ湖山店(スーパー)まで1165m その他 ローソン鳥取大学前店(コンビニ)まで144m その他 ファミリーマート鳥取湖山西店(コンビニ)まで439m その他 鳥取湖山北郵便局(郵便局)まで653m その他 山陰合同銀行湖山出張所(銀行)まで184m | ||
| 建物種別 | マンション | 建物構造 | 鉄骨造 |
この部屋の取扱い不動産会社
| 会社名 | (株)REM(SUUMO経由) | ||
|---|---|---|---|
| 所在地 | 鳥取県鳥取市湖山町西1-721 | 交通 | - |
| 営業時間 | 10:00~16:00 | 定休日 | 日曜・祝日 |
| 免許番号 | 鳥取県知事1277 | 取引態様 | 仲介 |
| 不動産会社管理番号 | 100481186127 | 当社管理番号 | 89 |
| 所属団体 | (公社)鳥取県宅地建物取引業協会会員 | ||
| 公正取引協議会 | 中国地区不動産公正取引協議会加盟 | ||
| 取扱い物件情報 | 物件詳細へ | ||
※各種情報と現状に差異がある場合は、現状優先となります。問い合わせをすることで、より詳しい条件、情報を確認する事ができます。
提供:(株)REM(SUUMO経由)
この物件が気になったら掲載期限まであと11日
ミオパラッツオ・Tに条件(家賃・エリア)が近い物件一覧
| 写真 | 家賃 管理費等 | 敷金 礼金 | 間取り 専有面積 | 築年数 | 最寄り駅 所在地 | キープ | 詳細 |
|---|---|---|---|---|---|---|---|
アパート ハイツ丸山(2DK/2階) | |||||||
![]() | 3.4万円 2,000円 | 3.4万円 なし | 2DK 36m2 | 築38年 | 鳥取県鳥取市丸山町 | 詳細を見る | |
マンション フローラ(1K/2階) | |||||||
![]() | 3.5万円 3,000円 | 3.5万円 3.5万円 | 1K 23m2 | 築26年 | JR山陰本線 鳥取大学前駅 徒歩4分 鳥取県鳥取市湖山町北 | 詳細を見る | |
アパート ブルック大瀬B棟(2DK/2階) | |||||||
![]() | 4.3万円 2,200円 | なし なし | 2DK 50.86m2 | 築20年 | 鳥取県東伯郡三朝町大字大瀬 | 詳細を見る | |
アパート ラーサ・コーチ湖山北(1K/1階) | |||||||
![]() | 4.4万円 4,000円 | 4.4万円 4.4万円 | 1K 26.99m2 | 新築 | JR山陰本線 鳥取大学前駅 徒歩4分 鳥取県鳥取市湖山町北 | 詳細を見る | |
アパート プレジール(1K/2階) | |||||||
![]() | 3.2万円 2,000円 | なし なし | 1K 19.11m2 | 築35年 | 山陰本線 鳥取駅 徒歩18分 鳥取県鳥取市南吉方2丁目 | 詳細を見る | |
マンション コーポ前田(1DK/2階) | |||||||
![]() | 4.8万円 2,000円 | 4.8万円 4.8万円 | 1DK 37.49m2 | 築25年 | 山陰本線 鳥取駅 徒歩19分 鳥取県鳥取市西品治 | 詳細を見る | |
アパート プランタン(1K/1階) | |||||||
![]() | 3.8万円 2,000円 | なし なし | 1K 25.16m2 | 築35年 | 山陰本線 鳥取大学前駅 徒歩9分 鳥取県鳥取市湖山町南5丁目 | 詳細を見る | |
アパート OKマンションIII(1K/1階) | |||||||
![]() | 3.8万円 4,000円 | なし なし | 1K 25.93m2 | 築10年 | JR山陰本線 鳥取大学前駅 徒歩7分 鳥取県鳥取市湖山町南 | 詳細を見る | |









