賃貸マンション
ビレッジハウス 古和釜 5号棟の賃貸物件情報(3DK/4階)
| 家賃 | 管理費等 | 敷金 | 礼金 | 間取り | 専有面積 |
|---|---|---|---|---|---|
| 6.91万円 | なし | なし | なし | 3DK | 57.96m2 |
入居決定でお祝い金最大100,000円
- 保証金
- -
- 償却・敷引
- -
- 築年数
- 築57年
- 所在階
- 4階
- 向き
- 南西
Point
まずはお問い合わせ!
不動産会社は街のプロ、あなたに合った物件がきっと見つかります。
提供:ビレッジハウス住まい相談センター

詳細情報 ビレッジハウス 古和釜 5号棟
物件紹介
ビレッジハウス 古和釜 5号棟は東葉高速鉄道船橋日大前駅から徒歩21分にあるマンションです。
このお部屋は2階以上に位置しているので、通行人や周囲の住人からの視線が気になりにくく、防犯面でも安心。インターホンにはTVモニタもついているため、相手の顔を確認してから来客対応することができます。
人気の角部屋。周囲の居住者の生活音も気になりにくい場所です。バス・トイレ別の仕様で、のんびりお風呂タイムも楽しめます。
コンビニまで徒歩5分の場所にあり、日用品や食料品のお買い物にも便利です。
このお部屋は2階以上に位置しているので、通行人や周囲の住人からの視線が気になりにくく、防犯面でも安心。インターホンにはTVモニタもついているため、相手の顔を確認してから来客対応することができます。
人気の角部屋。周囲の居住者の生活音も気になりにくい場所です。バス・トイレ別の仕様で、のんびりお風呂タイムも楽しめます。
コンビニまで徒歩5分の場所にあり、日用品や食料品のお買い物にも便利です。
お金・契約の情報
※「-」と表示されているものは、実際は料金が発生するものもございます。詳細はお問い合わせください。
| 家賃 | 6.91万円 | 管理費・共益費 | なし |
|---|---|---|---|
| 敷金 | なし | 礼金 | なし |
| フリーレント | 1ヶ月 | ||
| 入居決定でお祝い金最大100,000円 | |||
| 保証金 | - | 償却・敷引 | - |
| 住宅保険料 | 1万円(2年) | 更新料 | - |
| 保証会社利用 | - | 保証会社名 | - |
| 保証会社費用 | - | 保証会社備考 | - |
| 契約形態 | - | 契約期間 | - |
| 入居・引渡期間 | - | 現況 | 空室 |
| 入居可能条件 | 2人入居可、高齢者相談、学生可 | ||
| 契約備考 | 契約種類:普通契約、24時間緊急対応、ウォシュレット、ウォームレット、洗面台 | ||
部屋の情報
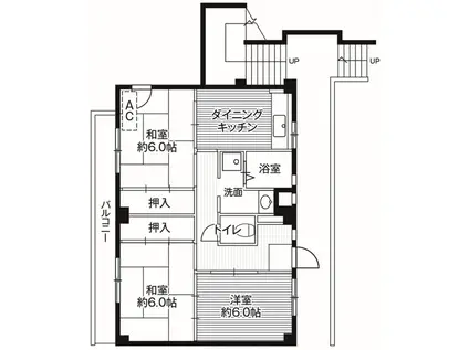
| 間取り | 3DK | 専有面積 | 57.96m2 |
|---|---|---|---|
| 所在階 / 向き | 4階 / 南西 | バルコニー面積 | - |
| 水道 / ガス | - | ||
| 設備 | バス・トイレ別、テレビドアホン、追い焚き、エアコン、角部屋、バルコニー、給湯、洗濯機:室内 | ||
| 当社物件ID | 27017900 | ||
建物の情報
| 建物名 | ビレッジハウス 古和釜 5号棟 | ||
|---|---|---|---|
| 所在地 | 千葉県船橋市松が丘5丁目23-5 | ||
| 交通 | 東葉高速鉄道 船橋日大前駅 徒歩22分 京成電鉄松戸線 高根木戸駅 徒歩27分 東葉高速鉄道 北習志野駅 徒歩28分 | ||
| 階数 | 5階建 | 総戸数 | - |
| 築年月 | 1969年08月 / 築57年 | エレベーター | - |
| 駐車場 | 空有 7,700円/月 円 | バイク置き場 | - |
| 駐輪場 | - | 管理人/管理会社 | 日勤 |
| 建物種別 | マンション | 建物構造 | RC(鉄筋コンクリート) |
この部屋の取扱い不動産会社
| 会社名 | ビレッジハウス住まい相談センター | ||
|---|---|---|---|
| 所在地 | 愛知県名古屋市中区大須4-10-32 上前津KDビル5階 | 交通 | 名城線「上前津駅」徒歩3分 |
| 営業時間 | 平日:9:00-18:30/土日祝:9:00-18:00 | 定休日 | 年中無休(年末年始を除く) |
| 免許番号 | 東京都知事(2)第100758号 | 取引態様 | 貸主 |
| 不動産会社管理番号 | 00010037588 | 当社管理番号 | 459 |
| 所属団体 | 公益社団法人東京都宅地建物取引業協会会員 日本賃貸住宅管理協会会員 | ||
| 取扱い物件情報 | 物件詳細へ | ||
※各種情報と現状に差異がある場合は、現状優先となります。問い合わせをすることで、より詳しい条件、情報を確認する事ができます。
提供:ビレッジハウス住まい相談センター
この物件が気になったら掲載期限まであと13日
ビレッジハウス 古和釜 5号棟に条件(家賃・エリア)が近い物件一覧
| 写真 | 家賃 管理費等 | 敷金 礼金 | 間取り 専有面積 | 築年数 | 最寄り駅 所在地 | キープ | 詳細 |
|---|---|---|---|---|---|---|---|
アパート ソレーユ(1LDK/3階) | |||||||
![]() | 10.9万円 5,000円 | なし 16.35万円 | 1LDK 46.94m2 | 築16年 | 東京メトロ東西線 南行徳駅 徒歩12分 東京メトロ東西線 行徳駅 徒歩20分 東京メトロ東西線 浦安駅(千葉) 徒歩20分 千葉県市川市相之川 | 詳細を見る | |
アパート コルサント(1K/1階) | |||||||
![]() | 7.7万円 3,000円 | なし 7.7万円 | 1K 34.81m2 | 築15年 | 東葉高速鉄道 東海神駅 徒歩4分 京成本線 海神駅 徒歩12分 JR総武線 船橋駅 徒歩14分 千葉県船橋市海神 | 詳細を見る | |
一戸建て 東葉高速鉄道 船橋日大前駅 徒歩12分 築51年(2SK) | |||||||
![]() | 5.5万円 なし | 5.5万円 なし | 2SK 48.16m2 | 築51年 | 東葉高速鉄道 船橋日大前駅 徒歩12分 京成電鉄松戸線 北習志野駅 徒歩18分 千葉県船橋市坪井西1丁目 | 詳細を見る | |
アパート ラ・レジデンス・トリアーノ(1K/2階) | |||||||
![]() | 6.7万円 3,000円 | なし なし | 1K 21.8m2 | 築26年 | JR総武線 市川駅 徒歩7分 京成本線 市川真間駅 徒歩8分 JR総武線 本八幡駅 徒歩20分 千葉県市川市新田 | 詳細を見る | |
アパート THE HAZEL(1K/2階) | |||||||
![]() | 7.2万円 5,000円 | なし 3.6万円 | 1K 27.82m2 | 築20年 | 京成本線 京成八幡駅 徒歩7分 京成本線 菅野駅 徒歩10分 JR総武線 本八幡駅 徒歩11分 千葉県市川市菅野 | 詳細を見る | |
マンション チクマハイツ(2DK/3階) | |||||||
![]() | 9.4万円 5,000円 | なし なし | 2DK 49.9m2 | 築32年 | 東武鉄道野田線 馬込沢駅 徒歩7分 千葉県船橋市馬込町 | 詳細を見る | |
アパート リブリ・滝台(1K/1階) | |||||||
![]() | 5.6万円 4,000円 | なし なし | 1K 26.49m2 | 築12年 | 京成松戸線 薬園台駅 徒歩10分 東葉高速鉄道 飯山満駅 徒歩13分 東葉高速鉄道 北習志野駅 徒歩22分 千葉県船橋市二宮 | 詳細を見る | |
マンション GLANZ A(1K/1階) | |||||||
![]() | 5.3万円 3,000円 | 5.3万円 なし | 1K 25.04m2 | 築24年 | JR武蔵野線 市川大野駅 徒歩11分 千葉県市川市南大野 | 詳細を見る | |








