賃貸マンション
ESTAGEO針中野の賃貸物件情報(1LDK/3階)
| 家賃 | 管理費等 | 敷金 | 礼金 | 間取り | 専有面積 |
|---|---|---|---|---|---|
| 9.6万円 | 1.2万円 | なし | 19.2万円 | 1LDK | 40.7m2 |
入居決定でお祝い金最大100,000円
- 保証金
- -
- 償却・敷引
- -
- 築年数
- 築1年
- 所在階
- 3階
- 向き
- 西
- 交通
- 近鉄南大阪線 針中野駅 徒歩9分
地下鉄谷町線 駒川中野駅 徒歩13分
地下鉄谷町線 平野駅(大阪メトロ) 徒歩21分
- 所在地
- 大阪府大阪市東住吉区湯里
ESTAGEO針中野
[地図を表示]
Point
お部屋探しはツインホーム本店にお任せください。
提供:ツインホーム(株)東三国店(SUUMO経由)

詳細情報 ESTAGEO針中野
物件紹介
ESTAGEO針中野は近鉄南大阪線針中野駅から徒歩9分にあり、駅近で通勤通学に便利なマンションです。
このお部屋は2階以上に位置しているので、通行人や周囲の住人からの視線が気になりにくく、防犯面でも安心。建物のエントランスはオートロックがついており、インターホンにはTVモニタもついているため、相手の顔を確認してから来客対応することができます。
フローリングのお部屋なのでお掃除もラクラク。キッチンはシステムキッチン仕様になっていますので、お料理好きの方にもぴったり。バス・トイレは別なので、のんびりお風呂タイムも楽しめるでしょう。また、雨の日でも浴室乾燥機を使えば、お洗濯も問題ありません。
通信設備面では、インターネットが無料で使えるので、月々の出費を抑えられるのも魅力です(別途工事等が必要な場合あり)。
建物にはエレベーターがついているので、重い荷物があっても安心。共用部には宅配ボックスが設定されているので、不在の時にも荷物を受け取ることができます。また、ペット飼育の相談ができますので、あなたの大切な家族の一員も快適に暮らせるか、ぜひ確認してみてください。
このお部屋は2階以上に位置しているので、通行人や周囲の住人からの視線が気になりにくく、防犯面でも安心。建物のエントランスはオートロックがついており、インターホンにはTVモニタもついているため、相手の顔を確認してから来客対応することができます。
フローリングのお部屋なのでお掃除もラクラク。キッチンはシステムキッチン仕様になっていますので、お料理好きの方にもぴったり。バス・トイレは別なので、のんびりお風呂タイムも楽しめるでしょう。また、雨の日でも浴室乾燥機を使えば、お洗濯も問題ありません。
通信設備面では、インターネットが無料で使えるので、月々の出費を抑えられるのも魅力です(別途工事等が必要な場合あり)。
建物にはエレベーターがついているので、重い荷物があっても安心。共用部には宅配ボックスが設定されているので、不在の時にも荷物を受け取ることができます。また、ペット飼育の相談ができますので、あなたの大切な家族の一員も快適に暮らせるか、ぜひ確認してみてください。
お金・契約の情報
※「-」と表示されているものは、実際は料金が発生するものもございます。詳細はお問い合わせください。
| 家賃 | 9.6万円 | 管理費・共益費 | 1.2万円 |
|---|---|---|---|
| 敷金 | なし | 礼金 | 19.2万円 |
| 入居決定でお祝い金最大100,000円 | |||
| 保証金 | - | 償却・敷引 | - |
| 住宅保険料 | - | 更新料 | - |
| 契約形態 | - | 契約期間 | - |
| 入居・引渡期間 | 即時 | 現況 | - |
| 入居可能条件 | ペット相談 | ||
| 契約備考 | 1LDK 二人入居可/ペット相談 普通借家2年 損保【要】 バストイレ別、バルコニー、エアコン、クロゼット、フローリング、TVインターホン、浴室乾燥機、オートロック、室内洗濯置、陽当り良好、システムキッチン、追焚機能浴室、温水洗浄便座、脱衣所、エレベーター、洗面所独立、2口コンロ、駐輪場、宅配ボックス、敷金不要、対面式キッチン、防犯カメラ、ペット相談、全居室洋室、二人入居相談、バイク置場、全居室フローリング、2沿線利用可、ネット使用料不要、保証金不要、築2年以内、浴室未使用、トイレ未使用、駐車5台以上、2駅利用可、3駅以上利用可、駅徒歩10分以内、敷地内ごみ置き場、平面駐車場、キッチン未使用、都市ガス、洗面所にドア、エコジョーズ、シューズWIC、年内入居可、年度内入居可、礼金2ヶ月、通風良好 | ||
部屋の情報
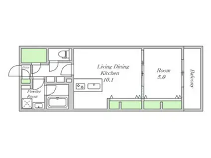
| 間取り | 1LDK | 専有面積 | 40.7m2 |
|---|---|---|---|
| 所在階 / 向き | 3階 / 西 | バルコニー面積 | - |
| 水道 / ガス | - | ||
| 設備 | バス・トイレ別、2階以上、オートロック、テレビドアホン、宅配ボックス、浴室乾燥機、追い焚き、インターネット対応、システムキッチン、エアコン、エレベーター、温水洗浄便座、バルコニー、フローリング、洗髪洗面化粧台、2口コンロ、インターネット使用料無料、洗濯機:室内 | ||
| 当社物件ID | 159692859 | ||
建物の情報
| 建物名 | ESTAGEO針中野 | ||
|---|---|---|---|
| 所在地 | 大阪府大阪市東住吉区湯里 | ||
| 交通 | 近鉄南大阪線 針中野駅 徒歩9分 地下鉄谷町線 駒川中野駅 徒歩13分 地下鉄谷町線 平野駅(大阪メトロ) 徒歩21分 | ||
| 階数 | 5階建 | 総戸数 | 29戸 |
| 築年月 | 2025年12月 / 築1年 | エレベーター | あり |
| 駐車場 | 空有 22000円 | バイク置き場 | あり |
| 駐輪場 | あり | 管理人/管理会社 | - |
| 周辺環境 | その他 スーパーマーケットKINSHO(近商) 針中野店(スーパー)まで576m その他 Maxvalu(マックスバリュ) 駒川中野店(スーパー)まで583m その他 スーパー玉出 駒川店(スーパー)まで900m その他 ファミリーマート 近鉄針中野駅店(コンビニ)まで694m その他 ファミリーマート 平野西一丁目店(コンビニ)まで809m その他 ファミリーマート 針中野二丁目店(コンビニ)まで748m | ||
| 建物種別 | マンション | 建物構造 | RC(鉄筋コンクリート) |
この部屋の取扱い不動産会社
| 会社名 | ツインホーム(株)本店(SUUMO経由) | ||
|---|---|---|---|
| 所在地 | 大阪府大阪市阿倍野区松崎町4-1-13 | 交通 | - |
| 営業時間 | 10:00~20:00 | 定休日 | なし |
| 免許番号 | 大阪府知事46704 | 取引態様 | 仲介 |
| 不動産会社管理番号 | 100462002274 | 当社管理番号 | 89 |
| 所属団体 | (公社)全日本不動産協会大阪府本部会員 | ||
| 公正取引協議会 | (公社)近畿地区不動産公正取引協議会加盟 | ||
| 取扱い物件情報 | 物件詳細へ | ||
※各種情報と現状に差異がある場合は、現状優先となります。問い合わせをすることで、より詳しい条件、情報を確認する事ができます。
提供:ツインホーム(株)本店(SUUMO経由)
この物件が気になったら掲載期限まであと10日
ESTAGEO針中野の空き部屋一覧
全部で33の空き部屋があります。
ESTAGEO針中野に条件(家賃・エリア)が近い物件一覧
| 写真 | 家賃 管理費等 | 敷金 礼金 | 間取り 専有面積 | 築年数 | 最寄り駅 所在地 | キープ | 詳細 |
|---|---|---|---|---|---|---|---|
マンション ARCA正雀(1K/5階) | |||||||
| 7万円 6,000円 | なし 7万円 | 1K 23.67m2 | 築1年 | 阪急電鉄京都線 正雀駅 徒歩4分 東海道本線 岸辺駅 徒歩12分 大阪モノレール本線 摂津駅 徒歩22分 大阪府摂津市正雀本町1丁目20-9 | 詳細を見る | ||
マンション エクセレント久宝園(1LDK/3階) | |||||||
![]() | 7.6万円 なし | なし なし | 1LDK 35.63m2 | 築1年 | 近鉄大阪線 弥刀駅 徒歩10分 大阪府八尾市久宝園2丁目 | 詳細を見る | |
マンション 阪和線 上野芝駅 徒歩1分 築24年(3LDK/9階) | |||||||
![]() | 14万円 1万円 | なし 28万円 | 3LDK 74.38m2 | 築24年 | 阪和線 上野芝駅 徒歩1分 阪和線 津久野駅 徒歩16分 阪和線 百舌鳥駅 徒歩17分 大阪府堺市西区上野芝町3丁 | 詳細を見る | |
アパート CRA STIME岩田町5丁目(1LDK/2階) | |||||||
![]() | 6.5万円 3,000円 | なし なし | 1LDK 30.03m2 | 築5年 | 近鉄奈良線 若江岩田駅 徒歩7分 近鉄けいはんな線 荒本駅 徒歩17分 近鉄奈良線 河内花園駅 徒歩18分 大阪府東大阪市岩田町 | 詳細を見る | |
アパート フジパレス堺諏訪森ノース(1K/3階) | |||||||
![]() | 6.05万円 4,400円 | なし 5万円 | 1K 30m2 | 築4年 | 南海電鉄南海本線 諏訪ノ森駅 徒歩7分 南海電鉄南海本線 浜寺公園駅 徒歩11分 南海電鉄南海本線 石津川駅 徒歩21分 大阪府堺市西区浜寺諏訪森町中3丁 | 詳細を見る | |
マンション プレジオ江坂ROUGE(1LDK/14階) | |||||||
| 15.2万円 1.5万円 | なし 15.2万円 | 1LDK 43.21m2 | 築4年 | 北大阪急行南北線 江坂駅 徒歩3分 阪急電鉄千里線 豊津駅(大阪) 徒歩17分 阪急電鉄千里線 関大前駅 徒歩20分 大阪府吹田市豊津町1-10 | 詳細を見る | ||
アパート アンプルール フェール 江坂(1K/1階) | |||||||
| 6.9万円 1.1万円 | なし 6.9万円 | 1K 35.01m2 | 築20年 | 北大阪急行南北線 緑地公園駅 徒歩13分 北大阪急行南北線 江坂駅 徒歩16分 阪急電鉄千里線 関大前駅 徒歩20分 大阪府吹田市江坂町3丁目22-8 | 詳細を見る | ||
マンション ミラクルセブン江坂(1K/5階) | |||||||
![]() | 6.4万円 8,000円 | 5万円 10万円 | 1K 31.79m2 | 築21年 | 北大阪急行南北線 江坂駅 徒歩6分 阪急電鉄千里線 豊津駅(大阪) 徒歩18分 おおさか東線 南吹田駅 徒歩22分 大阪府吹田市広芝町8-16 | 詳細を見る | |





