賃貸アパート
プログレスの賃貸物件情報(ワンルーム/3階)
| 家賃 | 管理費等 | 敷金 | 礼金 | 間取り | 専有面積 |
|---|---|---|---|---|---|
| 6万円 | 4,000円 | なし | なし | ワンルーム | 18.84m2 |
入居決定でお祝い金最大100,000円
- 保証金
- -
- 償却・敷引
- -
- 築年数
- 築11年
- 所在階
- 3階
- 向き
- 南東
Point
【LINEで簡単にお部屋探し】【内覧代行やLINEでお部屋探し】【来店不要で契約締結も可能です!】【様々なご職業の方ご相談可能】【営業時間1020時お仕事終わりでもご対応可能です!】
提供:合同会社BAY ROUND(SUUMO経由)

詳細情報 プログレス
物件紹介
プログレスはブルーライン阪東橋駅から徒歩3分にあり、駅近で通勤通学に便利なアパートです。
このお部屋は2階以上に位置しているので、通行人や周囲の住人からの視線が気になりにくく、防犯面でも安心。インターホンにはTVモニタもついているため、相手の顔を確認してから来客対応することができます。
おしゃれなデザイナーズ物件!人気の南向きのお部屋。また、フローリングなのでお掃除もラクラク。キッチンはシステムキッチン仕様になっていますので、お料理好きの方にもぴったり。また、バス・トイレは別で、のんびりお風呂タイムも楽しめるでしょう。
通信設備面では、インターネットが無料で使えるので、月々の出費を抑えられるのも魅力です(別途工事等が必要な場合あり)。
共用部には宅配ボックスが設定されているので、不在の時にも荷物を受け取ることができます。
このお部屋は2階以上に位置しているので、通行人や周囲の住人からの視線が気になりにくく、防犯面でも安心。インターホンにはTVモニタもついているため、相手の顔を確認してから来客対応することができます。
おしゃれなデザイナーズ物件!人気の南向きのお部屋。また、フローリングなのでお掃除もラクラク。キッチンはシステムキッチン仕様になっていますので、お料理好きの方にもぴったり。また、バス・トイレは別で、のんびりお風呂タイムも楽しめるでしょう。
通信設備面では、インターネットが無料で使えるので、月々の出費を抑えられるのも魅力です(別途工事等が必要な場合あり)。
共用部には宅配ボックスが設定されているので、不在の時にも荷物を受け取ることができます。
お金・契約の情報
※「-」と表示されているものは、実際は料金が発生するものもございます。詳細はお問い合わせください。
| 家賃 | 6万円 | 管理費・共益費 | 4,000円 |
|---|---|---|---|
| 敷金 | なし | 礼金 | なし |
| 入居決定でお祝い金最大100,000円 | |||
| 保証金 | - | 償却・敷引 | - |
| 住宅保険料 | - | 更新料 | - |
| 保証会社利用 | 必須 | 保証会社名 | - |
| 保証会社費用 | - | 保証会社備考 | 保証会社利用必 初回:50% 月額:1.2% |
| 契約形態 | - | 契約期間 | - |
| 入居・引渡期間 | 相談 | 現況 | - |
| 契約備考 | 【LINEで簡単にお部屋探し】【内覧代行やLINEでお部屋探し】【来店不要で契約締結も可能です!】【様々なご職業の方ご相談可能】【営業時間1020時お仕事終わりでもご対応可能です!】1年未満の解約は賃料+管理費1ヶ月分相当額の短期解約違約金あり 合計6.05万円(内訳:24時間サポート1.65万円契約事務手数料1.1万円鍵交換代3.3万円) 更新料 新賃料1.00ヶ月分 町会費 月額300円 ワンルーム 普通借家2年 損保【2万円2年】 バストイレ別、バルコニー、エアコン、フローリング、TVインターホン、室内洗濯置、陽当り良好、シューズボックス、温水洗浄便座、礼金不要、最上階、敷金不要、IHクッキングヒーター、保証人不要、2沿線利用可、ネット使用料不要、保証金不要、南面リビング、学生相談、2駅利用可、3駅以上利用可、防犯強化地域、駅徒歩5分以内、駅徒歩10分以内、外壁サイディング、東南向き、南面バルコニー、敷金・礼金不要、IT重説対応物件 | ||
部屋の情報
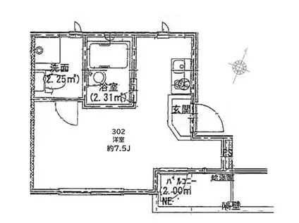
| 間取り | ワンルーム | 専有面積 | 18.84m2 |
|---|---|---|---|
| 所在階 / 向き | 3階 / 南東 | バルコニー面積 | - |
| 水道 / ガス | - | ||
| 設備 | バス・トイレ別、2階以上、テレビドアホン、インターネット対応、エアコン、温水洗浄便座、南向き、バルコニー、フローリング、コンロ:IH、インターネット使用料無料、洗濯機:室内 | ||
| 当社物件ID | 18319325 | ||
建物の情報
| 建物名 | プログレス | ||
|---|---|---|---|
| 所在地 | 神奈川県横浜市南区高根町 | ||
| 交通 | ブルーライン 阪東橋駅 徒歩3分 京急本線 黄金町駅 徒歩7分 ブルーライン 吉野町駅 徒歩7分 | ||
| 階数 | 3階建 | 総戸数 | - |
| 築年月 | 2015年06月 / 築11年 | エレベーター | - |
| 駐車場 | なし | バイク置き場 | - |
| 駐輪場 | - | 管理人/管理会社 | - |
| 周辺環境 | その他 ラーメン二郎 横浜関内店(飲食店)まで1028m その他 ココス 横浜阪東橋店(飲食店)まで247m その他 デニーズ 長者町店(飲食店)まで1057m その他 すき家 阪東橋店(飲食店)まで209m その他 キッチンオリジン 黄金町店(飲食店)まで434m その他 Origin伊勢佐木長者町店(飲食店)まで1086m | ||
| 建物種別 | アパート | 建物構造 | 木造 |
この部屋の取扱い不動産会社
| 会社名 | (株)LIFIX関内店(SUUMO経由) | ||
|---|---|---|---|
| 所在地 | 神奈川県横浜市中区港町2-9-4 関内幸和ビル7階 | 交通 | - |
| 営業時間 | 10:00~20:00 | 定休日 | 無休 |
| 免許番号 | 神奈川県知事29539 | 取引態様 | 仲介 |
| 不動産会社管理番号 | 100489856288 | 当社管理番号 | 89 |
| 取扱い物件情報 | 物件詳細へ | ||
※各種情報と現状に差異がある場合は、現状優先となります。問い合わせをすることで、より詳しい条件、情報を確認する事ができます。
提供:(株)LIFIX関内店(SUUMO経由)
この物件が気になったら掲載期限まであと11日
プログレスに条件(家賃・エリア)が近い物件一覧
| 写真 | 家賃 管理費等 | 敷金 礼金 | 間取り 専有面積 | 築年数 | 最寄り駅 所在地 | キープ | 詳細 |
|---|---|---|---|---|---|---|---|
アパート ビレッジK(2DK/2階) | |||||||
![]() | 8万円 なし | 8万円 なし | 2DK 46.23m2 | 築34年 | 東急田園都市線 宮崎台駅 徒歩18分 神奈川県川崎市宮前区馬絹 | 詳細を見る | |
アパート ルック西生田A(1DK/1階) | |||||||
![]() | 4万円 2,000円 | なし なし | 1DK 25.11m2 | 築37年 | 小田急線 読売ランド前駅 徒歩5分 小田急線 生田駅(神奈川) 徒歩15分 小田急線 百合ケ丘駅 徒歩21分 神奈川県川崎市多摩区西生田 | 詳細を見る | |
アパート カサデソル(1K/2階) | |||||||
![]() | 7.2万円 3,000円 | なし 7.2万円 | 1K 24.63m2 | 築21年 | 小田急線 登戸駅 徒歩5分 小田急線 向ケ丘遊園駅 徒歩14分 JR南武線 宿河原駅 徒歩14分 神奈川県川崎市多摩区宿河原 | 詳細を見る | |
アパート レオパレスセドル ブランシュII(1K/1階) | |||||||
![]() | 6.5万円 5,500円 | なし 6.5万円 | 1K 19.87m2 | 築20年 | ブルーライン 蒔田駅 徒歩21分 神奈川県横浜市磯子区滝頭 | 詳細を見る | |
アパート サニーコート(1K/1階) | |||||||
![]() | 7.7万円 2,000円 | 7.7万円 なし | 1K 29.25m2 | 築22年 | JR南武線 武蔵新城駅 徒歩8分 JR南武線 武蔵中原駅 徒歩15分 神奈川県川崎市中原区上小田中 | 詳細を見る | |
マンション ライフハウスナカムラ(2DK/2階) | |||||||
![]() | 6.2万円 2,000円 | 6.2万円 なし | 2DK 35.77m2 | 築39年 | 小田急江ノ島線 長後駅 徒歩1分 小田急江ノ島線 高座渋谷駅 徒歩27分 小田急江ノ島線 湘南台駅 徒歩28分 神奈川県藤沢市長後 | 詳細を見る | |
アパート ヒルフロント鷹取(1K/2階) | |||||||
![]() | 5.3万円 4,000円 | なし なし | 1K 19m2 | 築8年 | 京急本線 追浜駅 徒歩7分 京急逗子線 六浦駅 徒歩22分 神奈川県横須賀市鷹取 | 詳細を見る | |
アパート MS ONE(ワンルーム/2階) | |||||||
![]() | 4.7万円 3,500円 | なし なし | ワンルーム 14.49m2 | 築3年 | 京急本線 追浜駅 徒歩14分 京急本線 京急田浦駅 徒歩20分 神奈川県横須賀市追浜南町 | 詳細を見る | |








