賃貸マンション
ハーモニーレジデンス武蔵小杉の賃貸物件情報(1K/1階)
| 家賃 | 管理費等 | 敷金 | 礼金 | 間取り | 専有面積 |
|---|---|---|---|---|---|
| 8.3万円 | 1.5万円 | なし | なし | 1K | 20.31m2 |
入居決定でお祝い金最大100,000円
Point
セキュリティ面は、TVインターホン・オートロックなどを備え付けているので安心して暮らせます。
提供:Balleggs (株)バレッグス都立大学支店(SUUMO経由)

詳細情報 ハーモニーレジデンス武蔵小杉
物件紹介
ハーモニーレジデンス武蔵小杉はJR南武線向河原駅から徒歩8分にあり、駅近で通勤通学に便利なマンションです。
建物のエントランスはオートロックがついており、インターホンにはTVモニタもついているため、相手の顔を確認してから来客対応することができます。
おしゃれなデザイナーズ物件!人気の南向きのお部屋。また、フローリングなのでお掃除もラクラク。キッチンはシステムキッチン仕様になっていますので、お料理好きの方にもぴったり。バス・トイレは別なので、のんびりお風呂タイムも楽しめるでしょう。また、雨の日でも浴室乾燥機を使えば、お洗濯も問題ありません。
通信設備面では、インターネット接続が可能です。また、BSアンテナ・CSアンテナもありますので、おうち時間も充実するでしょう(別途工事、契約料が必要な場合あり)。
建物にはエレベーターがついているので、重い荷物があっても安心。共用部には宅配ボックスが設定されているので、不在の時にも荷物を受け取ることができます。また、ペット飼育の相談ができますので、あなたの大切な家族の一員も快適に暮らせるか、ぜひ確認してみてください。
コンビニまで徒歩14分の場所にあり、日用品や食料品のお買い物にも便利です。
建物のエントランスはオートロックがついており、インターホンにはTVモニタもついているため、相手の顔を確認してから来客対応することができます。
おしゃれなデザイナーズ物件!人気の南向きのお部屋。また、フローリングなのでお掃除もラクラク。キッチンはシステムキッチン仕様になっていますので、お料理好きの方にもぴったり。バス・トイレは別なので、のんびりお風呂タイムも楽しめるでしょう。また、雨の日でも浴室乾燥機を使えば、お洗濯も問題ありません。
通信設備面では、インターネット接続が可能です。また、BSアンテナ・CSアンテナもありますので、おうち時間も充実するでしょう(別途工事、契約料が必要な場合あり)。
建物にはエレベーターがついているので、重い荷物があっても安心。共用部には宅配ボックスが設定されているので、不在の時にも荷物を受け取ることができます。また、ペット飼育の相談ができますので、あなたの大切な家族の一員も快適に暮らせるか、ぜひ確認してみてください。
コンビニまで徒歩14分の場所にあり、日用品や食料品のお買い物にも便利です。
お金・契約の情報
※「-」と表示されているものは、実際は料金が発生するものもございます。詳細はお問い合わせください。
| 家賃 | 8.3万円 | 管理費・共益費 | 1.5万円 |
|---|---|---|---|
| 敷金 | なし | 礼金 | なし |
| 入居決定でお祝い金最大100,000円 | |||
| 保証金 | - | 償却・敷引 | 16.6万円 |
| 住宅保険料 | 1円 | 更新料 | - |
| その他費用 | 24時間サポート:2.2万円、17600円:、事務手数料:1.1万円 | ||
| 保証会社利用 | 必須 | 保証会社名 | - |
| 保証会社費用 | - | 保証会社備考 | 初回30〜55% |
| 契約形態 | - | 契約期間 | 1年 |
| 入居・引渡期間 | 2026年03月 | 現況 | - |
| 入居可能条件 | 2人入居可、ペット相談 | ||
| 契約備考 | 火災保険要加入 ペット飼育時敷金1ヶ月積み増し 鍵交換費用:22000 その他設備/条件:室内洗濯機置き場、ごみ出し24時間OK、独立洗面台、防犯カメラ、ルームシェア可、クローゼット、シューズボックス、照明器具付き、分譲賃貸 | ||
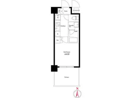
部屋の情報
| 間取り | 1K | 専有面積 | 20.31m2 |
|---|---|---|---|
| 間取り詳細 | 洋室(6帖)、K(2.5帖) | ||
| 所在階 / 向き | 1階 / 南 | バルコニー面積 | - |
| 水道 / ガス | 水道【公営】 | ||
| 設備 | バス・トイレ別、オートロック、テレビドアホン、宅配ボックス、浴室乾燥機、光ファイバー対応、エアコン、エレベーター、温水洗浄便座、バルコニー、フローリング、洗髪洗面化粧台、オール電化、2口コンロ、コンロ:IH、CSアンテナ、BSアンテナ、シャワー、給湯、タイル張り | ||
| 当社物件ID | 46328250 | ||
建物の情報
| 建物名 | ハーモニーレジデンス武蔵小杉 | ||
|---|---|---|---|
| 所在地 | 神奈川県川崎市中原区中丸子 | ||
| 交通 | 横須賀線 武蔵小杉駅 徒歩9分 南武線 向河原駅 徒歩11分 | ||
| 階数 | 6階建 | 総戸数 | 185戸 |
| 築年月 | 2016年06月 / 築10年 | エレベーター | あり |
| 駐車場 | 空無 1.1万円/月 | バイク置き場 | あり |
| 駐輪場 | あり | 管理人/管理会社 | - |
| 周辺環境 | コンビニ 徒歩14分(1099m) 販売店 徒歩12分(898m) 病院 徒歩11分(846m) その他 ドラッグストア その他 公園 その他 銀行 その他 * | ||
| 建物種別 | マンション | 建物構造 | RC(鉄筋コンクリート) |
この部屋の取扱い不動産会社
| 会社名 | ハウスコム東神奈川株式会社 日吉店 | ||
|---|---|---|---|
| 所在地 | 神奈川県横浜市港北区2-2SKビル1階 | 交通 | - |
| 営業時間 | 10:00~18:00 | 定休日 | - |
| 免許番号 | 神奈川県知事(1)第31769号 | 取引態様 | 仲介 |
| 不動産会社管理番号 | HC2-25800-106-0106 | 当社管理番号 | 468 |
| 所属団体 | 、 | ||
| 取扱い物件情報 | 物件詳細へ | ||
※各種情報と現状に差異がある場合は、現状優先となります。問い合わせをすることで、より詳しい条件、情報を確認する事ができます。
提供:ハウスコム東神奈川株式会社 日吉店
この物件が気になったら掲載期限まであと4日
ハーモニーレジデンス武蔵小杉に条件(家賃・エリア)が近い物件一覧
| 写真 | 家賃 管理費等 | 敷金 礼金 | 間取り 専有面積 | 築年数 | 最寄り駅 所在地 | キープ | 詳細 |
|---|---|---|---|---|---|---|---|
アパート スカイコート(1K/1階) | |||||||
![]() | 6.3万円 なし | 6.3万円 6.3万円 | 1K 20m2 | 築32年 | グリーンライン 日吉駅(神奈川) 徒歩3分 東急目黒線 元住吉駅 徒歩16分 グリーンライン 日吉本町駅 徒歩20分 神奈川県横浜市港北区日吉 | 詳細を見る | |
マンション グランリーヴェル横濱VIVANT(1K/8階) | |||||||
![]() | 7.9万円 8,000円 | 7.9万円 7.9万円 | 1K 21.05m2 | 築3年 | ブルーライン 蒔田駅 徒歩4分 ブルーライン 弘明寺駅(横浜市営) 徒歩11分 京急本線 井土ケ谷駅 徒歩12分 神奈川県横浜市南区通町 | 詳細を見る | |
マンション ルーブル武蔵中原伍番館(1K/4階) | |||||||
![]() | 10.5万円 9,000円 | なし 10.5万円 | 1K 25.37m2 | 新築 | JR南武線 武蔵中原駅 徒歩9分 JR南武線 武蔵新城駅 徒歩24分 東急東横線 武蔵小杉駅 徒歩27分 神奈川県川崎市中原区下小田中 | 詳細を見る | |
アパート レジェンドつるみ下末吉(1K/3階) | |||||||
![]() | 6.8万円 3,000円 | なし 3.4万円 | 1K 18m2 | 築1年 | 鶴見線 鶴見駅 徒歩17分 神奈川県横浜市鶴見区下末吉1丁目 | 詳細を見る | |
マンション 平戸グリーンハイツ(3LDK/4階) | |||||||
![]() | 8万円 3,000円 | 8万円 なし | 3LDK 54.4m2 | 築53年 | ブルーライン 上永谷駅 徒歩37分 京急本線 弘明寺駅(京急) 徒歩39分 神奈川県横浜市戸塚区平戸町 | 詳細を見る | |
マンション パークアクシス横浜伊勢佐木町通(1DK/3階) | |||||||
![]() | 11.8万円 1万円 | 11.8万円 11.8万円 | 1DK 28.1m2 | 新築 | 京浜急行電鉄本線 黄金町駅 徒歩9分 根岸線 関内駅 徒歩10分 神奈川県横浜市中区若葉町2丁目 | 詳細を見る | |
アパート 白楽ヘミングウェイ(ワンルーム/2階) | |||||||
![]() | 5.7万円 3,500円 | なし なし | ワンルーム 14m2 | 築10年 | ブルーライン 三ツ沢下町駅 徒歩13分 東急東横線 反町駅 徒歩18分 東急東横線 東白楽駅 徒歩19分 神奈川県横浜市神奈川区六角橋 | 詳細を見る | |
マンション フェニックス横濱関内BAY GAIA(1K/9階) | |||||||
![]() | 7.8万円 1万円 | 7.8万円 7.8万円 | 1K 21.1m2 | 築16年 | ブルーライン 伊勢佐木長者町駅 徒歩2分 JR根岸線 関内駅 徒歩5分 JR京浜東北線 関内駅 徒歩5分 神奈川県横浜市中区不老町 | 詳細を見る | |




/105x80-f1-q70-wp1)



