賃貸マンション
イプセ蒲田ウエストの賃貸物件情報(ワンルーム/2階)
| 家賃 | 管理費等 | 敷金 | 礼金 | 間取り | 専有面積 |
|---|---|---|---|---|---|
| 8.8万円 | 6,000円 | 8.8万円 | 8.8万円 | ワンルーム | 23.59m2 |
入居決定でお祝い金最大100,000円
Point
まずはお問い合わせ!
不動産会社は街のプロ、あなたに合った物件がきっと見つかります。
提供:(株)KENTY不動産大森店(SUUMO経由)

詳細情報 イプセ蒲田ウエスト
物件紹介
イプセ蒲田ウエストは東急池上線蓮沼駅から徒歩3分にあり、駅近で通勤通学に便利なマンションです。
このお部屋は2階以上に位置しているので、通行人や周囲の住人からの視線が気になりにくく、防犯面でも安心。建物のエントランスはオートロックがついており、インターホンにはTVモニタもついているため、相手の顔を確認してから来客対応することができます。
おしゃれなデザイナーズ物件!人気の角部屋で周囲の居住者の生活音も気になりにくく、また、フローリングのお部屋なのでお掃除もラクラク。キッチンはシステムキッチン仕様になっていますので、お料理好きの方にもぴったり。バス・トイレは別なので、のんびりお風呂タイムも楽しめるでしょう。また、雨の日でも浴室乾燥機を使えば、お洗濯も問題ありません。
通信設備面では、インターネット接続が可能です。また、BSアンテナ・CSアンテナがありCATVにも対応しているので、おうち時間も充実するでしょう(別途工事、契約料が必要な場合あり)。
建物にはエレベーターがついているので、重い荷物があっても安心。共用部には宅配ボックスが設定されているので、不在の時にも荷物を受け取ることができます。
コンビニまで徒歩5分の場所にあり、日用品や食料品のお買い物にも便利です。
このお部屋は2階以上に位置しているので、通行人や周囲の住人からの視線が気になりにくく、防犯面でも安心。建物のエントランスはオートロックがついており、インターホンにはTVモニタもついているため、相手の顔を確認してから来客対応することができます。
おしゃれなデザイナーズ物件!人気の角部屋で周囲の居住者の生活音も気になりにくく、また、フローリングのお部屋なのでお掃除もラクラク。キッチンはシステムキッチン仕様になっていますので、お料理好きの方にもぴったり。バス・トイレは別なので、のんびりお風呂タイムも楽しめるでしょう。また、雨の日でも浴室乾燥機を使えば、お洗濯も問題ありません。
通信設備面では、インターネット接続が可能です。また、BSアンテナ・CSアンテナがありCATVにも対応しているので、おうち時間も充実するでしょう(別途工事、契約料が必要な場合あり)。
建物にはエレベーターがついているので、重い荷物があっても安心。共用部には宅配ボックスが設定されているので、不在の時にも荷物を受け取ることができます。
コンビニまで徒歩5分の場所にあり、日用品や食料品のお買い物にも便利です。
お金・契約の情報
※「-」と表示されているものは、実際は料金が発生するものもございます。詳細はお問い合わせください。
| 家賃 | 8.8万円 | 管理費・共益費 | 6,000円 |
|---|---|---|---|
| 敷金 | 8.8万円 | 礼金 | 8.8万円 |
| 入居決定でお祝い金最大100,000円 | |||
| 保証金 | - | 償却・敷引 | - |
| 住宅保険料 | 1円 | 更新料 | - |
| 保証会社利用 | 必須 | 保証会社名 | - |
| 保証会社費用 | - | 保証会社備考 | 貸主指定保証会社 クレディセゾン保証 初回保証料:個人30%・法人40% 更新料:毎年1万円(賃料1 |
| 契約形態 | - | 契約期間 | 2年 |
| 入居・引渡期間 | 即時 | 現況 | - |
| 契約備考 | その他設備/条件:室内洗濯機置き場、クローゼット | ||
部屋の情報
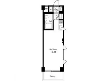
| 間取り | ワンルーム | 専有面積 | 23.59m2 |
|---|---|---|---|
| 間取り詳細 | 洋室(10.4帖) | ||
| 所在階 / 向き | 2階 / 北 | バルコニー面積 | - |
| 水道 / ガス | 水道【公営】、ガス【都市】 | ||
| 設備 | オートロック、宅配ボックス、浴室乾燥機、インターネット対応、システムキッチン、エアコン、エレベーター、温水洗浄便座、バルコニー、2口コンロ、コンロ:ガス、CSアンテナ、BSアンテナ、給湯 | ||
| 当社物件ID | 8311817 | ||
建物の情報
| 建物名 | イプセ蒲田ウエスト | ||
|---|---|---|---|
| 所在地 | 東京都大田区東矢口3丁目 | ||
| 交通 | 京浜東北・根岸線 蒲田駅 徒歩8分 東急池上線 蒲田駅 徒歩8分 | ||
| 階数 | 8階建 | 総戸数 | - |
| 築年月 | 2007年02月 / 築19年 | エレベーター | あり |
| 駐車場 | なし | バイク置き場 | - |
| 駐輪場 | - | 管理人/管理会社 | - |
| 周辺環境 | コンビニ 徒歩5分(383m) 販売店 徒歩5分(330m) その他 ドラッグストア その他 公園 その他 銀行 その他 * | ||
| 建物種別 | マンション | 建物構造 | 鉄骨造 |
この部屋の取扱い不動産会社
| 会社名 | ハウスコム西東京株式会社 大森店 | ||
|---|---|---|---|
| 所在地 | 東京都大田区2-41階 | 交通 | - |
| 営業時間 | 10:00~18:00 | 定休日 | 水曜定休 |
| 免許番号 | 東京都知事(1)第108225号 | 取引態様 | 仲介 |
| 不動産会社管理番号 | HC4-2996221-0222-0220 | 当社管理番号 | 468 |
| 所属団体 | 、 | ||
| 取扱い物件情報 | 物件詳細へ | ||
※各種情報と現状に差異がある場合は、現状優先となります。問い合わせをすることで、より詳しい条件、情報を確認する事ができます。
提供:ハウスコム西東京株式会社 大森店
この物件が気になったら掲載期限まであと4日
イプセ蒲田ウエストに条件(家賃・エリア)が近い物件一覧
| 写真 | 家賃 管理費等 | 敷金 礼金 | 間取り 専有面積 | 築年数 | 最寄り駅 所在地 | キープ | 詳細 |
|---|---|---|---|---|---|---|---|
マンション LA MAISON EPICA(1DK/2階) | |||||||
![]() | 10.9万円 5,000円 | 10.9万円 なし | 1DK 33.06m2 | 築18年 | 京浜東北・根岸線 蒲田駅 徒歩9分 京浜急行電鉄本線 京急蒲田駅 徒歩12分 東京都大田区蒲田1丁目 | 詳細を見る | |
マンション フラットJY(ワンルーム/2階) | |||||||
![]() | 6.2万円 2,000円 | 6.2万円 6.2万円 | ワンルーム 19.5m2 | 築33年 | 京浜急行電鉄空港線 糀谷駅 徒歩4分 京浜急行電鉄本線 京急蒲田駅 徒歩13分 東京都大田区南蒲田3丁目 | 詳細を見る | |
アパート ヴェリテ・アイケイ(1K/2階) | |||||||
![]() | 6.1万円 2,000円 | 6.1万円 6.1万円 | 1K 20.97m2 | 築33年 | 京浜急行電鉄本線 大森町駅 徒歩7分 京浜急行電鉄本線 梅屋敷駅(東京) 徒歩9分 東京都大田区大森西5丁目 | 詳細を見る | |
マンション SEED JUST B-BASE II(1LDK/1階) | |||||||
![]() | 8.8万円 1.5万円 | 8.8万円 8.8万円 | 1LDK 23.07m2 | 新築 | 東京モノレール羽田 昭和島駅 徒歩11分 京浜急行電鉄本線 梅屋敷駅(東京) 徒歩19分 東京都大田区大森南4丁目 | 詳細を見る | |
アパート プロバンス東雪谷(ワンルーム/2階) | |||||||
![]() | 6.5万円 3,000円 | 6.5万円 6.5万円 | ワンルーム 18.76m2 | 築20年 | 東急池上線 洗足池駅 徒歩6分 東急池上線 石川台駅 徒歩12分 東京都大田区東雪谷1丁目 | 詳細を見る | |
マンション プチトリアノン(1K/1階) | |||||||
![]() | 7.6万円 3,000円 | 7.6万円 7.6万円 | 1K 21.55m2 | 築25年 | JR横須賀線 西大井駅 徒歩12分 JR京浜東北線 大森駅(東京) 徒歩16分 都営浅草線 馬込駅 徒歩20分 東京都品川区西大井 | 詳細を見る | |
マンション グレイス蒲田(1K/3階) | |||||||
![]() | 6万円 3,000円 | 6万円 6万円 | 1K 18.14m2 | 築34年 | JR京浜東北線 蒲田駅 徒歩8分 京急本線 京急蒲田駅 徒歩14分 京急本線 梅屋敷駅(東京) 徒歩15分 東京都大田区蒲田 | 詳細を見る | |
アパート ジュネス山王(ワンルーム/2階) | |||||||
![]() | 6万円 3,000円 | 6万円 6万円 | ワンルーム 17.5m2 | 築31年 | 京浜東北・根岸線 大森駅(東京) 徒歩9分 横須賀線 西大井駅 徒歩16分 東京都大田区山王1丁目 | 詳細を見る | |








