賃貸マンション
レオパレスライジングサンの賃貸物件情報(1K/2階)
| 家賃 | 管理費等 | 敷金 | 礼金 | 間取り | 専有面積 |
|---|---|---|---|---|---|
| 4.9万円 | 6,000円 | なし | 4.9万円 | 1K | 26.08m2 |
入居決定でお祝い金最大100,000円
Point
まずはお問い合わせ!
不動産会社は街のプロ、あなたに合った物件がきっと見つかります。
提供:ハウスコム関東株式会社 宇都宮店

詳細情報 レオパレスライジングサン
物件紹介
レオパレスライジングサンは真岡鉄道真岡駅から徒歩36分にあるマンションです。
このお部屋は2階以上に位置しているので、通行人や周囲の住人からの視線が気になりにくく、防犯面でも安心。インターホンにはTVモニタもついているため、相手の顔を確認してから来客対応することができます。
バス・トイレ別の仕様で、のんびりお風呂タイムも楽しめます。
通信設備面では、インターネット接続が可能です(別途工事、契約料が必要な場合あり)。
コンビニまで徒歩31分の場所にあり、日用品や食料品のお買い物にも便利です。
このお部屋は2階以上に位置しているので、通行人や周囲の住人からの視線が気になりにくく、防犯面でも安心。インターホンにはTVモニタもついているため、相手の顔を確認してから来客対応することができます。
バス・トイレ別の仕様で、のんびりお風呂タイムも楽しめます。
通信設備面では、インターネット接続が可能です(別途工事、契約料が必要な場合あり)。
コンビニまで徒歩31分の場所にあり、日用品や食料品のお買い物にも便利です。
お金・契約の情報
※「-」と表示されているものは、実際は料金が発生するものもございます。詳細はお問い合わせください。
| 家賃 | 4.9万円 | 管理費・共益費 | 6,000円 |
|---|---|---|---|
| 敷金 | なし | 礼金 | 4.9万円 |
| 入居決定でお祝い金最大100,000円 | |||
| 保証金 | - | 償却・敷引 | - |
| 住宅保険料 | 1円 | 更新料 | - |
| その他費用 | 抗菌施工(任意):2.376万円 | ||
| 保証会社利用 | 必須 | 保証会社名 | - |
| 保証会社費用 | - | 保証会社備考 | 保証料:69590円(契約内容により100〜120%で変動有)※記載金額は120%の場合 |
| 契約形態 | - | 契約期間 | - |
| 入居・引渡期間 | 即時 | 現況 | - |
| 契約備考 | 鍵交換費10450円、抗菌施工(任意)18040円から23760円(税込)/環境維持費550円/月、更新手数料16500円/2年(税込)/基本清掃料:34100円(税込) 月額(環境維持費 550円) 鍵交換費用:16500 室内清掃費用:41800 その他設備/条件:室内洗濯機置き場 | ||
部屋の情報
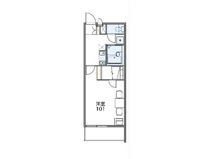
| 間取り | 1K | 専有面積 | 26.08m2 |
|---|---|---|---|
| 所在階 / 向き | 2階 / - | バルコニー面積 | - |
| 水道 / ガス | - | ||
| 設備 | バス・トイレ別、テレビドアホン、光ファイバー対応、エアコン、温水洗浄便座、バルコニー、コンロ:電気 | ||
| 当社物件ID | 21033712 | ||
建物の情報
| 建物名 | レオパレスライジングサン | ||
|---|---|---|---|
| 所在地 | 栃木県真岡市高勢町2丁目 | ||
| 交通 | 真岡鉄道 真岡駅 徒歩36分 | ||
| 階数 | 3階建 | 総戸数 | 39戸 |
| 築年月 | 2009年04月 / 築17年 | エレベーター | - |
| 駐車場 | 空有 4,950円/月 | バイク置き場 | - |
| 駐輪場 | - | 管理人/管理会社 | - |
| 周辺環境 | コンビニ 徒歩31分(2424m) その他 ドラッグストア その他 公園 その他 銀行 その他 * | ||
| 建物種別 | マンション | 建物構造 | 鉄骨造 |
この部屋の取扱い不動産会社
| 会社名 | ハウスコム関東株式会社 宇都宮店 | ||
|---|---|---|---|
| 所在地 | 栃木県宇都宮市5-9笠島ビル1階 | 交通 | - |
| 営業時間 | 10:00~18:00 | 定休日 | - |
| 免許番号 | 国土交通大臣(1)第10263号 | 取引態様 | 仲介 |
| 不動産会社管理番号 | HC5-113651-213-0041 | 当社管理番号 | 468 |
| 所属団体 | 一般社団法人全国住宅産業協会/公益社団法人首都圏不動産公正取引協議会/公益財団法人日本賃貸住宅管理協会、 | ||
| 取扱い物件情報 | 物件詳細へ | ||
※各種情報と現状に差異がある場合は、現状優先となります。問い合わせをすることで、より詳しい条件、情報を確認する事ができます。
提供:ハウスコム関東株式会社 宇都宮店
この物件が気になったら掲載期限まであと5日
レオパレスライジングサンに条件(家賃・エリア)が近い物件一覧
| 写真 | 家賃 管理費等 | 敷金 礼金 | 間取り 専有面積 | 築年数 | 最寄り駅 所在地 | キープ | 詳細 |
|---|---|---|---|---|---|---|---|
アパート ハーベスト・ガーデンA(1LDK/1階) | |||||||
![]() | 7.5万円 4,000円 | なし 11.25万円 | 1LDK 49.92m2 | 築16年 | 栃木県宇都宮市御幸町 | 詳細を見る | |
アパート ヴェル・ソール B(2LDK/1階) | |||||||
![]() | 5.6万円 3,000円 | なし なし | 2LDK 55.47m2 | 築27年 | 栃木県宇都宮市岩曽町 | 詳細を見る | |
アパート ペティーナB棟(1LDK/1階) | |||||||
![]() | 6万円 なし | なし なし | 1LDK 46.37m2 | 築19年 | 栃木県宇都宮市鶴田町 | 詳細を見る | |
アパート グラスミア(2LDK/3階) | |||||||
![]() | 6.8万円 4,000円 | なし 6.8万円 | 2LDK 60.88m2 | 築19年 | 東北本線 小山駅 徒歩26分 東北新幹線 小山駅 徒歩26分 栃木県小山市神鳥谷2丁目 | 詳細を見る | |
マンション ルミエール元今泉(2LDK/4階) | |||||||
![]() | 7.8万円 5,000円 | 15.6万円 7.8万円 | 2LDK 55.25m2 | 築17年 | 宇都宮芳賀ライト線 宇都宮駅東口駅 徒歩10分 東北本線 宇都宮駅 徒歩11分 栃木県宇都宮市元今泉2丁目 | 詳細を見る | |
アパート レオパレスSUNRISE(1K/2階) | |||||||
![]() | 5.8万円 4,000円 | なし なし | 1K 26.08m2 | 築23年 | 東北本線 石橋駅(栃木) 徒歩11分 栃木県下野市石橋 | 詳細を見る | |
アパート レオパレス愛(1K/1階) | |||||||
![]() | 3.4万円 4,000円 | なし 3.4万円 | 1K 20.28m2 | 築22年 | 栃木県宇都宮市宝木町2丁目 | 詳細を見る | |
マンション トラスティ御本丸公園(3LDK/3階) | |||||||
![]() | 7.3万円 3,000円 | 7.3万円 7.3万円 | 3LDK 62.92m2 | 築35年 | 東武宇都宮線 東武宇都宮駅 徒歩11分 東武宇都宮線 南宇都宮駅 徒歩25分 JR宇都宮線 宇都宮駅 徒歩26分 栃木県宇都宮市旭 | 詳細を見る | |









