賃貸アパート
第二みやしき荘の賃貸物件情報(2K/2階)
| 家賃 | 管理費等 | 敷金 | 礼金 | 間取り | 専有面積 |
|---|---|---|---|---|---|
| 4.5万円 | なし | 4.5万円 | 4.5万円 | 2K | 40m2 |
入居決定でお祝い金最大100,000円
- 保証金
- -
- 償却・敷引
- -
- 築年数
- 築58年
- 所在階
- 2階
- 向き
- 北
- 交通
- 京福電鉄北野線 北野白梅町駅 徒歩15分
京福電鉄北野線 等持院・立命館大学衣笠キャンパス前駅 徒歩17分
京福電鉄北野線 龍安寺駅 徒歩20分
- 所在地
- 京都府京都市北区平野上柳町
第二みやしき荘
[地図を表示]
Point
収納2ケ所で収納量多いです。2Kのお部屋で、引戸を外すと12帖の広いお部屋にもなります。御一人でゆっくり生活したりご家族でもご入居可能です。(ペットは不可です。)
提供:(有)インテルコ(SUUMO経由)

詳細情報 第二みやしき荘
物件紹介
第二みやしき荘は京福電鉄北野線北野白梅町駅から徒歩15分にあるアパートです。
このお部屋は2階以上に位置しているので、通行人や周囲の住人からの視線が気になりにくく、防犯面でも安心です。
人気の南向きのお部屋。角部屋でもあるため、周囲の居住者の生活音も気になりにくい場所です。バス・トイレ別の仕様で、のんびりお風呂タイムも楽しめます。
通信設備面では、インターネット接続が可能です(別途工事、契約料が必要な場合あり)。
このお部屋は2階以上に位置しているので、通行人や周囲の住人からの視線が気になりにくく、防犯面でも安心です。
人気の南向きのお部屋。角部屋でもあるため、周囲の居住者の生活音も気になりにくい場所です。バス・トイレ別の仕様で、のんびりお風呂タイムも楽しめます。
通信設備面では、インターネット接続が可能です(別途工事、契約料が必要な場合あり)。
お金・契約の情報
※「-」と表示されているものは、実際は料金が発生するものもございます。詳細はお問い合わせください。
| 家賃 | 4.5万円 | 管理費・共益費 | なし |
|---|---|---|---|
| 敷金 | 4.5万円 | 礼金 | 4.5万円 |
| 入居決定でお祝い金最大100,000円 | |||
| 保証金 | - | 償却・敷引 | - |
| 住宅保険料 | - | 更新料 | - |
| 契約形態 | - | 契約期間 | - |
| 入居・引渡期間 | 即時 | 現況 | - |
| 入居可能条件 | 事務所可 | ||
| 契約備考 | 巡回管理/シャワーです。独立部屋・専用階段で静かに生活できます。徒歩圏内にバス停・ファミリーマート・なか卯・くら寿司・リカーマウンテンあります。立命館大学前すぐ 畳替え済み 2K 単身者可/二人入居可/子供可/事務所利用相談/ルームシェア相談 損保【2万円2年】 バストイレ別、バルコニー、エアコン、クロゼット、角住戸、脱衣所、洗面所独立、駐輪場、光ファイバー、閑静な住宅地、最上階、3口以上コンロ、バイク置場、南西角住戸、仲手0.55ヶ月、内階段、南面リビング、前面棟無、学生敷金1ヶ月、始発駅、風致地区、バス停徒歩3分以内、都市ガス、洗面所にドア、玄関収納、通風良好 | ||
部屋の情報
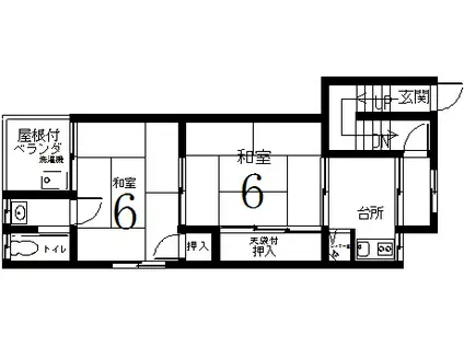
| 間取り | 2K | 専有面積 | 40m2 |
|---|---|---|---|
| 所在階 / 向き | 2階 / 北 | バルコニー面積 | 5m2 |
| 水道 / ガス | - | ||
| 設備 | バス・トイレ別、2階以上、インターネット対応、エアコン、南向き、角部屋、バルコニー、洗髪洗面化粧台、2口コンロ | ||
| 当社物件ID | 156951388 | ||
建物の情報
| 建物名 | 第二みやしき荘 | ||
|---|---|---|---|
| 所在地 | 京都府京都市北区平野上柳町 | ||
| 交通 | 京福電鉄北野線 北野白梅町駅 徒歩15分 京福電鉄北野線 等持院・立命館大学衣笠キャンパス前駅 徒歩17分 京福電鉄北野線 龍安寺駅 徒歩20分 | ||
| 階数 | 2階建 | 総戸数 | 7戸 |
| 築年月 | 1968年06月 / 築58年 | エレベーター | - |
| 駐車場 | なし | バイク置き場 | あり |
| 駐輪場 | あり | 管理人/管理会社 | - |
| 周辺環境 | その他 コープきぬがさ(スーパー)まで672m その他 ファッションセンターしまむら衣笠店(ショッピングセンター)まで672m その他 ファミリーマート立命館大学前店(コンビニ)まで289m その他 京都市立衣笠中学校(中学校)まで100m その他 京都市立金閣小学校(小学校)まで332m その他 私立立命館大学(大学・短大)まで289m | ||
| 建物種別 | アパート | 建物構造 | 木造 |
この部屋の取扱い不動産会社
| 会社名 | (有)インテルコ(SUUMO経由) | ||
|---|---|---|---|
| 所在地 | 京都府京都市北区小松原北町 63-3 | 交通 | - |
| 営業時間 | - | 定休日 | - |
| 免許番号 | 京都府知事8876 | 取引態様 | 仲介 |
| 不動産会社管理番号 | 100383600563 | 当社管理番号 | 89 |
| 所属団体 | (公社)全日本不動産協会京都府本部会員 | ||
| 公正取引協議会 | (公社)近畿地区不動産公正取引協議会加盟 | ||
| 取扱い物件情報 | 物件詳細へ | ||
※各種情報と現状に差異がある場合は、現状優先となります。問い合わせをすることで、より詳しい条件、情報を確認する事ができます。
提供:(有)インテルコ(SUUMO経由)
この物件が気になったら掲載期限まであと5日
第二みやしき荘に条件(家賃・エリア)が近い物件一覧
| 写真 | 家賃 管理費等 | 敷金 礼金 | 間取り 専有面積 | 築年数 | 最寄り駅 所在地 | キープ | 詳細 |
|---|---|---|---|---|---|---|---|
アパート 京都市烏丸線 北大路駅 徒歩27分 築41年(1K/2階) | |||||||
![]() | 4.5万円 4,000円 | 4.5万円 4.5万円 | 1K 18.18m2 | 築41年 | 京都市烏丸線 北大路駅 徒歩27分 京都市烏丸線 北山駅(京都) 徒歩27分 京都府京都市北区西賀茂丸川町 | 詳細を見る | |
マンション コーポ鳳瑞(1DK/4階) | |||||||
![]() | 4.25万円 2,500円 | 12万円 なし | 1DK 23.29m2 | 築46年 | 山陰本線 円町駅 徒歩11分 京福北野線 北野白梅町駅 徒歩11分 京都府京都市上京区鳳瑞町 | 詳細を見る | |
マンション 京都市烏丸線 北大路駅 徒歩14分 築44年(1K/3階) | |||||||
![]() | 3.2万円 5,000円 | なし なし | 1K 16.68m2 | 築44年 | 京都市烏丸線 北大路駅 徒歩14分 京都市烏丸線 北山駅(京都) 徒歩20分 京都府京都市北区紫竹下緑町 | 詳細を見る | |
マンション 京都市烏丸線 北大路駅 徒歩15分 築67年(1K/1階) | |||||||
![]() | 3万円 4,000円 | 5万円 なし | 1K 22m2 | 築67年 | 京都市烏丸線 北大路駅 徒歩15分 京都市烏丸線 北山駅(京都) 徒歩22分 京都府京都市北区紫竹上園生町 | 詳細を見る | |
マンション 京福北野線 北野白梅町駅 徒歩13分 築15年(1K/3階) | |||||||
![]() | 5.85万円 7,000円 | 7万円 10万円 | 1K 24.38m2 | 築15年 | 京福北野線 北野白梅町駅 徒歩13分 山陰本線 花園駅(京都) 徒歩18分 京都府京都市右京区龍安寺斎宮町 | 詳細を見る | |
マンション 京福北野線 北野白梅町駅 徒歩14分 築20年(1K/1階) | |||||||
![]() | 5.3万円 4,000円 | 5.3万円 5.3万円 | 1K 26.68m2 | 築20年 | 京福北野線 北野白梅町駅 徒歩14分 山陰本線 円町駅 徒歩30分 京都府京都市北区衣笠馬場町 | 詳細を見る | |
マンション 近鉄京都線 小倉駅(京都) 徒歩2分 築37年(1K/3階) | |||||||
![]() | 4.5万円 6,000円 | 4.5万円 なし | 1K 17.4m2 | 築37年 | 近鉄京都線 小倉駅(京都) 徒歩2分 奈良線 JR小倉駅 徒歩7分 京都府宇治市小倉町神楽田 | 詳細を見る | |
マンション ハイツ清晃(ワンルーム/2階) | |||||||
![]() | 2.7万円 3,000円 | なし なし | ワンルーム 18m2 | 築46年 | 京都府京都市北区衣笠天神森町 | 詳細を見る | |









