賃貸マンション
ファステート神戸サルビアの賃貸物件情報(1K/1階)
| 家賃 | 管理費等 | 敷金 | 礼金 | 間取り | 専有面積 |
|---|---|---|---|---|---|
| 5.94万円 | 4,600円 | なし | なし | 1K | 21.9m2 |
入居決定でお祝い金最大100,000円
Point
ファステートシリーズ!BSCS可、ネット無料、最新設備&最新の使いやすい間取りです♪スーパーやドラックストアもあり買い物など便利なエリアです♪仲介手数料割引対象!
提供:センチュリー21 (株)リライフ神戸三宮店(SUUMO経由)

詳細情報 ファステート神戸サルビア
物件紹介
ファステート神戸サルビアは山陽電鉄本線高速長田駅から徒歩7分にあり、駅近で通勤通学に便利なマンションです。
建物のエントランスはオートロックがついており、インターホンにはTVモニタもついているため、相手の顔を確認してから来客対応することができます。
こちらは楽器相談が可能な物件。楽器演奏をお考えの方はぜひ相談してみてください。フローリングのお部屋なのでお掃除もラクラク。キッチンはシステムキッチン仕様になっていますので、お料理好きの方にもぴったり。バス・トイレは別なので、のんびりお風呂タイムも楽しめるでしょう。また、雨の日でも浴室乾燥機を使えば、お洗濯も問題ありません。
通信設備面では、インターネットが無料で使えるので、月々の出費を抑えられるのも魅力です。また、BSアンテナ・CSアンテナがありCATVにも対応しているので、おうち時間も充実するでしょう(別途工事、BS・CS・CATVの契約料等が必要な場合あり)。
建物にはエレベーターがついているので、重い荷物があっても安心。共用部には宅配ボックスが設定されているので、不在の時にも荷物を受け取ることができます。
建物のエントランスはオートロックがついており、インターホンにはTVモニタもついているため、相手の顔を確認してから来客対応することができます。
こちらは楽器相談が可能な物件。楽器演奏をお考えの方はぜひ相談してみてください。フローリングのお部屋なのでお掃除もラクラク。キッチンはシステムキッチン仕様になっていますので、お料理好きの方にもぴったり。バス・トイレは別なので、のんびりお風呂タイムも楽しめるでしょう。また、雨の日でも浴室乾燥機を使えば、お洗濯も問題ありません。
通信設備面では、インターネットが無料で使えるので、月々の出費を抑えられるのも魅力です。また、BSアンテナ・CSアンテナがありCATVにも対応しているので、おうち時間も充実するでしょう(別途工事、BS・CS・CATVの契約料等が必要な場合あり)。
建物にはエレベーターがついているので、重い荷物があっても安心。共用部には宅配ボックスが設定されているので、不在の時にも荷物を受け取ることができます。
お金・契約の情報
※「-」と表示されているものは、実際は料金が発生するものもございます。詳細はお問い合わせください。
| 家賃 | 5.94万円 | 管理費・共益費 | 4,600円 |
|---|---|---|---|
| 敷金 | なし | 礼金 | なし |
| 入居決定でお祝い金最大100,000円 | |||
| 保証金 | - | 償却・敷引 | - |
| 住宅保険料 | - | 更新料 | - |
| 保証会社利用 | 必須 | 保証会社名 | - |
| 保証会社費用 | - | 保証会社備考 | 保証会社利用必 sumai保証 初回総賃料50% 更新年間2万円 月額550円 |
| 契約形態 | - | 契約期間 | - |
| 入居・引渡期間 | 即時 | 現況 | - |
| 入居可能条件 | 事務所可、楽器相談 | ||
| 契約備考 | ライフ長田店まで402m/ローソン兵庫駅前通店まで124m/巡回管理/EV/BS・CS/宅配ボックス/敷地内ゴミ置き場/カメラ付きロビーインターホン(オートロック)/監視カメラ/駐車場/駐輪場/バイク置き場/シューズボックス/クローゼット/室内洗濯パン/システムキッチン2口ガスコンロ/オートライト/フローリング/ネット無料/浴室乾燥機/ウォシュレット/エアコン/初期費用クレジットカード利用可能 スマサポコンシェル月額1320円 駐輪場月額400円 バイク置き場月額1000円 1K 二人入居可/楽器相談/事務所利用相談/ルームシェア相談 普通借家1年 損保【2.2万円2年】 バストイレ別、バルコニー、エアコン、クロゼット、フローリング、浴室乾燥機、オートロック、室内洗濯置、陽当り良好、シューズボックス、システムキッチン、温水洗浄便座、脱衣所、エレベーター、洗面所独立、洗面化粧台、2口コンロ、駐輪場、宅配ボックス、光ファイバー、外壁タイル張り、BS・CS、防犯カメラ、分譲賃貸、全居室洋室、保証人不要、二人入居相談、バイク置場、24時間緊急通報システム、2沿線利用可、仲手0.55ヶ月、ディンプルキー、駅まで平坦、ネット使用料不要、ダブルロックキー、事務所相談、24時間換気システム、楽器相談、ルームシェア相談、人感照明センサー、耐震構造、3駅以上利用可、駅徒歩10分以内、敷地内ごみ置き場、日勤管理、都市ガス、洗面所にドア、高速ネット対応、敷金・礼金不要、保証会社利用可、IT重説対応物件、高齢者歓迎、LGBTフレンドリー、初期費用カード決済可、通風良好 | ||
部屋の情報
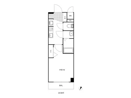
| 間取り | 1K | 専有面積 | 21.9m2 |
|---|---|---|---|
| 所在階 / 向き | 1階 / 北 | バルコニー面積 | 3m2 |
| 水道 / ガス | - | ||
| 設備 | バス・トイレ別、オートロック、宅配ボックス、浴室乾燥機、インターネット対応、システムキッチン、エアコン、エレベーター、温水洗浄便座、バルコニー、フローリング、洗髪洗面化粧台、2口コンロ、CSアンテナ、BSアンテナ、インターネット使用料無料、洗濯機:室内 | ||
| 当社物件ID | 158106650 | ||
建物の情報
| 建物名 | ファステート神戸サルビア | ||
|---|---|---|---|
| 所在地 | 兵庫県神戸市長田区二番町 | ||
| 交通 | 山陽電鉄本線 高速長田駅 徒歩7分 | ||
| 階数 | 7階建 | 総戸数 | - |
| 築年月 | 2025年03月 / 築1年 | エレベーター | あり |
| 駐車場 | 空有 10000円 | バイク置き場 | あり |
| 駐輪場 | あり | 管理人/管理会社 | - |
| 周辺環境 | その他 ライフ長田店(スーパー)まで402m その他 ローソン兵庫駅前通店(コンビニ)まで124m その他 スギ薬局長田店(ドラッグストア)まで410m その他 DCM大開店(ホームセンター)まで545m その他 神戸市立水木小学校(小学校)まで289m その他 地方独立行政法人神戸市民病院機構神戸市立医療センター西市民病(病院)まで124m | ||
| 建物種別 | マンション | 建物構造 | RC(鉄筋コンクリート) |
この部屋の取扱い不動産会社
| 会社名 | センチュリー21(株)リライフ神戸駅前店(SUUMO経由) | ||
|---|---|---|---|
| 所在地 | 兵庫県神戸市中央区相生町4-4-20 原田ビル2階 | 交通 | - |
| 営業時間 | 10:00~19:00 | 定休日 | 年末年始.水曜日 |
| 免許番号 | 兵庫県知事11692 | 取引態様 | 仲介 |
| 不動産会社管理番号 | 100429706078 | 当社管理番号 | 89 |
| 所属団体 | (公社)全日本不動産協会兵庫県本部会員 | ||
| 公正取引協議会 | (公社)近畿地区不動産公正取引協議会加盟 | ||
| 取扱い物件情報 | 物件詳細へ | ||
※各種情報と現状に差異がある場合は、現状優先となります。問い合わせをすることで、より詳しい条件、情報を確認する事ができます。
提供:センチュリー21(株)リライフ神戸駅前店(SUUMO経由)
この物件が気になったら掲載期限まであと9日
ファステート神戸サルビアの空き部屋一覧
全部で42の空き部屋があります。
ファステート神戸サルビアに条件(家賃・エリア)が近い物件一覧
| 写真 | 家賃 管理費等 | 敷金 礼金 | 間取り 専有面積 | 築年数 | 最寄り駅 所在地 | キープ | 詳細 |
|---|---|---|---|---|---|---|---|
マンション ローレルハイツ三木2号棟(2LDK/4階) | |||||||
![]() | 5万円 なし | なし 5万円 | 2LDK 54.8m2 | 築53年 | 神戸電鉄粟生線 三木駅(神戸電鉄) 徒歩11分 神戸電鉄粟生線 三木上の丸駅 徒歩16分 神戸電鉄粟生線 大村駅(兵庫) 徒歩19分 兵庫県三木市加佐 | 詳細を見る | |
一戸建て 神戸電鉄粟生線 三木上の丸駅 徒歩2分 築53年(2DK) | |||||||
![]() | 7万円 なし | なし 14万円 | 2DK 52.99m2 | 築53年 | 神戸電鉄粟生線 三木上の丸駅 徒歩2分 神戸電鉄粟生線 三木駅(神戸電鉄) 徒歩12分 神戸電鉄粟生線 恵比須駅 徒歩14分 兵庫県三木市上の丸町 | 詳細を見る | |
マンション ビレッジハウス志染(3DK/3階) | |||||||
![]() | 6.18万円 なし | なし なし | 3DK 56.5m2 | 築46年 | 神戸電鉄粟生線 志染駅 徒歩19分 神戸電鉄粟生線 恵比須駅 徒歩29分 神戸電鉄粟生線 広野ゴルフ場前駅 徒歩29分 兵庫県三木市志染町西自由が丘 | 詳細を見る | |
アパート 山陽本線 西明石駅 徒歩5分 築5年(ワンルーム/1階) | |||||||
![]() | 5.5万円 3,000円 | なし なし | ワンルーム 18.5m2 | 築5年 | 山陽本線 西明石駅 徒歩5分 兵庫県明石市西明石西町2丁目 | 詳細を見る | |
アパート ヒカルサ稲美天満Ⅰ(2LDK/2階) | |||||||
![]() | 8.05万円 3,900円 | なし 8.05万円 | 2LDK 56.44m2 | 新築 | 兵庫県加古郡稲美町六分一 | 詳細を見る | |
アパート シュシュ(2LDK/2階) | |||||||
![]() | 6.45万円 3,500円 | なし 6.45万円 | 2LDK 57.63m2 | 築12年 | 兵庫県加古郡稲美町国安 | 詳細を見る | |
アパート ラフィーネ緑が丘(1K/2階) | |||||||
![]() | 4.8万円 4,000円 | なし なし | 1K 29m2 | 築18年 | 神戸電鉄粟生線 緑が丘駅(兵庫) 徒歩13分 神戸電鉄粟生線 広野ゴルフ場前駅 徒歩20分 神戸電鉄粟生線 押部谷駅 徒歩22分 兵庫県三木市緑が丘町東 | 詳細を見る | |
アパート 神戸電鉄粟生線 広野ゴルフ場前駅 徒歩17分 築18年(1K/1階) | |||||||
![]() | 5万円 5,000円 | なし 5万円 | 1K 29.98m2 | 築18年 | 神戸電鉄粟生線 広野ゴルフ場前駅 徒歩17分 神戸電鉄粟生線 緑が丘駅(兵庫) 徒歩19分 神戸電鉄粟生線 押部谷駅 徒歩40分 兵庫県三木市緑が丘町西2丁目 | 詳細を見る | |







