賃貸マンション
LUMEED飯田橋の賃貸物件情報(1K/4階)
| 家賃 | 管理費等 | 敷金 | 礼金 | 間取り | 専有面積 |
|---|---|---|---|---|---|
| 16.1万円 | 1.1万円 | なし | 16.1万円 | 1K | 25.5m2 |
入居決定でお祝い金最大100,000円
- 保証金
- -
- 償却・敷引
- -
- 築年数
- 築10年
- 所在階
- 4階
- 向き
- 北
Point
室内見学承ります・お客様のご都合に合わせてオンラインまたはお近くの店舗でご提案可・初期費用分割払い可・クレジットカード利用可・引越業者割引・初期費用のお見積や入居日のご相談もお気軽にお問合せください
提供:(株)リライフ飯田橋店(SUUMO経由)

詳細情報 LUMEED飯田橋
物件紹介
LUMEED飯田橋は東京メトロ有楽町線江戸川橋駅から徒歩9分にあり、駅近で通勤通学に便利なマンションです。
このお部屋は2階以上に位置しているので、通行人や周囲の住人からの視線が気になりにくく、防犯面でも安心。建物のエントランスはオートロックがついており、インターホンにはTVモニタもついているため、相手の顔を確認してから来客対応することができます。
フローリングのお部屋なのでお掃除もラクラク。キッチンはシステムキッチン仕様になっていますので、お料理好きの方にもぴったり。バス・トイレは別なので、のんびりお風呂タイムも楽しめるでしょう。また、雨の日でも浴室乾燥機を使えば、お洗濯も問題ありません。
通信設備面では、インターネットが無料で使えるので、月々の出費を抑えられるのも魅力です。また、BSアンテナ・CSアンテナがありCATVにも対応しているので、おうち時間も充実するでしょう(別途工事、BS・CS・CATVの契約料等が必要な場合あり)。
建物にはエレベーターがついているので、重い荷物があっても安心。共用部には宅配ボックスが設定されているので、不在の時にも荷物を受け取ることができます。
このお部屋は2階以上に位置しているので、通行人や周囲の住人からの視線が気になりにくく、防犯面でも安心。建物のエントランスはオートロックがついており、インターホンにはTVモニタもついているため、相手の顔を確認してから来客対応することができます。
フローリングのお部屋なのでお掃除もラクラク。キッチンはシステムキッチン仕様になっていますので、お料理好きの方にもぴったり。バス・トイレは別なので、のんびりお風呂タイムも楽しめるでしょう。また、雨の日でも浴室乾燥機を使えば、お洗濯も問題ありません。
通信設備面では、インターネットが無料で使えるので、月々の出費を抑えられるのも魅力です。また、BSアンテナ・CSアンテナがありCATVにも対応しているので、おうち時間も充実するでしょう(別途工事、BS・CS・CATVの契約料等が必要な場合あり)。
建物にはエレベーターがついているので、重い荷物があっても安心。共用部には宅配ボックスが設定されているので、不在の時にも荷物を受け取ることができます。
お金・契約の情報
※「-」と表示されているものは、実際は料金が発生するものもございます。詳細はお問い合わせください。
| 家賃 | 16.1万円 | 管理費・共益費 | 1.1万円 |
|---|---|---|---|
| 敷金 | なし | 礼金 | 16.1万円 |
| 入居決定でお祝い金最大100,000円 | |||
| 保証金 | - | 償却・敷引 | - |
| 住宅保険料 | - | 更新料 | - |
| 保証会社利用 | 必須 | 保証会社名 | - |
| 保証会社費用 | - | 保証会社備考 | 保証会社利用必 初回:総賃料の100% |
| 契約形態 | 定期借家 | 契約期間 | 2年 |
| 入居・引渡期間 | - | 現況 | - |
| 契約備考 | 当物件は「住まいのリライフ」で取り扱っております。リライフは首都圏25店舗のネットワークで豊富な物件情報をお客様へご提供します。当物件に類似した未公開物件なども合わせてご提案可能です。お気軽にお問合せください。違約金有:1年未満解約、賃料1ヵ月分ランニング費用:リブクラブ(月額)、SBI少額短期保険(月額):3000円/その他費用:事務費用、退去時精算費用:2.75万円 合計8.25万円(内訳:鍵交換代金3.3万円事務手数料(初回のみ)2.2万円家具家電撤去費用(希望者のみ)(初回のみ)2.75万円) 室内清掃費用5.5万円保険(月額)0.08万円リブクラブ(月額)0.22万円賃料等引落料(月額)0.033万円 1K 定期借家2年 損保【要】 バストイレ別、バルコニー、エアコン、ガスコンロ対応、クロゼット、フローリング、シャワー付洗面台、TVインターホン、浴室乾燥機、オートロック、室内洗濯置、シューズボックス、システムキッチン、温水洗浄便座、脱衣所、エレベーター、洗面所独立、2口コンロ、駐輪場、宅配ボックス、CATV、光ファイバー、BS・CS、防犯カメラ、分譲賃貸、保証人不要、冷蔵庫、ディンプルキー、ネット使用料不要、24時間換気システム、家電付、家具付、3駅以上利用可、3沿線以上利用可、24時間ゴミ出し可、敷地内ごみ置き場、都市ガス、玄関収納、保証会社利用可、初期費用カード決済可 入居日:'26年2月下旬 | ||
部屋の情報
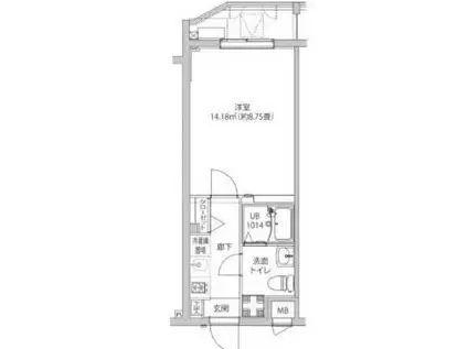
| 間取り | 1K | 専有面積 | 25.5m2 |
|---|---|---|---|
| 所在階 / 向き | 4階 / 北 | バルコニー面積 | - |
| 水道 / ガス | - | ||
| 設備 | バス・トイレ別、2階以上、オートロック、テレビドアホン、宅配ボックス、浴室乾燥機、インターネット対応、システムキッチン、エアコン、エレベーター、温水洗浄便座、バルコニー、フローリング、洗髪洗面化粧台、2口コンロ、コンロ:ガス、CATV、CSアンテナ、BSアンテナ、インターネット使用料無料、洗濯機:室内 | ||
| 当社物件ID | 22143684 | ||
建物の情報
| 建物名 | LUMEED飯田橋 | ||
|---|---|---|---|
| 所在地 | 東京都文京区水道 | ||
| 交通 | 東京メトロ有楽町線 江戸川橋駅 徒歩9分 都営大江戸線 飯田橋駅 徒歩12分 東京メトロ丸ノ内線 後楽園駅 徒歩15分 | ||
| 階数 | 5階建 | 総戸数 | 31戸 |
| 築年月 | 2016年06月 / 築10年 | エレベーター | あり |
| 駐車場 | なし | バイク置き場 | - |
| 駐輪場 | あり | 管理人/管理会社 | - |
| 周辺環境 | その他 まいばすけっと 東五軒町店(スーパー)まで110m その他 マルエツ プチ 水道小桜店(スーパー)まで165m その他 ファミリーマート 新宿新小川町店(コンビニ)まで163m その他 セブンイレブン文京水道1丁目店(コンビニ)まで214m その他 どらっぐぱぱす 新江戸川橋店(ドラッグストア)まで725m その他 ポニークリーニング 新小川町店(その他)まで489m | ||
| 建物種別 | マンション | 建物構造 | RC(鉄筋コンクリート) |
この部屋の取扱い不動産会社
| 会社名 | (株)リライフ飯田橋店(SUUMO経由) | ||
|---|---|---|---|
| 所在地 | 東京都千代田区飯田橋4-9-10 細谷ビル3階 | 交通 | - |
| 営業時間 | 10:00~18:30 | 定休日 | 水曜日(祝日を除く) |
| 免許番号 | 国土交通大臣10792 | 取引態様 | 仲介 |
| 不動産会社管理番号 | 100416233307 | 当社管理番号 | 89 |
| 所属団体 | (公社)東京都宅地建物取引業協会会員 | ||
| 公正取引協議会 | (公社)首都圏不動産公正取引協議会加盟 | ||
| 取扱い物件情報 | 物件詳細へ | ||
※各種情報と現状に差異がある場合は、現状優先となります。問い合わせをすることで、より詳しい条件、情報を確認する事ができます。
提供:(株)リライフ飯田橋店(SUUMO経由)
この物件が気になったら掲載期限まであと12日
LUMEED飯田橋に条件(家賃・エリア)が近い物件一覧
| 写真 | 家賃 管理費等 | 敷金 礼金 | 間取り 専有面積 | 築年数 | 最寄り駅 所在地 | キープ | 詳細 |
|---|---|---|---|---|---|---|---|
マンション メイクス浅草イースト(1SLDK/8階) | |||||||
![]() | 17.1万円 1.2万円 | 17.1万円 17.1万円 | 1SLDK 50.95m2 | 築5年 | 東京地下鉄日比谷線 三ノ輪駅 徒歩11分 常磐線 南千住駅 徒歩14分 東京都台東区東浅草2丁目 | 詳細を見る | |
マンション ザ・ライオンズフォーシア外神田(1DK/4階) | |||||||
![]() | 18万円 1.5万円 | 18万円 なし | 1DK 33.49m2 | 築1年 | 東京地下鉄銀座線 末広町駅(東京) 徒歩3分 総武・中央緩行線 秋葉原駅 徒歩9分 中央本線 御茶ノ水駅 徒歩10分 東京都千代田区外神田3丁目 | 詳細を見る | |
マンション MON CHATON(1LDK/7階) | |||||||
![]() | 14.9万円 6,000円 | 7.45万円 14.9万円 | 1LDK 43.53m2 | 築9年 | 東京地下鉄千代田線 町屋駅 徒歩11分 東京都荒川線 町屋駅前駅 徒歩11分 東京都荒川線 荒川七丁目駅 徒歩13分 東京都荒川区町屋6丁目 | 詳細を見る | |
マンション チェスターコート御茶ノ水(1K/13階) | |||||||
![]() | 15.5万円 1万円 | なし なし | 1K 26.7m2 | 築19年 | 東京都新宿線 小川町駅(東京) 徒歩3分 東京地下鉄千代田線 新御茶ノ水駅 徒歩5分 東京地下鉄丸ノ内線 淡路町駅 徒歩6分 東京都千代田区神田小川町3丁目 | 詳細を見る | |
マンション パークアクシス上野三丁目(ワンルーム/8階) | |||||||
![]() | 14.9万円 1万円 | 14.9万円 なし | ワンルーム 26.04m2 | 築11年 | 山手線 御徒町駅 徒歩3分 東京地下鉄銀座線 上野広小路駅 徒歩4分 東京地下鉄日比谷線 仲御徒町駅 徒歩5分 東京都台東区上野3丁目 | 詳細を見る | |
マンション プラザラポール(ワンルーム/11階) | |||||||
![]() | 14.4万円 8,000円 | 14.4万円 なし | ワンルーム 29.59m2 | 築31年 | 京成電鉄本線 新三河島駅 徒歩2分 常磐線 三河島駅 徒歩7分 京成電鉄本線 町屋駅 徒歩12分 東京都荒川区西日暮里1丁目 | 詳細を見る | |
マンション クラリティア浅草橋(1DK/14階) | |||||||
![]() | 14.8万円 1.2万円 | 14.8万円 なし | 1DK 25.45m2 | 築1年 | 総武・中央緩行線 浅草橋駅 徒歩4分 東京都浅草線 浅草橋駅 徒歩4分 山手線 秋葉原駅 徒歩8分 東京都台東区浅草橋4丁目 | 詳細を見る | |
マンション エスティメゾン千石(1LDK/1階) | |||||||
![]() | 16万円 1.2万円 | 16万円 16万円 | 1LDK 39.85m2 | 築17年 | 東京都三田線 千石駅 徒歩7分 山手線 巣鴨駅 徒歩9分 東京都文京区千石4丁目 | 詳細を見る | |









