賃貸マンション
ザ 東京タワーズ ミッドタワーの賃貸物件情報(1LDK/9階)
| 家賃 | 管理費等 | 敷金 | 礼金 | 間取り | 専有面積 |
|---|---|---|---|---|---|
| 27.1万円 | 1.5万円 | 54.2万円 | 27.1万円 | 1LDK | 58.42m2 |
入居決定でお祝い金最大100,000円
- 保証金
- -
- 償却・敷引
- -
- 築年数
- 築19年
- 所在階
- 9階
- 向き
- 南西
Point
ホテルの様なフロントサービスをサポートしています。浴室乾燥機付。雨の日や花粉が気になる季節も部屋干しできます。宅配BOX付き。不在時の受け取りがとても便利で防犯にも役立ちます。24時間ゴミ出し可。
提供:恵比寿不動産 (株)ライフアドバンス(SUUMO経由)

詳細情報 ザ 東京タワーズ ミッドタワー
物件紹介
ザ 東京タワーズ ミッドタワーは都営大江戸線勝どき駅から徒歩6分にあり、駅近で通勤通学に便利なマンションです。
このお部屋は2階以上に位置しているので通行人や周囲の住人からの視線が気になりにくく、建物のエントランスはオートロックがついているので防犯性が高くなっています。
こちらは楽器相談が可能な物件。楽器演奏をお考えの方はぜひ相談してみてください。人気の南向きのお部屋。また、フローリングなのでお掃除もラクラク。キッチンはシステムキッチン仕様になっていますので、お料理好きの方にもぴったり。バス・トイレは別なので、のんびりお風呂タイムも楽しめるでしょう。また、雨の日でも浴室乾燥機を使えば、お洗濯も問題ありません。
通信設備面では、インターネット接続が可能です。また、CATVにも対応しているので、おうち時間も充実するでしょう(別途工事、契約料が必要な場合あり)。
建物にはエレベーターがついているので、重い荷物があっても安心。共用部には宅配ボックスが設定されているので、不在の時にも荷物を受け取ることができます。また、ペット飼育の相談ができますので、あなたの大切な家族の一員も快適に暮らせるか、ぜひ確認してみてください。
このお部屋は2階以上に位置しているので通行人や周囲の住人からの視線が気になりにくく、建物のエントランスはオートロックがついているので防犯性が高くなっています。
こちらは楽器相談が可能な物件。楽器演奏をお考えの方はぜひ相談してみてください。人気の南向きのお部屋。また、フローリングなのでお掃除もラクラク。キッチンはシステムキッチン仕様になっていますので、お料理好きの方にもぴったり。バス・トイレは別なので、のんびりお風呂タイムも楽しめるでしょう。また、雨の日でも浴室乾燥機を使えば、お洗濯も問題ありません。
通信設備面では、インターネット接続が可能です。また、CATVにも対応しているので、おうち時間も充実するでしょう(別途工事、契約料が必要な場合あり)。
建物にはエレベーターがついているので、重い荷物があっても安心。共用部には宅配ボックスが設定されているので、不在の時にも荷物を受け取ることができます。また、ペット飼育の相談ができますので、あなたの大切な家族の一員も快適に暮らせるか、ぜひ確認してみてください。
お金・契約の情報
※「-」と表示されているものは、実際は料金が発生するものもございます。詳細はお問い合わせください。
| 家賃 | 27.1万円 | 管理費・共益費 | 1.5万円 |
|---|---|---|---|
| 敷金 | 54.2万円 | 礼金 | 27.1万円 |
| 入居決定でお祝い金最大100,000円 | |||
| 保証金 | - | 償却・敷引 | - |
| 住宅保険料 | - | 更新料 | - |
| 保証会社利用 | 必須 | 保証会社名 | - |
| 保証会社費用 | - | 保証会社備考 | 保証会社利用必 初回保証委託料(最低20,000円):月額賃料等の50%、2年目以降:10,000円/年 |
| 契約形態 | - | 契約期間 | - |
| 入居・引渡期間 | - | 現況 | - |
| 入居可能条件 | 楽器相談、ペット相談 | ||
| 契約備考 | 更新料新賃料(ヶ月):1.00ヶ月 1LDK ペット相談/楽器相談 普通借家2年 損保【要】 バストイレ別、バルコニー、エアコン、フローリング、浴室乾燥機、オートロック、室内洗濯置、システムキッチン、追焚機能浴室、エレベーター、宅配ボックス、CATV、ペット相談、グリル付、ネット専用回線、敷金2ヶ月、保証金不要、楽器相談、フロントサービス、駅徒歩10分以内、タワー型マンション、ゲストルーム、シアタールーム、24時間ゴミ出し可、南西向き、礼金1ヶ月、初期費用カード決済可 入居日:'26年4月中旬 | ||
部屋の情報
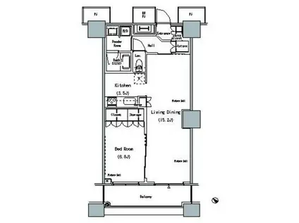
| 間取り | 1LDK | 専有面積 | 58.42m2 |
|---|---|---|---|
| 所在階 / 向き | 9階 / 南西 | バルコニー面積 | - |
| 水道 / ガス | - | ||
| 設備 | バス・トイレ別、2階以上、オートロック、宅配ボックス、浴室乾燥機、追い焚き、インターネット対応、システムキッチン、エアコン、エレベーター、南向き、バルコニー、フローリング、タワーマンション、CATV、洗濯機:室内 | ||
| 当社物件ID | 157027694 | ||
建物の情報
| 建物名 | ザ 東京タワーズ ミッドタワー | ||
|---|---|---|---|
| 所在地 | 東京都中央区勝どき | ||
| 交通 | 都営大江戸線 勝どき駅 徒歩6分 都営大江戸線 築地市場駅 徒歩19分 新交通ゆりかもめ 竹芝駅 徒歩35分 | ||
| 階数 | 地下2地上58階建 | 総戸数 | - |
| 築年月 | 2008年01月 / 築19年 | エレベーター | あり |
| 駐車場 | なし | バイク置き場 | - |
| 駐輪場 | - | 管理人/管理会社 | - |
| 周辺環境 | その他 マルエツ勝どき六丁目店(スーパー)まで230m その他 マルエツ晴海三丁目店(スーパー)まで820m その他 セブンイレブン勝どき5丁目店(コンビニ)まで120m その他 ローソン勝どき四丁目店(コンビニ)まで450m その他 晴海トリトン(ショッピングセンター)まで1140m その他 アトレ竹芝(ショッピングセンター)まで2650m | ||
| 建物種別 | マンション | 建物構造 | RC(鉄筋コンクリート) |
この部屋の取扱い不動産会社
| 会社名 | 恵比寿不動産 都心チーム(株)ライフアドバンス(SUUMO経由) | ||
|---|---|---|---|
| 所在地 | 東京都渋谷区東3-25-11 TOKYUREIT恵比寿ビル4階 | 交通 | - |
| 営業時間 | 10時~19時 | 定休日 | 水曜日 |
| 免許番号 | 東京都知事97301 | 取引態様 | 仲介 |
| 不動産会社管理番号 | 100491504490 | 当社管理番号 | 89 |
| 所属団体 | (公社)全日本不動産協会東京都本部会員 | ||
| 公正取引協議会 | (公社)首都圏不動産公正取引協議会加盟 | ||
| 取扱い物件情報 | 物件詳細へ | ||
※各種情報と現状に差異がある場合は、現状優先となります。問い合わせをすることで、より詳しい条件、情報を確認する事ができます。
提供:恵比寿不動産 都心チーム(株)ライフアドバンス(SUUMO経由)
この物件が気になったら掲載期限まであと10日
ザ 東京タワーズ ミッドタワーの空き部屋一覧
全部で25の空き部屋があります。
ザ 東京タワーズ ミッドタワーに条件(家賃・エリア)が近い物件一覧
| 写真 | 家賃 管理費等 | 敷金 礼金 | 間取り 専有面積 | 築年数 | 最寄り駅 所在地 | キープ | 詳細 |
|---|---|---|---|---|---|---|---|
マンション STANDZ勝どき(1LDK/5階) | |||||||
![]() | 17.1万円 1万円 | 17.1万円 なし | 1LDK 31.05m2 | 築1年 | 都営大江戸線 勝どき駅 徒歩4分 東京メトロ有楽町線 月島駅 徒歩14分 東京メトロ日比谷線 築地駅 徒歩17分 東京都中央区勝どき | 詳細を見る | |
マンション GEO ENT上野稲荷町(2LDK/12階) | |||||||
![]() | 27.1万円 2万円 | 27.1万円 なし | 2LDK 50.15m2 | 築1年 | 東京メトロ銀座線 稲荷町駅(東京) 徒歩7分 JR山手線 上野駅 徒歩10分 都営大江戸線 新御徒町駅 徒歩10分 東京都台東区松が谷 | 詳細を見る | |
マンション マイナビSTAYプレステージ赤坂檜町公園(1LDK/4階) | |||||||
![]() | 43万円 1.1万円 | なし 86万円 | 1LDK 51.07m2 | 築27年 | 東京メトロ千代田線 赤坂駅(東京) 徒歩6分 東京メトロ日比谷線 六本木駅 徒歩7分 東京メトロ千代田線 乃木坂駅 徒歩7分 東京都港区赤坂 | 詳細を見る | |
マンション グランパレス東京八重洲アベニュー(1K/9階) | |||||||
![]() | 16.8万円 なし | 16.8万円 33.6万円 | 1K 28.8m2 | 築10年 | JR京葉線 八丁堀駅(東京) 徒歩6分 東京メトロ日比谷線 八丁堀駅(東京) 徒歩6分 東京メトロ東西線 茅場町駅 徒歩14分 東京都中央区新川 | 詳細を見る | |
マンション DIMUS蔵前RESIDENCE(1LDK/9階) | |||||||
![]() | 21.6万円 1.5万円 | なし なし | 1LDK 41.85m2 | 築4年 | 都営浅草線 蔵前駅 徒歩2分 JR総武線 浅草橋駅 徒歩10分 東京メトロ銀座線 田原町駅(東京) 徒歩11分 東京都台東区蔵前 | 詳細を見る | |
マンション NIDO SHIN-OKACHIMACHI(2LDK/2階) | |||||||
![]() | 21万円 2万円 | なし なし | 2LDK 41.56m2 | 築2年 | 都営大江戸線 新御徒町駅 徒歩3分 東京メトロ日比谷線 仲御徒町駅 徒歩8分 東京メトロ銀座線 稲荷町駅(東京) 徒歩10分 東京都台東区小島 | 詳細を見る | |
マンション FULL HOUSE MONZENNAKACHO(ワンルーム/6階) | |||||||
![]() | 19万円 1万円 | 19万円 なし | ワンルーム 42.84m2 | 築36年 | 東京地下鉄東西線 門前仲町駅 徒歩8分 東京都江東区永代1丁目 | 詳細を見る | |
マンション バウスフラッツ蔵前(1LDK/12階) | |||||||
![]() | 19.2万円 1万円 | 19.2万円 なし | 1LDK 34.86m2 | 築1年 | 都営浅草線 蔵前駅 徒歩2分 都営浅草線 浅草橋駅 徒歩6分 東京メトロ銀座線 田原町駅(東京) 徒歩11分 東京都台東区蔵前 | 詳細を見る | |








