賃貸マンション
ビレッジハウス引佐 1号棟の賃貸物件情報(3DK/2階)
| 家賃 | 管理費等 | 敷金 | 礼金 | 間取り | 専有面積 |
|---|---|---|---|---|---|
| 4.28万円 | なし | なし | なし | 3DK | 53.96m2 |
入居決定でお祝い金最大100,000円
- 保証金
- -
- 償却・敷引
- -
- 築年数
- 築47年
- 所在階
- 2階
- 向き
- 南
Point
まずはお問い合わせ!
不動産会社は街のプロ、あなたに合った物件がきっと見つかります。
提供:ビレッジハウス・マネジメント株式会社 住まい相談センター

詳細情報 ビレッジハウス引佐 1号棟
物件紹介
ビレッジハウス引佐 1号棟は天竜浜名湖鉄道金指駅から徒歩33分にあるマンションです。
このお部屋は2階以上に位置しているので、通行人や周囲の住人からの視線が気になりにくく、防犯面でも安心です。
人気の南向きのお部屋。また、フローリングなのでお掃除もラクラク。バス・トイレ別の仕様で、のんびりお風呂タイムも楽しめます。
通信設備面では、インターネット接続が可能です(別途工事、契約料が必要な場合あり)。
このお部屋は2階以上に位置しているので、通行人や周囲の住人からの視線が気になりにくく、防犯面でも安心です。
人気の南向きのお部屋。また、フローリングなのでお掃除もラクラク。バス・トイレ別の仕様で、のんびりお風呂タイムも楽しめます。
通信設備面では、インターネット接続が可能です(別途工事、契約料が必要な場合あり)。
お金・契約の情報
※「-」と表示されているものは、実際は料金が発生するものもございます。詳細はお問い合わせください。
| 家賃 | 4.28万円 | 管理費・共益費 | なし |
|---|---|---|---|
| 敷金 | なし | 礼金 | なし |
| フリーレント | 1ヶ月 | ||
| 入居決定でお祝い金最大100,000円 | |||
| 保証金 | - | 償却・敷引 | - |
| 住宅保険料 | 1万円(2年) | 更新料 | - |
| 保証会社利用 | - | 保証会社名 | - |
| 保証会社費用 | - | 保証会社備考 | - |
| 契約形態 | - | 契約期間 | - |
| 入居・引渡期間 | - | 現況 | 空室 |
| 入居可能条件 | 2人入居可、高齢者相談、学生可 | ||
| 契約備考 | 契約種類:普通契約、24時間緊急対応、ウォシュレット、ウォームレット | ||
部屋の情報
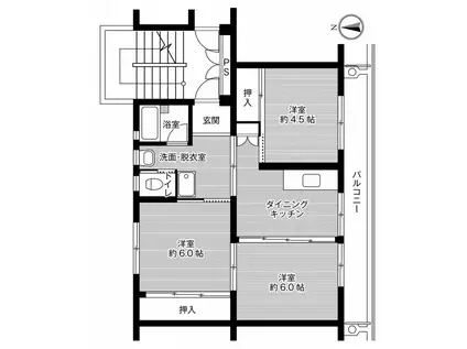
| 間取り | 3DK | 専有面積 | 53.96m2 |
|---|---|---|---|
| 所在階 / 向き | 2階 / 南 | バルコニー面積 | - |
| 水道 / ガス | - | ||
| 設備 | バス・トイレ別、追い焚き、エアコン、バルコニー、給湯、洗濯機:室内 | ||
| 当社物件ID | 29253455 | ||
建物の情報
| 建物名 | ビレッジハウス引佐 1号棟 | ||
|---|---|---|---|
| 所在地 | 静岡県浜松市浜名区引佐町井伊谷610-4 | ||
| 交通 | 天竜浜名湖鉄道 岡地駅 徒歩41分 天竜浜名湖鉄道 金指駅 徒歩52分 東海道本線 浜松駅 バス乗車時間:65分 井伊谷バス停で下車 徒歩7分 天竜浜名湖鉄道 気賀駅 バス乗車時間:65分 最寄りバス停で下車 徒歩35分 | ||
| 階数 | 5階建 | 総戸数 | - |
| 築年月 | 1979年10月 / 築47年 | エレベーター | - |
| 駐車場 | 空有 3,300円/月 円 | バイク置き場 | - |
| 駐輪場 | - | 管理人/管理会社 | 日勤 |
| 建物種別 | マンション | 建物構造 | RC(鉄筋コンクリート) |
この部屋の取扱い不動産会社
| 会社名 | ビレッジハウス・マネジメント株式会社 住まい相談センター | ||
|---|---|---|---|
| 所在地 | 東京都港区六本木6-10-1 六本木ヒルズ森タワー44階 | 交通 | 東京メトロ日比谷線「六本木駅」 直結 |
| 営業時間 | 平日:9:00-18:30/土日祝:9:00-18:00 | 定休日 | 年中無休(年末年始を除く) |
| 免許番号 | 東京都知事(2)第100758号 | 取引態様 | 貸主 |
| 不動産会社管理番号 | 00013923832 | 当社管理番号 | 459 |
| 所属団体 | 公益社団法人東京都宅地建物取引業協会会員 日本賃貸住宅管理協会会員 | ||
| 取扱い物件情報 | 物件詳細へ | ||
※各種情報と現状に差異がある場合は、現状優先となります。問い合わせをすることで、より詳しい条件、情報を確認する事ができます。
提供:ビレッジハウス・マネジメント株式会社 住まい相談センター
この物件が気になったら掲載期限まであと13日
ビレッジハウス引佐 1号棟に条件(家賃・エリア)が近い物件一覧
| 写真 | 家賃 管理費等 | 敷金 礼金 | 間取り 専有面積 | 築年数 | 最寄り駅 所在地 | キープ | 詳細 |
|---|---|---|---|---|---|---|---|
マンション サンリバーハイツ(ワンルーム/3階) | |||||||
![]() | 3.6万円 3,000円 | なし なし | ワンルーム 24.37m2 | 築40年 | 東海道本線 浜松駅 徒歩13分 静岡県浜松市中央区木戸町 | 詳細を見る | |
マンション HEARTLYKKE(1K/3階) | |||||||
![]() | 6.7万円 5,000円 | なし 6.7万円 | 1K 27.95m2 | 築5年 | 東海道本線 浜松駅 徒歩6分 静岡県浜松市中央区海老塚町 | 詳細を見る | |
マンション レナトゥス松城(1LDK/1階) | |||||||
![]() | 6.7万円 3,000円 | なし 6.7万円 | 1LDK 41.65m2 | 築41年 | 遠州鉄道 遠州病院駅 徒歩14分 遠州鉄道 第一通り駅 徒歩17分 東海道本線 浜松駅 徒歩22分 静岡県浜松市中央区松城町 | 詳細を見る | |
マンション アルシェ浜松(2K/2階) | |||||||
![]() | 3.8万円 3,000円 | なし なし | 2K 28.22m2 | 築38年 | 東海道本線 浜松駅 徒歩12分 静岡県浜松市中央区尾張町 | 詳細を見る | |
マンション メゾン アルカディア(ワンルーム/2階) | |||||||
![]() | 3.7万円 3,000円 | なし なし | ワンルーム 23.8m2 | 築38年 | 東海道本線 浜松駅 徒歩14分 静岡県浜松市中央区北寺島町 | 詳細を見る | |
マンション 織良コーポ(2K/3階) | |||||||
![]() | 3.2万円 3,000円 | なし なし | 2K 29.75m2 | 築51年 | 東海道本線 浜松駅 徒歩6分 静岡県浜松市中央区寺島町 | 詳細を見る | |






