賃貸マンション
プレサンス福島ミッドエルの賃貸物件情報(1K/9階)
| 家賃 | 管理費等 | 敷金 | 礼金 | 間取り | 専有面積 |
|---|---|---|---|---|---|
| 7.541万円 | 6,590円 | なし | 10万円 | 1K | 22.33m2 |
入居決定でお祝い金最大100,000円
- 保証金
- -
- 償却・敷引
- -
- 築年数
- 築6年
- 所在階
- 9階
- 向き
- 東
- 交通
- 阪神電鉄本線 野田駅(阪神) 徒歩5分
大阪環状線 福島駅(JR西日本) 徒歩15分
- 所在地
- 大阪府大阪市福島区吉野2丁目
プレサンス福島ミッドエル
[地図を表示]
Point
駅徒歩3分 2沿線利用可能 インターネット無料 宅配ボックス
提供:大阪ハウスコム株式会社 南森町店

詳細情報 プレサンス福島ミッドエル
物件紹介
プレサンス福島ミッドエルは阪神電鉄本線野田駅から徒歩5分にあり、駅近で通勤通学に便利なマンションです。
このお部屋は2階以上に位置しているので、通行人や周囲の住人からの視線が気になりにくく、防犯面でも安心。建物のエントランスはオートロックがついており、インターホンにはTVモニタもついているため、相手の顔を確認してから来客対応することができます。
フローリングのお部屋なのでお掃除もラクラク。キッチンはシステムキッチン仕様になっていますので、お料理好きの方にもぴったり。バス・トイレは別なので、のんびりお風呂タイムも楽しめるでしょう。また、雨の日でも浴室乾燥機を使えば、お洗濯も問題ありません。
通信設備面では、インターネットが無料で使えるので、月々の出費を抑えられるのも魅力です。また、BSアンテナ・CSアンテナがありCATVにも対応しているので、おうち時間も充実するでしょう(別途工事、BS・CS・CATVの契約料等が必要な場合あり)。
建物にはエレベーターがついているので、重い荷物があっても安心。共用部には宅配ボックスが設定されているので、不在の時にも荷物を受け取ることができます。
コンビニまで徒歩3分の場所にあり、日用品や食料品のお買い物にも便利です。
このお部屋は2階以上に位置しているので、通行人や周囲の住人からの視線が気になりにくく、防犯面でも安心。建物のエントランスはオートロックがついており、インターホンにはTVモニタもついているため、相手の顔を確認してから来客対応することができます。
フローリングのお部屋なのでお掃除もラクラク。キッチンはシステムキッチン仕様になっていますので、お料理好きの方にもぴったり。バス・トイレは別なので、のんびりお風呂タイムも楽しめるでしょう。また、雨の日でも浴室乾燥機を使えば、お洗濯も問題ありません。
通信設備面では、インターネットが無料で使えるので、月々の出費を抑えられるのも魅力です。また、BSアンテナ・CSアンテナがありCATVにも対応しているので、おうち時間も充実するでしょう(別途工事、BS・CS・CATVの契約料等が必要な場合あり)。
建物にはエレベーターがついているので、重い荷物があっても安心。共用部には宅配ボックスが設定されているので、不在の時にも荷物を受け取ることができます。
コンビニまで徒歩3分の場所にあり、日用品や食料品のお買い物にも便利です。
お金・契約の情報
※「-」と表示されているものは、実際は料金が発生するものもございます。詳細はお問い合わせください。
| 家賃 | 7.541万円 | 管理費・共益費 | 6,590円 |
|---|---|---|---|
| 敷金 | なし | 礼金 | 10万円 |
| 入居決定でお祝い金最大100,000円 | |||
| 保証金 | - | 償却・敷引 | - |
| 住宅保険料 | 1円 | 更新料 | - |
| 保証会社利用 | 必須 | 保証会社名 | - |
| 保証会社費用 | - | 保証会社備考 | ギャランティ初回50%月1.5% セーフティ初回50%年1万 |
| 契約形態 | - | 契約期間 | 1年 |
| 入居・引渡期間 | 2026年03月下旬 | 現況 | - |
| 契約備考 | 室内清掃費用 30000円 鍵交換代 29700円 月額:プレサポ安心24 990円 保証会社利用必須 ギャランティ初回50%月1.5% セーフティ初回50%年1万 月額(プレサポ安心24 990円) 鍵交換費用:29700 室内清掃費用:30000 その他設備/条件:室内洗濯機置き場、独立洗面台、防犯カメラ、クローゼット、シューズボックス | ||
部屋の情報
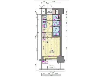
| 間取り | 1K | 専有面積 | 22.33m2 |
|---|---|---|---|
| 間取り詳細 | K(2帖)、洋室(6帖) | ||
| 所在階 / 向き | 9階 / 東 | バルコニー面積 | - |
| 水道 / ガス | 水道【公営】、ガス【都市】 | ||
| 設備 | バス・トイレ別、オートロック、テレビドアホン、宅配ボックス、浴室乾燥機、インターネット対応、システムキッチン、エアコン、エレベーター、温水洗浄便座、バルコニー、洗髪洗面化粧台、2口コンロ、コンロ:ガス、CSアンテナ、BSアンテナ、インターネット使用料無料、シャワー、給湯 | ||
| 当社物件ID | 46576890 | ||
建物の情報
| 建物名 | プレサンス福島ミッドエル | ||
|---|---|---|---|
| 所在地 | 大阪府大阪市福島区吉野2丁目 | ||
| 交通 | 阪神電鉄本線 野田駅(阪神) 徒歩5分 大阪環状線 福島駅(JR西日本) 徒歩15分 | ||
| 階数 | 13階建 | 総戸数 | 144戸 |
| 築年月 | 2021年01月 / 築6年 | エレベーター | あり |
| 駐車場 | - | バイク置き場 | あり |
| 駐輪場 | あり | 管理人/管理会社 | - |
| 周辺環境 | コンビニ 徒歩3分(191m) 販売店 徒歩6分(448m) 病院 徒歩12分(930m) その他 ドラッグストア その他 公園 その他 銀行 その他 * | ||
| 建物種別 | マンション | 建物構造 | RC(鉄筋コンクリート) |
この部屋の取扱い不動産会社
| 会社名 | 大阪ハウスコム株式会社 西中島南方店 | ||
|---|---|---|---|
| 所在地 | 大阪府大阪市淀川区18-9新大阪日大ビル2階 | 交通 | - |
| 営業時間 | 10:00~18:00 | 定休日 | 水曜定休 |
| 免許番号 | 国土交通大臣(3)第8685号 | 取引態様 | 仲介 |
| 不動産会社管理番号 | HC2-3146936-906-0246 | 当社管理番号 | 468 |
| 所属団体 | 、 | ||
| 取扱い物件情報 | 物件詳細へ | ||
※各種情報と現状に差異がある場合は、現状優先となります。問い合わせをすることで、より詳しい条件、情報を確認する事ができます。
提供:大阪ハウスコム株式会社 西中島南方店
この物件が気になったら掲載期限まであと4日
プレサンス福島ミッドエルの空き部屋一覧
全部で25の空き部屋があります。
プレサンス福島ミッドエルに条件(家賃・エリア)が近い物件一覧
| 写真 | 家賃 管理費等 | 敷金 礼金 | 間取り 専有面積 | 築年数 | 最寄り駅 所在地 | キープ | 詳細 |
|---|---|---|---|---|---|---|---|
マンション 阪和線 鳳駅 徒歩12分 築6年(1LDK/3階) | |||||||
![]() | 7.2万円 1万円 | なし 7.2万円 | 1LDK 34.61m2 | 築6年 | 阪和線 鳳駅 徒歩12分 阪和線 富木駅 徒歩18分 阪和線 津久野駅 徒歩27分 大阪府堺市西区鳳南町5丁 | 詳細を見る | |
アパート レオパレスアドバンス鳥飼(1K/2階) | |||||||
| 5.8万円 5,000円 | なし なし | 1K 19.87m2 | 築23年 | 大阪モノレール本線 南摂津駅 徒歩21分 大阪モノレール本線 摂津駅 徒歩39分 大阪モノレール本線 沢良宜駅 徒歩46分 大阪府摂津市鳥飼本町5丁目9-30 | 詳細を見る | ||
アパート Mプラザ布施弐番館(1K/2階) | |||||||
![]() | 5.1万円 7,000円 | なし 5万円 | 1K 28.08m2 | 築14年 | 近鉄奈良線 布施駅 徒歩8分 近鉄大阪線 布施駅 徒歩8分 地下鉄千日前線 新深江駅 徒歩8分 大阪府東大阪市足代北 | 詳細を見る | |
マンション シャトー松ヶ丘(3DK/2階) | |||||||
![]() | 6万円 なし | なし 6万円 | 3DK 54.18m2 | 築44年 | 近鉄南大阪線 河内松原駅 徒歩15分 近鉄南大阪線 恵我ノ荘駅 徒歩27分 近鉄南大阪線 高見ノ里駅 徒歩29分 大阪府松原市松ケ丘3丁目 | 詳細を見る | |
マンション レオパレスサンシャイン浜寺(1K/3階) | |||||||
![]() | 5.5万円 7,000円 | なし 5.5万円 | 1K 19.87m2 | 築22年 | 南海電鉄南海本線 浜寺公園駅 徒歩14分 阪和線 鳳駅 徒歩18分 南海電鉄南海本線 羽衣駅 徒歩22分 大阪府堺市西区浜寺元町4丁 | 詳細を見る | |
アパート シャーメゾン 岩田(3LDK/2階) | |||||||
![]() | 10.5万円 5,500円 | 2万円 20万円 | 3LDK 74.29m2 | 築9年 | 近鉄難波・奈良線 若江岩田駅 徒歩5分 大阪府東大阪市岩田町4丁目 | 詳細を見る | |
アパート アンプルール フェール 江坂(1K/1階) | |||||||
| 6.9万円 1.1万円 | なし 6.9万円 | 1K 35.01m2 | 築21年 | 北大阪急行南北線 緑地公園駅 徒歩13分 北大阪急行南北線 江坂駅 徒歩16分 阪急電鉄千里線 関大前駅 徒歩20分 大阪府吹田市江坂町3丁目22-8 | 詳細を見る | ||






