賃貸マンション
ガリシア四ツ木テラスの賃貸物件情報(1K/5階)
| 家賃 | 管理費等 | 敷金 | 礼金 | 間取り | 専有面積 |
|---|---|---|---|---|---|
| 10万円 | 1.4万円 | 10万円 | なし | 1K | 26.44m2 |
入居決定でお祝い金最大100,000円
- 保証金
- -
- 償却・敷引
- -
- 築年数
- 築1年
- 所在階
- 5階
- 向き
- 南東
Point
仲介専門店だから、どこの会社のお部屋でも同条件でご紹介が可能。まとめてぜーんぶご紹介・ご内見ができます。足立区・葛飾区のお部屋探しは、情報量ナンバーワンのタウンハウジング綾瀬店にお任せ下さい!
提供:(株)ハウスパートナー新小岩店(SUUMO経由)

詳細情報 ガリシア四ツ木テラス
物件紹介
ガリシア四ツ木テラスは京成押上線四ツ木駅から徒歩7分にあり、駅近で通勤通学に便利なマンションです。
このお部屋は2階以上に位置しているので、通行人や周囲の住人からの視線が気になりにくく、防犯面でも安心。建物のエントランスはオートロックがついており、インターホンにはTVモニタもついているため、相手の顔を確認してから来客対応することができます。
おしゃれなデザイナーズ物件!人気の南向きのお部屋。また、フローリングなのでお掃除もラクラク。キッチンはシステムキッチン仕様になっていますので、お料理好きの方にもぴったり。バス・トイレは別なので、のんびりお風呂タイムも楽しめるでしょう。また、雨の日でも浴室乾燥機を使えば、お洗濯も問題ありません。
通信設備面では、インターネットが無料で使えるので、月々の出費を抑えられるのも魅力です。また、BSアンテナ・CSアンテナもありますので、おうち時間も充実するでしょう(別途工事、BS・CSの契約料等が必要な場合あり)。
建物にはエレベーターがついているので、重い荷物があっても安心。共用部には宅配ボックスが設定されているので、不在の時にも荷物を受け取ることができます。また、ペット飼育の相談ができますので、あなたの大切な家族の一員も快適に暮らせるか、ぜひ確認してみてください。
このお部屋は2階以上に位置しているので、通行人や周囲の住人からの視線が気になりにくく、防犯面でも安心。建物のエントランスはオートロックがついており、インターホンにはTVモニタもついているため、相手の顔を確認してから来客対応することができます。
おしゃれなデザイナーズ物件!人気の南向きのお部屋。また、フローリングなのでお掃除もラクラク。キッチンはシステムキッチン仕様になっていますので、お料理好きの方にもぴったり。バス・トイレは別なので、のんびりお風呂タイムも楽しめるでしょう。また、雨の日でも浴室乾燥機を使えば、お洗濯も問題ありません。
通信設備面では、インターネットが無料で使えるので、月々の出費を抑えられるのも魅力です。また、BSアンテナ・CSアンテナもありますので、おうち時間も充実するでしょう(別途工事、BS・CSの契約料等が必要な場合あり)。
建物にはエレベーターがついているので、重い荷物があっても安心。共用部には宅配ボックスが設定されているので、不在の時にも荷物を受け取ることができます。また、ペット飼育の相談ができますので、あなたの大切な家族の一員も快適に暮らせるか、ぜひ確認してみてください。
お金・契約の情報
※「-」と表示されているものは、実際は料金が発生するものもございます。詳細はお問い合わせください。
| 家賃 | 10万円 | 管理費・共益費 | 1.4万円 |
|---|---|---|---|
| 敷金 | 10万円 | 礼金 | なし |
| 入居決定でお祝い金最大100,000円 | |||
| 保証金 | - | 償却・敷引 | - |
| 住宅保険料 | - | 更新料 | - |
| 保証会社利用 | 必須 | 保証会社名 | - |
| 保証会社費用 | - | 保証会社備考 | 保証会社利用必 初回保証料50%、月次保証料:1%+550円 年間保証料:1万円 |
| 契約形態 | - | 契約期間 | - |
| 入居・引渡期間 | 即時 | 現況 | - |
| 入居可能条件 | ペット相談 | ||
| 契約備考 | 足立区・葛飾区 情報量ナンバーワン!東京メトロ千代田線 JR常磐線 つくばエクスプレスでのお部屋探しはタウンハウジング綾瀬店にお任せ下さい!ステキなお部屋探しを全力でサポート致します!タウンハウジング綾瀬店は2022年にオープンしました、新しく綺麗で広い店舗です。広いスペースでコロナ対策も徹底しております。綾瀬駅西改札を出て左手正面、徒歩10秒。オンライン内見、送迎、車でのご来店もご対応致します。 更新料新賃料(ヶ月):1.00ヶ月、BRIプライムプラス:2530円/月 1K 二人入居可/ペット相談 普通借家2年 損保【1.8万円2年】 バストイレ別、バルコニー、エアコン、ガスコンロ対応、フローリング、シャワー付洗面台、浴室乾燥機、オートロック、室内洗濯置、シューズボックス、システムキッチン、温水洗浄便座、脱衣所、エレベーター、洗面所独立、洗面化粧台、2口コンロ、駐輪場、宅配ボックス、外壁タイル張り、即入居可、礼金不要、BS・CS、独立型キッチン、ペット相談、照明付、全居室収納、分譲賃貸、全居室洋室、保証人不要、敷金1ヶ月、二人入居相談、バイク置場、全居室フローリング、デザイナーズ、2沿線利用可、ディンプルキー、ネット専用回線、エアコン全室、保証金不要、築2年以内、24時間換気システム、未入居、全室2面採光、2駅利用可、3駅以上利用可、3沿線以上利用可、24時間ゴミ出し可、敷地内ごみ置き場、東南向き、寝室8畳以上、全居室8畳以上、キッチン未使用、都市ガス、室内物干機、玄関収納、年内入居可、年度内入居可、IT重説対応物件、初期費用カード決済可 敷金積み増し【ペット飼育の場合敷金2ヶ月(総額)】 | ||
部屋の情報
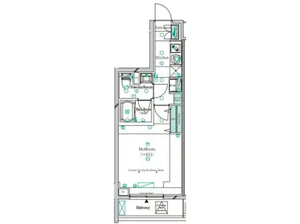
| 間取り | 1K | 専有面積 | 26.44m2 |
|---|---|---|---|
| 所在階 / 向き | 5階 / 南東 | バルコニー面積 | - |
| 水道 / ガス | - | ||
| 設備 | バス・トイレ別、2階以上、オートロック、宅配ボックス、浴室乾燥機、インターネット対応、システムキッチン、エアコン、エレベーター、温水洗浄便座、南向き、バルコニー、フローリング、洗髪洗面化粧台、2口コンロ、コンロ:ガス、デザイナーズ、CSアンテナ、BSアンテナ、洗濯機:室内 | ||
| 当社物件ID | 160028291 | ||
建物の情報
| 建物名 | ガリシア四ツ木テラス | ||
|---|---|---|---|
| 所在地 | 東京都葛飾区東四つ木 | ||
| 交通 | 京成押上線 四ツ木駅 徒歩7分 京成押上線 八広駅 徒歩16分 京成押上線 京成立石駅 徒歩20分 | ||
| 階数 | 7階建 | 総戸数 | 40戸 |
| 築年月 | 2025年10月 / 築1年 | エレベーター | あり |
| 駐車場 | なし | バイク置き場 | あり |
| 駐輪場 | あり | 管理人/管理会社 | - |
| 周辺環境 | その他 四ツ木駅(京成 押上線)(その他)まで550m その他 八広駅(京成 押上線)(その他)まで1430m その他 まいばすけっと東四つ木3丁目店(スーパー)まで410m その他 セブンイレブン葛飾東四つ木3丁目店(コンビニ)まで250m その他 ファッションセンターしまむら平井店(ショッピングセンター)まで2260m その他 ビッグエー(スーパー)まで490m | ||
| 建物種別 | マンション | 建物構造 | RC(鉄筋コンクリート) |
この部屋の取扱い不動産会社
| 会社名 | (株)タウンハウジング東京 綾瀬店(SUUMO経由) | ||
|---|---|---|---|
| 所在地 | 東京都足立区綾瀬1-39-1 SAKAMURA HOUSE1階 | 交通 | - |
| 営業時間 | AM10:00~PM7:00 | 定休日 | 水曜日 |
| 免許番号 | 国土交通大臣9926 | 取引態様 | 仲介 |
| 不動産会社管理番号 | 100477935275 | 当社管理番号 | 89 |
| 所属団体 | (公社)東京都宅地建物取引業協会会員 | ||
| 公正取引協議会 | (公社)首都圏不動産公正取引協議会加盟 | ||
| 取扱い物件情報 | 物件詳細へ | ||
※各種情報と現状に差異がある場合は、現状優先となります。問い合わせをすることで、より詳しい条件、情報を確認する事ができます。
提供:(株)タウンハウジング東京 綾瀬店(SUUMO経由)
この物件が気になったら掲載期限まであと10日
ガリシア四ツ木テラスの空き部屋一覧
全部で40の空き部屋があります。
ガリシア四ツ木テラスに条件(家賃・エリア)が近い物件一覧
| 写真 | 家賃 管理費等 | 敷金 礼金 | 間取り 専有面積 | 築年数 | 最寄り駅 所在地 | キープ | 詳細 |
|---|---|---|---|---|---|---|---|
マンション GENOVIA両国VIGREEN VEIL(ワンルーム/8階) | |||||||
![]() | 12.1万円 1.5万円 | なし なし | ワンルーム 26.53m2 | 築4年 | 都営新宿線 菊川駅(東京) 徒歩11分 JR総武線 錦糸町駅 徒歩12分 都営大江戸線 森下駅(東京) 徒歩19分 東京都墨田区緑 | 詳細を見る | |
マンション アーバンパーク押上(1DK/1階) | |||||||
![]() | 12.15万円 1.5万円 | なし なし | 1DK 25.81m2 | 築2年 | 都営浅草線 押上駅 徒歩8分 東武伊勢崎線 曳舟駅 徒歩14分 都営浅草線 本所吾妻橋駅 徒歩14分 東京都墨田区向島 | 詳細を見る | |
アパート ハイム73(1K/2階) | |||||||
![]() | 6.5万円 3,000円 | 6.5万円 なし | 1K 19.87m2 | 築36年 | 京成電鉄本線 京成小岩駅 徒歩6分 総武・中央緩行線 小岩駅 徒歩9分 京成電鉄本線 江戸川駅 徒歩13分 東京都江戸川区北小岩2丁目 | 詳細を見る | |



