賃貸マンション
テラス北千住の賃貸物件情報(1DK/15階)
| 家賃 | 管理費等 | 敷金 | 礼金 | 間取り | 専有面積 |
|---|---|---|---|---|---|
| 15.7万円 | 1.5万円 | 15.7万円 | なし | 1DK | 30.18m2 |
入居決定でお祝い金最大100,000円
- 保証金
- -
- 償却・敷引
- -
- 築年数
- 築1年
- 所在階
- 15階
- 向き
- 南東
Point
当社は1度もご来店頂かなくても自宅にいながらお部屋探し~ご契約~鍵渡しまでオンラインとご郵送でご対応が可能。まずはご相談ください!
提供:シャーメゾンショップ (株)ハウスパートナー北千住店(SUUMO経由)

詳細情報 テラス北千住
物件紹介
テラス北千住は東京メトロ千代田線北千住駅から徒歩8分にあり、駅近で通勤通学に便利なマンションです。
このお部屋は2階以上に位置しているので、通行人や周囲の住人からの視線が気になりにくく、防犯面でも安心。建物のエントランスはオートロックがついており、インターホンにはTVモニタもついているため、相手の顔を確認してから来客対応することができます。
人気の南向き・フローリングのお部屋。角部屋でもあるため、周囲の居住者の生活音も気になりにくい場所です。キッチンはシステムキッチン仕様になっていますので、お料理好きの方にもぴったり。バス・トイレは別なので、のんびりお風呂タイムも楽しめるでしょう。また、雨の日でも浴室乾燥機を使えば、お洗濯も問題ありません。
通信設備面では、インターネットが無料で使えるので、月々の出費を抑えられるのも魅力です。また、BSアンテナもありますので、おうち時間も充実するでしょう(別途工事、BSの契約料等が必要な場合あり)。
建物にはエレベーターがついているので、重い荷物があっても安心。共用部には宅配ボックスが設定されているので、不在の時にも荷物を受け取ることができます。
このお部屋は2階以上に位置しているので、通行人や周囲の住人からの視線が気になりにくく、防犯面でも安心。建物のエントランスはオートロックがついており、インターホンにはTVモニタもついているため、相手の顔を確認してから来客対応することができます。
人気の南向き・フローリングのお部屋。角部屋でもあるため、周囲の居住者の生活音も気になりにくい場所です。キッチンはシステムキッチン仕様になっていますので、お料理好きの方にもぴったり。バス・トイレは別なので、のんびりお風呂タイムも楽しめるでしょう。また、雨の日でも浴室乾燥機を使えば、お洗濯も問題ありません。
通信設備面では、インターネットが無料で使えるので、月々の出費を抑えられるのも魅力です。また、BSアンテナもありますので、おうち時間も充実するでしょう(別途工事、BSの契約料等が必要な場合あり)。
建物にはエレベーターがついているので、重い荷物があっても安心。共用部には宅配ボックスが設定されているので、不在の時にも荷物を受け取ることができます。
お金・契約の情報
※「-」と表示されているものは、実際は料金が発生するものもございます。詳細はお問い合わせください。
| 家賃 | 15.7万円 | 管理費・共益費 | 1.5万円 |
|---|---|---|---|
| 敷金 | 15.7万円 | 礼金 | なし |
| フリーレント | あり | ||
| 入居決定でお祝い金最大100,000円 | |||
| 保証金 | - | 償却・敷引 | - |
| 住宅保険料 | - | 更新料 | - |
| 保証会社利用 | 必須 | 保証会社名 | - |
| 保証会社費用 | - | 保証会社備考 | 保証会社利用必 当社指定:初期費用は賃料等の50%、月次保証料は賃料等の1%。その他保証会社条件有 |
| 契約形態 | - | 契約期間 | - |
| 入居・引渡期間 | - | 現況 | - |
| 契約備考 | 都電荒川線三ノ輪橋駅徒歩27分/巡回管理/その他インターネット上の物件も取り扱い可能です!まとめてご案内可能ですので是非ご利用下さいませ!WEB相談・WEB内見・IT重説に対応。来店不要でご契約まで可能です。詳細はお問合せください。お部屋探しはタウンハウジング西新井店へ! 合計1.98万円(内訳:MREALプレミアム会費2年:19800円) 更新料新賃料(ヶ月):1.00ヶ月 1DK フリーレント1ヶ月 普通借家2年 損保【3.2万円2年】 バストイレ別、バルコニー、エアコン、ガスコンロ対応、クロゼット、フローリング、TVインターホン、浴室乾燥機、オートロック、室内洗濯置、シューズボックス、システムキッチン、角住戸、温水洗浄便座、エレベーター、洗面所独立、2口コンロ、宅配ボックス、光ファイバー、礼金不要、最上階、防犯カメラ、敷金1ヶ月、ネット使用料不要、フリーレント、保証金不要、24時間ゴミ出し可、東南向き、都市ガス、BS、高速ネット対応 入居日:'26年1月下旬 | ||
部屋の情報
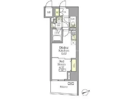
| 間取り | 1DK | 専有面積 | 30.18m2 |
|---|---|---|---|
| 所在階 / 向き | 15階 / 南東 | バルコニー面積 | - |
| 水道 / ガス | - | ||
| 設備 | バス・トイレ別、2階以上、オートロック、テレビドアホン、宅配ボックス、浴室乾燥機、インターネット対応、システムキッチン、エアコン、エレベーター、温水洗浄便座、南向き、角部屋、バルコニー、フローリング、洗髪洗面化粧台、2口コンロ、コンロ:ガス、BSアンテナ、インターネット使用料無料、洗濯機:室内 | ||
| 当社物件ID | 160077053 | ||
建物の情報
| 建物名 | テラス北千住 | ||
|---|---|---|---|
| 所在地 | 東京都足立区千住中居町 | ||
| 交通 | JR常磐線 北千住駅 徒歩8分 京成本線 千住大橋駅 徒歩9分 都電荒川線 荒川一中前駅 徒歩30分 | ||
| 階数 | 15階建 | 総戸数 | 64戸 |
| 築年月 | 2025年12月 / 築1年 | エレベーター | あり |
| 駐車場 | なし | バイク置き場 | - |
| 駐輪場 | - | 管理人/管理会社 | - |
| 周辺環境 | その他 おっ母さん食品館北千住店(スーパー)まで130m その他 東武ストア北千住店(スーパー)まで430m その他 ヨークフーズ千住店(スーパー)まで370m その他 ローソンストア100千住中居町店(コンビニ)まで220m | ||
| 建物種別 | マンション | 建物構造 | RC(鉄筋コンクリート) |
この部屋の取扱い不動産会社
| 会社名 | (株)タウンハウジング東京 西新井店(SUUMO経由) | ||
|---|---|---|---|
| 所在地 | 東京都足立区西新井栄町2-6-10 | 交通 | - |
| 営業時間 | AM10:00~PM7:00 | 定休日 | 水曜日 |
| 免許番号 | 国土交通大臣9926 | 取引態様 | 仲介 |
| 不動産会社管理番号 | 100478739167 | 当社管理番号 | 89 |
| 所属団体 | (公社)東京都宅地建物取引業協会会員 | ||
| 公正取引協議会 | (公社)首都圏不動産公正取引協議会加盟 | ||
| 取扱い物件情報 | 物件詳細へ | ||
※各種情報と現状に差異がある場合は、現状優先となります。問い合わせをすることで、より詳しい条件、情報を確認する事ができます。
提供:(株)タウンハウジング東京 西新井店(SUUMO経由)
この物件が気になったら掲載期限まであと11日
テラス北千住の空き部屋一覧
全部で36の空き部屋があります。
テラス北千住に条件(家賃・エリア)が近い物件一覧
| 写真 | 家賃 管理費等 | 敷金 礼金 | 間取り 専有面積 | 築年数 | 最寄り駅 所在地 | キープ | 詳細 |
|---|---|---|---|---|---|---|---|
マンション パークアクシス錦糸町ウエスト(ワンルーム/9階) | |||||||
![]() | 11.9万円 2万円 | 11.9万円 なし | ワンルーム 26.19m2 | 築7年 | 東京都新宿線 菊川駅(東京) 徒歩9分 総武・中央緩行線 錦糸町駅 徒歩11分 東京都大江戸線 両国駅 徒歩15分 東京都墨田区緑4丁目 | 詳細を見る | |
マンション ジーグランデ森下(1LDK/8階) | |||||||
![]() | 20.8万円 1万円 | なし なし | 1LDK 44.03m2 | 築1年 | 東京都新宿線 森下駅(東京) 徒歩5分 東京都大江戸線 両国駅 徒歩9分 総武・中央緩行線 両国駅 徒歩9分 東京都墨田区千歳3丁目 | 詳細を見る | |
マンション クレヴィアリグゼ錦糸町(1LDK/5階) | |||||||
![]() | 13.4万円 1.2万円 | 13.4万円 13.4万円 | 1LDK 25.33m2 | 築3年 | 総武本線 錦糸町駅 徒歩6分 総武・中央緩行線 錦糸町駅 徒歩6分 東京地下鉄半蔵門線 錦糸町駅 徒歩6分 東京都墨田区江東橋1丁目 | 詳細を見る | |
マンション ヴェルメリオ本所(1K/10階) | |||||||
![]() | 11万円 8,000円 | 11万円 11万円 | 1K 25.14m2 | 築5年 | 東京都浅草線 本所吾妻橋駅 徒歩5分 東京都墨田区本所3丁目 | 詳細を見る | |
マンション ディスティーノレジデンシア荒川(1LDK/3階) | |||||||
![]() | 13.4万円 1.5万円 | なし なし | 1LDK 32m2 | 築3年 | 東京都荒川線 荒川二丁目駅 徒歩6分 東京地下鉄千代田線 町屋駅 徒歩8分 京成電鉄本線 町屋駅 徒歩8分 東京都荒川区荒川2丁目 | 詳細を見る | |
マンション オーキッドレジデンス両国(ワンルーム/3階) | |||||||
![]() | 12.2万円 1.2万円 | 12.2万円 なし | ワンルーム 26.69m2 | 築6年 | 東京都大江戸線 両国駅 徒歩5分 東京都新宿線 森下駅(東京) 徒歩7分 総武・中央緩行線 両国駅 徒歩10分 東京都墨田区緑1丁目 | 詳細を見る | |
マンション ビンシスターレット(1K/4階) | |||||||
![]() | 11万円 1.1万円 | なし 11万円 | 1K 28.37m2 | 築18年 | 東京地下鉄半蔵門線 押上駅 徒歩10分 東武伊勢崎・大師線 とうきょうスカイツリー駅 徒歩14分 総武・中央緩行線 錦糸町駅 徒歩18分 東京都墨田区業平5丁目 | 詳細を見る | |
マンション ルクレ両国(1K/4階) | |||||||
![]() | 12万円 1.5万円 | なし なし | 1K 26.68m2 | 築6年 | 東京都大江戸線 両国駅 徒歩5分 東京都新宿線 森下駅(東京) 徒歩5分 総武・中央緩行線 両国駅 徒歩8分 東京都墨田区両国4丁目 | 詳細を見る | |








