賃貸アパート
コーポヤチヨⅠの賃貸物件情報(1K/2階)
| 家賃 | 管理費等 | 敷金 | 礼金 | 間取り | 専有面積 |
|---|---|---|---|---|---|
| 4.5万円 | 3,000円 | なし | なし | 1K | 20m2 |
入居決定でお祝い金最大100,000円
Point
まずはお問い合わせ!
不動産会社は街のプロ、あなたに合った物件がきっと見つかります。
提供:(株)アルーム総合不動産(SUUMO経由)

詳細情報 コーポヤチヨⅠ
物件紹介
コーポヤチヨⅠはJR宇都宮線東大宮駅から徒歩8分にあり、駅近で通勤通学に便利なアパートです。
このお部屋は2階以上に位置しているので、通行人や周囲の住人からの視線が気になりにくく、防犯面でも安心。インターホンにはTVモニタもついているため、相手の顔を確認してから来客対応することができます。
通信設備面では、インターネットが無料で使えるので、月々の出費を抑えられるのも魅力です。また、CATVにも対応しているので、おうち時間も充実するでしょう(別途工事、CATVの契約料等が必要な場合あり)。
このお部屋は2階以上に位置しているので、通行人や周囲の住人からの視線が気になりにくく、防犯面でも安心。インターホンにはTVモニタもついているため、相手の顔を確認してから来客対応することができます。
通信設備面では、インターネットが無料で使えるので、月々の出費を抑えられるのも魅力です。また、CATVにも対応しているので、おうち時間も充実するでしょう(別途工事、CATVの契約料等が必要な場合あり)。
お金・契約の情報
※「-」と表示されているものは、実際は料金が発生するものもございます。詳細はお問い合わせください。
| 家賃 | 4.5万円 | 管理費・共益費 | 3,000円 |
|---|---|---|---|
| 敷金 | なし | 礼金 | なし |
| 入居決定でお祝い金最大100,000円 | |||
| 保証金 | - | 償却・敷引 | - |
| 住宅保険料 | - | 更新料 | - |
| 保証会社利用 | 必須 | 保証会社名 | 全保連 |
| 保証会社費用 | - | 保証会社備考 | 全保連利用必 総賃料の50%~ |
| 契約形態 | - | 契約期間 | - |
| 入居・引渡期間 | - | 現況 | - |
| 入居可能条件 | 事務所可 | ||
| 契約備考 | 退去時クリーニング代(エアコン洗浄含む)50,000円(税別) 1K 単身者可/事務所利用相談 普通借家2年 損保【1.7万円2年】 エアコン、クロゼット、フローリング、TVインターホン、室内洗濯置、陽当り良好、角住戸、駐輪場、CATV、礼金不要、閑静な住宅地、2面採光、最上階、敷金不要、IHクッキングヒーター、出窓、ロフト、全居室洋室、保証人不要、CATVインターネット、全居室フローリング、ネット使用料不要、事務所相談、学生相談、駅徒歩10分以内、上階無し、敷地内ごみ置き場、東南向き、当社管理物件、都市ガス、シャッター、室内物干機、敷金・礼金不要、保証会社利用可 入居日:'26年4月初旬 | ||
部屋の情報
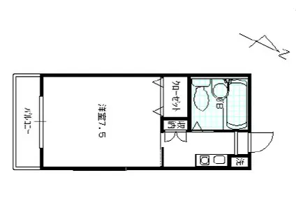
| 間取り | 1K | 専有面積 | 20m2 |
|---|---|---|---|
| 所在階 / 向き | 2階 / 南東 | バルコニー面積 | - |
| 水道 / ガス | - | ||
| 設備 | 2階以上、テレビドアホン、インターネット対応、エアコン、南向き、角部屋、フローリング、ロフトあり、コンロ:IH、CATV、インターネット使用料無料、洗濯機:室内 | ||
| 当社物件ID | 12196279 | ||
建物の情報
| 建物名 | コーポヤチヨⅠ | ||
|---|---|---|---|
| 所在地 | 埼玉県さいたま市見沼区東大宮 | ||
| 交通 | JR宇都宮線 東大宮駅 徒歩8分 | ||
| 階数 | 2階建 | 総戸数 | - |
| 築年月 | 1993年09月 / 築33年 | エレベーター | - |
| 駐車場 | なし | バイク置き場 | - |
| 駐輪場 | あり | 管理人/管理会社 | - |
| 周辺環境 | その他 スギ薬局東大宮店(ドラッグストア)まで514m その他 セブンイレブンさいたま東大宮6丁目店(コンビニ)まで161m その他 ホームセンターコーナンドイト東大宮店(ホームセンター)まで977m その他 モスバーガー東大宮店(飲食店)まで384m その他 私立芝浦工業大学大宮キャンパス(大学・短大)まで1235m その他 西友東大宮店(スーパー)まで514m | ||
| 建物種別 | アパート | 建物構造 | 木造 |
この部屋の取扱い不動産会社
| 会社名 | (株)アルーム総合不動産(SUUMO経由) | ||
|---|---|---|---|
| 所在地 | 埼玉県さいたま市見沼区大字山 19-1 | 交通 | - |
| 営業時間 | 10時~19時 | 定休日 | 毎週月曜日 |
| 免許番号 | 埼玉県知事22835 | 取引態様 | 代理 |
| 不動産会社管理番号 | 100492245346 | 当社管理番号 | 89 |
| 所属団体 | (公社)全日本不動産協会埼玉県本部会員 | ||
| 公正取引協議会 | (公社)首都圏不動産公正取引協議会加盟 | ||
| 取扱い物件情報 | 物件詳細へ | ||
※各種情報と現状に差異がある場合は、現状優先となります。問い合わせをすることで、より詳しい条件、情報を確認する事ができます。
提供:(株)アルーム総合不動産(SUUMO経由)
この物件が気になったら掲載期限まであと11日
コーポヤチヨⅠに条件(家賃・エリア)が近い物件一覧
| 写真 | 家賃 管理費等 | 敷金 礼金 | 間取り 専有面積 | 築年数 | 最寄り駅 所在地 | キープ | 詳細 |
|---|---|---|---|---|---|---|---|
アパート リガーレ(1K/1階) | |||||||
![]() | 7万円 5,000円 | なし なし | 1K 19.93m2 | 築1年 | JR川越線 川越駅 徒歩3分 西武新宿線 本川越駅 徒歩15分 東武東上線 川越市駅 徒歩16分 埼玉県川越市菅原町 | 詳細を見る | |
アパート アバロン上尾原市(1SK/1階) | |||||||
![]() | 6.7万円 4,000円 | なし なし | 1SK 31.57m2 | 築1年 | 埼玉新都市交通伊奈線 沼南駅 徒歩6分 埼玉新都市交通伊奈線 原市駅 徒歩13分 JR高崎線 上尾駅 徒歩44分 埼玉県上尾市原市北 | 詳細を見る | |
アパート ビューハイツむさしのB(2DK/2階) | |||||||
![]() | 5.3万円 1,000円 | なし なし | 2DK 38.88m2 | 築38年 | 東武東上線 新河岸駅 徒歩17分 埼玉県川越市 | 詳細を見る | |
アパート ベンデュール(1K/2階) | |||||||
![]() | 6万円 5,000円 | なし 6万円 | 1K 19.87m2 | 築28年 | 東武伊勢崎線 北越谷駅 徒歩15分 東武伊勢崎線 越谷駅 徒歩21分 JR武蔵野線 南越谷駅 徒歩39分 埼玉県越谷市神明町 | 詳細を見る | |
アパート レオパレスL・A・ハイツ(1K/1階) | |||||||
![]() | 4.5万円 5,000円 | なし なし | 1K 20.28m2 | 築27年 | 川越線 西川越駅 徒歩4分 埼玉県川越市大字小ケ谷 | 詳細を見る | |
アパート レオパレスファーレIV(1K/2階) | |||||||
![]() | 6.2万円 5,000円 | なし 6.2万円 | 1K 19.87m2 | 築21年 | 埼玉高速鉄道 鳩ケ谷駅 徒歩14分 埼玉高速鉄道 南鳩ケ谷駅 徒歩25分 埼玉高速鉄道 新井宿駅 徒歩32分 埼玉県川口市坂下町 | 詳細を見る | |
アパート SEBOSEBO川口仲町(ワンルーム/1階) | |||||||
![]() | 6万円 4,000円 | なし なし | ワンルーム 23m2 | 築19年 | JR京浜東北線 西川口駅 徒歩12分 JR京浜東北線 川口駅 徒歩17分 JR埼京線 戸田公園駅 徒歩36分 埼玉県川口市仲町 | 詳細を見る | |
マンション プリムローズ II(1K/3階) | |||||||
![]() | 6.85万円 3,200円 | なし 6.85万円 | 1K 27.25m2 | 築16年 | JR武蔵野線 越谷レイクタウン駅 徒歩15分 埼玉県越谷市レイクタウン | 詳細を見る | |









