賃貸マンション
メゾンパークの賃貸物件情報(3DK/2階)
| 家賃 | 管理費等 | 敷金 | 礼金 | 間取り | 専有面積 |
|---|---|---|---|---|---|
| 6.2万円 | なし | なし | 6.2万円 | 3DK | 65m2 |
入居決定でお祝い金最大100,000円
- 保証金
- 18.6万円
- 償却・敷引
- 9.3万円
- 築年数
- 築39年
- 所在階
- 2階
- 向き
- 南
Point
まずはお問い合わせ!
不動産会社は街のプロ、あなたに合った物件がきっと見つかります。
提供:不動産のアマノ土地 アマノ土地(SUUMO経由)

詳細情報 メゾンパーク
物件紹介
メゾンパークは地下鉄名城線名城公園駅から徒歩12分にあるマンションです。
このお部屋は2階以上に位置しているので、通行人や周囲の住人からの視線が気になりにくく、防犯面でも安心です。
こちらは楽器相談が可能な物件。楽器演奏をお考えの方はぜひ相談してみてください。人気の南向きのお部屋。角部屋でもあるため、周囲の居住者の生活音も気になりにくい場所です。キッチンはシステムキッチン仕様になっていますので、お料理好きの方にもぴったり。また、バス・トイレは別で、のんびりお風呂タイムも楽しめるでしょう。
ペット飼育の相談ができますので、あなたの大切な家族の一員も快適に暮らせるか、ぜひ確認してみてください。
このお部屋は2階以上に位置しているので、通行人や周囲の住人からの視線が気になりにくく、防犯面でも安心です。
こちらは楽器相談が可能な物件。楽器演奏をお考えの方はぜひ相談してみてください。人気の南向きのお部屋。角部屋でもあるため、周囲の居住者の生活音も気になりにくい場所です。キッチンはシステムキッチン仕様になっていますので、お料理好きの方にもぴったり。また、バス・トイレは別で、のんびりお風呂タイムも楽しめるでしょう。
ペット飼育の相談ができますので、あなたの大切な家族の一員も快適に暮らせるか、ぜひ確認してみてください。
お金・契約の情報
※「-」と表示されているものは、実際は料金が発生するものもございます。詳細はお問い合わせください。
| 家賃 | 6.2万円 | 管理費・共益費 | なし |
|---|---|---|---|
| 敷金 | なし | 礼金 | 6.2万円 |
| 入居決定でお祝い金最大100,000円 | |||
| 保証金 | 18.6万円 | 償却・敷引 | 9.3万円 |
| 住宅保険料 | - | 更新料 | - |
| 保証会社利用 | 必須 | 保証会社名 | - |
| 保証会社費用 | - | 保証会社備考 | 保証会社利用必 (株)近畿保証サ-ビス |
| 契約形態 | - | 契約期間 | - |
| 入居・引渡期間 | 即時 | 現況 | - |
| 入居可能条件 | 事務所可、楽器相談、ペット相談 | ||
| 契約備考 | 3DK 法人希望/学生希望/二人入居可/ペット相談/楽器相談/事務所利用相談/ルームシェア相談 損保【要】 バストイレ別、室内洗濯置、シューズボックス、システムキッチン、南向き、駐輪場、即入居可、3口以上コンロ、ペット相談、分譲賃貸、バイク置場、専用庭、内装リフォーム済、事務所相談、楽器相談、ルームシェア相談、四方角部屋、敷地内ごみ置き場、庭10坪以上、都市ガス | ||
部屋の情報
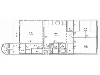
| 間取り | 3DK | 専有面積 | 65m2 |
|---|---|---|---|
| 所在階 / 向き | 2階 / 南 | バルコニー面積 | - |
| 水道 / ガス | - | ||
| 設備 | バス・トイレ別、2階以上、システムキッチン、南向き、角部屋、2口コンロ、専用庭、洗濯機:室内 | ||
| 当社物件ID | 140612649 | ||
建物の情報
| 建物名 | メゾンパーク | ||
|---|---|---|---|
| 所在地 | 愛知県名古屋市西区城西 | ||
| 交通 | 地下鉄名城線 名城公園駅 徒歩12分 地下鉄鶴舞線 浄心駅 徒歩14分 地下鉄名城線 名古屋城駅 徒歩19分 | ||
| 階数 | 3階建 | 総戸数 | - |
| 築年月 | 1987年07月 / 築39年 | エレベーター | - |
| 駐車場 | なし | バイク置き場 | あり |
| 駐輪場 | あり | 管理人/管理会社 | - |
| 周辺環境 | その他 V・drug金城店(ドラッグストア)まで976m その他 アオキスーパー上名古屋店(スーパー)まで739m その他 フィール花の木店(スーパー)まで1228m その他 名古屋市西区役所(役所)まで859m その他 金シャチ横丁宗春ゾーン(ショッピングセンター)まで1201m その他 金シャチ横丁義直ゾーン(ショッピングセンター)まで1303m | ||
| 建物種別 | マンション | 建物構造 | RC(鉄筋コンクリート) |
この部屋の取扱い不動産会社
| 会社名 | 不動産のアマノ土地 アマノ土地(SUUMO経由) | ||
|---|---|---|---|
| 所在地 | 愛知県名古屋市緑区相川1-5 | 交通 | - |
| 営業時間 | - | 定休日 | - |
| 免許番号 | 愛知県知事18528 | 取引態様 | 仲介 |
| 不動産会社管理番号 | 100293841618 | 当社管理番号 | 89 |
| 所属団体 | (公社)愛知県宅地建物取引業協会会員 | ||
| 公正取引協議会 | 東海不動産公正取引協議会加盟 | ||
| 取扱い物件情報 | 物件詳細へ | ||
※各種情報と現状に差異がある場合は、現状優先となります。問い合わせをすることで、より詳しい条件、情報を確認する事ができます。
提供:不動産のアマノ土地 アマノ土地(SUUMO経由)
この物件が気になったら掲載期限まであと10日
メゾンパークに条件(家賃・エリア)が近い物件一覧
| 写真 | 家賃 管理費等 | 敷金 礼金 | 間取り 専有面積 | 築年数 | 最寄り駅 所在地 | キープ | 詳細 |
|---|---|---|---|---|---|---|---|
マンション S-RESIDENCE浅間町駅前AXIAL(1K/12階) | |||||||
![]() | 6.5万円 8,000円 | なし なし | 1K 22.87m2 | 築1年 | 名古屋市鶴舞線 浅間町駅 徒歩7分 愛知県名古屋市西区新道1丁目 | 詳細を見る | |
マンション QUADOR 名古屋城駅(1LDK/4階) | |||||||
![]() | 7.9万円 9,000円 | なし 7.9万円 | 1LDK 29.33m2 | 築2年 | 名鉄瀬戸線 東大手駅 徒歩5分 名鉄瀬戸線 清水駅(愛知) 徒歩5分 名古屋市名城線 名古屋城駅 徒歩10分 愛知県名古屋市北区清水1丁目 | 詳細を見る | |
マンション ディアレイシャス名古屋ステーション(1K/12階) | |||||||
![]() | 7.15万円 8,000円 | なし なし | 1K 25.84m2 | 築3年 | 東海道・山陽新幹線 名古屋駅 徒歩9分 愛知県名古屋市西区新道2丁目 | 詳細を見る | |
マンション プレサンス泉シティアーク(1K/7階) | |||||||
![]() | 4.985万円 9,150円 | なし なし | 1K 21.37m2 | 築19年 | 名古屋市名城線 久屋大通駅 徒歩7分 名古屋市桜通線 高岳駅 徒歩10分 名古屋市名城線 名古屋城駅 徒歩14分 愛知県名古屋市東区泉1丁目 | 詳細を見る | |
マンション エステムコート名古屋黒川シャルマン(1K/2階) | |||||||
![]() | 5.8万円 5,690円 | なし なし | 1K 21.41m2 | 築5年 | 地下鉄名城線 黒川駅(愛知) 徒歩4分 地下鉄名城線 志賀本通駅 徒歩7分 名鉄瀬戸線 清水駅(愛知) 徒歩15分 愛知県名古屋市北区志賀南通 | 詳細を見る | |
アパート フォンテンブロー笠取町(1K/3階) | |||||||
![]() | 4.7万円 4,000円 | なし 9.4万円 | 1K 24.18m2 | 築8年 | 地下鉄鶴舞線 庄内通駅 徒歩7分 地下鉄鶴舞線 浄心駅 徒歩10分 地下鉄鶴舞線 浅間町駅 徒歩23分 愛知県名古屋市西区笠取町 | 詳細を見る | |
マンション NNS121&初回保証料&火災保険料1年分負担キャンペー(1K/8階) | |||||||
![]() | 7.9万円 1万円 | なし なし | 1K 26.71m2 | 築6年 | 名古屋市東山線 亀島駅 徒歩5分 名鉄名古屋本線 栄生駅 徒歩8分 東海道本線 名古屋駅 徒歩18分 愛知県名古屋市西区則武新町3丁目 | 詳細を見る | |
マンション S-RESIDENCE庄内通駅前CURERE(1K/11階) | |||||||
![]() | 6.65万円 8,000円 | なし 6.65万円 | 1K 25.23m2 | 築1年 | 名古屋市鶴舞線 庄内通駅 徒歩3分 名古屋市鶴舞線 庄内緑地公園駅 徒歩16分 名古屋市鶴舞線 浄心駅 徒歩21分 愛知県名古屋市西区庄内通4丁目 | 詳細を見る | |


/105x80-f1-q70-wp1)

/105x80-f1-q70-wp1)




