賃貸マンション
レオパレス国泰寺の賃貸物件情報(1K/3階)
| 家賃 | 管理費等 | 敷金 | 礼金 | 間取り | 専有面積 |
|---|---|---|---|---|---|
| 6.5万円 | 7,500円 | なし | 6.5万円 | 1K | 19.91m2 |
入居決定でお祝い金最大100,000円
Point
まずはお問い合わせ!
不動産会社は街のプロ、あなたに合った物件がきっと見つかります。
提供:アパマンショップ新白島駅前店

詳細情報 レオパレス国泰寺
物件紹介
レオパレス国泰寺は広島電鉄宇品線市役所前駅から徒歩6分にあり、駅近で通勤通学に便利なマンションです。
このお部屋は2階以上に位置しているので、通行人や周囲の住人からの視線が気になりにくく、防犯面でも安心。建物のエントランスはオートロックがついており、インターホンにはTVモニタもついているため、相手の顔を確認してから来客対応することができます。
バス・トイレ別の仕様で、のんびりお風呂タイムも楽しめます。また、浴室乾燥機を使えば、雨の日でもお洗濯は問題ありません。
通信設備面では、インターネット接続が可能です(別途工事、契約料が必要な場合あり)。
このお部屋は2階以上に位置しているので、通行人や周囲の住人からの視線が気になりにくく、防犯面でも安心。建物のエントランスはオートロックがついており、インターホンにはTVモニタもついているため、相手の顔を確認してから来客対応することができます。
バス・トイレ別の仕様で、のんびりお風呂タイムも楽しめます。また、浴室乾燥機を使えば、雨の日でもお洗濯は問題ありません。
通信設備面では、インターネット接続が可能です(別途工事、契約料が必要な場合あり)。
お金・契約の情報
※「-」と表示されているものは、実際は料金が発生するものもございます。詳細はお問い合わせください。
| 家賃 | 6.5万円 | 管理費・共益費 | 7,500円 |
|---|---|---|---|
| 敷金 | なし | 礼金 | 6.5万円 |
| 入居決定でお祝い金最大100,000円 | |||
| 保証金 | - | 償却・敷引 | - |
| 住宅保険料 | 2.668万円(2年) | 更新料 | - |
| 保証会社利用 | 必須 | 保証会社名 | プラザ賃貸保証 |
| 保証会社費用 | - | 保証会社備考 | 家賃等の100%または120% |
| 契約形態 | - | 契約期間 | 2年 |
| 入居・引渡期間 | 2026年04月下旬 | 現況 | - |
| 契約備考 | 環境維持費:1ヶ月550円(税込)、鍵交換費:ご契約時16500円(税込)、退去時清掃費:41800円(税込)、インターネット利用料:有料、更新手数料:16500円(税込)、保証委託料:必要 | ||
部屋の情報
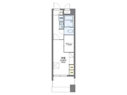
| 間取り | 1K | 専有面積 | 19.91m2 |
|---|---|---|---|
| 所在階 / 向き | 3階 / - | バルコニー面積 | - |
| 水道 / ガス | ガス【都市】 | ||
| 設備 | バス・トイレ別、オートロック、テレビドアホン、浴室乾燥機、インターネット対応、バルコニー | ||
| 当社物件ID | 1907188 | ||
建物の情報
| 建物名 | レオパレス国泰寺 | ||
|---|---|---|---|
| 所在地 | 広島県広島市中区国泰寺町1丁目 | ||
| 交通 | 広島電鉄宇品線 市役所前駅(広島) 徒歩6分 | ||
| 階数 | 15階建 | 総戸数 | 168戸 |
| 築年月 | 2007年12月 / 築19年 | エレベーター | - |
| 駐車場 | - | バイク置き場 | - |
| 駐輪場 | あり | 管理人/管理会社 | - |
| 建物種別 | マンション | 建物構造 | RC(鉄筋コンクリート) |
この部屋の取扱い不動産会社
| 会社名 | アパマンショップ西広島駅前店 | ||
|---|---|---|---|
| 所在地 | 広島県広島市西区己斐本町1丁目 15−12 | 交通 | 山陽本線西広島から徒歩3分 |
| 営業時間 | 09:30〜18:30 | 定休日 | 火曜日 |
| 免許番号 | 広島県知事(13)3805 | 取引態様 | 仲介 |
| 不動産会社管理番号 | 86271781 | 当社管理番号 | 4 |
| 所属団体 | (公社)広島県宅地建物取引業協会 | ||
| 公正取引協議会 | 中国地区不動産公正取引協議会加盟 | ||
| 取扱い物件情報 | 物件詳細へ | ||
※各種情報と現状に差異がある場合は、現状優先となります。問い合わせをすることで、より詳しい条件、情報を確認する事ができます。
提供:アパマンショップ西広島駅前店
この物件が気になったら掲載期限まであと13日
レオパレス国泰寺に条件(家賃・エリア)が近い物件一覧
| 写真 | 家賃 管理費等 | 敷金 礼金 | 間取り 専有面積 | 築年数 | 最寄り駅 所在地 | キープ | 詳細 |
|---|---|---|---|---|---|---|---|
タウンハウス EBBA VILLAGE(1K) | |||||||
![]() | 5.8万円 2,000円 | 11.6万円 5.8万円 | 1K 31.22m2 | 築5年 | 広島電鉄江波線 江波駅 徒歩15分 広島県広島市中区江波栄町 | 詳細を見る | |
アパート 呉線 天神川駅 徒歩6分 築9年(1K/3階) | |||||||
![]() | 6.5万円 なし | 13万円 6.5万円 | 1K 28.28m2 | 築9年 | 呉線 天神川駅 徒歩6分 山陽本線 天神川駅 徒歩6分 広島県安芸郡府中町大須1丁目 | 詳細を見る | |
一戸建て 広島県廿日市市 築41年(4LDK) | |||||||
![]() | 4.9万円 なし | 4.9万円 4.9万円 | 4LDK 118.02m2 | 築41年 | 広島県廿日市市永原 | 詳細を見る | |
一戸建て 広島県山県郡北広島町 築30年(3LDK) | |||||||
![]() | 6万円 なし | 18万円 6万円 | 3LDK 89.34m2 | 築30年 | 広島県山県郡北広島町中祖 | 詳細を見る | |
一戸建て 広島県廿日市市 築24年(4SLDK) | |||||||
![]() | 9万円 なし | 27万円 9万円 | 4SLDK 128.34m2 | 築24年 | 広島県廿日市市四季が丘2丁目 | 詳細を見る | |





