賃貸マンション
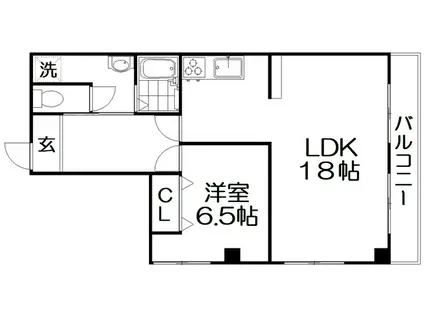
香里さくらハイツIの賃貸物件情報(1LDK/3階)
| 家賃 | 管理費等 | 敷金 | 礼金 | 間取り | 専有面積 |
|---|---|---|---|---|---|
| 7.7万円 | 3,000円 | なし | 15.4万円 | 1LDK | 55m2 |
入居決定でお祝い金最大100,000円
- 保証金
- -
- 償却・敷引
- -
- 築年数
- 築34年
- 所在階
- 3階
- 向き
- 西
Point
ペット飼育相談可能!オール洋室!エアコン1基付き!
提供:ホームメイトFC香里園店(株)コスモ(SUUMO経由)

詳細情報 香里さくらハイツI
物件紹介
香里さくらハイツIは京阪本線香里園駅から徒歩18分にあるマンションです。
このお部屋は2階以上に位置しているので、通行人や周囲の住人からの視線が気になりにくく、防犯面でも安心。インターホンにはTVモニタもついているため、相手の顔を確認してから来客対応することができます。
人気の角部屋で周囲の居住者の生活音も気になりにくく、また、フローリングのお部屋なのでお掃除もラクラク。キッチンはシステムキッチン仕様になっていますので、お料理好きの方にもぴったり。また、バス・トイレは別で、のんびりお風呂タイムも楽しめるでしょう。
通信設備面では、インターネット接続が可能です。また、CATVにも対応しているので、おうち時間も充実するでしょう(別途工事、契約料が必要な場合あり)。
ペット飼育の相談ができますので、あなたの大切な家族の一員も快適に暮らせるか、ぜひ確認してみてください。
このお部屋は2階以上に位置しているので、通行人や周囲の住人からの視線が気になりにくく、防犯面でも安心。インターホンにはTVモニタもついているため、相手の顔を確認してから来客対応することができます。
人気の角部屋で周囲の居住者の生活音も気になりにくく、また、フローリングのお部屋なのでお掃除もラクラク。キッチンはシステムキッチン仕様になっていますので、お料理好きの方にもぴったり。また、バス・トイレは別で、のんびりお風呂タイムも楽しめるでしょう。
通信設備面では、インターネット接続が可能です。また、CATVにも対応しているので、おうち時間も充実するでしょう(別途工事、契約料が必要な場合あり)。
ペット飼育の相談ができますので、あなたの大切な家族の一員も快適に暮らせるか、ぜひ確認してみてください。
お金・契約の情報
※「-」と表示されているものは、実際は料金が発生するものもございます。詳細はお問い合わせください。
| 家賃 | 7.7万円 | 管理費・共益費 | 3,000円 |
|---|---|---|---|
| 敷金 | なし | 礼金 | 15.4万円 |
| 入居決定でお祝い金最大100,000円 | |||
| 保証金 | - | 償却・敷引 | - |
| 住宅保険料 | - | 更新料 | - |
| 保証会社利用 | 必須 | 保証会社名 | - |
| 保証会社費用 | - | 保証会社備考 | 保証会社利用必 エルズ 初回賃料の50% 1年毎に1万円 |
| 契約形態 | - | 契約期間 | - |
| 入居・引渡期間 | 即時 | 現況 | - |
| 入居可能条件 | ペット相談 | ||
| 契約備考 | 退去時クリーニング代 55000円 1LDK 二人入居可/子供可/ペット相談 普通借家2年 損保【1.5万円2年】 バストイレ別、バルコニー、エアコン、クロゼット、フローリング、シャワー付洗面台、TVインターホン、陽当り良好、システムキッチン、角住戸、脱衣所、洗面所独立、洗面化粧台、駐輪場、光ファイバー、即入居可、閑静な住宅地、3口以上コンロ、ペット相談、仲介手数料不要、二人入居相談、バイク置場、全居室フローリング、ガスレンジ付、内装リフォーム済、緑豊かな住宅地、眺望良好、クロゼット2ヶ所、耐火構造、敷地内ごみ置き場、キッチン未使用、都市ガス、洗面所にドア、高速ネット対応、リノベーション、年内入居可、年度内入居可、IT重説対応物件、通風良好 | ||
部屋の情報
| 間取り | 1LDK | 専有面積 | 55m2 |
|---|---|---|---|
| 所在階 / 向き | 3階 / 西 | バルコニー面積 | - |
| 水道 / ガス | - | ||
| 設備 | バス・トイレ別、2階以上、テレビドアホン、インターネット対応、システムキッチン、エアコン、角部屋、バルコニー、フローリング、洗髪洗面化粧台、2口コンロ、コンロ:ガス | ||
| 当社物件ID | 158531431 | ||
建物の情報
| 建物名 | 香里さくらハイツI | ||
|---|---|---|---|
| 所在地 | 大阪府寝屋川市三井南町 | ||
| 交通 | 京阪本線 香里園駅 徒歩18分 京阪本線 寝屋川市駅 徒歩26分 京阪本線 光善寺駅 徒歩37分 | ||
| 階数 | 3階建 | 総戸数 | - |
| 築年月 | 1993年01月 / 築34年 | エレベーター | - |
| 駐車場 | 空有 11000円 | バイク置き場 | あり |
| 駐輪場 | あり | 管理人/管理会社 | - |
| 周辺環境 | その他 マルシゲ香里店(スーパー)まで746m その他 ミニストップ寝屋川三井南町店(コンビニ)まで516m その他 ファミリーマート寝屋川三井南店(コンビニ)まで931m その他 ウエルシア寝屋川緑町店(ドラッグストア)まで856m その他 にぎり長次郎寝屋川本店(飲食店)まで1140m その他 かほりまちテラス(ショッピングセンター)まで1481m | ||
| 建物種別 | マンション | 建物構造 | 鉄骨造 |
この部屋の取扱い不動産会社
| 会社名 | ハルソラ不動産HARUSORA不動産(株)(SUUMO経由) | ||
|---|---|---|---|
| 所在地 | 大阪府寝屋川市萱島東3-24-4 プリンスヴィラ107 | 交通 | - |
| 営業時間 | 10時~19時 | 定休日 | 水曜日 |
| 免許番号 | 大阪府知事64676 | 取引態様 | 仲介 |
| 不動産会社管理番号 | 100369766059 | 当社管理番号 | 89 |
| 取扱い物件情報 | 物件詳細へ | ||
※各種情報と現状に差異がある場合は、現状優先となります。問い合わせをすることで、より詳しい条件、情報を確認する事ができます。
提供:ハルソラ不動産HARUSORA不動産(株)(SUUMO経由)
この物件が気になったら掲載期限まであと7日
香里さくらハイツIに条件(家賃・エリア)が近い物件一覧
| 写真 | 家賃 管理費等 | 敷金 礼金 | 間取り 専有面積 | 築年数 | 最寄り駅 所在地 | キープ | 詳細 |
|---|---|---|---|---|---|---|---|
アパート レオパレスミルキーウェイ(1K/1階) | |||||||
| 6.3万円 5,000円 | なし なし | 1K 23.18m2 | 築23年 | 阪急電鉄京都線 高槻市駅 徒歩20分 東海道本線 高槻駅 徒歩28分 京阪電気鉄道京阪線 御殿山駅 徒歩87分 大阪府高槻市天川新町1-18 | 詳細を見る | ||
アパート レオハイム木屋(2LDK/4階) | |||||||
![]() | 5.8万円 1万円 | なし 11.6万円 | 2LDK 48.06m2 | 築37年 | 京阪本線 香里園駅 徒歩26分 京阪本線 光善寺駅 徒歩31分 京阪本線 寝屋川市駅 徒歩41分 大阪府寝屋川市木屋元町 | 詳細を見る | |
アパート フジパレス大和田Ⅴ番館(1LDK/1階) | |||||||
![]() | 6.8万円 5,000円 | なし 11万円 | 1LDK 36.18m2 | 新築 | 京阪電気鉄道京阪線 大和田駅(大阪) 徒歩6分 大阪府門真市常盤町 | 詳細を見る | |
アパート レオパレスセブンスヒルⅢプラス(1K/2階) | |||||||
![]() | 6.7万円 5,000円 | なし 6.7万円 | 1K 19.87m2 | 築21年 | 京阪電気鉄道京阪線 守口市駅 徒歩17分 大阪市今里筋線 清水駅(大阪メトロ) 徒歩19分 大阪府守口市西郷通3丁目 | 詳細を見る | |
アパート 太秦グリーンハイツ(3K/3階) | |||||||
![]() | 4.7万円 3,000円 | なし なし | 3K 50m2 | 築54年 | 京阪本線 寝屋川市駅 徒歩20分 JR片町線 寝屋川公園駅 徒歩20分 京阪本線 萱島駅 徒歩44分 大阪府寝屋川市太秦緑が丘 | 詳細を見る | |
マンション 片町線 長尾駅(大阪) 徒歩3分 新築(1LDK/3階) | |||||||
![]() | 9.7万円 1.1万円 | 10万円 25万円 | 1LDK 46.23m2 | 新築 | 片町線 長尾駅(大阪) 徒歩3分 片町線 藤阪駅 徒歩20分 大阪府枚方市長尾元町5丁目 | 詳細を見る | |
一戸建て 京阪電気鉄道京阪線 寝屋川市駅 徒歩19分 築38年(3LDK) | |||||||
![]() | 8.5万円 なし | なし 17万円 | 3LDK 103.68m2 | 築38年 | 京阪電気鉄道京阪線 寝屋川市駅 徒歩19分 京阪電気鉄道京阪線 香里園駅 徒歩25分 片町線 寝屋川公園駅 徒歩34分 大阪府寝屋川市川勝町 | 詳細を見る | |






