賃貸マンション
レオパレスIハウスの賃貸物件情報(1K/3階)
| 家賃 | 管理費等 | 敷金 | 礼金 | 間取り | 専有面積 |
|---|---|---|---|---|---|
| 5.9万円 | 6,000円 | なし | 5.9万円 | 1K | 20.81m2 |
入居決定でお祝い金最大100,000円
Point
仲介手数料が不要なので、初期費用を抑えて新生活をスタートすることができます。
提供:ハウスコム関東株式会社 宇都宮店

詳細情報 レオパレスIハウス
物件紹介
レオパレスIハウスは東武鉄道宇都宮線東武宇都宮駅から徒歩15分にあるマンションです。
このお部屋は2階以上に位置しているので、通行人や周囲の住人からの視線が気になりにくく、防犯面でも安心。インターホンにはTVモニタもついているため、相手の顔を確認してから来客対応することができます。
バス・トイレ別の仕様で、のんびりお風呂タイムも楽しめます。
通信設備面では、インターネット接続が可能です(別途工事、契約料が必要な場合あり)。
コンビニまで徒歩10分の場所にあり、日用品や食料品のお買い物にも便利です。
このお部屋は2階以上に位置しているので、通行人や周囲の住人からの視線が気になりにくく、防犯面でも安心。インターホンにはTVモニタもついているため、相手の顔を確認してから来客対応することができます。
バス・トイレ別の仕様で、のんびりお風呂タイムも楽しめます。
通信設備面では、インターネット接続が可能です(別途工事、契約料が必要な場合あり)。
コンビニまで徒歩10分の場所にあり、日用品や食料品のお買い物にも便利です。
お金・契約の情報
※「-」と表示されているものは、実際は料金が発生するものもございます。詳細はお問い合わせください。
| 家賃 | 5.9万円 | 管理費・共益費 | 6,000円 |
|---|---|---|---|
| 敷金 | なし | 礼金 | 5.9万円 |
| 入居決定でお祝い金最大100,000円 | |||
| 保証金 | - | 償却・敷引 | - |
| 住宅保険料 | 1円 | 更新料 | - |
| その他費用 | 抗菌施工(任意):2.376万円 | ||
| 保証会社利用 | 必須 | 保証会社名 | - |
| 保証会社費用 | - | 保証会社備考 | 保証料:56990円(契約内容により100〜120%で変動有)※記載金額は120%の場合 |
| 契約形態 | - | 契約期間 | - |
| 入居・引渡期間 | 即時 | 現況 | - |
| 契約備考 | 月額(環境維持費 550円) 鍵交換費用:16500 室内清掃費用:41800 その他設備/条件:室内洗濯機置き場 | ||
部屋の情報
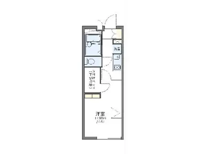
| 間取り | 1K | 専有面積 | 20.81m2 |
|---|---|---|---|
| 所在階 / 向き | 3階 / - | バルコニー面積 | - |
| 水道 / ガス | - | ||
| 設備 | バス・トイレ別、テレビドアホン、光ファイバー対応、エアコン、温水洗浄便座、コンロ:電気 | ||
| 当社物件ID | 101108535 | ||
建物の情報
| 建物名 | レオパレスIハウス | ||
|---|---|---|---|
| 所在地 | 栃木県宇都宮市清住1丁目 | ||
| 交通 | 東武鉄道宇都宮線 東武宇都宮駅 徒歩15分 | ||
| 階数 | 4階建 | 総戸数 | 24戸 |
| 築年月 | 2010年04月 / 築16年 | エレベーター | - |
| 駐車場 | 空有 9,350円/月 | バイク置き場 | - |
| 駐輪場 | - | 管理人/管理会社 | - |
| 周辺環境 | コンビニ 徒歩10分(783m) その他 ドラッグストア その他 公園 その他 銀行 その他 * | ||
| 建物種別 | マンション | 建物構造 | 鉄骨造 |
この部屋の取扱い不動産会社
| 会社名 | ハウスコム関東株式会社 宇都宮店 | ||
|---|---|---|---|
| 所在地 | 栃木県宇都宮市5-9笠島ビル1階 | 交通 | - |
| 営業時間 | 10:00~18:00 | 定休日 | - |
| 免許番号 | 国土交通大臣(1)第10263号 | 取引態様 | 仲介 |
| 不動産会社管理番号 | HC5-126703-302-0041 | 当社管理番号 | 468 |
| 所属団体 | 一般社団法人全国住宅産業協会/公益社団法人首都圏不動産公正取引協議会/公益財団法人日本賃貸住宅管理協会、 | ||
| 取扱い物件情報 | 物件詳細へ | ||
※各種情報と現状に差異がある場合は、現状優先となります。問い合わせをすることで、より詳しい条件、情報を確認する事ができます。
提供:ハウスコム関東株式会社 宇都宮店
この物件が気になったら掲載期限まであと4日
レオパレスIハウスに条件(家賃・エリア)が近い物件一覧
| 写真 | 家賃 管理費等 | 敷金 礼金 | 間取り 専有面積 | 築年数 | 最寄り駅 所在地 | キープ | 詳細 |
|---|---|---|---|---|---|---|---|
マンション 駒西ハイツ I(1LDK/1階) | |||||||
![]() | 5.2万円 なし | なし なし | 1LDK 50.02m2 | 築32年 | 東武宇都宮線 東武宇都宮駅 徒歩64分 栃木県宇都宮市駒生町 | 詳細を見る | |
マンション LUXE DE MINE(1LDK/5階) | |||||||
![]() | 8.2万円 6,000円 | 8.2万円 16.4万円 | 1LDK 37.35m2 | 築1年 | 宇都宮芳賀ライト線 陽東3丁目駅 徒歩9分 宇都宮芳賀ライト線 峰駅 徒歩13分 栃木県宇都宮市峰4丁目 | 詳細を見る | |
マンション IRIC(1K/8階) | |||||||
![]() | 7.7万円 4,000円 | なし 7.7万円 | 1K 31.67m2 | 新築 | 東武宇都宮線 東武宇都宮駅 徒歩8分 JR宇都宮線 宇都宮駅 徒歩23分 栃木県宇都宮市泉町 | 詳細を見る | |
アパート レオパレス針ヶ谷の丘(1K/2階) | |||||||
![]() | 4.7万円 4,000円 | なし なし | 1K 20.28m2 | 築19年 | 東北本線 雀宮駅 徒歩34分 栃木県宇都宮市針ケ谷1丁目 | 詳細を見る | |
アパート レオパレスサウスウッド(1K/1階) | |||||||
![]() | 6.6万円 4,000円 | なし なし | 1K 23.61m2 | 築19年 | 東北本線 岡本駅(栃木) 徒歩14分 栃木県宇都宮市上野町 | 詳細を見る | |
マンション レオパレスOIビル UNION(1K/5階) | |||||||
![]() | 7.7万円 1.05万円 | なし 7.7万円 | 1K 24.09m2 | 築22年 | 東武鉄道宇都宮線 東武宇都宮駅 徒歩5分 栃木県宇都宮市伝馬町 | 詳細を見る | |
アパート アーバン元今泉(1K/1階) | |||||||
![]() | 4万円 なし | 4万円 なし | 1K 24.71m2 | 築37年 | JR宇都宮線 宇都宮駅 徒歩16分 栃木県宇都宮市元今泉 | 詳細を見る | |
アパート レオパレスヴェルディ(1K/2階) | |||||||
![]() | 4.6万円 4,000円 | なし なし | 1K 31.05m2 | 築21年 | 栃木県宇都宮市野沢町 | 詳細を見る | |









