賃貸マンション
ガリシア亀戸の賃貸物件情報(2K/2階)
| 家賃 | 管理費等 | 敷金 | 礼金 | 間取り | 専有面積 |
|---|---|---|---|---|---|
| 11.35万円 | 1.2万円 | なし | なし | 2K | 25.91m2 |
入居決定でお祝い金最大100,000円
Point
【業界新システム】正直不動産公式副読本掲載の話題沸騰店舗☆
提供:神宮前不動産(株)(SUUMO経由)

詳細情報 ガリシア亀戸
物件紹介
ガリシア亀戸は東武亀戸線亀戸水神駅から徒歩7分にあり、駅近で通勤通学に便利なマンションです。
このお部屋は2階以上に位置しているので通行人や周囲の住人からの視線が気になりにくく、建物のエントランスはオートロックがついているので防犯性が高くなっています。
おしゃれなデザイナーズ物件!フローリングのお部屋なのでお掃除もラクラク。キッチンはシステムキッチン仕様になっていますので、お料理好きの方にもぴったり。バス・トイレは別なので、のんびりお風呂タイムも楽しめるでしょう。また、雨の日でも浴室乾燥機を使えば、お洗濯も問題ありません。
通信設備面では、インターネットが無料で使えるので、月々の出費を抑えられるのも魅力です。また、BSアンテナ・CSアンテナもありますので、おうち時間も充実するでしょう(別途工事、BS・CSの契約料等が必要な場合あり)。
建物にはエレベーターがついているので、重い荷物があっても安心。共用部には宅配ボックスが設定されているので、不在の時にも荷物を受け取ることができます。
このお部屋は2階以上に位置しているので通行人や周囲の住人からの視線が気になりにくく、建物のエントランスはオートロックがついているので防犯性が高くなっています。
おしゃれなデザイナーズ物件!フローリングのお部屋なのでお掃除もラクラク。キッチンはシステムキッチン仕様になっていますので、お料理好きの方にもぴったり。バス・トイレは別なので、のんびりお風呂タイムも楽しめるでしょう。また、雨の日でも浴室乾燥機を使えば、お洗濯も問題ありません。
通信設備面では、インターネットが無料で使えるので、月々の出費を抑えられるのも魅力です。また、BSアンテナ・CSアンテナもありますので、おうち時間も充実するでしょう(別途工事、BS・CSの契約料等が必要な場合あり)。
建物にはエレベーターがついているので、重い荷物があっても安心。共用部には宅配ボックスが設定されているので、不在の時にも荷物を受け取ることができます。
お金・契約の情報
※「-」と表示されているものは、実際は料金が発生するものもございます。詳細はお問い合わせください。
| 家賃 | 11.35万円 | 管理費・共益費 | 1.2万円 |
|---|---|---|---|
| 敷金 | なし | 礼金 | なし |
| 入居決定でお祝い金最大100,000円 | |||
| 保証金 | - | 償却・敷引 | - |
| 住宅保険料 | - | 更新料 | - |
| 保証会社利用 | 必須 | 保証会社名 | - |
| 保証会社費用 | - | 保証会社備考 | 保証会社利用必 〈個人〉(1)株式会社ジャックス[VICCS ONE]初回合計家賃50%、1%/月、10,500円/年(2)株式会社エポスカード[ROOM iD]初回合計家賃50%、1.5%/月、年間更新料無し※法人契約も可 |
| 契約形態 | - | 契約期間 | - |
| 入居・引渡期間 | 即時 | 現況 | - |
| 契約備考 | 【業界新システム】正直不動産公式副読本掲載の話題沸騰店舗☆ 更新料 新賃料1.00ヶ月分 BRIプライムプラス 月額2530円 2K 二人入居可 普通借家2年 損保【要】 バストイレ別、バルコニー、エアコン、ガスコンロ対応、クロゼット、フローリング、浴室乾燥機、オートロック、室内洗濯置、シューズボックス、システムキッチン、温水洗浄便座、エレベーター、洗面所独立、2口コンロ、宅配ボックス、外壁タイル張り、即入居可、礼金不要、閑静な住宅地、敷金不要、防犯カメラ、分譲賃貸、24時間緊急通報システム、全居室フローリング、デザイナーズ、ディンプルキー、CS、ネット使用料不要、保証金不要、築2年以内、24時間換気システム、築3年以内、24時間ゴミ出し可、築5年以内、都市ガス、BS、敷金・礼金不要 | ||
部屋の情報
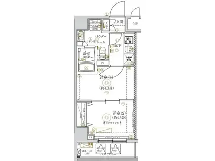
| 間取り | 2K | 専有面積 | 25.91m2 |
|---|---|---|---|
| 所在階 / 向き | 2階 / 北 | バルコニー面積 | 3m2 |
| 水道 / ガス | - | ||
| 設備 | バス・トイレ別、2階以上、オートロック、宅配ボックス、浴室乾燥機、インターネット対応、システムキッチン、エアコン、エレベーター、温水洗浄便座、バルコニー、フローリング、洗髪洗面化粧台、2口コンロ、コンロ:ガス、デザイナーズ、CSアンテナ、BSアンテナ、インターネット使用料無料、洗濯機:室内 | ||
| 当社物件ID | 159652577 | ||
建物の情報
| 建物名 | ガリシア亀戸 | ||
|---|---|---|---|
| 所在地 | 東京都江東区亀戸 | ||
| 交通 | 東武亀戸線 亀戸水神駅 徒歩7分 JR総武線 亀戸駅 徒歩10分 東武亀戸線 小村井駅 徒歩13分 | ||
| 階数 | 8階建 | 総戸数 | 22戸 |
| 築年月 | 2025年10月 / 築1年 | エレベーター | あり |
| 駐車場 | なし | バイク置き場 | - |
| 駐輪場 | - | 管理人/管理会社 | - |
| 建物種別 | マンション | 建物構造 | RC(鉄筋コンクリート) |
この部屋の取扱い不動産会社
| 会社名 | 神宮前不動産(株)公園前店(SUUMO経由) | ||
|---|---|---|---|
| 所在地 | 東京都渋谷区神宮前6-23-11 J-SIXビル6階 | 交通 | - |
| 営業時間 | 10:00~19:00 | 定休日 | 水 |
| 免許番号 | 東京都知事105473 | 取引態様 | 仲介 |
| 不動産会社管理番号 | 100477299835 | 当社管理番号 | 89 |
| 所属団体 | (公社)全日本不動産協会東京都本部会員 | ||
| 公正取引協議会 | (公社)首都圏不動産公正取引協議会加盟 | ||
| 取扱い物件情報 | 物件詳細へ | ||
※各種情報と現状に差異がある場合は、現状優先となります。問い合わせをすることで、より詳しい条件、情報を確認する事ができます。
提供:神宮前不動産(株)公園前店(SUUMO経由)
この物件が気になったら掲載期限まであと10日
ガリシア亀戸に条件(家賃・エリア)が近い物件一覧
| 写真 | 家賃 管理費等 | 敷金 礼金 | 間取り 専有面積 | 築年数 | 最寄り駅 所在地 | キープ | 詳細 |
|---|---|---|---|---|---|---|---|
マンション ザ・ケンジントン・レジデンスときわ台(2LDK/1階) | |||||||
![]() | 20.5万円 1.5万円 | なし なし | 2LDK 56.16m2 | 築1年 | 東武鉄道東上線 ときわ台駅(東京) 徒歩10分 東武鉄道東上線 中板橋駅 徒歩16分 東京都板橋区前野町2丁目 | 詳細を見る | |
マンション レジデンスヤマ西葛西(1DK/5階) | |||||||
![]() | 8.7万円 7,000円 | なし なし | 1DK 27.47m2 | 築42年 | 東京地下鉄東西線 西葛西駅 徒歩4分 東京地下鉄東西線 葛西駅 徒歩20分 東京都新宿線 船堀駅 徒歩30分 東京都江戸川区西葛西6丁目 | 詳細を見る | |
マンション グランドコンシェルジュ大森西(1LDK/5階) | |||||||
![]() | 14万円 5,000円 | 14万円 14万円 | 1LDK 35.89m2 | 築19年 | 京急本線 大森町駅 徒歩9分 東京都大田区大森西 | 詳細を見る | |



