賃貸マンション
プランドール福島の賃貸物件情報(1K/4階)
| 家賃 | 管理費等 | 敷金 | 礼金 | 間取り | 専有面積 |
|---|---|---|---|---|---|
| 6.1万円 | 1万円 | なし | なし | 1K | 18.5m2 |
入居決定でお祝い金最大100,000円
- 保証金
- -
- 償却・敷引
- -
- 築年数
- 築19年
- 所在階
- 4階
- 向き
- 北
Point
「梅田」徒歩圏内、近隣商業施設、など好立地。オートロック、エアコン、室内洗濯機置場、など設備充実。初めての一人暮らしに最適マンションです。お部屋探しならツインホーム西梅田店にお任せ下さい。
提供:ツインホーム西梅田店(株)ディパーチャー(SUUMO経由)

詳細情報 プランドール福島
物件紹介
プランドール福島はJR大阪環状線福島駅から徒歩3分にあり、駅近で通勤通学に便利なマンションです。
このお部屋は2階以上に位置しているので、通行人や周囲の住人からの視線が気になりにくく、防犯面でも安心。インターホンにはTVモニタもついているため、相手の顔を確認してから来客対応することができます。
こちらは楽器相談が可能な物件。楽器演奏をお考えの方はぜひ相談してみてください。フローリングのお部屋なのでお掃除もラクラク。キッチンはシステムキッチン仕様になっていますので、お料理好きの方にもぴったり。また、バス・トイレは別で、のんびりお風呂タイムも楽しめるでしょう。
通信設備面では、インターネット接続が可能です。また、BSアンテナ・CSアンテナがありCATVにも対応しているので、おうち時間も充実するでしょう(別途工事、契約料が必要な場合あり)。
建物にはエレベーターがついているので、重い荷物があっても安心。
このお部屋は2階以上に位置しているので、通行人や周囲の住人からの視線が気になりにくく、防犯面でも安心。インターホンにはTVモニタもついているため、相手の顔を確認してから来客対応することができます。
こちらは楽器相談が可能な物件。楽器演奏をお考えの方はぜひ相談してみてください。フローリングのお部屋なのでお掃除もラクラク。キッチンはシステムキッチン仕様になっていますので、お料理好きの方にもぴったり。また、バス・トイレは別で、のんびりお風呂タイムも楽しめるでしょう。
通信設備面では、インターネット接続が可能です。また、BSアンテナ・CSアンテナがありCATVにも対応しているので、おうち時間も充実するでしょう(別途工事、契約料が必要な場合あり)。
建物にはエレベーターがついているので、重い荷物があっても安心。
お金・契約の情報
※「-」と表示されているものは、実際は料金が発生するものもございます。詳細はお問い合わせください。
| 家賃 | 6.1万円 | 管理費・共益費 | 1万円 |
|---|---|---|---|
| 敷金 | なし | 礼金 | なし |
| 入居決定でお祝い金最大100,000円 | |||
| 保証金 | - | 償却・敷引 | - |
| 住宅保険料 | - | 更新料 | - |
| 契約形態 | - | 契約期間 | - |
| 入居・引渡期間 | 相談 | 現況 | - |
| 入居可能条件 | 楽器相談 | ||
| 契約備考 | 1K 二人入居可/子供可/楽器相談 損保【要】 バストイレ別、バルコニー、エアコン、クロゼット、フローリング、TVインターホン、室内洗濯置、陽当り良好、シューズボックス、システムキッチン、温水洗浄便座、エレベーター、駐輪場、CATV、BS・CS、IHクッキングヒーター、保証人不要、CATVインターネット、2沿線利用可、CS、眺望良好、24時間換気システム、楽器相談、人感照明センサー、2駅利用可、3駅以上利用可、3沿線以上利用可、24時間ゴミ出し可、敷地内ごみ置き場、BS、通風良好 | ||
部屋の情報
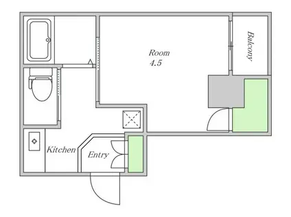
| 間取り | 1K | 専有面積 | 18.5m2 |
|---|---|---|---|
| 所在階 / 向き | 4階 / 北 | バルコニー面積 | - |
| 水道 / ガス | - | ||
| 設備 | バス・トイレ別、2階以上、テレビドアホン、インターネット対応、システムキッチン、エアコン、エレベーター、温水洗浄便座、バルコニー、フローリング、コンロ:IH、CATV、CSアンテナ、BSアンテナ、洗濯機:室内 | ||
| 当社物件ID | 40514453 | ||
建物の情報
| 建物名 | プランドール福島 | ||
|---|---|---|---|
| 所在地 | 大阪府大阪市福島区福島 | ||
| 交通 | JR大阪環状線 福島駅(阪神) 徒歩3分 JR東西線 新福島駅 徒歩5分 阪神本線 福島駅(阪神) 徒歩7分 | ||
| 階数 | 7階建 | 総戸数 | - |
| 築年月 | 2007年02月 / 築19年 | エレベーター | あり |
| 駐車場 | なし | バイク置き場 | - |
| 駐輪場 | あり | 管理人/管理会社 | - |
| 周辺環境 | その他 セブン-イレブン 大阪福島7丁目店(コンビニ)まで67m その他 阪急オアシス 福島ふくまる通り57店(スーパー)まで318m その他 ビッグビーンズ(スーパー)まで201m | ||
| 建物種別 | マンション | 建物構造 | RC(鉄筋コンクリート) |
この部屋の取扱い不動産会社
| 会社名 | ツインホーム西梅田店(株)ディパーチャー(SUUMO経由) | ||
|---|---|---|---|
| 所在地 | 大阪府大阪市福島区福島7-14-16 エスポルテ福島1階 | 交通 | - |
| 営業時間 | 10:00~20:00 | 定休日 | 無し |
| 免許番号 | 大阪府知事57991 | 取引態様 | 仲介 |
| 不動産会社管理番号 | 100457226225 | 当社管理番号 | 89 |
| 所属団体 | (公社)全日本不動産協会大阪府本部会員 | ||
| 公正取引協議会 | (公社)近畿地区不動産公正取引協議会加盟 | ||
| 取扱い物件情報 | 物件詳細へ | ||
※各種情報と現状に差異がある場合は、現状優先となります。問い合わせをすることで、より詳しい条件、情報を確認する事ができます。
提供:ツインホーム西梅田店(株)ディパーチャー(SUUMO経由)
この物件が気になったら掲載期限まであと11日
プランドール福島に条件(家賃・エリア)が近い物件一覧
| 写真 | 家賃 管理費等 | 敷金 礼金 | 間取り 専有面積 | 築年数 | 最寄り駅 所在地 | キープ | 詳細 |
|---|---|---|---|---|---|---|---|
アパート TKアンバーコート浜寺Ⅲ(1LDK/3階) | |||||||
![]() | 6.8万円 5,000円 | なし 10万円 | 1LDK 35.02m2 | 築1年 | 南海電鉄南海本線 石津川駅 徒歩3分 南海電鉄南海本線 諏訪ノ森駅 徒歩12分 南海電鉄南海本線 湊駅 徒歩23分 大阪府堺市西区浜寺石津町西4丁 | 詳細を見る | |
アパート 阪和線 上野芝駅 徒歩8分 築5年(1LDK/1階) | |||||||
![]() | 8.5万円 3,000円 | なし 15万円 | 1LDK 43.95m2 | 築5年 | 阪和線 上野芝駅 徒歩8分 阪和線 津久野駅 徒歩14分 南海電鉄南海本線 石津川駅 徒歩34分 大阪府堺市西区上野芝町5丁 | 詳細を見る | |
アパート 阪和線 鳳駅 徒歩10分 築18年(1K/1階) | |||||||
![]() | 4.75万円 4,300円 | なし なし | 1K 24m2 | 築18年 | 阪和線 鳳駅 徒歩10分 阪和線 富木駅 徒歩15分 南海電鉄南海本線 羽衣駅 徒歩29分 大阪府堺市西区上 | 詳細を見る | |
アパート アムールELヨシモト(1LDK/1階) | |||||||
| 8.3万円 1.1万円 | なし 8.3万円 | 1LDK 36.44m2 | 築12年 | 阪急電鉄京都線 相川駅 徒歩8分 東海道本線 吹田駅(JR) 徒歩13分 阪急電鉄京都線 上新庄駅 徒歩21分 大阪府吹田市南高浜町35-6 | 詳細を見る | ||
一戸建て 京阪電気鉄道京阪線 萱島駅 徒歩10分 築40年(4DK) | |||||||
![]() | 7万円 なし | なし なし | 4DK 78.96m2 | 築40年 | 京阪電気鉄道京阪線 萱島駅 徒歩10分 京阪電気鉄道京阪線 大和田駅(大阪) 徒歩20分 京阪電気鉄道京阪線 寝屋川市駅 徒歩38分 大阪府門真市北巣本町 | 詳細を見る | |
マンション 阪堺電気軌道阪堺線 石津北駅 徒歩4分 築2年(1K/9階) | |||||||
![]() | 5.9万円 1万円 | なし なし | 1K 22.71m2 | 築2年 | 阪堺電気軌道阪堺線 石津北駅 徒歩4分 南海電鉄南海本線 石津川駅 徒歩6分 南海電鉄南海本線 湊駅 徒歩16分 大阪府堺市西区浜寺石津町中2丁 | 詳細を見る | |
マンション 阪和線 鳳駅 徒歩3分 築1年(1K/5階) | |||||||
![]() | 7万円 2,000円 | なし 7万円 | 1K 25.65m2 | 築1年 | 阪和線 鳳駅 徒歩3分 阪和線 富木駅 徒歩20分 南海電鉄南海本線 羽衣駅 徒歩26分 大阪府堺市西区鳳東町4丁 | 詳細を見る | |
マンション レオパレスプレンティ鳳(1K/1階) | |||||||
![]() | 5.6万円 7,000円 | なし 5.6万円 | 1K 20.28m2 | 築20年 | 阪和線 鳳駅 徒歩7分 阪和線 富木駅 徒歩13分 南海電鉄南海本線 羽衣駅 徒歩17分 大阪府堺市西区鳳西町1丁 | 詳細を見る | |








