賃貸マンション
ハーモニーレジデンス大森山王の賃貸物件情報(1K/15階)
| 家賃 | 管理費等 | 敷金 | 礼金 | 間取り | 専有面積 |
|---|---|---|---|---|---|
| 9万円 | 1.2万円 | なし | 9万円 | 1K | 24.27m2 |
入居決定でお祝い金最大100,000円
- 保証金
- -
- 償却・敷引
- -
- 築年数
- 築14年
- 所在階
- 15階
- 向き
- -
Point
《創業30年・東急沿線中心に10店舗・宅建保有率80%超》経験×エリア×スキルが強みの不動産会社です!【未公開情報多数】【初期費用分割払い可能】様々な角度からご提案致します※短期解約違約金あり
提供:Balleggs (株)バレッグス品川駅前支店(SUUMO経由)

詳細情報 ハーモニーレジデンス大森山王
物件紹介
ハーモニーレジデンス大森山王はJR京浜東北線大森駅から徒歩8分にあり、駅近で通勤通学に便利なマンションです。
このお部屋は2階以上に位置しているので、通行人や周囲の住人からの視線が気になりにくく、防犯面でも安心。建物のエントランスはオートロックがついており、インターホンにはTVモニタもついているため、相手の顔を確認してから来客対応することができます。
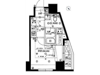
人気の角部屋。周囲の居住者の生活音も気になりにくい場所です。キッチンはシステムキッチン仕様になっていますので、お料理好きの方にもぴったり。バス・トイレは別なので、のんびりお風呂タイムも楽しめるでしょう。また、雨の日でも浴室乾燥機を使えば、お洗濯も問題ありません。
通信設備面では、インターネット接続が可能です(別途工事、契約料が必要な場合あり)。
建物にはエレベーターがついているので、重い荷物があっても安心。
このお部屋は2階以上に位置しているので、通行人や周囲の住人からの視線が気になりにくく、防犯面でも安心。建物のエントランスはオートロックがついており、インターホンにはTVモニタもついているため、相手の顔を確認してから来客対応することができます。
人気の角部屋。周囲の居住者の生活音も気になりにくい場所です。キッチンはシステムキッチン仕様になっていますので、お料理好きの方にもぴったり。バス・トイレは別なので、のんびりお風呂タイムも楽しめるでしょう。また、雨の日でも浴室乾燥機を使えば、お洗濯も問題ありません。
通信設備面では、インターネット接続が可能です(別途工事、契約料が必要な場合あり)。
建物にはエレベーターがついているので、重い荷物があっても安心。
お金・契約の情報
※「-」と表示されているものは、実際は料金が発生するものもございます。詳細はお問い合わせください。
| 家賃 | 9万円 | 管理費・共益費 | 1.2万円 |
|---|---|---|---|
| 敷金 | なし | 礼金 | 9万円 |
| 入居決定でお祝い金最大100,000円 | |||
| 保証金 | - | 償却・敷引 | - |
| 住宅保険料 | - | 更新料 | - |
| 保証会社利用 | 必須 | 保証会社名 | - |
| 保証会社費用 | - | 保証会社備考 | 保証会社利用必 初回賃料等の50%+月額総賃料の1% |
| 契約形態 | - | 契約期間 | - |
| 入居・引渡期間 | 相談 | 現況 | - |
| 契約備考 | 合計3.96万円(内訳:鍵交換代39600円) concierge241100円/月 1K 普通借家2年 損保【0.1万円2年】 バストイレ別、バルコニー、エアコン、TVインターホン、浴室乾燥機、オートロック、室内洗濯置、システムキッチン、角住戸、温水洗浄便座、脱衣所、エレベーター、洗面所独立、2口コンロ、駐輪場、光ファイバー、2面採光、最上階、敷金不要、防犯カメラ、バイク置場、ガスレンジ付、玄関ホール、2沿線利用可、3駅以上利用可、駅徒歩10分以内、上階無し、敷地内ごみ置き場、都市ガス、礼金1ヶ月、IT重説対応物件、初期費用カード決済可 | ||
部屋の情報
| 間取り | 1K | 専有面積 | 24.27m2 |
|---|---|---|---|
| 所在階 / 向き | 15階 / - | バルコニー面積 | - |
| 水道 / ガス | - | ||
| 設備 | バス・トイレ別、2階以上、オートロック、テレビドアホン、浴室乾燥機、インターネット対応、システムキッチン、エアコン、エレベーター、温水洗浄便座、角部屋、バルコニー、洗髪洗面化粧台、2口コンロ、コンロ:ガス、洗濯機:室内 | ||
| 当社物件ID | 11628988 | ||
建物の情報
| 建物名 | ハーモニーレジデンス大森山王 | ||
|---|---|---|---|
| 所在地 | 東京都大田区山王 | ||
| 交通 | JR京浜東北線 大森駅(東京) 徒歩8分 京急本線 大森海岸駅 徒歩19分 京急本線 平和島駅 徒歩21分 | ||
| 階数 | 15階建 | 総戸数 | - |
| 築年月 | 2012年09月 / 築14年 | エレベーター | あり |
| 駐車場 | なし | バイク置き場 | あり |
| 駐輪場 | あり | 管理人/管理会社 | - |
| 周辺環境 | その他 大森駅(その他)まで716m | ||
| 建物種別 | マンション | 建物構造 | RC(鉄筋コンクリート) |
この部屋の取扱い不動産会社
| 会社名 | Balleggs (株)バレッグス品川駅前支店(SUUMO経由) | ||
|---|---|---|---|
| 所在地 | 東京都港区高輪3-23-17 品川センタービルディング1階 | 交通 | - |
| 営業時間 | 10時~18時(電話受付は12時~13時以外) | 定休日 | 毎週火・水曜日 |
| 免許番号 | 東京都知事62730 | 取引態様 | 仲介 |
| 不動産会社管理番号 | 100472924227 | 当社管理番号 | 89 |
| 所属団体 | (公社)東京都宅地建物取引業協会会員 | ||
| 公正取引協議会 | (公社)首都圏不動産公正取引協議会加盟 | ||
| 取扱い物件情報 | 物件詳細へ | ||
※各種情報と現状に差異がある場合は、現状優先となります。問い合わせをすることで、より詳しい条件、情報を確認する事ができます。
提供:Balleggs (株)バレッグス品川駅前支店(SUUMO経由)
この物件が気になったら掲載期限まであと10日
ハーモニーレジデンス大森山王に条件(家賃・エリア)が近い物件一覧
| 写真 | 家賃 管理費等 | 敷金 礼金 | 間取り 専有面積 | 築年数 | 最寄り駅 所在地 | キープ | 詳細 |
|---|---|---|---|---|---|---|---|
マンション ドミール清澄(1K/1階) | |||||||
![]() | 8.5万円 なし | 8.5万円 8.5万円 | 1K 20.65m2 | 築28年 | 東京メトロ半蔵門線 清澄白河駅 徒歩6分 都営大江戸線 清澄白河駅 徒歩7分 都営新宿線 菊川駅(東京) 徒歩12分 東京都江東区三好 | 詳細を見る | |
マンション 菊鮨ビル(1K/3階) | |||||||
![]() | 8.2万円 3,000円 | 8.2万円 8.2万円 | 1K 22m2 | 築42年 | JR京浜東北線 蒲田駅 徒歩9分 京急本線 京急蒲田駅 徒歩10分 京急本線 梅屋敷駅(東京) 徒歩12分 東京都大田区蒲田 | 詳細を見る | |
アパート SEED SAVE PETIRASU(1K/1階) | |||||||
![]() | 7.9万円 1万円 | 7.9万円 なし | 1K 21.83m2 | 築2年 | 京浜急行電鉄本線 梅屋敷駅(東京) 徒歩16分 京浜急行電鉄本線 大森町駅 徒歩16分 東京都大田区大森東4丁目 | 詳細を見る | |
マンション レガリス清澄白河ブロッサム(1K/8階) | |||||||
![]() | 12万円 1万円 | 12万円 12万円 | 1K 25.63m2 | 築11年 | 東京地下鉄半蔵門線 清澄白河駅 徒歩4分 東京地下鉄東西線 門前仲町駅 徒歩8分 東京都大江戸線 門前仲町駅 徒歩8分 東京都江東区清澄2丁目 | 詳細を見る | |
アパート セジュール東糀谷(1DK/3階) | |||||||
![]() | 10.8万円 5,000円 | なし なし | 1DK 26.96m2 | 築5年 | 京急空港線 大鳥居駅 徒歩12分 京急空港線 糀谷駅 徒歩20分 京急空港線 穴守稲荷駅 徒歩22分 東京都大田区東糀谷 | 詳細を見る | |
マンション ALTERNA住吉(ワンルーム/4階) | |||||||
![]() | 12.6万円 1万円 | なし なし | ワンルーム 25.33m2 | 築5年 | JR総武線 錦糸町駅 徒歩8分 東京メトロ半蔵門線 住吉駅(東京) 徒歩9分 都営新宿線 菊川駅(東京) 徒歩14分 東京都江東区毛利 | 詳細を見る | |







