賃貸マンション
S-RESIDENCE上社AUREATE 12月契約限定の賃貸物件情報(2K/1階)
| 家賃 | 管理費等 | 敷金 | 礼金 | 間取り | 専有面積 |
|---|---|---|---|---|---|
| 6.55万円 | 1万円 | なし | なし | 2K | 28.56m2 |
入居決定でお祝い金最大100,000円
- 保証金
- -
- 償却・敷引
- -
- 築年数
- 築1年
- 所在階
- 1階
- 向き
- -
Point
スタッフ一同、お客様のご来店をこころよりお待ちしております!
提供:いい部屋ネット大東建託リーシング(株)春日井店(SUUMO経由)

詳細情報 S-RESIDENCE上社AUREATE 12月契約限定
物件紹介
S-RESIDENCE上社AUREATE 12月契約限定は地下鉄東山線上社駅から徒歩10分にあり、駅近で通勤通学に便利なマンションです。
建物のエントランスはオートロックがついており、インターホンにはTVモニタもついているため、相手の顔を確認してから来客対応することができます。
人気の角部屋。周囲の居住者の生活音も気になりにくい場所です。バス・トイレ別の仕様で、のんびりお風呂タイムも楽しめます。また、浴室乾燥機を使えば、雨の日でもお洗濯は問題ありません。
通信設備面では、インターネットが無料で使えるので、月々の出費を抑えられるのも魅力です。また、CATVにも対応しているので、おうち時間も充実するでしょう(別途工事、CATVの契約料等が必要な場合あり)。
建物にはエレベーターがついているので、重い荷物があっても安心。共用部には宅配ボックスが設定されているので、不在の時にも荷物を受け取ることができます。
建物のエントランスはオートロックがついており、インターホンにはTVモニタもついているため、相手の顔を確認してから来客対応することができます。
人気の角部屋。周囲の居住者の生活音も気になりにくい場所です。バス・トイレ別の仕様で、のんびりお風呂タイムも楽しめます。また、浴室乾燥機を使えば、雨の日でもお洗濯は問題ありません。
通信設備面では、インターネットが無料で使えるので、月々の出費を抑えられるのも魅力です。また、CATVにも対応しているので、おうち時間も充実するでしょう(別途工事、CATVの契約料等が必要な場合あり)。
建物にはエレベーターがついているので、重い荷物があっても安心。共用部には宅配ボックスが設定されているので、不在の時にも荷物を受け取ることができます。
お金・契約の情報
※「-」と表示されているものは、実際は料金が発生するものもございます。詳細はお問い合わせください。
| 家賃 | 6.55万円 | 管理費・共益費 | 1万円 |
|---|---|---|---|
| 敷金 | なし | 礼金 | なし |
| 入居決定でお祝い金最大100,000円 | |||
| 保証金 | - | 償却・敷引 | - |
| 住宅保険料 | - | 更新料 | - |
| 保証会社利用 | 必須 | 保証会社名 | - |
| 保証会社費用 | - | 保証会社備考 | 保証会社利用必 初回保証料は総額家賃(手数料330円含む)の50%、1年毎12 000円 |
| 契約形態 | - | 契約期間 | - |
| 入居・引渡期間 | 即時 | 現況 | - |
| 契約備考 | 法人契約:礼金1ヶ月必要【退去時】カギ交換費用33000円(税込)ハウスクリーニング費2K:38500円(税込)※短期解約違約金1年未満1ヶ月(賃料+共益費) 更新料 賃料1.00ヶ月分 2K 損保【要】 バストイレ別、バルコニー、エアコン、ガスコンロ対応、クロゼット、TVインターホン、浴室乾燥機、オートロック、室内洗濯置、シューズボックス、角住戸、温水洗浄便座、エレベーター、洗面所独立、2口コンロ、駐輪場、宅配ボックス、CATV、防犯カメラ、バイク置場、ネット使用料不要、都市ガス、IT重説対応物件、初期費用カード決済可 | ||
部屋の情報
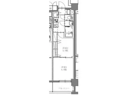
| 間取り | 2K | 専有面積 | 28.56m2 |
|---|---|---|---|
| 所在階 / 向き | 1階 / - | バルコニー面積 | - |
| 水道 / ガス | - | ||
| 設備 | バス・トイレ別、オートロック、テレビドアホン、宅配ボックス、浴室乾燥機、インターネット対応、エアコン、エレベーター、温水洗浄便座、角部屋、バルコニー、洗髪洗面化粧台、2口コンロ、コンロ:ガス、CATV、インターネット使用料無料、洗濯機:室内 | ||
| 当社物件ID | 159871046 | ||
建物の情報
| 建物名 | S-RESIDENCE上社AUREATE 12月契約限定 | ||
|---|---|---|---|
| 所在地 | 愛知県名古屋市名東区猪高台 | ||
| 交通 | 地下鉄東山線 上社駅 徒歩10分 地下鉄東山線 本郷駅(愛知) 徒歩18分 地下鉄東山線 一社駅 徒歩23分 | ||
| 階数 | 6階建 | 総戸数 | 52戸 |
| 築年月 | 2025年08月 / 築1年 | エレベーター | あり |
| 駐車場 | 空有 15400円 | バイク置き場 | あり |
| 駐輪場 | あり | 管理人/管理会社 | - |
| 周辺環境 | その他 スギドラッグ 文教台店(ドラッグストア)まで485m その他 ローソン 名東社台店(コンビニ)まで564m その他 コープあいち 上社店(スーパー)まで661m | ||
| 建物種別 | マンション | 建物構造 | RC(鉄筋コンクリート) |
この部屋の取扱い不動産会社
| 会社名 | いい部屋ネット大東建託リーシング(株)名古屋南店(SUUMO経由) | ||
|---|---|---|---|
| 所在地 | 愛知県名古屋市緑区鴻仏目1-611 | 交通 | - |
| 営業時間 | 10:00~12:30、13:30~18:00 | 定休日 | 火・水曜日、12/11(木) |
| 免許番号 | 国土交通大臣9120 | 取引態様 | 仲介 |
| 不動産会社管理番号 | 100460332561 | 当社管理番号 | 89 |
| 所属団体 | (公財)日本賃貸住宅管理協会会員 | ||
| 公正取引協議会 | (公社)首都圏不動産公正取引協議会加盟 | ||
| 取扱い物件情報 | 物件詳細へ | ||
※各種情報と現状に差異がある場合は、現状優先となります。問い合わせをすることで、より詳しい条件、情報を確認する事ができます。
提供:いい部屋ネット大東建託リーシング(株)名古屋南店(SUUMO経由)
この物件が気になったら掲載期限まであと10日
S-RESIDENCE上社AUREATE 12月契約限定の空き部屋一覧
全部で28の空き部屋があります。
S-RESIDENCE上社AUREATE 12月契約限定に条件(家賃・エリア)が近い物件一覧
| 写真 | 家賃 管理費等 | 敷金 礼金 | 間取り 専有面積 | 築年数 | 最寄り駅 所在地 | キープ | 詳細 |
|---|---|---|---|---|---|---|---|
マンション 第1青峰ビル(2LDK/3階) | |||||||
![]() | 5.9万円 5,000円 | 11.8万円 なし | 2LDK 65.76m2 | 築47年 | リニモ はなみずき通駅 徒歩13分 地下鉄東山線 藤が丘駅(愛知) 徒歩14分 リニモ 杁ケ池公園駅 徒歩17分 愛知県長久手市作田 | 詳細を見る | |
マンション シャトーエルク(2DK/2階) | |||||||
![]() | 5万円 3,000円 | 5万円 なし | 2DK 45.87m2 | 築34年 | 愛知県海部郡大治町大字花常西江端 | 詳細を見る | |
アパート ビューテラス香久山B棟(2LDK/1階) | |||||||
![]() | 6万円 5,000円 | なし なし | 2LDK 59.28m2 | 築29年 | 愛知県日進市香久山1丁目 | 詳細を見る | |
マンション レオパレスわかば(1K/3階) | |||||||
![]() | 4.5万円 7,000円 | なし 4.5万円 | 1K 23.18m2 | 築20年 | 愛知高速東部丘陵線 杁ケ池公園駅 徒歩19分 愛知県長久手市市が洞市が洞1丁目 | 詳細を見る | |
マンション リヴィエール1(3LDK/2階) | |||||||
![]() | 6.5万円 4,000円 | 6.5万円 なし | 3LDK 66.19m2 | 築32年 | 中央本線 春日井駅(JR) 徒歩15分 中央本線 神領駅 徒歩28分 愛知県春日井市林島町4丁目 | 詳細を見る | |
アパート アライブK(2LDK/2階) | |||||||
![]() | 7.2万円 4,000円 | なし なし | 2LDK 62.89m2 | 築15年 | JR中央本線 春日井駅(JR) 徒歩33分 名鉄小牧線 春日井駅(名鉄) 徒歩44分 JR中央本線 勝川駅(JR) 徒歩48分 愛知県春日井市八田町 | 詳細を見る | |
アパート BAUHAUS(2LDK/2階) | |||||||
![]() | 8.4万円 4,100円 | なし 13万円 | 2LDK 57.54m2 | 築6年 | 名鉄瀬戸線 旭前駅 徒歩9分 愛知県尾張旭市東印場町 | 詳細を見る | |
マンション 幸希ビル(1K/3階) | |||||||
![]() | 4.5万円 なし | 9万円 なし | 1K 24.75m2 | 築32年 | 名鉄豊田線 赤池駅(愛知) 徒歩3分 地下鉄鶴舞線 平針駅 徒歩14分 地下鉄鶴舞線 原駅(愛知) 徒歩29分 愛知県日進市赤池 | 詳細を見る | |




/105x80-f1-q70-wp1)



