賃貸マンション
阪急電鉄京都線 西京極駅 徒歩18分 7階建 新築の賃貸物件情報(1DK/2階)
| 家賃 | 管理費等 | 敷金 | 礼金 | 間取り | 専有面積 |
|---|---|---|---|---|---|
| 7.474万円 | 8,260円 | なし | なし | 1DK | 27.52m2 |
入居決定でお祝い金最大100,000円
- 保証金
- -
- 償却・敷引
- -
- 築年数
- 新築
- 所在階
- 2階
- 向き
- 西
Point
分譲賃貸マンションになります。浴室には浴室乾燥機が設置されており、お部屋の床はフローリングとなっております。独立洗面台も設置されております。周辺にはファミリーマート 天神川高辻店があり便利です。
提供:(株)ハウスクエスト四条大宮店(SUUMO経由)

詳細情報 阪急電鉄京都線 西京極駅 徒歩18分 7階建 新築
物件紹介
LW京都桜邸は阪急電鉄京都線西京極駅から徒歩17分にあるマンションです。
このお部屋は2階以上に位置しているので、通行人や周囲の住人からの視線が気になりにくく、防犯面でも安心。建物のエントランスはオートロックがついており、インターホンにはTVモニタもついているため、相手の顔を確認してから来客対応することができます。
人気の角部屋で周囲の居住者の生活音も気になりにくく、また、フローリングのお部屋なのでお掃除もラクラク。キッチンはシステムキッチン仕様になっていますので、お料理好きの方にもぴったり。バス・トイレは別なので、のんびりお風呂タイムも楽しめるでしょう。また、雨の日でも浴室乾燥機を使えば、お洗濯も問題ありません。
通信設備面では、インターネットが無料で使えるので、月々の出費を抑えられるのも魅力です。また、BSアンテナ・CSアンテナもありますので、おうち時間も充実するでしょう(別途工事、BS・CSの契約料等が必要な場合あり)。
建物にはエレベーターがついているので、重い荷物があっても安心。共用部には宅配ボックスが設定されているので、不在の時にも荷物を受け取ることができます。また、ペット飼育の相談ができますので、あなたの大切な家族の一員も快適に暮らせるか、ぜひ確認してみてください。
コンビニまで徒歩9分の場所にあり、日用品や食料品のお買い物にも便利です。
このお部屋は2階以上に位置しているので、通行人や周囲の住人からの視線が気になりにくく、防犯面でも安心。建物のエントランスはオートロックがついており、インターホンにはTVモニタもついているため、相手の顔を確認してから来客対応することができます。
人気の角部屋で周囲の居住者の生活音も気になりにくく、また、フローリングのお部屋なのでお掃除もラクラク。キッチンはシステムキッチン仕様になっていますので、お料理好きの方にもぴったり。バス・トイレは別なので、のんびりお風呂タイムも楽しめるでしょう。また、雨の日でも浴室乾燥機を使えば、お洗濯も問題ありません。
通信設備面では、インターネットが無料で使えるので、月々の出費を抑えられるのも魅力です。また、BSアンテナ・CSアンテナもありますので、おうち時間も充実するでしょう(別途工事、BS・CSの契約料等が必要な場合あり)。
建物にはエレベーターがついているので、重い荷物があっても安心。共用部には宅配ボックスが設定されているので、不在の時にも荷物を受け取ることができます。また、ペット飼育の相談ができますので、あなたの大切な家族の一員も快適に暮らせるか、ぜひ確認してみてください。
コンビニまで徒歩9分の場所にあり、日用品や食料品のお買い物にも便利です。
お金・契約の情報
※「-」と表示されているものは、実際は料金が発生するものもございます。詳細はお問い合わせください。
| 家賃 | 7.474万円 | 管理費・共益費 | 8,260円 |
|---|---|---|---|
| 敷金 | なし | 礼金 | なし |
| 入居決定でお祝い金最大100,000円 | |||
| 保証金 | - | 償却・敷引 | - |
| 住宅保険料 | 住宅保険料あり | 更新料 | - |
| 契約形態 | - | 契約期間 | 2年 |
| 入居・引渡期間 | 1950年01月中旬 | 現況 | 未完成 |
| 契約備考 | 阪急電鉄京都線 西京極 徒歩18分 初回:賃貸保証料:41,940円 更新料:無し その他設備/条件:分譲賃貸、コンロ2口以上、独立洗面台、TVドアホン | ||
部屋の情報
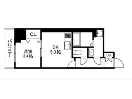
| 間取り | 1DK | 専有面積 | 27.52m2 |
|---|---|---|---|
| 間取り詳細 | 洋室(3帖)、DK(5帖) | ||
| 所在階 / 向き | 2階 / 西 | バルコニー面積 | - |
| 水道 / ガス | ガス【都市】 | ||
| 設備 | バス・トイレ別、2階以上、オートロック、宅配ボックス、浴室乾燥機、システムキッチン、エアコン、エレベーター、温水洗浄便座、角部屋、バルコニー、フローリング、コンロ:ガス、洗濯機:室内 | ||
| 当社物件ID | 160178842 | ||
建物の情報
| 建物名 | 阪急電鉄京都線 西京極駅 徒歩18分 7階建 新築 | ||
|---|---|---|---|
| 所在地 | 京都府京都市右京区西院西貝川町 | ||
| 交通 | 阪急電鉄京都線 西京極駅 徒歩18分 京都市東西線 太秦天神川駅 徒歩19分 阪急電鉄京都線 西院駅(阪急) 徒歩27分 | ||
| 階数 | 7階建 | 総戸数 | - |
| 築年月 | 2026年03月 / 新築 | エレベーター | あり |
| 駐車場 | - | バイク置き場 | - |
| 駐輪場 | あり | 管理人/管理会社 | - |
| 建物種別 | マンション | 建物構造 | RC(鉄筋コンクリート) |
この部屋の取扱い不動産会社
| 会社名 | 株式会社エリッツ 賃貸のエリッツ 西院店(賃貸スモッカ経由) | ||
|---|---|---|---|
| 所在地 | 京都市右京区西院巽町37-1 TAKE7 1F | 交通 | - |
| 営業時間 | - | 定休日 | - |
| 免許番号 | 国土交通大臣免許(7)第5206号 | 取引態様 | 仲介 |
| 不動産会社管理番号 | elitz_178204-0202 | 当社管理番号 | 463 |
| 所属団体 | (公社)京都府宅地建物取引業協会\n公益社団法人近畿地区不動産公正取引協議会 | ||
| 公正取引協議会 | (公社)全国宅地建物取引業保証協会 | ||
| 取扱い物件情報 | 物件詳細へ | ||
※各種情報と現状に差異がある場合は、現状優先となります。問い合わせをすることで、より詳しい条件、情報を確認する事ができます。
提供:株式会社エリッツ 賃貸のエリッツ 西院店(賃貸スモッカ経由)
この物件が気になったら掲載期限まであと5日
阪急電鉄京都線 西京極駅 徒歩18分 7階建 新築の空き部屋一覧
全部で72の空き部屋があります。
阪急電鉄京都線 西京極駅 徒歩18分 7階建 新築に条件(家賃・エリア)が近い物件一覧
| 写真 | 家賃 管理費等 | 敷金 礼金 | 間取り 専有面積 | 築年数 | 最寄り駅 所在地 | キープ | 詳細 |
|---|---|---|---|---|---|---|---|
マンション 東海道本線 西大路駅 徒歩13分 築10年(1K/7階) | |||||||
![]() | 6.41万円 8,900円 | なし 7.3万円 | 1K 23.88m2 | 築10年 | 東海道本線 西大路駅 徒歩13分 阪急電鉄京都線 西院駅(阪急) 徒歩19分 京都府京都市下京区西七条北衣田町 | 詳細を見る | |
マンション 京都市東西線 太秦天神川駅 徒歩2分 築33年(1DK/6階) | |||||||
![]() | 6.3万円 5,000円 | なし なし | 1DK 30.36m2 | 築33年 | 京都市東西線 太秦天神川駅 徒歩2分 山陰本線 花園駅(京都) 徒歩15分 京都府京都市右京区太秦木ノ下町 | 詳細を見る | |
一戸建て 山陰本線 太秦駅(JR) 徒歩13分 築49年(1DK) | |||||||
![]() | 5万円 なし | 5万円 5万円 | 1DK 38m2 | 築49年 | 山陰本線 太秦駅(JR) 徒歩13分 京都市東西線 太秦天神川駅 徒歩24分 京都府京都市右京区太秦御所ノ内町 | 詳細を見る | |
アパート 奈良線 木幡駅(JR) 徒歩11分 築9年(1LDK/1階) | |||||||
![]() | 8.5万円 8,000円 | なし 15万円 | 1LDK 44.45m2 | 築9年 | 奈良線 木幡駅(JR) 徒歩11分 京阪電気鉄道宇治線 木幡駅(京阪) 徒歩14分 京都府宇治市木幡 | 詳細を見る | |
アパート 阪急電鉄京都線 西院駅(阪急) 徒歩10分 築24年(1K/2階) | |||||||
![]() | 5.2万円 1.1万円 | なし 5.2万円 | 1K 23.18m2 | 築24年 | 阪急電鉄京都線 西院駅(阪急) 徒歩10分 京都市東西線 二条駅 徒歩10分 京都府京都市中京区西ノ京北小路町 | 詳細を見る | |
マンション 阪急電鉄京都線 東向日駅 徒歩9分 築35年(1K/2階) | |||||||
![]() | 4.9万円 3,000円 | なし 4.9万円 | 1K 22.94m2 | 築35年 | 阪急電鉄京都線 東向日駅 徒歩9分 東海道本線 向日町駅 徒歩14分 京都府向日市寺戸町西野辺 | 詳細を見る | |






