賃貸マンション
ジェノヴィア神戸湊川公園の賃貸物件情報(1K/9階)
| 家賃 | 管理費等 | 敷金 | 礼金 | 間取り | 専有面積 |
|---|---|---|---|---|---|
| 7.09万円 | 4,500円 | なし | なし | 1K | 24.97m2 |
入居決定でお祝い金最大100,000円
- 保証金
- -
- 償却・敷引
- -
- 築年数
- 築1年
- 所在階
- 9階
- 向き
- 北西
Point
駅近・スーパーコンビニも近い♪オートロック付・防犯カメラ付きで安心です★ペットOK!当社であれば仲介手数料半額!お部屋探しはぜひセンチュリー21リライフで!
提供:センチュリー21(株)リライフ神戸駅前店(SUUMO経由)

詳細情報 ジェノヴィア神戸湊川公園
物件紹介
ジェノヴィア神戸湊川公園は地下鉄西神・山手線湊川公園駅から徒歩2分にあり、駅近で通勤通学に便利なマンションです。
このお部屋は2階以上に位置しているので、通行人や周囲の住人からの視線が気になりにくく、防犯面でも安心。建物のエントランスはオートロックがついており、インターホンにはTVモニタもついているため、相手の顔を確認してから来客対応することができます。
こちらは楽器相談が可能な物件。楽器演奏をお考えの方はぜひ相談してみてください。フローリングのお部屋なのでお掃除もラクラク。キッチンはシステムキッチン仕様になっていますので、お料理好きの方にもぴったり。バス・トイレは別なので、のんびりお風呂タイムも楽しめるでしょう。また、雨の日でも浴室乾燥機を使えば、お洗濯も問題ありません。
通信設備面では、インターネットが無料で使えるので、月々の出費を抑えられるのも魅力です。また、BSアンテナ・CSアンテナがありCATVにも対応しているので、おうち時間も充実するでしょう(別途工事、BS・CS・CATVの契約料等が必要な場合あり)。
建物にはエレベーターがついているので、重い荷物があっても安心。共用部には宅配ボックスが設定されているので、不在の時にも荷物を受け取ることができます。また、ペット飼育の相談ができますので、あなたの大切な家族の一員も快適に暮らせるか、ぜひ確認してみてください。
このお部屋は2階以上に位置しているので、通行人や周囲の住人からの視線が気になりにくく、防犯面でも安心。建物のエントランスはオートロックがついており、インターホンにはTVモニタもついているため、相手の顔を確認してから来客対応することができます。
こちらは楽器相談が可能な物件。楽器演奏をお考えの方はぜひ相談してみてください。フローリングのお部屋なのでお掃除もラクラク。キッチンはシステムキッチン仕様になっていますので、お料理好きの方にもぴったり。バス・トイレは別なので、のんびりお風呂タイムも楽しめるでしょう。また、雨の日でも浴室乾燥機を使えば、お洗濯も問題ありません。
通信設備面では、インターネットが無料で使えるので、月々の出費を抑えられるのも魅力です。また、BSアンテナ・CSアンテナがありCATVにも対応しているので、おうち時間も充実するでしょう(別途工事、BS・CS・CATVの契約料等が必要な場合あり)。
建物にはエレベーターがついているので、重い荷物があっても安心。共用部には宅配ボックスが設定されているので、不在の時にも荷物を受け取ることができます。また、ペット飼育の相談ができますので、あなたの大切な家族の一員も快適に暮らせるか、ぜひ確認してみてください。
お金・契約の情報
※「-」と表示されているものは、実際は料金が発生するものもございます。詳細はお問い合わせください。
| 家賃 | 7.09万円 | 管理費・共益費 | 4,500円 |
|---|---|---|---|
| 敷金 | なし | 礼金 | なし |
| 入居決定でお祝い金最大100,000円 | |||
| 保証金 | - | 償却・敷引 | - |
| 住宅保険料 | - | 更新料 | - |
| 保証会社利用 | 必須 | 保証会社名 | - |
| 保証会社費用 | - | 保証会社備考 | 保証会社利用必 ルームバンクインシュア 初回保証料総賃料30% 更新料年間2万 |
| 契約形態 | - | 契約期間 | - |
| 入居・引渡期間 | 即時 | 現況 | - |
| 入居可能条件 | 事務所可、楽器相談、ペット相談 | ||
| 契約備考 | ダイエー湊川店まで244m/ファミリーマート柳筋北店まで99m/巡回管理/宅配ボックス/カメラ付きインターホン/防犯カメラ/エレベーター2基/2口コンロ/温水洗浄便座/シャンプードレッサー/室内洗濯パン/浴室乾燥機/24時間換気/クローゼット/シューズボックス/都市ガス/自転車置き場/wifi無料/バイク置き場/オートロック/エアコン スマサポコンシェル月額1320円 1K 二人入居可/ペット相談/楽器相談/事務所利用相談/ルームシェア相談 普通借家2年 損保【2.2万円2年】 バストイレ別、バルコニー、エアコン、クロゼット、フローリング、TVインターホン、浴室乾燥機、オートロック、室内洗濯置、シューズボックス、システムキッチン、温水洗浄便座、脱衣所、洗面所独立、洗面化粧台、2口コンロ、駐輪場、宅配ボックス、CATV、外壁タイル張り、BS・CS、防犯カメラ、ペット相談、分譲賃貸、グリル付、全居室洋室、保証人不要、二人入居相談、バイク置場、24時間緊急通報システム、仲手0.55ヶ月、ディンプルキー、駅まで平坦、ネット使用料不要、ダブルロックキー、事務所相談、24時間換気システム、楽器相談、ルームシェア相談、エレベーター2基、耐火構造、耐震構造、3駅以上利用可、3沿線以上利用可、駅徒歩5分以内、敷地内ごみ置き場、日勤管理、セキュリティ会社加入済、都市ガス、洗面所にドア、間接照明、敷金・礼金不要、保証会社利用可、IT重説対応物件、高齢者歓迎、LGBTフレンドリー、初期費用カード決済可、通風良好 | ||
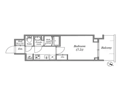
部屋の情報
| 間取り | 1K | 専有面積 | 24.97m2 |
|---|---|---|---|
| 所在階 / 向き | 9階 / 北西 | バルコニー面積 | - |
| 水道 / ガス | - | ||
| 設備 | バス・トイレ別、2階以上、オートロック、テレビドアホン、宅配ボックス、浴室乾燥機、インターネット対応、システムキッチン、エアコン、エレベーター、温水洗浄便座、バルコニー、フローリング、洗髪洗面化粧台、2口コンロ、CATV、CSアンテナ、BSアンテナ、インターネット使用料無料、洗濯機:室内 | ||
| 当社物件ID | 159610904 | ||
建物の情報
| 建物名 | ジェノヴィア神戸湊川公園 | ||
|---|---|---|---|
| 所在地 | 兵庫県神戸市兵庫区福原町 | ||
| 交通 | 地下鉄西神・山手線 湊川公園駅 徒歩2分 JR東海道本線 神戸駅(兵庫) 徒歩10分 | ||
| 階数 | 15階建 | 総戸数 | - |
| 築年月 | 2025年10月 / 築1年 | エレベーター | あり |
| 駐車場 | 近隣 100m20000円 | バイク置き場 | あり |
| 駐輪場 | あり | 管理人/管理会社 | - |
| 周辺環境 | その他 スギ薬局湊川店(ドラッグストア)まで203m その他 ダイエー湊川店(スーパー)まで244m その他 ファミリーマート柳筋北店(コンビニ)まで99m その他 マクドナルド神戸湊川店(飲食店)まで144m その他 神戸市兵庫区役所(役所)まで283m その他 神戸市立会下山小学校(小学校)まで317m | ||
| 建物種別 | マンション | 建物構造 | RC(鉄筋コンクリート) |
この部屋の取扱い不動産会社
| 会社名 | センチュリー21 (株)リライフ神戸三宮店(SUUMO経由) | ||
|---|---|---|---|
| 所在地 | 兵庫県神戸市中央区小野柄通5-1-13 IPSXMAGNET201 | 交通 | - |
| 営業時間 | 10:00~19:00 | 定休日 | 水曜日 |
| 免許番号 | 兵庫県知事11692 | 取引態様 | 仲介 |
| 不動産会社管理番号 | 100465077611 | 当社管理番号 | 89 |
| 所属団体 | (公社)全日本不動産協会兵庫県本部会員 | ||
| 公正取引協議会 | (公社)近畿地区不動産公正取引協議会加盟 | ||
| 取扱い物件情報 | 物件詳細へ | ||
※各種情報と現状に差異がある場合は、現状優先となります。問い合わせをすることで、より詳しい条件、情報を確認する事ができます。
提供:センチュリー21 (株)リライフ神戸三宮店(SUUMO経由)
この物件が気になったら掲載期限まであと8日
ジェノヴィア神戸湊川公園の空き部屋一覧
全部で40の空き部屋があります。
ジェノヴィア神戸湊川公園に条件(家賃・エリア)が近い物件一覧
| 写真 | 家賃 管理費等 | 敷金 礼金 | 間取り 専有面積 | 築年数 | 最寄り駅 所在地 | キープ | 詳細 |
|---|---|---|---|---|---|---|---|
アパート カーサグラス(1LDK/1階) | |||||||
![]() | 7.2万円 6,000円 | 2万円 なし | 1LDK 46.6m2 | 築9年 | 神戸電鉄粟生線 大村駅(兵庫) 徒歩9分 神戸電鉄粟生線 三木駅(神戸電鉄) 徒歩12分 神戸電鉄粟生線 三木上の丸駅 徒歩20分 兵庫県三木市加佐1丁目 | 詳細を見る | |
アパート カーサアリビオ(ワンルーム/2階) | |||||||
![]() | 5.9万円 4,000円 | 3万円 10万円 | ワンルーム 30.08m2 | 築21年 | 山陽電鉄本線 東二見駅 徒歩7分 山陽電鉄本線 西二見駅 徒歩15分 山陽電鉄本線 山陽魚住駅 徒歩23分 兵庫県明石市二見町東二見 | 詳細を見る | |
アパート リトルガーデン(1K/2階) | |||||||
![]() | 5.2万円 なし | 3万円 10万円 | 1K 30m2 | 築23年 | 神戸電鉄粟生線 緑が丘駅(兵庫) 徒歩6分 神戸電鉄粟生線 広野ゴルフ場前駅 徒歩13分 神戸電鉄粟生線 押部谷駅 徒歩22分 兵庫県三木市緑が丘町本町1丁目 | 詳細を見る | |
アパート ヒカルサ稲美天満Ⅰ(2LDK/2階) | |||||||
![]() | 8.25万円 3,900円 | なし 8.25万円 | 2LDK 56.44m2 | 築1年 | 兵庫県加古郡稲美町六分一 | 詳細を見る | |
アパート 神戸電鉄粟生線 広野ゴルフ場前駅 徒歩17分 築19年(1K/1階) | |||||||
![]() | 5万円 5,000円 | なし 5万円 | 1K 29.98m2 | 築19年 | 神戸電鉄粟生線 広野ゴルフ場前駅 徒歩17分 神戸電鉄粟生線 緑が丘駅(兵庫) 徒歩19分 神戸電鉄粟生線 押部谷駅 徒歩40分 兵庫県三木市緑が丘町西2丁目 | 詳細を見る | |
マンション 山陽電気鉄道本線 西新町駅 徒歩6分 築33年(3LDK/4階) | |||||||
![]() | 11万円 7,000円 | なし 11万円 | 3LDK 82.6m2 | 築33年 | 山陽電気鉄道本線 西新町駅 徒歩6分 兵庫県明石市硯町3丁目 | 詳細を見る | |
マンション ウェルスクエア西宮北口(1K/4階) | |||||||
![]() | 7.6万円 5,000円 | なし 7.6万円 | 1K 25.67m2 | 築3年 | 阪急電鉄神戸線 西宮北口駅 徒歩12分 東海道本線 西宮駅(JR) 徒歩17分 阪急電鉄今津線 門戸厄神駅 徒歩19分 兵庫県西宮市大畑町 | 詳細を見る | |
アパート ツインズコート(ワンルーム/1階) | |||||||
![]() | 4.7万円 3,000円 | なし 10万円 | ワンルーム 37.15m2 | 築36年 | 山陽電気鉄道本線 山陽明石駅 徒歩25分 兵庫県明石市太寺天王町 | 詳細を見る | |








