賃貸マンション
パークアクシス元浅草ステージの賃貸物件情報(2LDK/3階)
| 家賃 | 管理費等 | 敷金 | 礼金 | 間取り | 専有面積 |
|---|---|---|---|---|---|
| 25万円 | 1万円 | 25万円 | 50万円 | 2LDK | 50.62m2 |
入居決定でお祝い金最大100,000円
- 保証金
- -
- 償却・敷引
- -
- 築年数
- 築18年
- 所在階
- 3階
- 向き
- 東
Point
オンライン内見・契約実施中!初期費用クレカ決済もご相談ください!お部屋探しはピアホームにお任せください♪
提供:SEG(株)PeerHome新橋店(SUUMO経由)

詳細情報 パークアクシス元浅草ステージ
物件紹介
パークアクシス元浅草ステージは都営大江戸線新御徒町駅から徒歩2分にあり、駅近で通勤通学に便利なマンションです。
このお部屋は2階以上に位置しているので、通行人や周囲の住人からの視線が気になりにくく、防犯面でも安心。建物のエントランスはオートロックがついており、インターホンにはTVモニタもついているため、相手の顔を確認してから来客対応することができます。
こちらは楽器相談が可能な物件。楽器演奏をお考えの方はぜひ相談してみてください。人気の南向きのお部屋。また、フローリングなのでお掃除もラクラク。キッチンはシステムキッチン仕様になっていますので、お料理好きの方にもぴったり。バス・トイレは別なので、のんびりお風呂タイムも楽しめるでしょう。また、雨の日でも浴室乾燥機を使えば、お洗濯も問題ありません。
通信設備面では、インターネット接続が可能です。また、BSアンテナ・CSアンテナがありCATVにも対応しているので、おうち時間も充実するでしょう(別途工事、契約料が必要な場合あり)。
建物にはエレベーターがついているので、重い荷物があっても安心。共用部には宅配ボックスが設定されているので、不在の時にも荷物を受け取ることができます。また、ペット飼育の相談ができますので、あなたの大切な家族の一員も快適に暮らせるか、ぜひ確認してみてください。
このお部屋は2階以上に位置しているので、通行人や周囲の住人からの視線が気になりにくく、防犯面でも安心。建物のエントランスはオートロックがついており、インターホンにはTVモニタもついているため、相手の顔を確認してから来客対応することができます。
こちらは楽器相談が可能な物件。楽器演奏をお考えの方はぜひ相談してみてください。人気の南向きのお部屋。また、フローリングなのでお掃除もラクラク。キッチンはシステムキッチン仕様になっていますので、お料理好きの方にもぴったり。バス・トイレは別なので、のんびりお風呂タイムも楽しめるでしょう。また、雨の日でも浴室乾燥機を使えば、お洗濯も問題ありません。
通信設備面では、インターネット接続が可能です。また、BSアンテナ・CSアンテナがありCATVにも対応しているので、おうち時間も充実するでしょう(別途工事、契約料が必要な場合あり)。
建物にはエレベーターがついているので、重い荷物があっても安心。共用部には宅配ボックスが設定されているので、不在の時にも荷物を受け取ることができます。また、ペット飼育の相談ができますので、あなたの大切な家族の一員も快適に暮らせるか、ぜひ確認してみてください。
お金・契約の情報
※「-」と表示されているものは、実際は料金が発生するものもございます。詳細はお問い合わせください。
| 家賃 | 25万円 | 管理費・共益費 | 1万円 |
|---|---|---|---|
| 敷金 | 25万円 | 礼金 | 50万円 |
| 入居決定でお祝い金最大100,000円 | |||
| 保証金 | - | 償却・敷引 | - |
| 住宅保険料 | - | 更新料 | - |
| 保証会社利用 | 必須 | 保証会社名 | - |
| 保証会社費用 | - | 保証会社備考 | 保証会社利用必 ◆レジデントアシスタンス◆ 初回保証委託料(最低1.5万円):月額賃料等の50%、2年目以降:9600円10000円/年 |
| 契約形態 | - | 契約期間 | - |
| 入居・引渡期間 | 即時 | 現況 | - |
| 入居可能条件 | 楽器相談、ペット相談 | ||
| 契約備考 | ※1年未満解約時、賃料1ヶ月の違約金有※同タイプ・別階の内観写真を掲載している場合があります。図面と現況が異なる場合は現況を優先いたします。 合計2.2万円(内訳:鍵交換費:22000円) 口座振替手数料:110円/月退去時清掃費:94659円ペット:敷金1ヶ月追加 2LDK 二人入居可/ペット相談/楽器相談 損保【2万円2年】 バストイレ別、バルコニー、エアコン、ガスコンロ対応、クロゼット、フローリング、TVインターホン、浴室乾燥機、オートロック、室内洗濯置、陽当り良好、シューズボックス、システムキッチン、追焚機能浴室、温水洗浄便座、エレベーター、洗面所独立、2口コンロ、駐輪場、宅配ボックス、CATV、光ファイバー、3口以上コンロ、対面式キッチン、防犯カメラ、ペット相談、オートバス、保証人不要、二人入居相談、全居室フローリング、CS、楽器相談、敷地内ごみ置き場、日勤管理、都市ガス、ワイドバルコニー、南面バルコニー、BS、初期費用カード決済可 | ||
部屋の情報
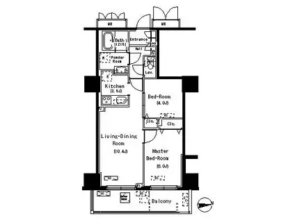
| 間取り | 2LDK | 専有面積 | 50.62m2 |
|---|---|---|---|
| 所在階 / 向き | 3階 / 東 | バルコニー面積 | - |
| 水道 / ガス | - | ||
| 設備 | バス・トイレ別、2階以上、オートロック、テレビドアホン、宅配ボックス、浴室乾燥機、追い焚き、インターネット対応、システムキッチン、エアコン、エレベーター、温水洗浄便座、バルコニー、フローリング、洗髪洗面化粧台、2口コンロ、コンロ:ガス、CATV、CSアンテナ、BSアンテナ、洗濯機:室内 | ||
| 当社物件ID | 2003680 | ||
建物の情報
| 建物名 | パークアクシス元浅草ステージ | ||
|---|---|---|---|
| 所在地 | 東京都台東区元浅草 | ||
| 交通 | 都営大江戸線 新御徒町駅 徒歩3分 東京メトロ銀座線 稲荷町駅(東京) 徒歩8分 東京メトロ銀座線 田原町駅(東京) 徒歩13分 | ||
| 階数 | 地下1地上16階建 | 総戸数 | - |
| 築年月 | 2008年04月 / 築18年 | エレベーター | あり |
| 駐車場 | なし | バイク置き場 | - |
| 駐輪場 | あり | 管理人/管理会社 | - |
| 周辺環境 | その他 セブン-イレブン 新御徒町駅前店(コンビニ)まで131m その他 サミットストア 両国石原店(スーパー)まで1420m その他 永寿総合病院(病院)まで518m その他 蔵前小学校(小学校)まで516m その他 御徒町台東中学校(中学校)まで654m | ||
| 建物種別 | マンション | 建物構造 | RC(鉄筋コンクリート) |
この部屋の取扱い不動産会社
| 会社名 | ピアホーム広尾駅前店(株)PH.C(SUUMO経由) | ||
|---|---|---|---|
| 所在地 | 東京都港区南麻布5-15-11広尾セオハウス2階 | 交通 | - |
| 営業時間 | 9:00~18:30 | 定休日 | 無し |
| 免許番号 | 東京都知事106525 | 取引態様 | 仲介 |
| 不動産会社管理番号 | 100457529359 | 当社管理番号 | 89 |
| 所属団体 | (公社)東京都宅地建物取引業協会会員 | ||
| 公正取引協議会 | (公社)首都圏不動産公正取引協議会加盟 | ||
| 取扱い物件情報 | 物件詳細へ | ||
※各種情報と現状に差異がある場合は、現状優先となります。問い合わせをすることで、より詳しい条件、情報を確認する事ができます。
提供:ピアホーム広尾駅前店(株)PH.C(SUUMO経由)
この物件が気になったら掲載期限まであと10日
パークアクシス元浅草ステージに条件(家賃・エリア)が近い物件一覧
| 写真 | 家賃 管理費等 | 敷金 礼金 | 間取り 専有面積 | 築年数 | 最寄り駅 所在地 | キープ | 詳細 |
|---|---|---|---|---|---|---|---|
マンション LASANTE 千駄木(1LDK/9階) | |||||||
![]() | 22.1万円 1.2万円 | なし なし | 1LDK 42.35m2 | 築18年 | 山手線 西日暮里駅 徒歩5分 東京都文京区千駄木3丁目 | 詳細を見る | |
マンション パークキューブ浅草田原町(1SLDK/6階) | |||||||
![]() | 21.1万円 1万円 | 21.1万円 21.1万円 | 1SLDK 50m2 | 築20年 | 東京地下鉄銀座線 田原町駅(東京) 徒歩3分 つくばエクスプレス 浅草駅(つくばEXP) 徒歩7分 東京都浅草線 蔵前駅 徒歩8分 東京都台東区寿3丁目 | 詳細を見る | |
マンション パークアクシス本所・親水公園(1LDK/8階) | |||||||
![]() | 19.4万円 1.5万円 | なし なし | 1LDK 40.52m2 | 築5年 | 東京都浅草線 本所吾妻橋駅 徒歩9分 東京地下鉄半蔵門線 押上駅 徒歩10分 総武・中央緩行線 錦糸町駅 徒歩19分 東京都墨田区本所4丁目 | 詳細を見る | |
マンション プラウドフラット上野松が谷(1LDK/2階) | |||||||
![]() | 20.2万円 1.2万円 | 20.2万円 20.2万円 | 1LDK 40.18m2 | 築5年 | 東京地下鉄日比谷線 入谷駅(東京) 徒歩6分 つくばエクスプレス 浅草駅(つくばEXP) 徒歩10分 山手線 上野駅 徒歩15分 東京都台東区松が谷4丁目 | 詳細を見る | |
マンション ACPレジデンス文京春日(1LDK/4階) | |||||||
![]() | 21.2万円 2万円 | なし なし | 1LDK 40.65m2 | 築2年 | 東京地下鉄南北線 後楽園駅 徒歩11分 東京地下鉄丸ノ内線 後楽園駅 徒歩11分 東京都文京区春日2丁目 | 詳細を見る | |
マンション CREALPREMIER浅草(1LDK/7階) | |||||||
![]() | 17.7万円 1万円 | なし なし | 1LDK 40.83m2 | 築4年 | 東京地下鉄銀座線 浅草駅(東武・都営・メトロ) 徒歩10分 つくばエクスプレス 浅草駅(つくばEXP) 徒歩13分 東京都浅草線 本所吾妻橋駅 徒歩18分 東京都台東区浅草6丁目 | 詳細を見る | |
マンション エスティメゾン千石(1LDK/1階) | |||||||
![]() | 16万円 1.2万円 | 16万円 16万円 | 1LDK 39.85m2 | 築17年 | 東京都三田線 千石駅 徒歩7分 山手線 巣鴨駅 徒歩9分 東京都文京区千石4丁目 | 詳細を見る | |
マンション コンフォリア本駒込(1SLDK/2階) | |||||||
![]() | 26.1万円 1万円 | 26.1万円 なし | 1SLDK 60.06m2 | 築21年 | 東京都三田線 千石駅 徒歩1分 山手線 巣鴨駅 徒歩9分 東京都文京区本駒込2丁目 | 詳細を見る | |








