賃貸マンション
プレサンス鶴橋トレヴィエの賃貸物件情報(1K/5階)
| 家賃 | 管理費等 | 敷金 | 礼金 | 間取り | 専有面積 |
|---|---|---|---|---|---|
| 6.54万円 | 6,550円 | なし | なし | 1K | 21.83m2 |
入居決定でお祝い金最大100,000円
Point
⇒当店では新築物件に限り<仲介手数料無料キャンペーン中!>★
提供:アパマンショップ北巽店

詳細情報 プレサンス鶴橋トレヴィエ
物件紹介
プレサンス鶴橋トレヴィエは近鉄大阪線鶴橋駅から徒歩5分にあり、駅近で通勤通学に便利なマンションです。
このお部屋は2階以上に位置しているので、通行人や周囲の住人からの視線が気になりにくく、防犯面でも安心。建物のエントランスはオートロックがついており、インターホンにはTVモニタもついているため、相手の顔を確認してから来客対応することができます。
おしゃれなデザイナーズ物件!人気の南向き・フローリングのお部屋。角部屋でもあるため、周囲の居住者の生活音も気になりにくい場所です。キッチンはシステムキッチン仕様になっていますので、お料理好きの方にもぴったり。バス・トイレは別なので、のんびりお風呂タイムも楽しめるでしょう。また、雨の日でも浴室乾燥機を使えば、お洗濯も問題ありません。
通信設備面では、インターネットが無料で使えるので、月々の出費を抑えられるのも魅力です。また、BSアンテナ・CSアンテナがありCATVにも対応しているので、おうち時間も充実するでしょう(別途工事、BS・CS・CATVの契約料等が必要な場合あり)。
建物にはエレベーターがついているので、重い荷物があっても安心。共用部には宅配ボックスが設定されているので、不在の時にも荷物を受け取ることができます。
このお部屋は2階以上に位置しているので、通行人や周囲の住人からの視線が気になりにくく、防犯面でも安心。建物のエントランスはオートロックがついており、インターホンにはTVモニタもついているため、相手の顔を確認してから来客対応することができます。
おしゃれなデザイナーズ物件!人気の南向き・フローリングのお部屋。角部屋でもあるため、周囲の居住者の生活音も気になりにくい場所です。キッチンはシステムキッチン仕様になっていますので、お料理好きの方にもぴったり。バス・トイレは別なので、のんびりお風呂タイムも楽しめるでしょう。また、雨の日でも浴室乾燥機を使えば、お洗濯も問題ありません。
通信設備面では、インターネットが無料で使えるので、月々の出費を抑えられるのも魅力です。また、BSアンテナ・CSアンテナがありCATVにも対応しているので、おうち時間も充実するでしょう(別途工事、BS・CS・CATVの契約料等が必要な場合あり)。
建物にはエレベーターがついているので、重い荷物があっても安心。共用部には宅配ボックスが設定されているので、不在の時にも荷物を受け取ることができます。
お金・契約の情報
※「-」と表示されているものは、実際は料金が発生するものもございます。詳細はお問い合わせください。
| 家賃 | 6.54万円 | 管理費・共益費 | 6,550円 |
|---|---|---|---|
| 敷金 | なし | 礼金 | なし |
| 入居決定でお祝い金最大100,000円 | |||
| 保証金 | - | 償却・敷引 | - |
| 住宅保険料 | - | 更新料 | - |
| 保証会社利用 | 必須 | 保証会社名 | 株式会社プレサンスギャランティ |
| 保証会社費用 | - | 保証会社備考 | ギャランティ 初回50% 月1.5%・セーフティー 初回50% 年10,000円 |
| 契約形態 | - | 契約期間 | 1年 |
| 入居・引渡期間 | 2026年01月下旬 | 現況 | - |
| 契約備考 | プレサポ24 990円/カギ調整代 22000円 | ||
部屋の情報
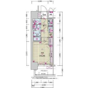
| 間取り | 1K | 専有面積 | 21.83m2 |
|---|---|---|---|
| 間取り詳細 | 洋室(6.2帖) | ||
| 所在階 / 向き | 5階 / 南 | バルコニー面積 | 3m2 |
| 水道 / ガス | - | ||
| 設備 | オートロック、テレビドアホン、宅配ボックス、浴室乾燥機、エレベーター、温水洗浄便座、BSアンテナ | ||
| 当社物件ID | 159617016 | ||
建物の情報
| 建物名 | プレサンス鶴橋トレヴィエ | ||
|---|---|---|---|
| 所在地 | 大阪府大阪市生野区鶴橋3丁目 | ||
| 交通 | 近鉄大阪線 鶴橋駅 徒歩5分 | ||
| 階数 | 10階建 | 総戸数 | 96戸 |
| 築年月 | 2026年01月 / 新築 | エレベーター | あり |
| 駐車場 | - | バイク置き場 | - |
| 駐輪場 | - | 管理人/管理会社 | - |
| 周辺環境 | その他 ローソン 徒歩6分(423m) その他 東成玉津郵便局 徒歩8分(571m) その他 りそな銀行 鶴橋支店 徒歩6分(471m) その他 生野コリアタウン 徒歩5分(400m) その他 生鮮食品スーパーアンフレ 徒歩7分(503m) その他 ドミノピザ 鶴橋店 徒歩8分(613m) その他 BOOKS ISHIKENDO 徒歩7分(504m) その他 東小橋交番 徒歩7分(507m) | ||
| 建物種別 | マンション | 建物構造 | RC(鉄筋コンクリート) |
この部屋の取扱い不動産会社
| 会社名 | アパマンショップ今里店 | ||
|---|---|---|---|
| 所在地 | 大阪府大阪市東成区大今里3丁目 15-23 | 交通 | 大阪市今里筋線今里から徒歩1分 |
| 営業時間 | 10:00〜19:00 | 定休日 | - |
| 免許番号 | 大阪府知事(2)59130 | 取引態様 | 仲介 |
| 不動産会社管理番号 | 111132374 | 当社管理番号 | 4 |
| 所属団体 | (一社)大阪府宅地建物取引業協会 | ||
| 公正取引協議会 | (公社) 近畿地区不動産公正取引協議会加盟 | ||
| 取扱い物件情報 | 物件詳細へ | ||
※各種情報と現状に差異がある場合は、現状優先となります。問い合わせをすることで、より詳しい条件、情報を確認する事ができます。
提供:アパマンショップ今里店
この物件が気になったら掲載期限まであと5日
プレサンス鶴橋トレヴィエの空き部屋一覧
全部で96の空き部屋があります。
プレサンス鶴橋トレヴィエに条件(家賃・エリア)が近い物件一覧
| 写真 | 家賃 管理費等 | 敷金 礼金 | 間取り 専有面積 | 築年数 | 最寄り駅 所在地 | キープ | 詳細 |
|---|---|---|---|---|---|---|---|
マンション ラ・フィーネ江坂(1K/2階) | |||||||
| 6.9万円 6,000円 | 7.5万円 15万円 | 1K 35.16m2 | 築18年 | 阪急電鉄千里線 豊津駅(大阪) 徒歩8分 北大阪急行南北線 江坂駅 徒歩12分 阪急電鉄千里線 関大前駅 徒歩14分 大阪府吹田市垂水町3丁目7-11 | 詳細を見る | ||
アパート 南海電鉄南海本線 羽衣駅 徒歩10分 築24年(1LDK/1階) | |||||||
![]() | 8万円 4,500円 | なし 16万円 | 1LDK 55.81m2 | 築24年 | 南海電鉄南海本線 羽衣駅 徒歩10分 南海電鉄南海本線 浜寺公園駅 徒歩10分 阪和線 鳳駅 徒歩19分 大阪府堺市西区浜寺南町1丁 | 詳細を見る | |
マンション マインハイム(1DK/1階) | |||||||
| 5.3万円 なし | 5万円 15万円 | 1DK 27m2 | 築47年 | 東海道本線 千里丘駅 徒歩14分 阪急電鉄京都線 摂津市駅 徒歩21分 大阪モノレール彩都 公園東口駅 徒歩25分 大阪府吹田市千里丘中45-6 | 詳細を見る | ||
マンション 南海電鉄南海本線 石津川駅 徒歩5分 築1年(1K/5階) | |||||||
![]() | 5.8万円 1万円 | なし なし | 1K 23.78m2 | 築1年 | 南海電鉄南海本線 石津川駅 徒歩5分 阪堺電気軌道阪堺線 石津北駅 徒歩5分 南海電鉄南海本線 湊駅 徒歩15分 大阪府堺市西区浜寺石津町中1丁 | 詳細を見る | |
アパート SOAR(1K/2階) | |||||||
![]() | 5.4万円 5,000円 | なし なし | 1K 27.83m2 | 築9年 | 南海電鉄南海本線 石津川駅 徒歩10分 南海電鉄南海本線 諏訪ノ森駅 徒歩12分 南海電鉄南海本線 浜寺公園駅 徒歩22分 大阪府堺市西区浜寺石津町東5丁 | 詳細を見る | |
マンション 阪和線 鳳駅 徒歩3分 築1年(1K/7階) | |||||||
![]() | 7万円 2,000円 | なし 7万円 | 1K 25.65m2 | 築1年 | 阪和線 鳳駅 徒歩3分 阪和線 富木駅 徒歩20分 南海電鉄南海本線 羽衣駅 徒歩26分 大阪府堺市西区鳳東町4丁 | 詳細を見る | |
アパート レオパレスパレス三島(1K/1階) | |||||||
| 4.9万円 5,000円 | なし 4.9万円 | 1K 19.87m2 | 築22年 | 大阪モノレール本線 摂津駅 徒歩9分 阪急電鉄京都線 正雀駅 徒歩16分 阪急電鉄京都線 摂津市駅 徒歩17分 大阪府摂津市三島2丁目4-33 | 詳細を見る | ||
マンション カルム小西Ⅱ(1K/3階) | |||||||
![]() | 7.5万円 6,000円 | 8.1万円 16.2万円 | 1K 32.14m2 | 築18年 | 地下鉄御堂筋線 江坂駅 徒歩5分 阪急千里線 豊津駅(大阪) 徒歩11分 北大阪急行 緑地公園駅 徒歩22分 大阪府吹田市垂水町 | 詳細を見る | |





