賃貸マンション
メインステージ蔵前の賃貸物件情報(1LDK/2階)
| 家賃 | 管理費等 | 敷金 | 礼金 | 間取り | 専有面積 |
|---|---|---|---|---|---|
| 16.5万円 | 1.5万円 | なし | なし | 1LDK | 39.64m2 |
入居決定でお祝い金最大100,000円
- 保証金
- -
- 償却・敷引
- -
- 築年数
- 築18年
- 所在階
- 2階
- 向き
- 東
Point
敷金0ヶ月キャンペーン中につき初期安にて契約可!当店では契約金がクレジット決済可能です★セキュリティ設備、水回り設備充実しております!お気軽にお問い合わせ下さい。
提供:フォーディールーム 秋葉原店(株)Four D(SUUMO経由)

詳細情報 メインステージ蔵前
物件紹介
メインステージ蔵前は都営浅草線蔵前駅から徒歩4分にあり、駅近で通勤通学に便利なマンションです。
このお部屋は2階以上に位置しているので、通行人や周囲の住人からの視線が気になりにくく、防犯面でも安心。建物のエントランスはオートロックがついており、インターホンにはTVモニタもついているため、相手の顔を確認してから来客対応することができます。
おしゃれなデザイナーズ物件!人気の角部屋で周囲の居住者の生活音も気になりにくく、また、フローリングのお部屋なのでお掃除もラクラク。キッチンはシステムキッチン仕様になっていますので、お料理好きの方にもぴったり。バス・トイレは別なので、のんびりお風呂タイムも楽しめるでしょう。また、雨の日でも浴室乾燥機を使えば、お洗濯も問題ありません。
通信設備面では、インターネット接続が可能です。また、BSアンテナ・CSアンテナがありCATVにも対応しているので、おうち時間も充実するでしょう(別途工事、契約料が必要な場合あり)。
建物にはエレベーターがついているので、重い荷物があっても安心。共用部には宅配ボックスが設定されているので、不在の時にも荷物を受け取ることができます。
このお部屋は2階以上に位置しているので、通行人や周囲の住人からの視線が気になりにくく、防犯面でも安心。建物のエントランスはオートロックがついており、インターホンにはTVモニタもついているため、相手の顔を確認してから来客対応することができます。
おしゃれなデザイナーズ物件!人気の角部屋で周囲の居住者の生活音も気になりにくく、また、フローリングのお部屋なのでお掃除もラクラク。キッチンはシステムキッチン仕様になっていますので、お料理好きの方にもぴったり。バス・トイレは別なので、のんびりお風呂タイムも楽しめるでしょう。また、雨の日でも浴室乾燥機を使えば、お洗濯も問題ありません。
通信設備面では、インターネット接続が可能です。また、BSアンテナ・CSアンテナがありCATVにも対応しているので、おうち時間も充実するでしょう(別途工事、契約料が必要な場合あり)。
建物にはエレベーターがついているので、重い荷物があっても安心。共用部には宅配ボックスが設定されているので、不在の時にも荷物を受け取ることができます。
お金・契約の情報
※「-」と表示されているものは、実際は料金が発生するものもございます。詳細はお問い合わせください。
| 家賃 | 16.5万円 | 管理費・共益費 | 1.5万円 |
|---|---|---|---|
| 敷金 | なし | 礼金 | なし |
| 入居決定でお祝い金最大100,000円 | |||
| 保証金 | - | 償却・敷引 | - |
| 住宅保険料 | - | 更新料 | - |
| 保証会社利用 | 必須 | 保証会社名 | - |
| 保証会社費用 | - | 保証会社備考 | 保証会社利用必 家賃総額の50%~ |
| 契約形態 | - | 契約期間 | - |
| 入居・引渡期間 | 即時 | 現況 | - |
| 契約備考 | 当店では契約金がクレジットカード払い可能です。オンライン内見、契約相談出来ますので遠方の方もお気軽にお問い合わせ下さい。 合計4.62万円(内訳:退去時鍵交換費用29700円/AMLクラブサポート費用16500円) ハウスクリーニング費用(退去時請求):55,000円短期解約違約金有(2)エアコンクリーニング費用(1台あたり16,500円税込み・退去時請求) 1LDK 単身者可/二人入居可 普通借家2年 損保【2万円2年】 バストイレ別、エアコン、クロゼット、フローリング、TVインターホン、浴室乾燥機、オートロック、室内洗濯置、シューズボックス、システムキッチン、角住戸、温水洗浄便座、脱衣所、エレベーター、洗面所独立、洗面化粧台、2口コンロ、駐輪場、宅配ボックス、CATV、光ファイバー、外壁タイル張り、即入居可、2面採光、BS・CS、防犯カメラ、照明付、分譲賃貸、保証人不要、24時間緊急通報システム、全居室フローリング、デザイナーズ、ディンプルキー、ネット専用回線、駅まで平坦、ダブルロックキー、保証金不要、24時間換気システム、平坦地、人感照明センサー、耐火構造、耐震構造、3駅以上利用可、3沿線以上利用可、駅前、駅徒歩5分以内、24時間ゴミ出し可、敷地内ごみ置き場、都市ガス、洗面所にドア、玄関収納、間接照明、オートライト、ダウンライト、高速ネット対応、マルチメディアコンセント、敷金・礼金不要、IT重説対応物件、初期費用カード決済可、全室照明付 | ||
部屋の情報
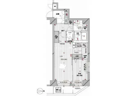
| 間取り | 1LDK | 専有面積 | 39.64m2 |
|---|---|---|---|
| 所在階 / 向き | 2階 / 東 | バルコニー面積 | - |
| 水道 / ガス | - | ||
| 設備 | バス・トイレ別、2階以上、オートロック、テレビドアホン、宅配ボックス、浴室乾燥機、インターネット対応、システムキッチン、エアコン、エレベーター、温水洗浄便座、角部屋、フローリング、洗髪洗面化粧台、2口コンロ、デザイナーズ、CATV、CSアンテナ、BSアンテナ、洗濯機:室内 | ||
| 当社物件ID | 16052695 | ||
建物の情報
| 建物名 | メインステージ蔵前 | ||
|---|---|---|---|
| 所在地 | 東京都台東区三筋 | ||
| 交通 | 都営浅草線 蔵前駅 徒歩4分 都営大江戸線 新御徒町駅 徒歩9分 JR総武線 浅草橋駅 徒歩10分 | ||
| 階数 | 10階建 | 総戸数 | - |
| 築年月 | 2008年06月 / 築18年 | エレベーター | あり |
| 駐車場 | 近隣 100m40000円 | バイク置き場 | - |
| 駐輪場 | あり | 管理人/管理会社 | - |
| 周辺環境 | その他 ファミリーマート 台東三筋店(コンビニ)まで150m その他 マルエツプチ 蔵前四丁目店(スーパー)まで268m その他 ファミリーマート 台東三筋一丁目店(コンビニ)まで355m その他 セブンイレブン 台東蔵前2丁目店(コンビニ)まで413m その他 セブンイレブン 台東浅草橋3丁目東店(コンビニ)まで360m その他 スーパーマーケット リコス 蔵前2丁目店(スーパー)まで387m | ||
| 建物種別 | マンション | 建物構造 | RC(鉄筋コンクリート) |
この部屋の取扱い不動産会社
| 会社名 | フォーディールーム 秋葉原店(株)Four D(SUUMO経由) | ||
|---|---|---|---|
| 所在地 | 東京都千代田区神田松永町 11 AT第一ビル4階 | 交通 | - |
| 営業時間 | AM10時~PM20時 | 定休日 | なし |
| 免許番号 | 国土交通大臣10082 | 取引態様 | 仲介 |
| 不動産会社管理番号 | 100478160016 | 当社管理番号 | 89 |
| 取扱い物件情報 | 物件詳細へ | ||
※各種情報と現状に差異がある場合は、現状優先となります。問い合わせをすることで、より詳しい条件、情報を確認する事ができます。
提供:フォーディールーム 秋葉原店(株)Four D(SUUMO経由)
この物件が気になったら掲載期限まであと10日
メインステージ蔵前に条件(家賃・エリア)が近い物件一覧
| 写真 | 家賃 管理費等 | 敷金 礼金 | 間取り 専有面積 | 築年数 | 最寄り駅 所在地 | キープ | 詳細 |
|---|---|---|---|---|---|---|---|
マンション BLAU三ノ輪(1LDK/4階) | |||||||
![]() | 16.7万円 1.5万円 | 16.7万円 なし | 1LDK 40.08m2 | 築5年 | 東京地下鉄日比谷線 三ノ輪駅 徒歩4分 常磐線 南千住駅 徒歩13分 東京都台東区三ノ輪1丁目 | 詳細を見る | |
マンション リブリ・曳舟(1LDK/3階) | |||||||
![]() | 12.8万円 3,000円 | なし 19.2万円 | 1LDK 32.04m2 | 築1年 | 東武伊勢崎・大師線 曳舟駅 徒歩13分 東武伊勢崎・大師線 東向島駅 徒歩13分 京成電鉄押上線 京成曳舟駅 徒歩16分 東京都墨田区堤通1丁目 | 詳細を見る | |
マンション ヴェラハイツ日本橋蛎殻町(ワンルーム/2階) | |||||||
![]() | 10.5万円 1.5万円 | 10.5万円 10.5万円 | ワンルーム 26.9m2 | 築43年 | 東京地下鉄日比谷線 茅場町駅 徒歩5分 東京地下鉄東西線 茅場町駅 徒歩5分 東京都浅草線 人形町駅 徒歩7分 東京都中央区日本橋蛎殻町1丁目 | 詳細を見る | |
マンション ONE ROOF FLAT TSUKISHIMA(1K/2階) | |||||||
![]() | 12.9万円 1.5万円 | 12.9万円 12.9万円 | 1K 25.02m2 | 築11年 | 東京地下鉄有楽町線 月島駅 徒歩4分 東京都大江戸線 月島駅 徒歩4分 東京都大江戸線 勝どき駅 徒歩6分 東京都中央区月島4丁目 | 詳細を見る | |
マンション プレール・ドゥーク浅草Ⅳ(1LDK/8階) | |||||||
![]() | 17万円 1万円 | なし 17万円 | 1LDK 40.32m2 | 築7年 | 東武伊勢崎・大師線 浅草駅(東武・都営・メトロ) 徒歩8分 東京地下鉄銀座線 浅草駅(東武・都営・メトロ) 徒歩9分 東京地下鉄日比谷線 入谷駅(東京) 徒歩19分 東京都台東区浅草3丁目 | 詳細を見る | |
マンション ALIVIO 千石(1K/4階) | |||||||
![]() | 11.5万円 1万円 | なし なし | 1K 27.38m2 | 築2年 | 東京都三田線 千石駅 徒歩8分 東京地下鉄丸ノ内線 茗荷谷駅 徒歩15分 東京都三田線 白山駅(東京) 徒歩15分 東京都文京区千石2丁目 | 詳細を見る | |
マンション HF上野レジデンスイースト(ワンルーム/15階) | |||||||
![]() | 17万円 1.1万円 | 17万円 17万円 | ワンルーム 35.69m2 | 築9年 | 東京地下鉄銀座線 稲荷町駅(東京) 徒歩2分 山手線 上野駅 徒歩7分 東京地下鉄日比谷線 上野駅 徒歩7分 東京都台東区東上野5丁目 | 詳細を見る | |
マンション NANAEI日本橋(1K/4階) | |||||||
![]() | 16万円 1万円 | なし 32万円 | 1K 30.09m2 | 築8年 | 東京メトロ半蔵門線 水天宮前駅 徒歩4分 東京メトロ日比谷線 茅場町駅 徒歩5分 東京メトロ日比谷線 人形町駅 徒歩11分 東京都中央区日本橋箱崎町 | 詳細を見る | |









