賃貸マンション
パークタワー勝どきサウスの賃貸物件情報(2LDK/9階)
| 家賃 | 管理費等 | 敷金 | 礼金 | 間取り | 専有面積 |
|---|---|---|---|---|---|
| 34.3万円 | 2万円 | 34.3万円 | 17.15万円 | 2LDK | 56.52m2 |
入居決定でお祝い金最大100,000円
- 保証金
- -
- 償却・敷引
- -
- 築年数
- 築3年
- 所在階
- 9階
- 向き
- 南
Point
初期費用分割払い可能☆最大24ヶ月払い☆カード決済も対応しております!!遠方の方や忙しい方向けオンライン内見実施中☆
提供:センチュリー21(株)ロータスアセットパートナーズみんなのへや豊洲駅前店(SUUMO経由)

詳細情報 パークタワー勝どきサウス
物件紹介
パークタワー勝どきサウスは都営大江戸線勝どき駅から徒歩2分にあり、駅近で通勤通学に便利なマンションです。
このお部屋は2階以上に位置しているので、通行人や周囲の住人からの視線が気になりにくく、防犯面でも安心。建物のエントランスはオートロックがついており、インターホンにはTVモニタもついているため、相手の顔を確認してから来客対応することができます。
おしゃれなデザイナーズ物件!また、楽器相談が可能な物件となっているので、楽器演奏をお考えの方はぜひ相談してみてください。人気の南向きのお部屋。また、フローリングなのでお掃除もラクラク。キッチンはシステムキッチン仕様になっていますので、お料理好きの方にもぴったり。バス・トイレは別なので、のんびりお風呂タイムも楽しめるでしょう。また、雨の日でも浴室乾燥機を使えば、お洗濯も問題ありません。
通信設備面では、インターネットが無料で使えるので、月々の出費を抑えられるのも魅力です。また、BSアンテナ・CSアンテナがありCATVにも対応しているので、おうち時間も充実するでしょう(別途工事、BS・CS・CATVの契約料等が必要な場合あり)。
床暖房があり、冬も足元から暖かく快適に過ごすことができます。建物にはエレベーターがついているので、重い荷物があっても安心。共用部には宅配ボックスが設定されているので、不在の時にも荷物を受け取ることができます。また、ペット飼育の相談ができますので、あなたの大切な家族の一員も快適に暮らせるか、ぜひ確認してみてください。
このお部屋は2階以上に位置しているので、通行人や周囲の住人からの視線が気になりにくく、防犯面でも安心。建物のエントランスはオートロックがついており、インターホンにはTVモニタもついているため、相手の顔を確認してから来客対応することができます。
おしゃれなデザイナーズ物件!また、楽器相談が可能な物件となっているので、楽器演奏をお考えの方はぜひ相談してみてください。人気の南向きのお部屋。また、フローリングなのでお掃除もラクラク。キッチンはシステムキッチン仕様になっていますので、お料理好きの方にもぴったり。バス・トイレは別なので、のんびりお風呂タイムも楽しめるでしょう。また、雨の日でも浴室乾燥機を使えば、お洗濯も問題ありません。
通信設備面では、インターネットが無料で使えるので、月々の出費を抑えられるのも魅力です。また、BSアンテナ・CSアンテナがありCATVにも対応しているので、おうち時間も充実するでしょう(別途工事、BS・CS・CATVの契約料等が必要な場合あり)。
床暖房があり、冬も足元から暖かく快適に過ごすことができます。建物にはエレベーターがついているので、重い荷物があっても安心。共用部には宅配ボックスが設定されているので、不在の時にも荷物を受け取ることができます。また、ペット飼育の相談ができますので、あなたの大切な家族の一員も快適に暮らせるか、ぜひ確認してみてください。
お金・契約の情報
※「-」と表示されているものは、実際は料金が発生するものもございます。詳細はお問い合わせください。
| 家賃 | 34.3万円 | 管理費・共益費 | 2万円 |
|---|---|---|---|
| 敷金 | 34.3万円 | 礼金 | 17.15万円 |
| 入居決定でお祝い金最大100,000円 | |||
| 保証金 | - | 償却・敷引 | - |
| 住宅保険料 | - | 更新料 | - |
| 保証会社利用 | 必須 | 保証会社名 | - |
| 保証会社費用 | - | 保証会社備考 | 保証会社利用必 初回保証委託料:月額賃料等の50%、2年目以降:9600円/年 詳細はお問い合わせください。 |
| 契約形態 | 定期借家 | 契約期間 | 2年 |
| 入居・引渡期間 | 即時 | 現況 | - |
| 入居可能条件 | 楽器相談、ペット相談 | ||
| 契約備考 | 常駐管理 合計3.3万円(内訳:鍵交換代3.3万円) 室内清掃費用 105692円 口座振替事務手数料 月額110円 2LDK 二人入居可/ペット相談/楽器相談 定期借家2年 損保【1.8万円2年】 バストイレ別、バルコニー、エアコン、ガスコンロ対応、TVインターホン、浴室乾燥機、オートロック、室内洗濯置、シューズボックス、システムキッチン、南向き、追焚機能浴室、温水洗浄便座、エレベーター、洗面所独立、駐輪場、宅配ボックス、CATV、即入居可、閑静な住宅地、BS・CS、3口以上コンロ、防犯カメラ、ペット相談、24時間有人管理、分譲賃貸、保証人不要、全居室フローリング、ディンプルキー、ネット使用料不要、床暖房、築2年以内、24時間換気システム、楽器相談、フロントサービス、築3年以内、南面リビング、耐火構造、耐震構造、防犯ガラス、高気密住宅、2駅利用可、3駅以上利用可、駅前、防犯強化地域、駅徒歩5分以内、駅徒歩10分以内、耐風構造、タワー型マンション、高層階、24時間ゴミ出し可、敷地内ごみ置き場、築5年以内、東南向き、南西向き、日勤管理、LDK12畳以上、備付食器棚、都市ガス、南面バルコニー | ||
部屋の情報
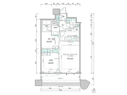
| 間取り | 2LDK | 専有面積 | 56.52m2 |
|---|---|---|---|
| 所在階 / 向き | 9階 / 南 | バルコニー面積 | - |
| 水道 / ガス | - | ||
| 設備 | バス・トイレ別、2階以上、オートロック、テレビドアホン、宅配ボックス、浴室乾燥機、追い焚き、インターネット対応、システムキッチン、エアコン、エレベーター、温水洗浄便座、南向き、バルコニー、フローリング、洗髪洗面化粧台、タワーマンション、床暖房、2口コンロ、コンロ:ガス、CATV、CSアンテナ、BSアンテナ、インターネット使用料無料、洗濯機:室内 | ||
| 当社物件ID | 135396571 | ||
建物の情報
| 建物名 | パークタワー勝どきサウス | ||
|---|---|---|---|
| 所在地 | 東京都中央区勝どき | ||
| 交通 | 都営大江戸線 勝どき駅 徒歩2分 東京メトロ有楽町線 月島駅 徒歩16分 都営大江戸線 築地市場駅 徒歩23分 | ||
| 階数 | 地下3地上58階建 | 総戸数 | - |
| 築年月 | 2023年08月 / 築3年 | エレベーター | あり |
| 駐車場 | なし | バイク置き場 | - |
| 駐輪場 | あり | 管理人/管理会社 | - |
| 周辺環境 | その他 ローソン 勝どき四丁目店(コンビニ)まで111m その他 セブンイレブン 勝どき5丁目店(コンビニ)まで477m | ||
| 建物種別 | マンション | 建物構造 | RC(鉄筋コンクリート) |
この部屋の取扱い不動産会社
| 会社名 | Ptif(株)(SUUMO経由) | ||
|---|---|---|---|
| 所在地 | 東京都港区北青山1-3-3 6階 | 交通 | - |
| 営業時間 | 9:00~21:00 | 定休日 | 年中無休です! |
| 免許番号 | 東京都知事107647 | 取引態様 | 仲介 |
| 不動産会社管理番号 | 100455506376 | 当社管理番号 | 89 |
| 所属団体 | (公社)東京都宅地建物取引業協会会員 | ||
| 公正取引協議会 | (公社)首都圏不動産公正取引協議会加盟 | ||
| 取扱い物件情報 | 物件詳細へ | ||
※各種情報と現状に差異がある場合は、現状優先となります。問い合わせをすることで、より詳しい条件、情報を確認する事ができます。
提供:Ptif(株)(SUUMO経由)
この物件が気になったら掲載期限まであと10日
パークタワー勝どきサウスの空き部屋一覧
全部で25の空き部屋があります。
パークタワー勝どきサウスに条件(家賃・エリア)が近い物件一覧
| 写真 | 家賃 管理費等 | 敷金 礼金 | 間取り 専有面積 | 築年数 | 最寄り駅 所在地 | キープ | 詳細 |
|---|---|---|---|---|---|---|---|
マンション プレール・ドゥーク両国Ⅳ(1LDK/3階) | |||||||
![]() | 20.8万円 1.1万円 | なし 20.8万円 | 1LDK 40.53m2 | 築2年 | 東京都大江戸線 両国駅 徒歩3分 総武・中央緩行線 両国駅 徒歩7分 東京都新宿線 森下駅(東京) 徒歩11分 東京都墨田区緑1丁目 | 詳細を見る | |
マンション FURVAL八丁堀(1LDK/1階) | |||||||
![]() | 26.9万円 1.1万円 | なし 26.9万円 | 1LDK 40.04m2 | 築2年 | 東京地下鉄日比谷線 八丁堀駅(東京) 徒歩4分 京葉線 八丁堀駅(東京) 徒歩4分 東京地下鉄東西線 茅場町駅 徒歩10分 東京都中央区新川2丁目 | 詳細を見る | |
マンション パークアクシス錦糸町ヴェール(1LDK/4階) | |||||||
![]() | 20.8万円 1.2万円 | 20.8万円 20.8万円 | 1LDK 43.45m2 | 築10年 | 総武・中央緩行線 錦糸町駅 徒歩12分 総武本線 錦糸町駅 徒歩12分 東京地下鉄半蔵門線 錦糸町駅 徒歩12分 東京都墨田区緑4丁目 | 詳細を見る | |
マンション ブランシエスタ上野(1LDK/12階) | |||||||
![]() | 25.6万円 1.5万円 | 25.6万円 なし | 1LDK 46.78m2 | 築1年 | 東京地下鉄日比谷線 上野駅 徒歩3分 東京地下鉄銀座線 上野駅 徒歩3分 山手線 上野駅 徒歩5分 東京都台東区東上野3丁目 | 詳細を見る | |
マンション ジーグランデ森下(1LDK/8階) | |||||||
![]() | 20.8万円 1万円 | なし なし | 1LDK 44.03m2 | 築1年 | 東京都新宿線 森下駅(東京) 徒歩5分 東京都大江戸線 両国駅 徒歩9分 総武・中央緩行線 両国駅 徒歩9分 東京都墨田区千歳3丁目 | 詳細を見る | |
マンション オーキッドレジデンス上野稲荷町(1LDK/4階) | |||||||
![]() | 21万円 1.5万円 | 21万円 なし | 1LDK 40.67m2 | 築6年 | 東京地下鉄銀座線 稲荷町駅(東京) 徒歩3分 東京都大江戸線 新御徒町駅 徒歩6分 山手線 上野駅 徒歩7分 東京都台東区東上野3丁目 | 詳細を見る | |
マンション パークキューブ浅草田原町(1SLDK/6階) | |||||||
![]() | 21.1万円 1万円 | 21.1万円 21.1万円 | 1SLDK 50m2 | 築20年 | 東京地下鉄銀座線 田原町駅(東京) 徒歩3分 つくばエクスプレス 浅草駅(つくばEXP) 徒歩7分 東京都浅草線 蔵前駅 徒歩8分 東京都台東区寿3丁目 | 詳細を見る | |
マンション バウスフラッツ蔵前(1LDK/9階) | |||||||
![]() | 21.4万円 1.2万円 | 21.4万円 21.4万円 | 1LDK 40.37m2 | 築1年 | 東京都浅草線 蔵前駅 徒歩2分 東京都大江戸線 蔵前駅 徒歩7分 東京都台東区蔵前4丁目 | 詳細を見る | |








