賃貸マンション
WORVE横浜伊勢佐木町の賃貸物件情報(1LDK/14階)
| 家賃 | 管理費等 | 敷金 | 礼金 | 間取り | 専有面積 |
|---|---|---|---|---|---|
| 16万円 | 1.5万円 | なし | なし | 1LDK | 37.74m2 |
入居決定でお祝い金最大100,000円
- 保証金
- -
- 償却・敷引
- -
- 築年数
- 築2年
- 所在階
- 14階
- 向き
- -
Point
室内設備は浴室乾燥機・洗面所独立など豊富に揃っており、過ごしやすいお部屋になっております。セキュリティ面は、TVインターホン・オートロックなど充実しているので、防犯対策もばっちりです。
提供:(株)未来企画桜木町店(SUUMO経由)

詳細情報 WORVE横浜伊勢佐木町
物件紹介
WORVE横浜伊勢佐木町はブルーライン伊勢佐木長者町駅から徒歩5分にあり、駅近で通勤通学に便利なマンションです。
このお部屋は2階以上に位置しているので、通行人や周囲の住人からの視線が気になりにくく、防犯面でも安心。建物のエントランスはオートロックがついており、インターホンにはTVモニタもついているため、相手の顔を確認してから来客対応することができます。
フローリングのお部屋なのでお掃除もラクラク。キッチンはシステムキッチン仕様になっていますので、お料理好きの方にもぴったり。バス・トイレは別なので、のんびりお風呂タイムも楽しめるでしょう。また、雨の日でも浴室乾燥機を使えば、お洗濯も問題ありません。
通信設備面では、インターネット接続が可能です。また、BSアンテナ・CSアンテナもありますので、おうち時間も充実するでしょう(別途工事、契約料が必要な場合あり)。
建物にはエレベーターがついているので、重い荷物があっても安心。共用部には宅配ボックスが設定されているので、不在の時にも荷物を受け取ることができます。
このお部屋は2階以上に位置しているので、通行人や周囲の住人からの視線が気になりにくく、防犯面でも安心。建物のエントランスはオートロックがついており、インターホンにはTVモニタもついているため、相手の顔を確認してから来客対応することができます。
フローリングのお部屋なのでお掃除もラクラク。キッチンはシステムキッチン仕様になっていますので、お料理好きの方にもぴったり。バス・トイレは別なので、のんびりお風呂タイムも楽しめるでしょう。また、雨の日でも浴室乾燥機を使えば、お洗濯も問題ありません。
通信設備面では、インターネット接続が可能です。また、BSアンテナ・CSアンテナもありますので、おうち時間も充実するでしょう(別途工事、契約料が必要な場合あり)。
建物にはエレベーターがついているので、重い荷物があっても安心。共用部には宅配ボックスが設定されているので、不在の時にも荷物を受け取ることができます。
お金・契約の情報
※「-」と表示されているものは、実際は料金が発生するものもございます。詳細はお問い合わせください。
| 家賃 | 16万円 | 管理費・共益費 | 1.5万円 |
|---|---|---|---|
| 敷金 | なし | 礼金 | なし |
| 入居決定でお祝い金最大100,000円 | |||
| 保証金 | - | 償却・敷引 | - |
| 住宅保険料 | - | 更新料 | - |
| 保証会社利用 | 利用可 | 保証会社名 | - |
| 保証会社費用 | - | 保証会社備考 | 保証会社利用可 総賃料の50% 更新時1万円要 |
| 契約形態 | 定期借家 | 契約期間 | 2年 |
| 入居・引渡期間 | 即時 | 現況 | - |
| 契約備考 | 全物件初期費用分割可能。当店は地元で30年営業している不動産総合会社です!全業者の掲載されている物件を一括してご紹介はもちろん、ネット掲載前の未公開物件が店内には多数ございます!貸主との距離が近い物件につきましては申込後の家賃交渉など全力で交渉させて頂きます!また関東で最も安い引越し業者と提携しておりますのでお申し込み時にご紹介も可能です!お部屋の事なら些細な事でもお気軽にご相談下さい! 合計3.85万円(内訳:Goodプレミアムα(24Hサポートのみ)1.21万円Goodプレミアムα登録料0.22万円鍵交換代2.42万円) 1LDK 定期借家2年 バストイレ別、バルコニー、エアコン、ガスコンロ対応、フローリング、TVインターホン、浴室乾燥機、オートロック、室内洗濯置、陽当り良好、シューズボックス、システムキッチン、温水洗浄便座、エレベーター、洗面所独立、2口コンロ、宅配ボックス、光ファイバー、外壁タイル張り、閑静な住宅地、防犯カメラ、照明付、仲手0.55ヶ月、CS、眺望良好、コインランドリー、24時間換気システム、エレベーター2基、都市ガス、BS | ||
部屋の情報
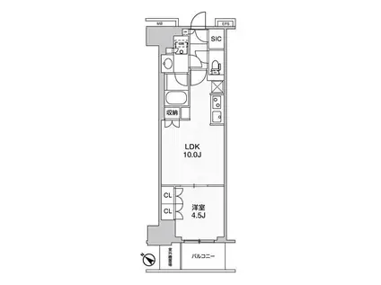
| 間取り | 1LDK | 専有面積 | 37.74m2 |
|---|---|---|---|
| 所在階 / 向き | 14階 / - | バルコニー面積 | - |
| 水道 / ガス | - | ||
| 設備 | バス・トイレ別、2階以上、オートロック、テレビドアホン、宅配ボックス、浴室乾燥機、インターネット対応、システムキッチン、エアコン、エレベーター、温水洗浄便座、バルコニー、フローリング、洗髪洗面化粧台、2口コンロ、コンロ:ガス、CSアンテナ、BSアンテナ、洗濯機:室内 | ||
| 当社物件ID | 159078849 | ||
建物の情報
| 建物名 | WORVE横浜伊勢佐木町 | ||
|---|---|---|---|
| 所在地 | 神奈川県横浜市中区伊勢佐木町 | ||
| 交通 | ブルーライン 伊勢佐木長者町駅 徒歩5分 京急本線 日ノ出町駅 徒歩7分 JR根岸線 関内駅 徒歩9分 | ||
| 階数 | 15階建 | 総戸数 | 218戸 |
| 築年月 | 2025年02月 / 築2年 | エレベーター | あり |
| 駐車場 | なし | バイク置き場 | - |
| 駐輪場 | - | 管理人/管理会社 | - |
| 周辺環境 | その他 ドン・キホーテ 伊勢佐木町店(その他)まで94m その他 エディオン横浜店(その他)まで301m その他 Seria(セリア) 横浜曙町店(その他)まで311m その他 サミットストア 横浜曙町店(スーパー)まで311m その他 TSUTAYA 関内羽衣町店(レンタルビデオ)まで441m その他 ツルハドラッグ 横浜日ノ出町駅前店(ドラッグストア)まで604m | ||
| 建物種別 | マンション | 建物構造 | RC(鉄筋コンクリート) |
この部屋の取扱い不動産会社
| 会社名 | (株)未来企画本店(SUUMO経由) | ||
|---|---|---|---|
| 所在地 | 神奈川県横浜市中区宮川町2-55-1 ルリエ横浜宮川町1階 | 交通 | - |
| 営業時間 | 10:00~19:00 | 定休日 | 年末年始、水曜日不定休 |
| 免許番号 | 神奈川県知事17616 | 取引態様 | 仲介 |
| 不動産会社管理番号 | 100478591230 | 当社管理番号 | 89 |
| 所属団体 | (公社)神奈川県宅地建物取引業協会会員 | ||
| 公正取引協議会 | (公社)首都圏不動産公正取引協議会加盟 | ||
| 取扱い物件情報 | 物件詳細へ | ||
※各種情報と現状に差異がある場合は、現状優先となります。問い合わせをすることで、より詳しい条件、情報を確認する事ができます。
提供:(株)未来企画本店(SUUMO経由)
この物件が気になったら掲載期限まであと10日
WORVE横浜伊勢佐木町の空き部屋一覧
全部で41の空き部屋があります。
WORVE横浜伊勢佐木町に条件(家賃・エリア)が近い物件一覧
| 写真 | 家賃 管理費等 | 敷金 礼金 | 間取り 専有面積 | 築年数 | 最寄り駅 所在地 | キープ | 詳細 |
|---|---|---|---|---|---|---|---|
アパート ヒュッゲ(3LDK/3階) | |||||||
![]() | 19.4万円 4,000円 | 19.4万円 19.4万円 | 3LDK 70m2 | 新築 | 小田急線 登戸駅 徒歩10分 JR南武線 登戸駅 徒歩10分 小田急線 向ケ丘遊園駅 徒歩13分 神奈川県川崎市多摩区登戸 | 詳細を見る | |
アパート D PAINA 小杉陣屋町III(1LDK/3階) | |||||||
![]() | 16万円 5,000円 | 16万円 16万円 | 1LDK 43.33m2 | 新築 | 東急東横線 新丸子駅 徒歩10分 JR南武線 武蔵小杉駅 徒歩11分 東急東横線 武蔵小杉駅 徒歩13分 神奈川県川崎市中原区小杉陣屋町 | 詳細を見る | |
マンション ピースコート登戸IV(1LDK/1階) | |||||||
![]() | 12.9万円 5,000円 | 12.9万円 12.9万円 | 1LDK 40.99m2 | 築3年 | JR南武線 登戸駅 徒歩10分 小田急線 登戸駅 徒歩10分 小田急線 向ケ丘遊園駅 徒歩12分 神奈川県川崎市多摩区登戸 | 詳細を見る | |
マンション パークタワー向ケ丘遊園(2LDK/11階) | |||||||
![]() | 21.5万円 1.5万円 | 21.5万円 21.5万円 | 2LDK 56.28m2 | 築1年 | 小田急線 向ケ丘遊園駅 徒歩2分 JR南武線 登戸駅 徒歩7分 小田急線 和泉多摩川駅 徒歩21分 神奈川県川崎市多摩区登戸 | 詳細を見る | |
マンション RIS中央林間(3LDK/2階) | |||||||
![]() | 12.8万円 5,000円 | 12.8万円 12.8万円 | 3LDK 65.1m2 | 築35年 | 小田急電鉄江ノ島線 中央林間駅 徒歩10分 神奈川県大和市中央林間1丁目 | 詳細を見る | |
マンション ベルヴィル(1LDK/4階) | |||||||
![]() | 21.4万円 1万円 | なし 42.8万円 | 1LDK 63.85m2 | 新築 | 小田急線 向ケ丘遊園駅 徒歩3分 小田急線 登戸駅 徒歩10分 JR南武線 登戸駅 徒歩10分 神奈川県川崎市多摩区登戸 | 詳細を見る | |
マンション グランヴィラ川崎(2LDK/1階) | |||||||
![]() | 19万円 8,000円 | 19万円 38万円 | 2LDK 68.82m2 | 新築 | 京急本線 八丁畷駅 徒歩6分 JR京浜東北線 川崎駅 徒歩9分 京急本線 京急川崎駅 徒歩12分 神奈川県川崎市川崎区日進町 | 詳細を見る | |
マンション PREMIUM MAISON光プレミアムメゾンヒカリ(3LDK/2階) | |||||||
![]() | 24.9万円 9,500円 | 24.9万円 なし | 3LDK 77.79m2 | 築1年 | 東急田園都市線 梶が谷駅 徒歩18分 JR南武線 武蔵新城駅 徒歩29分 JR南武線 武蔵溝ノ口駅 徒歩30分 神奈川県川崎市高津区新作 | 詳細を見る | |








