賃貸マンション
WORVE横浜伊勢佐木町の賃貸物件情報(1LDK/10階)
| 家賃 | 管理費等 | 敷金 | 礼金 | 間取り | 専有面積 |
|---|---|---|---|---|---|
| 15.5万円 | 1.5万円 | 15.5万円 | なし | 1LDK | 36.63m2 |
入居決定でお祝い金最大100,000円
- 保証金
- -
- 償却・敷引
- -
- 築年数
- 築2年
- 所在階
- 10階
- 向き
- 南西
Point
室内・共用部ともに充実の設備と仕様。トレーニングジムやワークスペースもあり、入居者様それぞれのライフスタイルに合わせてご利用いただけます☆【オンライン内見・相談可】お気軽にお問い合わせください☆
提供:(株)みらい不動産(SUUMO経由)

詳細情報 WORVE横浜伊勢佐木町
物件紹介
WORVE横浜伊勢佐木町はブルーライン伊勢佐木長者町駅から徒歩5分にあり、駅近で通勤通学に便利なマンションです。
このお部屋は2階以上に位置しているので、通行人や周囲の住人からの視線が気になりにくく、防犯面でも安心。建物のエントランスはオートロックがついており、インターホンにはTVモニタもついているため、相手の顔を確認してから来客対応することができます。
人気の南向きのお部屋。また、フローリングなのでお掃除もラクラク。キッチンはシステムキッチン仕様になっていますので、お料理好きの方にもぴったり。バス・トイレは別なので、のんびりお風呂タイムも楽しめるでしょう。また、雨の日でも浴室乾燥機を使えば、お洗濯も問題ありません。
通信設備面では、インターネットが無料で使えるので、月々の出費を抑えられるのも魅力です。また、BSアンテナ・CSアンテナがありCATVにも対応しているので、おうち時間も充実するでしょう(別途工事、BS・CS・CATVの契約料等が必要な場合あり)。
建物にはエレベーターがついているので、重い荷物があっても安心。共用部には宅配ボックスが設定されているので、不在の時にも荷物を受け取ることができます。
このお部屋は2階以上に位置しているので、通行人や周囲の住人からの視線が気になりにくく、防犯面でも安心。建物のエントランスはオートロックがついており、インターホンにはTVモニタもついているため、相手の顔を確認してから来客対応することができます。
人気の南向きのお部屋。また、フローリングなのでお掃除もラクラク。キッチンはシステムキッチン仕様になっていますので、お料理好きの方にもぴったり。バス・トイレは別なので、のんびりお風呂タイムも楽しめるでしょう。また、雨の日でも浴室乾燥機を使えば、お洗濯も問題ありません。
通信設備面では、インターネットが無料で使えるので、月々の出費を抑えられるのも魅力です。また、BSアンテナ・CSアンテナがありCATVにも対応しているので、おうち時間も充実するでしょう(別途工事、BS・CS・CATVの契約料等が必要な場合あり)。
建物にはエレベーターがついているので、重い荷物があっても安心。共用部には宅配ボックスが設定されているので、不在の時にも荷物を受け取ることができます。
お金・契約の情報
※「-」と表示されているものは、実際は料金が発生するものもございます。詳細はお問い合わせください。
| 家賃 | 15.5万円 | 管理費・共益費 | 1.5万円 |
|---|---|---|---|
| 敷金 | 15.5万円 | 礼金 | なし |
| 入居決定でお祝い金最大100,000円 | |||
| 保証金 | - | 償却・敷引 | - |
| 住宅保険料 | - | 更新料 | - |
| 保証会社利用 | 必須 | 保証会社名 | - |
| 保証会社費用 | - | 保証会社備考 | 保証会社利用必 初回保証料:総賃料の50% 継続保証料:総賃料の1% |
| 契約形態 | 定期借家 | 契約期間 | 2年 |
| 入居・引渡期間 | 即時 | 現況 | - |
| 契約備考 | 未入居/退去時ルームクリーニング代・エアコンクリーニング代有、違約金:契約開始日より1年未満の解約は家賃・共益費の1ヶ月分、大手法人:保証会社免除の場合敷金1ヶ月(家賃のみ)、駐輪場:330円/月、バイク置き場:3300円/月、駐車場:25300円27500円/月、初期費用分割可能(スムーズ・クレジット決済) 合計4.4万円(内訳:Goodプレミアムa登録料0.33万円Goodプレミアムa1.65万円鍵交換代2.42万円) 更新料 新賃料1.00ヶ月分 1LDK 二人入居可 定期借家2年 損保【2.8万円2年】 バストイレ別、バルコニー、エアコン、ガスコンロ対応、クロゼット、フローリング、シャワー付洗面台、TVインターホン、浴室乾燥機、オートロック、室内洗濯置、システムキッチン、南向き、温水洗浄便座、脱衣所、エレベーター、洗面所独立、洗面化粧台、2口コンロ、駐輪場、宅配ボックス、外壁タイル張り、即入居可、BS・CS、防犯カメラ、全居室収納、全居室洋室、保証人不要、バイク置場、24時間緊急通報システム、玄関ホール、2沿線利用可、駅まで平坦、ネット使用料不要、ダブルロックキー、築2年以内、24時間換気システム、クロゼット2ヶ所、平坦地、人感照明センサー、エレベーター2基、2駅利用可、3駅以上利用可、3沿線以上利用可、駅徒歩5分以内、駅徒歩10分以内、高層階、敷地内ごみ置き場、都市ガス、南面バルコニー、シューズWIC、保証会社利用可、IT重説対応物件、初期費用カード決済可 | ||
部屋の情報
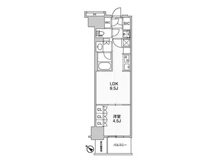
| 間取り | 1LDK | 専有面積 | 36.63m2 |
|---|---|---|---|
| 所在階 / 向き | 10階 / 南西 | バルコニー面積 | - |
| 水道 / ガス | - | ||
| 設備 | バス・トイレ別、2階以上、オートロック、テレビドアホン、宅配ボックス、浴室乾燥機、インターネット対応、システムキッチン、エアコン、エレベーター、温水洗浄便座、南向き、バルコニー、フローリング、洗髪洗面化粧台、2口コンロ、コンロ:ガス、CSアンテナ、BSアンテナ、インターネット使用料無料、洗濯機:室内 | ||
| 当社物件ID | 160500054 | ||
建物の情報
| 建物名 | WORVE横浜伊勢佐木町 | ||
|---|---|---|---|
| 所在地 | 神奈川県横浜市中区伊勢佐木町 | ||
| 交通 | ブルーライン 伊勢佐木長者町駅 徒歩5分 京急本線 日ノ出町駅 徒歩7分 JR京浜東北線 関内駅 徒歩9分 | ||
| 階数 | 15階建 | 総戸数 | - |
| 築年月 | 2025年02月 / 築2年 | エレベーター | あり |
| 駐車場 | 空有 25300円 | バイク置き場 | あり |
| 駐輪場 | あり | 管理人/管理会社 | - |
| 周辺環境 | その他 関東学院大学 横浜・関内キャンパス(大学・短大)まで852m その他 ピアゴイセザキ店(スーパー)まで23m その他 ドン・キホーテ伊勢佐木町店(その他)まで69m その他 ファミリーマート長者町店(コンビニ)まで187m その他 マツモトキヨシ 伊勢佐木二丁目店(ドラッグストア)まで330m その他 伊勢佐木モール(その他)まで613m | ||
| 建物種別 | マンション | 建物構造 | RC(鉄筋コンクリート) |
この部屋の取扱い不動産会社
| 会社名 | アルプスの賃貸関内南口支店(株)アルプス建設(SUUMO経由) | ||
|---|---|---|---|
| 所在地 | 神奈川県横浜市中区翁町1-1-6 産友パークビル2F | 交通 | - |
| 営業時間 | 10:00~18:30(事前予約で時間外も対応可) | 定休日 | 年末年始 |
| 免許番号 | 神奈川県知事14677 | 取引態様 | 仲介 |
| 不動産会社管理番号 | 100491452563 | 当社管理番号 | 89 |
| 所属団体 | (公社)神奈川県宅地建物取引業協会会員 | ||
| 公正取引協議会 | (公社)首都圏不動産公正取引協議会加盟 | ||
| 取扱い物件情報 | 物件詳細へ | ||
※各種情報と現状に差異がある場合は、現状優先となります。問い合わせをすることで、より詳しい条件、情報を確認する事ができます。
提供:アルプスの賃貸関内南口支店(株)アルプス建設(SUUMO経由)
この物件が気になったら掲載期限まであと10日
WORVE横浜伊勢佐木町の空き部屋一覧
全部で36の空き部屋があります。
WORVE横浜伊勢佐木町に条件(家賃・エリア)が近い物件一覧
| 写真 | 家賃 管理費等 | 敷金 礼金 | 間取り 専有面積 | 築年数 | 最寄り駅 所在地 | キープ | 詳細 |
|---|---|---|---|---|---|---|---|
一戸建て 小田急電鉄小田原線 柿生駅 徒歩19分 築34年(4LDK) | |||||||
![]() | 17万円 なし | 17万円 17万円 | 4LDK 98.01m2 | 築34年 | 小田急電鉄小田原線 柿生駅 徒歩19分 神奈川県川崎市麻生区王禅寺東5丁目 | 詳細を見る | |
マンション BRANZ中央林間(3LDK/7階) | |||||||
![]() | 24.2万円 1.5万円 | 24.2万円 24.2万円 | 3LDK 71.54m2 | 築1年 | 小田急江ノ島線 中央林間駅 徒歩6分 東急田園都市線 中央林間駅 徒歩7分 小田急江ノ島線 南林間駅 徒歩18分 神奈川県大和市中央林間 | 詳細を見る | |
マンション リビオンK(1LDK/2階) | |||||||
![]() | 13.9万円 6,000円 | 13.9万円 13.9万円 | 1LDK 41.1m2 | 築2年 | 東急東横線 元住吉駅 徒歩15分 JR南武線 平間駅 徒歩15分 東急東横線 武蔵小杉駅 徒歩40分 神奈川県川崎市幸区北加瀬 | 詳細を見る | |
アパート ジュメオス(1LDK/3階) | |||||||
![]() | 11.9万円 7,000円 | なし 17.85万円 | 1LDK 43.72m2 | 築12年 | 小田急線 百合ケ丘駅 徒歩9分 小田急線 新百合ケ丘駅 徒歩17分 神奈川県川崎市麻生区千代ケ丘 | 詳細を見る | |
アパート ディー パイナ 登戸2(1LDK/2階) | |||||||
![]() | 16.6万円 5,500円 | なし 33.2万円 | 1LDK 40.87m2 | 新築 | 小田急線 向ケ丘遊園駅 徒歩2分 JR南武線 登戸駅 徒歩5分 神奈川県川崎市多摩区登戸 | 詳細を見る | |
マンション 生田1丁目メゾン(2LDK/2階) | |||||||
![]() | 16.6万円 1万円 | 16.6万円 16.6万円 | 2LDK 62.08m2 | 新築 | JR南武線 稲田堤駅 徒歩15分 JR南武線 中野島駅 徒歩18分 京王相模原線 京王稲田堤駅 徒歩18分 神奈川県川崎市多摩区生田 | 詳細を見る | |
アパート クレイノFOR BEAUTY(1K/3階) | |||||||
![]() | 9.8万円 5,500円 | なし 9.8万円 | 1K 22.2m2 | 築9年 | 京急大師線 川崎大師駅 徒歩5分 京急大師線 鈴木町駅 徒歩11分 京急大師線 東門前駅 徒歩15分 神奈川県川崎市川崎区大師駅前 | 詳細を見る | |
アパート 蒼の杜 空(2LDK/2階) | |||||||
![]() | 12.4万円 6,000円 | なし 18.6万円 | 2LDK 60.13m2 | 築6年 | ブルーライン 下飯田駅 徒歩14分 ブルーライン 湘南台駅 徒歩15分 相鉄いずみ野線 ゆめが丘駅 徒歩15分 神奈川県藤沢市高倉 | 詳細を見る | |








