賃貸マンション
ルーブル荻窪伍番館の賃貸物件情報(1K/2階)
| 家賃 | 管理費等 | 敷金 | 礼金 | 間取り | 専有面積 |
|---|---|---|---|---|---|
| 8万円 | 1.05万円 | なし | 8万円 | 1K | 20.35m2 |
入居決定でお祝い金最大100,000円
- 保証金
- -
- 償却・敷引
- -
- 築年数
- 築17年
- 所在階
- 2階
- 向き
- 南
Point
《フリーランス・個人事業主・生活保護・無職》その他ご事情がある方など、まずはお気軽にご相談ください!●クレジット決済・契約金分割可能
提供:U-style 合同会社CheckPoint(SUUMO経由)

詳細情報 ルーブル荻窪伍番館
物件紹介
ルーブル荻窪伍番館はJR中央線荻窪駅から徒歩7分にあり、駅近で通勤通学に便利なマンションです。
このお部屋は2階以上に位置しているので、通行人や周囲の住人からの視線が気になりにくく、防犯面でも安心。建物のエントランスはオートロックがついており、インターホンにはTVモニタもついているため、相手の顔を確認してから来客対応することができます。
人気の南向き・フローリングのお部屋。角部屋でもあるため、周囲の居住者の生活音も気になりにくい場所です。キッチンはシステムキッチン仕様になっていますので、お料理好きの方にもぴったり。バス・トイレは別なので、のんびりお風呂タイムも楽しめるでしょう。また、雨の日でも浴室乾燥機を使えば、お洗濯も問題ありません。
通信設備面ではBSアンテナ・CSアンテナがありますので、おうち時間も充実するでしょう(別途工事、契約料が必要な場合あり)。
建物にはエレベーターがついているので、重い荷物があっても安心。共用部には宅配ボックスが設定されているので、不在の時にも荷物を受け取ることができます。
このお部屋は2階以上に位置しているので、通行人や周囲の住人からの視線が気になりにくく、防犯面でも安心。建物のエントランスはオートロックがついており、インターホンにはTVモニタもついているため、相手の顔を確認してから来客対応することができます。
人気の南向き・フローリングのお部屋。角部屋でもあるため、周囲の居住者の生活音も気になりにくい場所です。キッチンはシステムキッチン仕様になっていますので、お料理好きの方にもぴったり。バス・トイレは別なので、のんびりお風呂タイムも楽しめるでしょう。また、雨の日でも浴室乾燥機を使えば、お洗濯も問題ありません。
通信設備面ではBSアンテナ・CSアンテナがありますので、おうち時間も充実するでしょう(別途工事、契約料が必要な場合あり)。
建物にはエレベーターがついているので、重い荷物があっても安心。共用部には宅配ボックスが設定されているので、不在の時にも荷物を受け取ることができます。
お金・契約の情報
※「-」と表示されているものは、実際は料金が発生するものもございます。詳細はお問い合わせください。
| 家賃 | 8万円 | 管理費・共益費 | 1.05万円 |
|---|---|---|---|
| 敷金 | なし | 礼金 | 8万円 |
| 入居決定でお祝い金最大100,000円 | |||
| 保証金 | - | 償却・敷引 | - |
| 住宅保険料 | - | 更新料 | - |
| 保証会社利用 | 必須 | 保証会社名 | - |
| 保証会社費用 | - | 保証会社備考 | 保証会社利用必 初回保証料30%(家賃+管理費)年間保証料10,000円 ※学生初回保証料9,000円 |
| 契約形態 | - | 契約期間 | - |
| 入居・引渡期間 | - | 現況 | - |
| 契約備考 | 合計4.75万円(内訳:TFDclub2万円鍵交換代2.75万円) 更新料 新賃料1.00ヶ月分 室内清掃費用 55000円 1K 普通借家2年 損保【1.8万円2年】 バストイレ別、バルコニー、エアコン、ガスコンロ対応、クロゼット、フローリング、TVインターホン、浴室乾燥機、オートロック、室内洗濯置、システムキッチン、南向き、角住戸、温水洗浄便座、エレベーター、2口コンロ、駐輪場、宅配ボックス、外壁タイル張り、2面採光、敷金不要、防犯カメラ、照明付、分譲賃貸、保証人不要、2沿線利用可、ディンプルキー、CS、ダブルロックキー、24時間換気システム、2駅利用可、3駅以上利用可、駅徒歩10分以内、24時間ゴミ出し可、敷地内ごみ置き場、都市ガス、BS、保証会社利用可、初期費用カード決済可 入居日:'26年2月下旬 | ||
部屋の情報
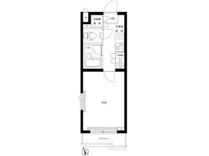
| 間取り | 1K | 専有面積 | 20.35m2 |
|---|---|---|---|
| 所在階 / 向き | 2階 / 南 | バルコニー面積 | - |
| 水道 / ガス | - | ||
| 設備 | バス・トイレ別、2階以上、オートロック、テレビドアホン、宅配ボックス、浴室乾燥機、システムキッチン、エアコン、エレベーター、温水洗浄便座、南向き、角部屋、バルコニー、フローリング、2口コンロ、コンロ:ガス、CSアンテナ、BSアンテナ、洗濯機:室内 | ||
| 当社物件ID | 160023839 | ||
建物の情報
| 建物名 | ルーブル荻窪伍番館 | ||
|---|---|---|---|
| 所在地 | 東京都杉並区上荻 | ||
| 交通 | JR中央線 荻窪駅 徒歩7分 JR総武線 西荻窪駅 徒歩18分 JR中央線 阿佐ケ谷駅 徒歩29分 | ||
| 階数 | 地下1地上5階建 | 総戸数 | - |
| 築年月 | 2009年11月 / 築17年 | エレベーター | あり |
| 駐車場 | なし | バイク置き場 | - |
| 駐輪場 | あり | 管理人/管理会社 | - |
| 周辺環境 | その他 まいばすけっと 南荻窪4丁目店(スーパー)まで462m その他 まいばすけっと 上荻1丁目店(スーパー)まで521m その他 OK 荻窪店(スーパー)まで643m その他 ファミリーマート 杉並宮前三丁目店(コンビニ)まで1123m その他 西荻みなみ薬局(ドラッグストア)まで1275m その他 タカギ薬局(ドラッグストア)まで1271m | ||
| 建物種別 | マンション | 建物構造 | RC(鉄筋コンクリート) |
この部屋の取扱い不動産会社
| 会社名 | U-style 合同会社CheckPoint(SUUMO経由) | ||
|---|---|---|---|
| 所在地 | 東京都新宿区高田馬場3-2-14 | 交通 | - |
| 営業時間 | 10:00~19:00 | 定休日 | 水曜日 |
| 免許番号 | 東京都知事106795 | 取引態様 | 仲介 |
| 不動産会社管理番号 | 100477066773 | 当社管理番号 | 89 |
| 所属団体 | (公社)全日本不動産協会東京都本部会員 | ||
| 公正取引協議会 | (公社)首都圏不動産公正取引協議会加盟 | ||
| 取扱い物件情報 | 物件詳細へ | ||
※各種情報と現状に差異がある場合は、現状優先となります。問い合わせをすることで、より詳しい条件、情報を確認する事ができます。
提供:U-style 合同会社CheckPoint(SUUMO経由)
この物件が気になったら掲載期限まであと10日
ルーブル荻窪伍番館に条件(家賃・エリア)が近い物件一覧
| 写真 | 家賃 管理費等 | 敷金 礼金 | 間取り 専有面積 | 築年数 | 最寄り駅 所在地 | キープ | 詳細 |
|---|---|---|---|---|---|---|---|
マンション アルジオーネ池尻(1K/2階) | |||||||
![]() | 9.8万円 4,000円 | 9.8万円 9.8万円 | 1K 22.24m2 | 築21年 | 東急田園都市線 池尻大橋駅 徒歩5分 東急田園都市線 三軒茶屋駅 徒歩18分 京王井の頭線 駒場東大前駅 徒歩20分 東京都世田谷区池尻 | 詳細を見る | |
マンション ヒルトップ野沢(1LDK/1階) | |||||||
![]() | 12.3万円 1万円 | 12.3万円 12.3万円 | 1LDK 42.99m2 | 築36年 | 東急田園都市線 駒沢大学駅 徒歩12分 東急田園都市線 三軒茶屋駅 徒歩16分 東急東横線 学芸大学駅 徒歩21分 東京都世田谷区野沢 | 詳細を見る | |
マンション ヒルズ吉祥寺(1K/1階) | |||||||
![]() | 9.9万円 5,000円 | なし 4.95万円 | 1K 20.5m2 | 築23年 | JR中央線 吉祥寺駅 徒歩5分 JR総武線 吉祥寺駅 徒歩5分 京王井の頭線 井の頭公園駅 徒歩11分 東京都武蔵野市吉祥寺本町 | 詳細を見る | |
アパート ハイツ早見(1K/2階) | |||||||
![]() | 6.8万円 なし | 6.8万円 6.8万円 | 1K 30.5m2 | 築40年 | 東京メトロ有楽町線 地下鉄赤塚駅 徒歩7分 東京メトロ副都心線 地下鉄赤塚駅 徒歩7分 東武東上線 下赤塚駅 徒歩9分 東京都練馬区北町 | 詳細を見る | |
マンション レユシール(1LDK/3階) | |||||||
![]() | 12.5万円 7,000円 | なし 18.75万円 | 1LDK 40.58m2 | 築14年 | 西武新宿線 下井草駅 徒歩4分 西武新宿線 井荻駅 徒歩8分 西武池袋線 富士見台駅 徒歩20分 東京都杉並区井草 | 詳細を見る | |
アパート 白さぎ荘(ワンルーム/2階) | |||||||
![]() | 5.5万円 なし | 5.5万円 5.5万円 | ワンルーム 15m2 | 築47年 | 東急田園都市線 三軒茶屋駅 徒歩10分 東急田園都市線 駒沢大学駅 徒歩10分 東京都世田谷区上馬2丁目 | 詳細を見る | |
マンション MIND KUGAYAMA(ワンルーム/4階) | |||||||
![]() | 9万円 1.5万円 | 9万円 9万円 | ワンルーム 20.13m2 | 築1年 | 京王井の頭線 久我山駅 徒歩6分 JR中央線 西荻窪駅 徒歩26分 京王線 千歳烏山駅 徒歩32分 東京都杉並区久我山 | 詳細を見る | |







