賃貸マンション
エトワール上連雀の賃貸物件情報(ワンルーム/1階)
| 家賃 | 管理費等 | 敷金 | 礼金 | 間取り | 専有面積 |
|---|---|---|---|---|---|
| 5.7万円 | 5,000円 | なし | 8.55万円 | ワンルーム | 16.25m2 |
入居決定でお祝い金最大100,000円
- 保証金
- -
- 償却・敷引
- -
- 築年数
- 築39年
- 所在階
- 1階
- 向き
- 東
Point
当社管理のベルシード、ベルメントシリーズを含め、他社様の物件もお取り扱いしております。ご案内は現地待ち合わせとなります。当社管理物件は全てWEBにて申込が可能となります。お気軽にご相談ください。
提供:(株)DoDoNPA日暮里店(SUUMO経由)

詳細情報 エトワール上連雀
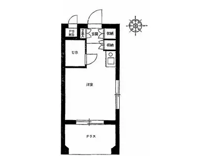
物件紹介
エトワール上連雀はJR中央線三鷹駅から徒歩10分にあり、駅近で通勤通学に便利なマンションです。
このお部屋のインターホンにはTVモニタがついているため、相手の顔を確認してから来客対応することができます。
人気の角部屋で周囲の居住者の生活音も気になりにくく、また、フローリングのお部屋なのでお掃除もラクラク。
通信設備面ではCATVに対応しているので、おうち時間も充実するでしょう(別途工事、契約料が必要な場合あり)。
このお部屋のインターホンにはTVモニタがついているため、相手の顔を確認してから来客対応することができます。
人気の角部屋で周囲の居住者の生活音も気になりにくく、また、フローリングのお部屋なのでお掃除もラクラク。
通信設備面ではCATVに対応しているので、おうち時間も充実するでしょう(別途工事、契約料が必要な場合あり)。
お金・契約の情報
※「-」と表示されているものは、実際は料金が発生するものもございます。詳細はお問い合わせください。
| 家賃 | 5.7万円 | 管理費・共益費 | 5,000円 |
|---|---|---|---|
| 敷金 | なし | 礼金 | 8.55万円 |
| 入居決定でお祝い金最大100,000円 | |||
| 保証金 | - | 償却・敷引 | - |
| 住宅保険料 | - | 更新料 | - |
| 保証会社利用 | 必須 | 保証会社名 | - |
| 保証会社費用 | - | 保証会社備考 | 保証会社利用必 初回契約時:50%、[リロ:月1,000円][JRAG:1万円/年(月330円)] [カーサ:月1%][ジャックス:月額保証料1%]※外国籍の方は敷金1ヶ月追加となります。 |
| 契約形態 | - | 契約期間 | - |
| 入居・引渡期間 | 即時 | 現況 | - |
| 契約備考 | 合計4.95万円(内訳:鍵交換費用(必須)33000円/室内抗菌代(必須)16500円) ベルプラス(必須)2200円/月 ワンルーム 単身者可/事務所利用不可/ルームシェア相談 普通借家2年 エアコン、クロゼット、フローリング、TVインターホン、シューズボックス、角住戸、駐輪場、CATV、即入居可、2面採光、敷金不要、IHクッキングヒーター、分譲賃貸、保証人不要、仲介手数料不要、二人入居相談、2沿線利用可、テラス、ルームシェア相談、3駅以上利用可、駅徒歩10分以内、敷地内ごみ置き場、当社管理物件、都市ガス、IT重説対応物件、LGBTフレンドリー | ||
部屋の情報
| 間取り | ワンルーム | 専有面積 | 16.25m2 |
|---|---|---|---|
| 所在階 / 向き | 1階 / 東 | バルコニー面積 | - |
| 水道 / ガス | - | ||
| 設備 | テレビドアホン、エアコン、角部屋、フローリング、コンロ:IH、CATV | ||
| 当社物件ID | 114081427 | ||
建物の情報
| 建物名 | エトワール上連雀 | ||
|---|---|---|---|
| 所在地 | 東京都三鷹市上連雀 | ||
| 交通 | JR中央線 三鷹駅 徒歩10分 JR中央線 武蔵境駅 徒歩15分 西武多摩川線 新小金井駅 徒歩39分 | ||
| 階数 | 4階建 | 総戸数 | 40戸 |
| 築年月 | 1987年03月 / 築39年 | エレベーター | - |
| 駐車場 | なし | バイク置き場 | - |
| 駐輪場 | あり | 管理人/管理会社 | - |
| 周辺環境 | その他 三平ストア三鷹店(その他)まで884m | ||
| 建物種別 | マンション | 建物構造 | RC(鉄筋コンクリート) |
この部屋の取扱い不動産会社
| 会社名 | (株)ベルテックス(SUUMO経由) | ||
|---|---|---|---|
| 所在地 | 東京都新宿区西新宿6-8-1 住友不動産新宿オークタワー9階 | 交通 | - |
| 営業時間 | 10:00~18:30 | 定休日 | 毎週水曜日 |
| 免許番号 | 国土交通大臣9910 | 取引態様 | 貸主 |
| 不動産会社管理番号 | 100470974113 | 当社管理番号 | 89 |
| 所属団体 | (公社)東京都宅地建物取引業協会会員 | ||
| 公正取引協議会 | (公社)首都圏不動産公正取引協議会加盟 | ||
| 取扱い物件情報 | 物件詳細へ | ||
※各種情報と現状に差異がある場合は、現状優先となります。問い合わせをすることで、より詳しい条件、情報を確認する事ができます。
提供:(株)ベルテックス(SUUMO経由)
この物件が気になったら掲載期限まであと10日
エトワール上連雀に条件(家賃・エリア)が近い物件一覧
| 写真 | 家賃 管理費等 | 敷金 礼金 | 間取り 専有面積 | 築年数 | 最寄り駅 所在地 | キープ | 詳細 |
|---|---|---|---|---|---|---|---|
アパート レオパレスエスポワール(1K/1階) | |||||||
![]() | 7.6万円 5,000円 | なし 7.6万円 | 1K 22.35m2 | 築22年 | 東京都三鷹市深大寺3丁目 | 詳細を見る | |
マンション ファーストレジデンス(ワンルーム/1階) | |||||||
![]() | 6.7万円 2,000円 | 6.7万円 なし | ワンルーム 21.39m2 | 築20年 | 京王線 西調布駅 徒歩4分 京王線 飛田給駅 徒歩16分 京王線 調布駅 徒歩23分 東京都調布市上石原 | 詳細を見る | |
マンション RAFFINO TAMAGAWA(1DK/6階) | |||||||
![]() | 9.2万円 8,000円 | なし 9.2万円 | 1DK 31.69m2 | 築20年 | 京王相模原線 京王多摩川駅 徒歩2分 京王線 調布駅 徒歩15分 京王線 西調布駅 徒歩24分 東京都調布市多摩川 | 詳細を見る | |
アパート サンハイツ藤(ワンルーム/2階) | |||||||
![]() | 5万円 2,000円 | なし なし | ワンルーム 16m2 | 築60年 | 京王電鉄井の頭線 三鷹台駅 徒歩7分 京王電鉄井の頭線 久我山駅 徒歩9分 東京都三鷹市井の頭1丁目 | 詳細を見る | |
マンション 柳ビル(ワンルーム/3階) | |||||||
![]() | 3.7万円 なし | 3.7万円 3.7万円 | ワンルーム 19m2 | 築31年 | 中央本線 武蔵小金井駅 徒歩16分 東京都小金井市貫井北町3丁目 | 詳細を見る | |
アパート グレイスシールド烏丸(ワンルーム/1階) | |||||||
![]() | 6.3万円 3,000円 | なし なし | ワンルーム 15.95m2 | 築7年 | 京王線 千歳烏山駅 徒歩15分 京王線 仙川駅 徒歩19分 京王線 芦花公園駅 徒歩25分 東京都世田谷区上祖師谷 | 詳細を見る | |
アパート TRONCO祖師谷(ワンルーム/1階) | |||||||
![]() | 7.2万円 3,000円 | 7.2万円 なし | ワンルーム 19.3m2 | 築43年 | 小田急電鉄小田原線 祖師ケ谷大蔵駅 徒歩4分 小田急電鉄小田原線 千歳船橋駅 徒歩15分 東京都世田谷区祖師谷1丁目 | 詳細を見る | |
アパート レオパレスグリーンハウスIII(1K/2階) | |||||||
![]() | 6.2万円 5,000円 | なし なし | 1K 20.28m2 | 築26年 | 西武多摩川線 多磨駅 徒歩15分 西武多摩川線 新小金井駅 徒歩22分 JR中央線 東小金井駅 徒歩29分 東京都府中市多磨町 | 詳細を見る | |








