賃貸マンション
シャーメゾン 舞の賃貸物件情報(1LDK/2階)
| 家賃 | 管理費等 | 敷金 | 礼金 | 間取り | 専有面積 |
|---|---|---|---|---|---|
| 16.4万円 | 1.1万円 | なし | 16.4万円 | 1LDK | 58.3m2 |
入居決定でお祝い金最大100,000円
Point
☆大好きなペットと暮らす1LDK♪ウォークインクローゼットを備えた収納充実なお部屋♪浴室ゆったり1318サイズ♪WiFi付き無料インターネット設備♪ホテルライク仕様の屋内共用部も魅力です♪
提供:シャーメゾンショップ (株)とみや不動産調布駅前店(SUUMO経由)

詳細情報 シャーメゾン 舞
物件紹介
シャーメゾン 舞は京王線調布駅から徒歩7分にあり、駅近で通勤通学に便利なマンションです。
このお部屋は2階以上に位置しているので、通行人や周囲の住人からの視線が気になりにくく、防犯面でも安心。建物のエントランスはオートロックがついており、インターホンにはTVモニタもついているため、相手の顔を確認してから来客対応することができます。
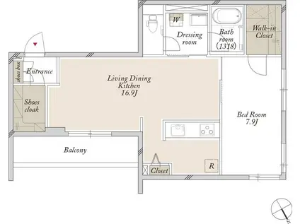
人気の角部屋で周囲の居住者の生活音も気になりにくく、また、フローリングのお部屋なのでお掃除もラクラク。室内にはウォークインクローゼットがありますので、たくさんの荷物も効率的に収納ができます。キッチンはシステムキッチン仕様になっていますので、お料理好きの方にもぴったり。バス・トイレは別なので、のんびりお風呂タイムも楽しめるでしょう。また、雨の日でも浴室乾燥機を使えば、お洗濯も問題ありません。
通信設備面では、インターネットが無料で使えるので、月々の出費を抑えられるのも魅力です。また、BSアンテナ・CSアンテナもありますので、おうち時間も充実するでしょう(別途工事、BS・CSの契約料等が必要な場合あり)。
建物にはエレベーターがついているので、重い荷物があっても安心。共用部には宅配ボックスが設定されているので、不在の時にも荷物を受け取ることができます。また、ペット飼育の相談ができますので、あなたの大切な家族の一員も快適に暮らせるか、ぜひ確認してみてください。
このお部屋は2階以上に位置しているので、通行人や周囲の住人からの視線が気になりにくく、防犯面でも安心。建物のエントランスはオートロックがついており、インターホンにはTVモニタもついているため、相手の顔を確認してから来客対応することができます。
人気の角部屋で周囲の居住者の生活音も気になりにくく、また、フローリングのお部屋なのでお掃除もラクラク。室内にはウォークインクローゼットがありますので、たくさんの荷物も効率的に収納ができます。キッチンはシステムキッチン仕様になっていますので、お料理好きの方にもぴったり。バス・トイレは別なので、のんびりお風呂タイムも楽しめるでしょう。また、雨の日でも浴室乾燥機を使えば、お洗濯も問題ありません。
通信設備面では、インターネットが無料で使えるので、月々の出費を抑えられるのも魅力です。また、BSアンテナ・CSアンテナもありますので、おうち時間も充実するでしょう(別途工事、BS・CSの契約料等が必要な場合あり)。
建物にはエレベーターがついているので、重い荷物があっても安心。共用部には宅配ボックスが設定されているので、不在の時にも荷物を受け取ることができます。また、ペット飼育の相談ができますので、あなたの大切な家族の一員も快適に暮らせるか、ぜひ確認してみてください。
お金・契約の情報
※「-」と表示されているものは、実際は料金が発生するものもございます。詳細はお問い合わせください。
| 家賃 | 16.4万円 | 管理費・共益費 | 1.1万円 |
|---|---|---|---|
| 敷金 | なし | 礼金 | 16.4万円 |
| 入居決定でお祝い金最大100,000円 | |||
| 保証金 | - | 償却・敷引 | - |
| 住宅保険料 | - | 更新料 | - |
| 保証会社利用 | 必須 | 保証会社名 | - |
| 保証会社費用 | - | 保証会社備考 | 保証会社利用必 指定の保証人代行プランに要加入(費用:月額合計賃料の2%を毎月 初回事務手数料33,000円 |
| 契約形態 | - | 契約期間 | - |
| 入居・引渡期間 | - | 現況 | - |
| 入居可能条件 | ペット相談 | ||
| 契約備考 | 積水ハウス施工/女性限定/ペット飼育可(敷金1ヶ月追加、小型犬、猫どちらか1匹まで) 合計12.52万円(内訳:退去クリーニング費用(初回契約時):92180円/鍵交換費用:33000円) シャーメゾンライフSUPPORT24:1320円/更新礼金:164000円 1LDK 女性限定/ペット相談 損保【要】 バストイレ別、バルコニー、シャワー付洗面台、TVインターホン、浴室乾燥機、オートロック、室内洗濯置、シューズボックス、システムキッチン、追焚機能浴室、角住戸、温水洗浄便座、エレベーター、洗面所独立、宅配ボックス、2面採光、敷金不要、3口以上コンロ、防犯カメラ、ペット相談、IHクッキングヒーター、グリル付、ウォークインクロゼット、全居室フローリング、エアコン2台、LDK15畳以上、CS、ネット専用回線、ネット使用料不要、保証金不要、複層ガラス、2駅利用可、駅徒歩10分以内、折上天井、築5年以内、全居室6畳以上、都市ガス、シャッター、室内物干機、BS、礼金1ヶ月、全室照明付 入居日:'26年2月上旬 | ||
部屋の情報
| 間取り | 1LDK | 専有面積 | 58.3m2 |
|---|---|---|---|
| 所在階 / 向き | 2階 / 北西 | バルコニー面積 | - |
| 水道 / ガス | - | ||
| 設備 | バス・トイレ別、2階以上、オートロック、テレビドアホン、宅配ボックス、浴室乾燥機、ウォークインクローゼット、追い焚き、インターネット対応、システムキッチン、エアコン、エレベーター、温水洗浄便座、角部屋、バルコニー、フローリング、洗髪洗面化粧台、2口コンロ、コンロ:IH、CSアンテナ、BSアンテナ、インターネット使用料無料、洗濯機:室内 | ||
| 当社物件ID | 101747054 | ||
建物の情報
| 建物名 | シャーメゾン 舞 | ||
|---|---|---|---|
| 所在地 | 東京都調布市小島町 | ||
| 交通 | 京王線 調布駅 徒歩7分 京王線 西調布駅 徒歩13分 | ||
| 階数 | 4階建 | 総戸数 | 18戸 |
| 築年月 | 2022年02月 / 築4年 | エレベーター | あり |
| 駐車場 | 空有 22000円 | バイク置き場 | - |
| 駐輪場 | - | 管理人/管理会社 | - |
| 周辺環境 | その他 業務スーパー(スーパー)まで80m その他 パルコ・西友(ショッピングセンター)まで360m その他 イオンシネマシアタス京王調布(その他)まで300m その他 ビックカメラ(その他)まで400m その他 オーケーストア(スーパー)まで260m その他 セブンイレブン(コンビニ)まで90m | ||
| 建物種別 | マンション | 建物構造 | 鉄骨造 |
この部屋の取扱い不動産会社
| 会社名 | シャーメゾンショップ (株)とみや不動産調布駅前店(SUUMO経由) | ||
|---|---|---|---|
| 所在地 | 東京都調布市布田1-26-10 | 交通 | - |
| 営業時間 | AM10:00~PM6:00 | 定休日 | 火・水曜日定休 |
| 免許番号 | 東京都知事54481 | 取引態様 | 仲介 |
| 不動産会社管理番号 | 100480481992 | 当社管理番号 | 89 |
| 所属団体 | (公社)東京都宅地建物取引業協会会員 | ||
| 公正取引協議会 | (公社)首都圏不動産公正取引協議会加盟 | ||
| 取扱い物件情報 | 物件詳細へ | ||
※各種情報と現状に差異がある場合は、現状優先となります。問い合わせをすることで、より詳しい条件、情報を確認する事ができます。
提供:シャーメゾンショップ (株)とみや不動産調布駅前店(SUUMO経由)
この物件が気になったら掲載期限まであと11日
シャーメゾン 舞に条件(家賃・エリア)が近い物件一覧
| 写真 | 家賃 管理費等 | 敷金 礼金 | 間取り 専有面積 | 築年数 | 最寄り駅 所在地 | キープ | 詳細 |
|---|---|---|---|---|---|---|---|
アパート カーサ・ルーチェ(3LDK/2階) | |||||||
![]() | 21万円 なし | 21万円 21万円 | 3LDK 84.09m2 | 新築 | 小田急線 狛江駅 徒歩4分 小田急線 和泉多摩川駅 徒歩8分 JR南武線 登戸駅 徒歩23分 東京都狛江市元和泉 | 詳細を見る | |
マンション レジディア池尻大橋(1LDK/14階) | |||||||
![]() | 18.8万円 1.5万円 | 18.8万円 なし | 1LDK 40.01m2 | 築21年 | 東急田園都市線 池尻大橋駅 徒歩7分 東急田園都市線 三軒茶屋駅 徒歩11分 東急世田谷線 三軒茶屋駅 徒歩11分 東京都世田谷区池尻 | 詳細を見る | |
アパート BELLA FORESTA(2LDK/1階) | |||||||
![]() | 15.1万円 4,000円 | 15.1万円 15.1万円 | 2LDK 63.66m2 | 新築 | 京王電鉄京王線 飛田給駅 徒歩4分 京王電鉄京王線 西調布駅 徒歩8分 東京都調布市飛田給1丁目 | 詳細を見る | |
アパート D-COMODO深大寺北町(1LDK/2階) | |||||||
![]() | 10.5万円 5,000円 | なし 10.5万円 | 1LDK 36.46m2 | 築1年 | JR中央線 武蔵境駅 徒歩37分 JR総武線 三鷹駅 徒歩37分 西武多摩川線 新小金井駅 徒歩47分 東京都調布市深大寺北町 | 詳細を見る | |
アパート サンアボード(2DK/2階) | |||||||
![]() | 10.7万円 なし | 10.7万円 10.7万円 | 2DK 41.3m2 | 築47年 | 京王線 千歳烏山駅 徒歩10分 京王線 仙川駅 徒歩16分 京王線 芦花公園駅 徒歩23分 東京都世田谷区給田 | 詳細を見る | |
マンション 元和泉3丁目メゾン(3LDK/1階) | |||||||
![]() | 24万円 9,000円 | 24万円 24万円 | 3LDK 66.3m2 | 新築 | 小田急線 和泉多摩川駅 徒歩4分 小田急線 狛江駅 徒歩12分 東京都狛江市元和泉 | 詳細を見る | |
マンション CASA PIAZZA 桜新町(2LDK/1階) | |||||||
![]() | 19.4万円 1.2万円 | なし なし | 2LDK 40.11m2 | 築1年 | 東急田園都市線 桜新町駅 徒歩8分 東急田園都市線 駒沢大学駅 徒歩19分 東京都世田谷区新町2丁目 | 詳細を見る | |
マンション REVERESIDENCE三軒茶屋 レーヴレジデンス三軒茶屋(1LDK/1階) | |||||||
![]() | 22.8万円 1万円 | なし なし | 1LDK 38.94m2 | 築1年 | 東急田園都市線 三軒茶屋駅 徒歩8分 東急世田谷線 西太子堂駅 徒歩14分 東急田園都市線 駒沢大学駅 徒歩21分 東京都世田谷区三軒茶屋 | 詳細を見る | |









