賃貸マンション
スカイコート蒲田弐番館の賃貸物件情報(1K/4階)
| 家賃 | 管理費等 | 敷金 | 礼金 | 間取り | 専有面積 |
|---|---|---|---|---|---|
| 8.46万円 | 7,400円 | 8.46万円 | 8.46万円 | 1K | 21.03m2 |
入居決定でお祝い金最大100,000円
- 保証金
- -
- 償却・敷引
- -
- 築年数
- 築14年
- 所在階
- 4階
- 向き
- 西
Point
お問い合わせ後、すぐにスタッフからご連絡させていただきます!ご内覧可能なお部屋はスタッフがお車で現地へご案内します♪★エリア情報、お引越しまでの流れ等どんなことでもお気軽にご相談ください★
提供:神宮前不動産(株)(SUUMO経由)

詳細情報 スカイコート蒲田弐番館
物件紹介
スカイコート蒲田弐番館は京急空港線糀谷駅から徒歩5分にあり、駅近で通勤通学に便利なマンションです。
このお部屋は2階以上に位置しているので、通行人や周囲の住人からの視線が気になりにくく、防犯面でも安心。建物のエントランスはオートロックがついており、インターホンにはTVモニタもついているため、相手の顔を確認してから来客対応することができます。
フローリングのお部屋なのでお掃除もラクラク。キッチンはシステムキッチン仕様になっていますので、お料理好きの方にもぴったり。バス・トイレは別なので、のんびりお風呂タイムも楽しめるでしょう。また、雨の日でも浴室乾燥機を使えば、お洗濯も問題ありません。
通信設備面では、インターネット接続が可能です。また、BSアンテナ・CSアンテナがありCATVにも対応しているので、おうち時間も充実するでしょう(別途工事、契約料が必要な場合あり)。
建物にはエレベーターがついているので、重い荷物があっても安心。共用部には宅配ボックスが設定されているので、不在の時にも荷物を受け取ることができます。
このお部屋は2階以上に位置しているので、通行人や周囲の住人からの視線が気になりにくく、防犯面でも安心。建物のエントランスはオートロックがついており、インターホンにはTVモニタもついているため、相手の顔を確認してから来客対応することができます。
フローリングのお部屋なのでお掃除もラクラク。キッチンはシステムキッチン仕様になっていますので、お料理好きの方にもぴったり。バス・トイレは別なので、のんびりお風呂タイムも楽しめるでしょう。また、雨の日でも浴室乾燥機を使えば、お洗濯も問題ありません。
通信設備面では、インターネット接続が可能です。また、BSアンテナ・CSアンテナがありCATVにも対応しているので、おうち時間も充実するでしょう(別途工事、契約料が必要な場合あり)。
建物にはエレベーターがついているので、重い荷物があっても安心。共用部には宅配ボックスが設定されているので、不在の時にも荷物を受け取ることができます。
お金・契約の情報
※「-」と表示されているものは、実際は料金が発生するものもございます。詳細はお問い合わせください。
| 家賃 | 8.46万円 | 管理費・共益費 | 7,400円 |
|---|---|---|---|
| 敷金 | 8.46万円 | 礼金 | 8.46万円 |
| 入居決定でお祝い金最大100,000円 | |||
| 保証金 | - | 償却・敷引 | - |
| 住宅保険料 | - | 更新料 | - |
| 保証会社利用 | 必須 | 保証会社名 | - |
| 保証会社費用 | - | 保証会社備考 | 保証会社利用必 ※〔初回保証委託料〕総賃料×50%〔月々〕総賃料×1.4%(例)契約期間または就労期 ご相談などございましたらお気軽にご質問くださいませ。 詳細は担当者までお問い合わせをお願いいたします。 |
| 契約形態 | - | 契約期間 | - |
| 入居・引渡期間 | 即時 | 現況 | - |
| 契約備考 | 口コミで選ばれる不動産屋、旗の台No.1☆お部屋空室情報や物件見学などお気軽にお問い合わせください【LINE三都市アース旗の台店】で検索!早い返事が可能★メール・電話OKです^^★★備考までちゃんと見ていただき本当にありがとうございます★★弊社はGoogleマップ口コミ地域で高評価をいただいております。たくさんの物件をご紹介します、他とは違う三都市アース旗の台店を知ってください★★ 合計3.52万円(内訳:消火剤0.55万円鍵交換代2.97万円) 更新料 新賃料1.50ヶ月分 少額短期保険 月額1000円 生活安心パック 月額1650円 1K 普通借家2年 損保【要】 バストイレ別、バルコニー、エアコン、ガスコンロ対応、クロゼット、フローリング、TVインターホン、浴室乾燥機、オートロック、室内洗濯置、シューズボックス、システムキッチン、温水洗浄便座、エレベーター、2口コンロ、駐輪場、宅配ボックス、CATV、光ファイバー、外壁タイル張り、即入居可、BS・CS、防犯カメラ、照明付、全居室収納、分譲賃貸、全居室洋室、保証人不要、敷金1ヶ月、全居室フローリング、2沿線利用可、ネット専用回線、眺望良好、保証金不要、24時間換気システム、2駅利用可、3駅以上利用可、3沿線以上利用可、駅徒歩5分以内、24時間ゴミ出し可、敷地内ごみ置き場、全居室6畳以上、都市ガス、玄関収納、LAN、礼金1ヶ月、保証会社利用可、IT重説対応物件、初期費用カード決済可、通風良好 | ||
部屋の情報
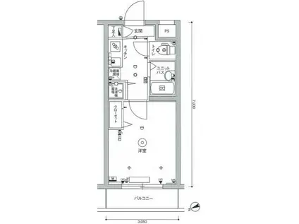
| 間取り | 1K | 専有面積 | 21.03m2 |
|---|---|---|---|
| 所在階 / 向き | 4階 / 西 | バルコニー面積 | 3m2 |
| 水道 / ガス | - | ||
| 設備 | インターネット対応、2口コンロ、コンロ:ガス、洗濯機:室内 | ||
| 当社物件ID | 8329179 | ||
建物の情報
| 建物名 | スカイコート蒲田弐番館 | ||
|---|---|---|---|
| 所在地 | 東京都大田区南蒲田 | ||
| 交通 | 京急空港線 糀谷駅 徒歩5分 京急本線 京急蒲田駅 徒歩9分 JR京浜東北線 蒲田駅 徒歩22分 | ||
| 階数 | 5階建 | 総戸数 | - |
| 築年月 | 2013年01月 / 築14年 | エレベーター | - |
| 駐車場 | なし | バイク置き場 | - |
| 駐輪場 | - | 管理人/管理会社 | - |
| 建物種別 | マンション | 建物構造 | RC(鉄筋コンクリート) |
この部屋の取扱い不動産会社
| 会社名 | (株)三都市アース旗の台店(SUUMO経由) | ||
|---|---|---|---|
| 所在地 | 東京都品川区旗の台2-13-16 | 交通 | - |
| 営業時間 | 10:30~19:30 土日祝日10:00~ | 定休日 | 年中無休 |
| 免許番号 | 東京都知事88296 | 取引態様 | 仲介 |
| 不動産会社管理番号 | 100476108375 | 当社管理番号 | 89 |
| 所属団体 | (公社)全日本不動産協会東京都本部会員 | ||
| 公正取引協議会 | (公社)首都圏不動産公正取引協議会加盟 | ||
| 取扱い物件情報 | 物件詳細へ | ||
※各種情報と現状に差異がある場合は、現状優先となります。問い合わせをすることで、より詳しい条件、情報を確認する事ができます。
提供:(株)三都市アース旗の台店(SUUMO経由)
この物件が気になったら掲載期限まであと10日
スカイコート蒲田弐番館に条件(家賃・エリア)が近い物件一覧
| 写真 | 家賃 管理費等 | 敷金 礼金 | 間取り 専有面積 | 築年数 | 最寄り駅 所在地 | キープ | 詳細 |
|---|---|---|---|---|---|---|---|
マンション メゾン新広尾(1K/3階) | |||||||
![]() | 7.8万円 5,000円 | 7.8万円 なし | 1K 20.22m2 | 築24年 | 京浜急行電鉄本線 大森町駅 徒歩7分 京浜急行電鉄本線 梅屋敷駅(東京) 徒歩11分 東京都大田区大森中1丁目 | 詳細を見る | |
マンション クレヴィスタ亀戸V(1K/6階) | |||||||
![]() | 13.1万円 1.1万円 | なし 13.1万円 | 1K 25.41m2 | 築6年 | 東武亀戸線 亀戸水神駅 徒歩2分 東武亀戸線 亀戸駅 徒歩12分 東武亀戸線 東あずま駅 徒歩12分 東京都江東区亀戸 | 詳細を見る | |
マンション ユートピアヒルズ大森北(1K/3階) | |||||||
![]() | 8万円 4,000円 | 8万円 8万円 | 1K 16.15m2 | 築5年 | 京急本線 平和島駅 徒歩8分 JR京浜東北線 大森駅(東京) 徒歩13分 京急本線 大森海岸駅 徒歩13分 東京都大田区大森北 | 詳細を見る | |
マンション クレヴィスタ亀戸IV(1K/10階) | |||||||
![]() | 13.5万円 1.1万円 | なし 13.5万円 | 1K 25.56m2 | 築7年 | 総武・中央緩行線 亀戸駅 徒歩4分 東武鉄道亀戸線 亀戸駅 徒歩4分 総武本線 錦糸町駅 徒歩12分 東京都江東区亀戸2丁目 | 詳細を見る | |
マンション シェモア加瀬(2K/3階) | |||||||
![]() | 9.9万円 4,000円 | 9.9万円 9.9万円 | 2K 34m2 | 築22年 | 京浜急行電鉄本線 梅屋敷駅(東京) 徒歩5分 京浜急行電鉄本線 大森町駅 徒歩10分 東京都大田区大森中2丁目 | 詳細を見る | |
マンション かねひらビル(1K/2階) | |||||||
![]() | 9.7万円 5,000円 | 9.7万円 なし | 1K 32.69m2 | 築36年 | 京浜急行電鉄本線 平和島駅 徒歩1分 京浜急行電鉄本線 大森町駅 徒歩13分 東京都大田区大森北6丁目 | 詳細を見る | |
マンション アルソス稗田(2DK/2階) | |||||||
![]() | 12.3万円 3,000円 | 12.3万円 24.6万円 | 2DK 37.5m2 | 築38年 | 京急本線 京急蒲田駅 徒歩7分 京急本線 梅屋敷駅(東京) 徒歩9分 JR京浜東北線 蒲田駅 徒歩10分 東京都大田区蒲田 | 詳細を見る | |
マンション グランディール(1K/4階) | |||||||
![]() | 9.6万円 5,000円 | 9.6万円 なし | 1K 25.02m2 | 築22年 | 京浜急行電鉄本線 大森町駅 徒歩5分 京浜急行電鉄本線 梅屋敷駅(東京) 徒歩9分 東京都大田区大森中1丁目 | 詳細を見る | |








