賃貸マンション
レジディア芝浦KAIGANの賃貸物件情報(1LDK/6階)
| 家賃 | 管理費等 | 敷金 | 礼金 | 間取り | 専有面積 |
|---|---|---|---|---|---|
| 20万円 | 2万円 | 20万円 | 20万円 | 1LDK | 44.82m2 |
入居決定でお祝い金最大100,000円
Point
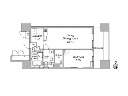
収納はクロゼット・シューズボックスなどが備え付けられているので、衣類や日用品の収納に重宝します。
提供:(株)カムグランサテライト店(SUUMO経由)

詳細情報 レジディア芝浦KAIGAN
物件紹介
レジディア芝浦KAIGANは新交通ゆりかもめ芝浦ふ頭駅から徒歩3分にあり、駅近で通勤通学に便利なマンションです。
このお部屋は2階以上に位置しているので、通行人や周囲の住人からの視線が気になりにくく、防犯面でも安心。建物のエントランスはオートロックがついており、インターホンにはTVモニタもついているため、相手の顔を確認してから来客対応することができます。
おしゃれなデザイナーズ物件!人気の角部屋で周囲の居住者の生活音も気になりにくく、また、フローリングのお部屋なのでお掃除もラクラク。室内にはウォークインクローゼットがありますので、たくさんの荷物も効率的に収納ができます。キッチンはシステムキッチン仕様になっていますので、お料理好きの方にもぴったり。バス・トイレは別なので、のんびりお風呂タイムも楽しめるでしょう。また、雨の日でも浴室乾燥機を使えば、お洗濯も問題ありません。
通信設備面では、インターネット接続が可能です。また、BSアンテナ・CSアンテナがありCATVにも対応しているので、おうち時間も充実するでしょう(別途工事、契約料が必要な場合あり)。
床暖房があり、冬も足元から暖かく快適に過ごすことができます。建物にはエレベーターがついているので、重い荷物があっても安心。共用部には宅配ボックスが設定されているので、不在の時にも荷物を受け取ることができます。また、ペット飼育の相談ができますので、あなたの大切な家族の一員も快適に暮らせるか、ぜひ確認してみてください。
コンビニまで徒歩10分の場所にあり、日用品や食料品のお買い物にも便利です。
このお部屋は2階以上に位置しているので、通行人や周囲の住人からの視線が気になりにくく、防犯面でも安心。建物のエントランスはオートロックがついており、インターホンにはTVモニタもついているため、相手の顔を確認してから来客対応することができます。
おしゃれなデザイナーズ物件!人気の角部屋で周囲の居住者の生活音も気になりにくく、また、フローリングのお部屋なのでお掃除もラクラク。室内にはウォークインクローゼットがありますので、たくさんの荷物も効率的に収納ができます。キッチンはシステムキッチン仕様になっていますので、お料理好きの方にもぴったり。バス・トイレは別なので、のんびりお風呂タイムも楽しめるでしょう。また、雨の日でも浴室乾燥機を使えば、お洗濯も問題ありません。
通信設備面では、インターネット接続が可能です。また、BSアンテナ・CSアンテナがありCATVにも対応しているので、おうち時間も充実するでしょう(別途工事、契約料が必要な場合あり)。
床暖房があり、冬も足元から暖かく快適に過ごすことができます。建物にはエレベーターがついているので、重い荷物があっても安心。共用部には宅配ボックスが設定されているので、不在の時にも荷物を受け取ることができます。また、ペット飼育の相談ができますので、あなたの大切な家族の一員も快適に暮らせるか、ぜひ確認してみてください。
コンビニまで徒歩10分の場所にあり、日用品や食料品のお買い物にも便利です。
お金・契約の情報
※「-」と表示されているものは、実際は料金が発生するものもございます。詳細はお問い合わせください。
| 家賃 | 20万円 | 管理費・共益費 | 2万円 |
|---|---|---|---|
| 敷金 | 20万円 | 礼金 | 20万円 |
| 入居決定でお祝い金最大100,000円 | |||
| 保証金 | - | 償却・敷引 | - |
| 住宅保険料 | 1円 | 更新料 | - |
| その他費用 | 入居者限定会員サービス/2年:1.1万円 | ||
| 保証会社利用 | 必須 | 保証会社名 | - |
| 保証会社費用 | - | 保証会社備考 | 初回契約時:40%、更新時:10,000円、月額:1,000円 |
| 契約形態 | - | 契約期間 | 2年 |
| 入居・引渡期間 | 2026年02月中旬 | 現況 | - |
| 入居可能条件 | 2人入居可、ペット可 | ||
| 契約備考 | 月額(インターネット使用料 1650円) 鍵交換費用:22000 その他設備/条件:室内洗濯機置き場、独立洗面台、防犯カメラ、クローゼット、シューズボックス | ||
部屋の情報
| 間取り | 1LDK | 専有面積 | 44.82m2 |
|---|---|---|---|
| 間取り詳細 | その他(10.7帖)、洋室(5.9帖)、K(2.7帖) | ||
| 所在階 / 向き | 6階 / 東 | バルコニー面積 | - |
| 水道 / ガス | ガス【都市】 | ||
| 設備 | バス・トイレ別、オートロック、テレビドアホン、宅配ボックス、浴室乾燥機、追い焚き、光ファイバー対応、システムキッチン、カウンターキッチン、エアコン、エレベーター、温水洗浄便座、バルコニー、フローリング、3口コンロ、CSアンテナ、BSアンテナ、シャワー、給湯 | ||
| 当社物件ID | 18738102 | ||
建物の情報
| 建物名 | レジディア芝浦KAIGAN | ||
|---|---|---|---|
| 所在地 | 東京都港区海岸3丁目 | ||
| 交通 | ゆりかもめ 芝浦ふ頭駅 徒歩4分 京浜東北・根岸線 田町駅(東京) 徒歩12分 | ||
| 階数 | 12階建 | 総戸数 | 67戸 |
| 築年月 | 2010年01月 / 築16年 | エレベーター | あり |
| 駐車場 | 空有 3.85万円/月 | バイク置き場 | - |
| 駐輪場 | あり | 管理人/管理会社 | - |
| 周辺環境 | コンビニ 徒歩10分(785m) 販売店 徒歩11分(866m) その他 ドラッグストア その他 公園 その他 銀行 その他 * | ||
| 建物種別 | マンション | 建物構造 | RC(鉄筋コンクリート) |
この部屋の取扱い不動産会社
| 会社名 | ハウスコム西東京株式会社 五反田店 | ||
|---|---|---|---|
| 所在地 | 東京都品川区12-12落合ビル2階 | 交通 | - |
| 営業時間 | 10:00~18:00 | 定休日 | - |
| 免許番号 | 東京都知事(1)第108225号 | 取引態様 | 仲介 |
| 不動産会社管理番号 | HC5-4821297-0601-0035 | 当社管理番号 | 468 |
| 所属団体 | 、 | ||
| 取扱い物件情報 | 物件詳細へ | ||
※各種情報と現状に差異がある場合は、現状優先となります。問い合わせをすることで、より詳しい条件、情報を確認する事ができます。
提供:ハウスコム西東京株式会社 五反田店
この物件が気になったら掲載期限まであと4日
レジディア芝浦KAIGANに条件(家賃・エリア)が近い物件一覧
| 写真 | 家賃 管理費等 | 敷金 礼金 | 間取り 専有面積 | 築年数 | 最寄り駅 所在地 | キープ | 詳細 |
|---|---|---|---|---|---|---|---|
マンション アーバンプレミア秋葉原(1K/10階) | |||||||
![]() | 15万円 1万円 | 15万円 なし | 1K 27.34m2 | 築6年 | 東京地下鉄銀座線 末広町駅(東京) 徒歩2分 山手線 秋葉原駅 徒歩10分 東京都千代田区外神田6丁目 | 詳細を見る | |
マンション メイクスデザイン茅場町(1K/6階) | |||||||
![]() | 12万円 1.5万円 | 12万円 12万円 | 1K 29.29m2 | 築19年 | 東京地下鉄日比谷線 茅場町駅 徒歩7分 東京地下鉄東西線 茅場町駅 徒歩7分 京葉線 八丁堀駅(東京) 徒歩8分 東京都中央区新川1丁目 | 詳細を見る | |
一戸建て 東京地下鉄有楽町線 豊洲駅 徒歩12分 築51年(3DK) | |||||||
![]() | 13.8万円 なし | 13.8万円 13.8万円 | 3DK 64.71m2 | 築51年 | 東京地下鉄有楽町線 豊洲駅 徒歩12分 京葉線 潮見駅 徒歩20分 東京地下鉄東西線 木場駅 徒歩24分 東京都江東区枝川1丁目 | 詳細を見る | |
マンション クレール日本橋(1LDK/12階) | |||||||
![]() | 24.5万円 なし | 24.5万円 24.5万円 | 1LDK 41.06m2 | 築9年 | 東京都新宿線 馬喰横山駅 徒歩2分 総武本線 馬喰町駅 徒歩2分 東京都中央区日本橋馬喰町1丁目 | 詳細を見る | |
一戸建て 東京都新宿線 大島駅(東京) 徒歩7分 築76年(1DK) | |||||||
![]() | 15.8万円 1万円 | 15.8万円 15.8万円 | 1DK 27.91m2 | 築76年 | 東京都新宿線 大島駅(東京) 徒歩7分 東京都新宿線 西大島駅 徒歩7分 総武・中央緩行線 亀戸駅 徒歩11分 東京都江東区大島3丁目 | 詳細を見る | |
マンション KDXレジデンス神田(1K/6階) | |||||||
![]() | 14.5万円 1万円 | 14.5万円 14.5万円 | 1K 25.86m2 | 築11年 | 山手線 神田駅(東京) 徒歩3分 京浜東北・根岸線 神田駅(東京) 徒歩3分 東京地下鉄銀座線 神田駅(東京) 徒歩6分 東京都千代田区内神田2丁目 | 詳細を見る | |
マンション デュオスカーラ東日本橋(ワンルーム/11階) | |||||||
![]() | 12万円 1万円 | 12万円 12万円 | ワンルーム 26.35m2 | 築22年 | JR総武線快速 馬喰町駅 徒歩1分 JR総武線 浅草橋駅 徒歩6分 東京メトロ日比谷線 小伝馬町駅 徒歩10分 東京都中央区日本橋馬喰町 | 詳細を見る | |
マンション プラウドフラット東日本橋(1K/8階) | |||||||
![]() | 13.8万円 1万円 | 13.8万円 13.8万円 | 1K 25.67m2 | 築8年 | 東京都浅草線 浅草橋駅 徒歩3分 総武本線 馬喰町駅 徒歩3分 総武・中央緩行線 浅草橋駅 徒歩5分 東京都中央区東日本橋2丁目 | 詳細を見る | |








